zrim Опубліковано: 26 березня 2010 Поділитись Опубліковано: 26 березня 2010 Ось і ми розпочали будівництво . Попередньо - ще в осени було проведено світло , вибраний проект . 23.03.2010 розпочали копати траншеї під фундамент , а на слідуючий день класти блоки (брались вживані) . Перший блок ! а потім другий , ........ Посилання на коментар Поділитися на інших сайтах More sharing options...
Igor_M Опубліковано: 26 березня 2010 Поділитись Опубліковано: 26 березня 2010 Ось і ми розпочали будівництво . Попередньо - ще в осени було проведено світло , вибраний проект . 23.03.2010 розпочали копати траншеї під фундамент , а на слідуючий день класти блоки (брались вживані) . Перший блок ! Вітаю з початком! А який проект обрали. Робили прив'язку до місцевості (урахування сторін світу, рельєфу, властивостей грунта, рівня грунтових вод і.т.і...) Посилання на коментар Поділитися на інших сайтах More sharing options...
burguy30 Опубліковано: 26 березня 2010 Поділитись Опубліковано: 26 березня 2010 прийміть і мої вітання! хорошого вам настрою,приємних проблем і забагато фінансового ресурсу) Посилання на коментар Поділитися на інших сайтах More sharing options...
zrim Опубліковано: 26 березня 2010 Автор Поділитись Опубліковано: 26 березня 2010 проект взяли у доброго знайомого , будинок я бачив , а збудований він приблизно на такій самій місцевості . Розміщення врахували так щоб було побільше світла на ділянці , тай самі кімнати також не будуть на північній стороні . Копали на 1,2 м. , шутер пішов десь після 50-60 см. вчора 25,03,2010 закінчили класти блоки . Тепер 2 дні перерви (потрібно навести порядок навколо ) , а в понеділок 29 березня якщо дозволе погода робимо армуючий пояс . Сьогодні забивають трубу на воду , пізніше викладу фото . Посилання на коментар Поділитися на інших сайтах More sharing options...
zrim Опубліковано: 26 березня 2010 Автор Поділитись Опубліковано: 26 березня 2010 прийміть і мої вітання! хорошого вам настрою,приємних проблем і забагато фінансового ресурсу) велике спасибі Посилання на коментар Поділитися на інших сайтах More sharing options...
burguy30 Опубліковано: 26 березня 2010 Поділитись Опубліковано: 26 березня 2010 якщо не секрет,по чому в цьому сезоні монтують блоки? Посилання на коментар Поділитися на інших сайтах More sharing options...
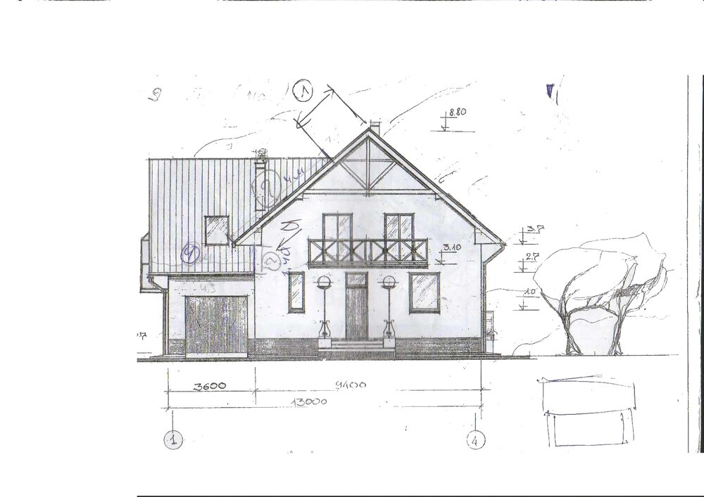
zrim Опубліковано: 26 березня 2010 Автор Поділитись Опубліковано: 26 березня 2010 ось ще фото проекту Посилання на коментар Поділитися на інших сайтах More sharing options...
zrim Опубліковано: 26 березня 2010 Автор Поділитись Опубліковано: 26 березня 2010 якщо не секрет,по чому в цьому сезоні монтують блоки? ми зійшлись на - 35 грн Посилання на коментар Поділитися на інших сайтах More sharing options...
Allenka Опубліковано: 26 березня 2010 Поділитись Опубліковано: 26 березня 2010 ми зійшлись на - 35 грн Хорошая цена!! С почином вас!!! Посилання на коментар Поділитися на інших сайтах More sharing options...
inspektor Опубліковано: 26 березня 2010 Поділитись Опубліковано: 26 березня 2010 Вітаю з початком. Успіхів. А кран скільки бере (маю на увазі кошти)? Посилання на коментар Поділитися на інших сайтах More sharing options...
zrim Опубліковано: 26 березня 2010 Автор Поділитись Опубліковано: 26 березня 2010 Вітаю з початком. Успіхів. А кран скільки бере (маю на увазі кошти)? кран знайшов 150 грн - 1 год Посилання на коментар Поділитися на інших сайтах More sharing options...
zrim Опубліковано: 26 березня 2010 Автор Поділитись Опубліковано: 26 березня 2010 щойно з будмайданчика - забили трубу на воду - 1600 грн + колонка (колонку дав батько ) , а так вартість її 500 грн Посилання на коментар Поділитися на інших сайтах More sharing options...
SIV Опубліковано: 26 березня 2010 Поділитись Опубліковано: 26 березня 2010 Вітаю земляків . З почином Вас. Посилання на коментар Поділитися на інших сайтах More sharing options...
Антошка Опубліковано: 26 березня 2010 Поділитись Опубліковано: 26 березня 2010 Успехов!!!! Посилання на коментар Поділитися на інших сайтах More sharing options...
shef72 Опубліковано: 27 березня 2010 Поділитись Опубліковано: 27 березня 2010 проект взяли у доброго знайомого , будинок я бачив , а збудований він приблизно на такій самій місцевості . Розміщення врахували так щоб було побільше світла на ділянці , тай самі кімнати також не будуть на північній стороні . Копали на 1,2 м. , шутер пішов десь після 50-60 см. вчора 25,03,2010 закінчили класти блоки . Тепер 2 дні перерви (потрібно навести порядок навколо ) , а в понеділок 29 березня якщо дозволе погода робимо армуючий пояс . Сьогодні забивають трубу на воду , пізніше викладу фото . Є декілька зауважень до проекту! 1. На першому поверсі відсутнє місце для розміщення прихожої (мебель) те, що у Вас називається прихожою 4 - це є тамбор і роздягатися чи вдягатися там досить не зручно 2. На дугому поверсі слід замінити двері в гардеропну на розсувні або передбачити їх відкриття назовню Посилання на коментар Поділитися на інших сайтах More sharing options...
shef72 Опубліковано: 27 березня 2010 Поділитись Опубліковано: 27 березня 2010 проект взяли у доброго знайомого , будинок я бачив , а збудований він приблизно на такій самій місцевості . Розміщення врахували так щоб було побільше світла на ділянці , тай самі кімнати також не будуть на північній стороні . Копали на 1,2 м. , шутер пішов десь після 50-60 см. вчора 25,03,2010 закінчили класти блоки . Тепер 2 дні перерви (потрібно навести порядок навколо ) , а в понеділок 29 березня якщо дозволе погода робимо армуючий пояс . Сьогодні забивають трубу на воду , пізніше викладу фото . Чи достатня ширина вхідних дверей 900. Меблі.... Посилання на коментар Поділитися на інших сайтах More sharing options...
kliman Опубліковано: 27 березня 2010 Поділитись Опубліковано: 27 березня 2010 Ось і ми розпочали будівництво . Попередньо - ще в осени було проведено світло , вибраний проект . 23.03.2010 розпочали копати траншеї під фундамент , а на слідуючий день класти блоки (брались вживані) . Перший блок ! а потім другий , ........ Якщо не секрет - де ви будуєтесь? Я щось не побачив. А так - бажаю успіхів. Посилання на коментар Поділитися на інших сайтах More sharing options...
zrim Опубліковано: 27 березня 2010 Автор Поділитись Опубліковано: 27 березня 2010 Є декілька зауважень до проекту! 1. На першому поверсі відсутнє місце для розміщення прихожої (мебель) те, що у Вас називається прихожою 4 - це є тамбор і роздягатися чи вдягатися там досить не зручно 2. На дугому поверсі слід замінити двері в гардеропну на розсувні або передбачити їх відкриття назовню 1 . гардеробна буде на місці котельної (дверей в котельну не буде) , а котел буде стояти в кімнатці за гаражом 2. ок - будем розглядати цей варіант Посилання на коментар Поділитися на інших сайтах More sharing options...
zrim Опубліковано: 27 березня 2010 Автор Поділитись Опубліковано: 27 березня 2010 Чи достатня ширина вхідних дверей 900. Меблі.... також будем переглядати велике спасибі за поради !!! Посилання на коментар Поділитися на інших сайтах More sharing options...
zrim Опубліковано: 27 березня 2010 Автор Поділитись Опубліковано: 27 березня 2010 Якщо не секрет - де ви будуєтесь? Я щось не побачив. А так - бажаю успіхів. м.Стрий Посилання на коментар Поділитися на інших сайтах More sharing options...
Степаныч Опубліковано: 27 березня 2010 Поділитись Опубліковано: 27 березня 2010 Удачного строительства! Посилання на коментар Поділитися на інших сайтах More sharing options...
zrim Опубліковано: 27 березня 2010 Автор Поділитись Опубліковано: 27 березня 2010 ось такий у нас фундамент Посилання на коментар Поділитися на інших сайтах More sharing options...
zrim Опубліковано: 27 березня 2010 Автор Поділитись Опубліковано: 27 березня 2010 Удачного строительства! дуже дякую Посилання на коментар Поділитися на інших сайтах More sharing options...
kliman Опубліковано: 27 березня 2010 Поділитись Опубліковано: 27 березня 2010 Так ми земляки, 30 км., це не відстань А цей зелений багатоповерховий будинок мені щось нагадує. Це часом не біля об"їздної Стрия? Посилання на коментар Поділитися на інших сайтах More sharing options...
HUGO BOSS Опубліковано: 27 березня 2010 Поділитись Опубліковано: 27 березня 2010 Удачной стройки и хорошей погоды!!! Посилання на коментар Поділитися на інших сайтах More sharing options...
Рекомендовані повідомлення
Створіть акаунт або увійдіть у нього для коментування
Ви маєте бути користувачем, щоб залишити коментар
Створити акаунт
Зареєструйтеся для отримання акаунта. Це просто!
Зареєструвати акаунтУвійти
Вже зареєстровані? Увійдіть тут.
Увійти зараз