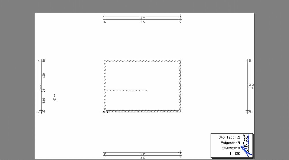
ShyV Опубліковано: 29 березня 2010 Поділитись Опубліковано: 29 березня 2010 Помогите подобрать оптимальную с точки зрения бюджета схему перекрытия и кровли одноэтажного строения из газобетона (схема несущих стен в прикрепленном файле) Кровля планируется простейщая двухскатная, металочерипица. Угол не более 25 градусов. Спасибо! Посилання на коментар Поділитися на інших сайтах More sharing options...
Крышник Опубліковано: 29 березня 2010 Поділитись Опубліковано: 29 березня 2010 Помогите подобрать оптимальную с точки зрения бюджета схему перекрытия и кровли одноэтажного строения из газобетона (схема несущих стен в прикрепленном файле) Кровля планируется простейщая двухскатная, металочерипица. Угол не более 25 градусов. Спасибо! [ATTACH]46183[/ATTACH] Смотрите в альбоме. www.stroimdom.com.ua/forum/album.php?albumid=582&pictureid=5671 Посилання на коментар Поділитися на інших сайтах More sharing options...
ShyV Опубліковано: 29 березня 2010 Автор Поділитись Опубліковано: 29 березня 2010 Спасибо! со сдвигом стены - вопрос отпал но меня как дилетанта волнует отсутствие несущей стены 5,2 м в одной части постройки . Что посоветуете придумать там ? Посилання на коментар Поділитися на інших сайтах More sharing options...
S.A.Y. Опубліковано: 29 березня 2010 Поділитись Опубліковано: 29 березня 2010 А в чем проблема-то? До 9-ти метров на стропильную ферму достаточно либо доп. затяжки, либо стойки (рис.4,6): Об опирании на стенку я даже не говорю: совершенно нормально ее полностью игнорировать. 2 Посилання на коментар Поділитися на інших сайтах More sharing options...
ShyV Опубліковано: 29 березня 2010 Автор Поділитись Опубліковано: 29 березня 2010 т.е от несущей стены в центре можно вообще отказатся ? или лучше что бы она всетаки была? посути - т.е. Вы рекомендуете сделать обычные двускатные фермы? Нижний пояс 50х200мм (для утепления), верхний пояс 50х150, диагонали 50х100. Схема расположения диагоналей - W ? еще вопрос что будет лучше для ферм- гвоздевые пластины, или перфорированные пластины и саморезы или фанеру и саморезы? На мауэрлат достаточно доски 50х150? Посилання на коментар Поділитися на інших сайтах More sharing options...
S.A.Y. Опубліковано: 29 березня 2010 Поділитись Опубліковано: 29 березня 2010 т.е от несущей стены в центре можно вообще отказатся ? Т.е. её наличие не критично. или лучше что бы она всетаки была? Если есть - почему б не опереться? ;) посути - т.е. Вы рекомендуете сделать обычные двускатные фермы? Как бы да ))) Нижний пояс 50х200мм (для утепления), верхний пояс 50х150, диагонали 50х100. Схема расположения диагоналей - W ? Раскосов, чтоль? еще вопрос что будет лучше для ферм- гвоздевые пластины, или перфорированные пластины и саморезы или фанеру и саморезы? Это только в школе принимается один ответ в качестве верного. И подобная система обучения создает впечатление, что существует некий "лучший" вариант. На самом деле строительство, как и вся жизнь, - мультивариантно. И "лучшими" являются сразу несколько вариантов. Причем, практически всегда. ;) На мауэрлат достаточно доски 50х150? На мауэрлат желательно брус, а не доску. 3 Посилання на коментар Поділитися на інших сайтах More sharing options...
Крышник Опубліковано: 29 березня 2010 Поділитись Опубліковано: 29 березня 2010 т.е от несущей стены в центре можно вообще отказатся ? или лучше что бы она всетаки была? На мауэрлат достаточно доски 50х150? Лучше когда есть опора,маслом кашу не испортишь... Мауэрлат лучше квадратный,т.к. на него действуют силы в разных направлениях/плоскостях(уже писал неоднократно почему),из практики оптимально 100х100 мм...можно и три доски срастить,будет 50+50+50х150мм,но надо закрыть/утеплить мауэр снаружи,т.к. появится щель... Как правильно написал SAY,есть много вариантов крепления,мы любим гвоздь/скоба,т.с. классика,проверенная столетиями,себе лично часть под коньком бил пластинами сотым гвоздём и саморезами...тут,как мы обычно делаем www.stroimdom.com.ua/forum/album.php?albumid=425&pictureid=3977 Посилання на коментар Поділитися на інших сайтах More sharing options...
ShyV Опубліковано: 29 березня 2010 Автор Поділитись Опубліковано: 29 березня 2010 Лучше когда есть опора,маслом кашу не испортишь... Мауэрлат лучше квадратный,т.к. на него действуют силы в разных направлениях/плоскостях(уже писал неоднократно почему),из практики оптимально 100х100 мм...можно и три доски срастить,будет 50+50+50х150мм,но надо закрыть/утеплить мауэр снаружи,т.к. появится щель... Если честно, то по наивности думал, что в предложенном варианте с фермами распирающие/расталкивающие нагрузки на стены будут отсутствовать, разве не так? стоит себе треугольная ферма и давит через мауэрлат на стены. как на картинке WBR Юрий Посилання на коментар Поділитися на інших сайтах More sharing options...
Васян Опубліковано: 1 квітня 2010 Поділитись Опубліковано: 1 квітня 2010 Если честно, то по наивности думал, что в предложенном варианте с фермами распирающие/расталкивающие нагрузки на стены будут отсутствовать, разве не так? стоит себе треугольная ферма и давит через мауэрлат на стены. как на картинке [ATTACH]46263[/ATTACH] WBR Юрий Угу, где нибудь в тихом уголке. А так на нее еще к примеру ветер действует -пытается сдуть :D или подорвать по телеку видели конечно, снег солнце и т.д Посилання на коментар Поділитися на інших сайтах More sharing options...
snitsar Опубліковано: 1 квітня 2010 Поділитись Опубліковано: 1 квітня 2010 Помогите подобрать оптимальную с точки зрения бюджета схему перекрытия и кровли одноэтажного строения из газобетона (схема несущих стен в прикрепленном файле) Кровля планируется простейщая двухскатная, металочерипица. Угол не более 25 градусов. Спасибо! [ATTACH]46183[/ATTACH] Если без опор посредине, с опиранием только на наружные стены, то получаются, приблизительно (очень зависит от высоты затяжки), стропила 200х70. При добавлении постредине стойки, уже достаточно стропил 50х200. Если же добавить еще затяжки, то можно обойтись и 50х150мм. А в общем случае наслонные стропила (с промежуточными опорами) считаются более экономичными в плане расхода дерева, по сравнению с висячими (опирание только по наружным стенам). 1 Посилання на коментар Поділитися на інших сайтах More sharing options...
ilya Опубліковано: 6 квітня 2010 Поділитись Опубліковано: 6 квітня 2010 Чтоб не создавать новую тему, вопрос к спецам -имеет ли право на жизнь такой вариант стропилки. Стены монолит бетон (термодом) мауерлаты 150х100. Стропила 150х50 шаг 0,6. Гаражная часть опирается на 2 стены (наслонные).Расстояние между мауерами на крыше 8 м. Угол 30 град. Перекрытие монолит типа терива (с пенопластовыми вставками).Под перекрытием есть внутренняя несущая стена но не по центру( 3 и 5 м).Кровля ППЧ. Посилання на коментар Поділитися на інших сайтах More sharing options...
S.A.Y. Опубліковано: 6 квітня 2010 Поділитись Опубліковано: 6 квітня 2010 право имеет. Посилання на коментар Поділитися на інших сайтах More sharing options...
snitsar Опубліковано: 6 квітня 2010 Поділитись Опубліковано: 6 квітня 2010 Под перекрытием есть внутренняя несущая стена но не по центру( 3 и 5 м). Вот ее и задействуйте, как по мне будет намного надежнее, чем просто без внутренних опор. Не считал, но мне кажется что 150х50 будет маловато для 8м пролета. Посилання на коментар Поділитися на інших сайтах More sharing options...
ilya Опубліковано: 7 квітня 2010 Поділитись Опубліковано: 7 квітня 2010 Вот ее и задействуйте, как по мне будет намного надежнее, чем просто без внутренних опор. Не считал, но мне кажется что 150х50 будет маловато для 8м пролета. К сожалению бруса 200х50 у нас не найти. самый ходовой 150х50. Могу уменьшить шаг стропил до 0,5м. А насчет промежуточной несушей не совсем понял как ее задействовать. Понятно если сместить конек и поставить коньковый брус со стойками упором на стену. И если не трудно прошу специалистов поделиться опытом как выставить первые стропилины по краям. Для этого думаю поставить коньковый брус как на рис. на каких нибудь треногах распорках, а затем на него укладывать первые стропилины. И какой глубины запил на стропилине разрешен 1/3 или 2/3 .Кто как делал подскажите.Дом строю сам и крышу ставлю первый раз. Советы найми бригаду не подходят поскольку материал закупается частями по мере поступления средств. Посилання на коментар Поділитися на інших сайтах More sharing options...
snitsar Опубліковано: 7 квітня 2010 Поділитись Опубліковано: 7 квітня 2010 К сожалению бруса 200х50 у нас не найти. самый ходовой 150х50. Могу уменьшить шаг стропил до 0,5м. А насчет промежуточной несушей не совсем понял как ее задействовать. Смотрите рисунок во вложении, как вариант решения вопроса. Еще смотрите на высоту расположения затяжки, от этого многое зависит, оптимально в нижней трети треугольника крыши. И какой глубины запил на стропилине разрешен 1/3 или 2/3 . Делайте, 1/3 или даже 1/4, так как при большом запиле, ослабляется стропилина и возможно провисание свесов крыши. Посилання на коментар Поділитися на інших сайтах More sharing options...
ilya Опубліковано: 7 квітня 2010 Поділитись Опубліковано: 7 квітня 2010 Смотрите рисунок во вложении, как вариант решения вопроса. А о каком рисунке имеете ввиду. И если не трудно подскажите какое сечение стропил желательно. У одного продавца нашел 150х60. Посилання на коментар Поділитися на інших сайтах More sharing options...
Васян Опубліковано: 7 квітня 2010 Поділитись Опубліковано: 7 квітня 2010 На пилораме закажите 200*50. У нас не проблема. И опереть надо на стены как советовал синистар. А то право то имеет но жить не будет Посилання на коментар Поділитися на інших сайтах More sharing options...
snitsar Опубліковано: 7 квітня 2010 Поділитись Опубліковано: 7 квітня 2010 Смотрите рисунок во вложении, как вариант решения вопроса. А о каком рисунке имеете ввиду. задумался 1 Посилання на коментар Поділитися на інших сайтах More sharing options...
korund Опубліковано: 8 квітня 2010 Поділитись Опубліковано: 8 квітня 2010 ilya, а подкровельная мембрана планируется? (Если кровля - М/Ч) В общем, даже не важно, будет она или нет, набейте поверх стропил 150х50 брус 50х50 (при наличии мембраны он выполняет роль контрбруса). Итого: получаете стропилину 200х50, даже крепче, чем цельный брус. Удачи! 1 Посилання на коментар Поділитися на інших сайтах More sharing options...
ilya Опубліковано: 8 квітня 2010 Поділитись Опубліковано: 8 квітня 2010 ilya, а подкровельная мембрана планируется? (Если кровля - М/Ч) В общем, даже не важно, будет она или нет, набейте поверх стропил 150х50 брус 50х50 (при наличии мембраны он выполняет роль контрбруса). Итого: получаете стропилину 200х50, даже крепче, чем цельный брус. Удачи! Кровля писал ранее ППЧ. Чердак холодный поэтому куплен Гидробарьер Juta 110.Ну разумеется контр обрешетка и обрешетка.Хотя наверное можно обойтись без контробрешетки. Гидробарьер степлером к стропилам и потом обрешетку. Один момент не совсем понял Крышник говорил о какой то полиуретановой прокладке под конек (для всех кровель) чтоб не задувал снег. Где ее глянуть можно.Да и попутный вопрос чем лучше крепить обрешетку гвоздями или желтыми саморезами. Посилання на коментар Поділитися на інших сайтах More sharing options...
ilya Опубліковано: 8 квітня 2010 Поділитись Опубліковано: 8 квітня 2010 (змінено) Спасибо за помощь S.A.Y. и Snitsar.Пришли к общему решению схемы стропилки при том же сечении бруса что планировал ранее. Оказалось даже можно увеличить чуть шаг стропил. Как вариант можно даже использовать один раскос и растяжку. Змінено 8 квітня 2010 користувачем ilya Посилання на коментар Поділитися на інших сайтах More sharing options...
ShyV Опубліковано: 6 липня 2010 Автор Поділитись Опубліковано: 6 липня 2010 подниму тему жизнеспособна ли схема во вложении? roof_plan-2.pdf PS стойка под коньковую балку смещена что бы при необходимости иметь возможность получить окно на фронтоне (пока просто зашьем чем то типа ОСБ) и комнату в чердачном помещении Стропила 50 200 Затяжка 50 100 Коньковая балка 50 200 Мауэрлат 50 100 (150) Стойка 100 100 Раскос 50 100 Стойка 50 100 Балка перекрытия 50 200 Накладка 25 150 Контррейка 50 30 Обрешетка 50 50 Лобовая доска 25 150 Ветровая доска 25 150 Ветровая связь 200 50 Фронтонный брусок 50 50 Каркас утеплителя 25 150 Каркас подшивки 50 30 Посилання на коментар Поділитися на інших сайтах More sharing options...
ShyV Опубліковано: 7 липня 2010 Автор Поділитись Опубліковано: 7 липня 2010 спасибо Татьяне5 единственной кто оказал помощь, хотя она и не специалист в этой области. Остальные видимо умеют советовать только за деньги или ... Тема не актуальна , получил ответы на росийских форумах там народ или толковей или дружелюбней. Посилання на коментар Поділитися на інших сайтах More sharing options...
S.A.Y. Опубліковано: 8 липня 2010 Поділитись Опубліковано: 8 липня 2010 спасибо Татьяне5 единственной кто оказал помощь, ... А можно ознакомиться? Посилання на коментар Поділитися на інших сайтах More sharing options...
ShyV Опубліковано: 8 липня 2010 Автор Поділитись Опубліковано: 8 липня 2010 А можно ознакомиться? ознакомится с чем ? Опишу ситуацию: я обратился к людям, которые давали советы в начале темы с вопросом реализации (на тот момент у меня не было проекта) - Крышник (Николай) был готов выполнитиь мою кровлю (сам сделав проект таким как он его видит) , но мое финансовое положение не позволяет оплатить его услуги. Николаю спасибо за потраченое на меня время. - Вы S.A.Y - на тот момент, когда мне нужно было принять решение были недоступен. Ответили что будете через 4 дня и тогда мы можем встретится, а хотелось побыстрее пока был настрой , поэтому Вам Сергей тоже спасибо, но - проект прикрепленный выше сделал Сницар Олег. Спасибо! у нескольких потенциальных исполнителей, которых начал искать возникли сомнения в жизнеспособности проэкта, поэтому с согласия Олега выложил его на обсуждение. И единственным человеком на форуме на сегодняшний день была татьяна , которая переслала проект своим знакомым крышникам для оценки и дала мне конт тел для общения. WBR Юрий Посилання на коментар Поділитися на інших сайтах More sharing options...
Рекомендовані повідомлення
Створіть акаунт або увійдіть у нього для коментування
Ви маєте бути користувачем, щоб залишити коментар
Створити акаунт
Зареєструйтеся для отримання акаунта. Це просто!
Зареєструвати акаунтУвійти
Вже зареєстровані? Увійдіть тут.
Увійти зараз