Indie Опубліковано: 29 березня 2010 Поділитись Опубліковано: 29 березня 2010 Собираюсь строить дом из газобетона !! Все понятно, кроме крыши !! Где крепить шпильки, в венец или надо отдельный армопояс, или что ?? Как быть с мауэрлатом, он должен быть на уровне с перекрытием или на n см над ним ?? Обсмотрел-обчитал уйму информации, но так до конца и не понял Буду очень благодарен за фото и схемы !! Посилання на коментар Поділитися на інших сайтах More sharing options...
Владим61 Опубліковано: 30 березня 2010 Поділитись Опубліковано: 30 березня 2010 Нет, ну нельзя же так, в самом деле. И на форуме полно этой информации. И на других сайтах. Зайдите хотя бы на xella.ua (ru,pl). 1 Посилання на коментар Поділитися на інших сайтах More sharing options...
Крышник Опубліковано: 30 березня 2010 Поділитись Опубліковано: 30 березня 2010 (змінено) Собираюсь строить дом из газобетона !! Все понятно, кроме крыши !! Где крепить шпильки, в венец или надо отдельный армопояс, или что ?? Как быть с мауэрлатом, он должен быть на уровне с перекрытием или на n см над ним ?? Обсмотрел-обчитал уйму информации, но так до конца и не понял Буду очень благодарен за фото и схемы !! Моё имхО:не стройте дом из газобетона!!!(модерам,возможно,надо перенести эту тему в другой раздел??...наболело) Из общения в жизни,так и на форуме напрашиваются выводы....все профессиональные строители разного профиля,регулярно общаюсь,и те застройщики,у кого проблемы вылезли с газоблоком,говорят не надо строить из ГБ...а те кто продаёт ГБ и неспециалисты/застройщики,говорят:"стройте,вот такой то человек/я построил,и клёво ему в газоблоке,дёшево,стоит уже пять лет,тепло и мухи не кусают"..не у всех есть силы признаться,что он ерунду сделал,вот и продолжает отстаивать свой промах...специалисты-строители злые(и я тоже очень злой),потому,что говорят,НЕ ТО,что хочет слышать заказчик,а реалии из практики/опыта/теории....я уже полтора года учавствую в форуме,и каждую неделю как минимум два-три раза появляются темы про проблемы с газоблоком(также пенобетоном,термодомом,"паротермом" и подобной хренью) и про то как делать(вчера последняя тема,как делать армпояс/перекрытия в доме из ГБ.....позавчера другая,как делать,люди помогите.....почитайте,поиск рулит)... ...про то,как треснуло под окнами,трещина на фронтоне,стене,вывалился угол и пр. в доме из кирпича нет!!Почему????? А патамушо!!!!ГБ это заполнитель,им заполняют несущую конструкцию из железобетона(возможно полнотелого кирпича)....но это сложности по отливке колонн и армпоясов,далее утепление мостиков холода в несущих конструкциях... .....поэтому продавцы ГБ,что бы втюхать свою продукцию написали,что:до трёх этажей можно строить из ГБ как несущим материалом,армпояса на часть ширины стены и пр. несуразицы,что я лично считаю преступлением с их стороны...и благодарные покупатели побежали покупать... ....кто был в Севастополе,на ЮБК,в Крыму,обратил внимание,что там большинство домов из ракушки(традиционный для Крыма материал,по физ.-тех. свойствам подобный ГБ) строят со скелетом из ЖБ,почему??? патамушо там большая вероятность сейсмоактивности,а у нас нет???я помню в начале 70-х три балла...если у нас,ТТТ,тряхнёт,то выдержит ли несущая стена из хрупкого ГБ или "паротерма"???? Самонесущими стенами являются: -кирпич полнотелый; -железобетон(керамзитобетон армированный,"термодом" пенопластовый армированный,шлакобетон армированный и подобное); -камень(бут,известняк белый(типа инкерманского),гранит,базальт,мрамор :D ); -дерево(сруб из бруса,кругляка). Всё остальное заполнитель стены из каркаса,выполненного из ЖБ,металла,деревянного бруса и подобного.... Если уже оччень хочеццца газобетон,то делайте ЖБ скелет,и на него упирайте/заполняйте что и как хотите!!Не забывайте,что это Ваш дом и Вам там жить... Извините,что не ответил Вам по теме,что Остапа понесло...уже на этом прекрасном форуме про то,что вы спрашиваете,написано переписано....и не только на этом... П.С.Только что в соседней теме человек кинул ссылку на другой форум vashdom.tut.by/forum/index.php?topic=15388.0 Змінено 30 березня 2010 користувачем Крышник 8 Посилання на коментар Поділитися на інших сайтах More sharing options...
Indie Опубліковано: 30 березня 2010 Автор Поділитись Опубліковано: 30 березня 2010 Нет, ну нельзя же так, в самом деле. И на форуме полно этой информации. И на других сайтах. Зайдите хотя бы на xella.ua (ru,pl). Спасибо, я знаю !! Изучил стройку InSan, Игорь М, Архитектор, есть и брошуры/видео по хелле/ютонгу, но у всех вроде (по памяти) мансандры, а у меня ее нет и выгонять 3 ряда блоков после 2 этажа я не хочу !! Поругать Вы успели !! Теперь, надеюсь, вознаградите меня ответом на мой вопрос !!!!!!!!!!!! Если Вы зашли в эту тему, то надеюсь заранее знали ответ на вопрос или зачем надо было сорить ?? Посилання на коментар Поділитися на інших сайтах More sharing options...
Indie Опубліковано: 30 березня 2010 Автор Поділитись Опубліковано: 30 березня 2010 Моё имхО:не стройте дом из газобетона!!!(модерам,возможно,надо перенести эту тему в другой раздел??...наболело) Из общения в жизни,так и на форуме напрашиваются выводы....все профессиональные строители разного профиля,регулярно общаюсь,и те застройщики,у кого проблемы вылезли с газоблоком,говорят не надо строить из ГБ...а те кто продаёт ГБ и неспециалисты/застройщики,говорят:"стройте,вот такой то человек/я построил,и клёво ему в газоблоке,дёшево,стоит уже пять лет,тепло и мухи не кусают"..не у всех есть силы признаться,что он ерунду сделал,вот и продолжает отстаивать свой промах...специалисты-строители злые(и я тоже очень злой),потому,что говорят,НЕ ТО,что хочет слышать заказчик,а реалии из практики/опыта/теории....я уже полтора года учавствую в форуме,и каждую неделю как минимум два-три раза появляются темы про проблемы с газоблоком(также пенобетоном,термодомом,"паротермом" и подобной хренью) и про то как делать(вчера последняя тема,как делать армпояс/перекрытия в доме из ГБ.....позавчера другая,как делать,люди помогите.....почитайте,поиск рулит)... ...про то,как треснуло под окнами,трещина на фронтоне,стене,вывалился угол и пр. в доме из кирпича нет!!Почему????? А патамушо!!!!ГБ это заполнитель,им заполняют несущую конструкцию из железобетона(возможно полнотелого кирпича)....но это сложности по отливке колонн и армпоясов,далее утепление мостиков холода в несущих конструкциях... .....поэтому продавцы ГБ,что бы втюхать свою продукцию написали,что:до трёх этажей можно строить из ГБ как несущим материалом,армпояса на часть ширины стены и пр. несуразицы,что я лично считаю преступлением с их стороны...и благодарные покупатели побежали покупать... ....кто был в Севастополе,на ЮБК,в Крыму,обратил внимание,что там большинство домов из ракушки(традиционный для Крыма материал,по физ.-тех. свойствам подобный ГБ) строят со скелетом из ЖБ,почему??? патамушо там большая вероятность сейсмоактивности,а у нас нет???я помню в начале 70-х три балла...если у нас,ТТТ,тряхнёт,то выдержит ли несущая стена из хрупкого ГБ или "паротерма"???? Самонесущими стенами являются: -кирпич полнотелый; -железобетон(керамзитобетон армированный,"термодом" пенопластовый армированный,шлакобетон армированный и подобное); -камень(бут,известняк белый(типа инкерманского),гранит,базальт,мрамор :D ); -дерево(сруб из бруса,кругляка). Всё остальное заполнитель стены из каркаса,выполненного из ЖБ,металла,деревянного бруса и подобного.... Если уже оччень хочеццца газобетон,то делайте ЖБ скелет,и на него упирайте/заполняйте что и как хотите!!Не забывайте,что это Ваш дом и Вам там жить... Извините,что не ответил Вам по теме,что Остапа понесло...уже на этом прекрасном форуме про то,что вы спрашиваете,написано переписано....и не только на этом... П.С.Только что в соседней теме человек кинул ссылку на другой форум vashdom.tut.by/forum/index.php?topic=15388.0 75% строителей хвалят кирпич, потому что с другим материалом не работали, а то и в глаза не видели !! Ясно, что газобетон есть несущий, есть как заполнитель !! Вспомните сколько Вы в жизни видели косяковые дома из кирпича, а сколько из газобетона Думаю на эту тему могут говорить только люди, которые построили и то, и то !! А наши с Вами мнения базируются на 90% теории !! Если построить дом правильно, по технологии, под присмотром, то с любым материалом будет замечательный результат !! Между прочим дом из "термодом" пенопластовый армированный у нас недавно рухнул на ровном месте (на весь город прогремел, Полтавская область, город кину в личку) !! По Вашим словам это самонесущие стены Думаю проблема во всех стройках это технология и ее выполнение, а не материал !! А насчет сообщений: скажем, за кирпич пишут меньше - значит он лучше !! За шифер тоже пишут меньше, чем за битумку или металлочерепицу - значит шифер тоже лучше !! Это не показатель, а "солдеповский синдром" (зачем ездить на коробке автомат, если 40 лет проездил на механике и нечего лучше быть не может) !! Много раз наталкивался на Ваши сообщения !! Считаю Вас хорошим специалистом по крышам, поэтому если Вы делали крыши на газобетоне и все-таки ответите в этой теме, буду очень Вам благодарен !! 2 Посилання на коментар Поділитися на інших сайтах More sharing options...
Крышник Опубліковано: 30 березня 2010 Поділитись Опубліковано: 30 березня 2010 75% строителей хвалят кирпич, потому что с другим материалом не работали, а то и в глаза не видели !! может там где Вы живёте и мало из него строят,а в Киевской области каждый третий дом и уже давноЯсно, что газобетон есть несущий, есть как заполнитель !! Газобетон не бывает несущим,только заполнительВспомните сколько Вы в жизни видели косяковые дома из кирпича, а сколько из газобетона Думаю на эту тему могут говорить только люди, которые построили и то, и то !! А наши с Вами мнения базируются на 90% теории !! не знаю как Ваше,но моё мнение базируется на 100% практике,регулярно езжу на консультации на треснувшие дома из ГБЕсли построить дом правильно, по технологии, под присмотром, то с любым материалом будет замечательный результат !! Согласен на все 100%Между прочим дом из "термодом" пенопластовый армированный у нас недавно рухнул на ровном месте (на весь город прогремел, Полтавская область, город кину в личку) !! По Вашим словам это самонесущие стены так построили значит,рухнувший один дом из ЖБ это исключениеДумаю проблема во всех стройках это технология и ее выполнение, а не материал !! А насчет сообщений: скажем, за кирпич пишут меньше - значит он лучше !! Да,лучшеЗа шифер тоже пишут меньше, чем за битумку или металлочерепицу - значит шифер тоже лучше !! Да,лучше!Это не показатель, а "солдеповский синдром" (зачем ездить на коробке автомат, если 40 лет проездил на механике и нечего лучше быть не может) !! Строительство больше приветствует классику чем инновации как в автостроении,уж очень консервативный бизнес,если ошибка,то на голову может рухнуть Много раз наталкивался на Ваши сообщения !! Считаю Вас хорошим специалистом по крышам, поэтому если Вы делали крыши на газобетоне и все-таки ответите в этой теме, буду очень Вам благодарен !! Мерси за комплеман!Крыши на газобетоне делаем регулярно,см альбомы. Красные вставки мои. Вчера отвечал в соседней теме на подобный вопрос,можете посмотреть мои сообщения за последний год.Можем встретится,мы прочитаем Вам лекцию,порисуем,ответим на вопросы. Мне доказывать ничего не надо,это Ваш дом и из чего он будет мне в общем то всё равно,но как неравнодушный человек предупреждаю людей,но они рядами продолжают пополнять кассу производителей ГБ и пр... Посилання на коментар Поділитися на інших сайтах More sharing options...
MWer Опубліковано: 30 березня 2010 Поділитись Опубліковано: 30 березня 2010 Показательный вопрос... Ответ неоднозначный. Например, если стропильная система будет создавать значительный распор на стены, лучше если их небудет (распор будет передаваться наперекрытие), или их конструкция гарантированно будет его воспринимать. То есть конструкция в системе: мансардная стенка, армопояс по ее верху, связь с перекрытием, включит в себя еще и перекрытие. Можно ограничится только армопоясом по верху стенки, если его ширина, длинна и возможность завести его на поперечные стены, позволяют это. Если стропильная система не будет создавать распора, или он будет незначителен, требования к армопоясу можно уменьшить, в основном его функция будет удержание, связь стен и крыши. Можно сформировать стенки мансарды из деревянных элементов каркаса, например применяя схему стропил в виде трехшарнирной рамы. Общий смысл в следующем: дом сначала должен родиться в голове проектировщика, одновременно во всех взаимосвязях его частей. Это идеал. А решений масса, они зависят от планировки, отделки, назначения помещений и много еще чего. 3 Посилання на коментар Поділитися на інших сайтах More sharing options...
Letec Опубліковано: 30 березня 2010 Поділитись Опубліковано: 30 березня 2010 Моё имхО:не стройте дом из газобетона!!!(модерам,возможно,надо перенести эту тему в другой раздел??...наболело) Из общения в жизни,так и на форуме напрашиваются выводы....все профессиональные строители разного профиля,регулярно общаюсь,и те застройщики,у кого проблемы вылезли с газоблоком,говорят не надо строить из ГБ...а те кто продаёт ГБ и неспециалисты/застройщики,говорят:"стройте,вот такой то человек/я построил,и клёво ему в газоблоке,дёшево,стоит уже пять лет,тепло и мухи не кусают"..не у всех есть силы признаться,что он ерунду сделал,вот и продолжает отстаивать свой промах...специалисты-строители злые(и я тоже очень злой),потому,что говорят,НЕ ТО,что хочет слышать заказчик,а реалии из практики/опыта/теории....я уже полтора года учавствую в форуме,и каждую неделю как минимум два-три раза появляются темы про проблемы с газоблоком(также пенобетоном,термодомом,"паротермом" и подобной хренью) и про то как делать(вчера последняя тема,как делать армпояс/перекрытия в доме из ГБ.....позавчера другая,как делать,люди помогите.....почитайте,поиск рулит)... ...про то,как треснуло под окнами,трещина на фронтоне,стене,вывалился угол и пр. в доме из кирпича нет!!Почему????? А патамушо!!!!ГБ это заполнитель,им заполняют несущую конструкцию из железобетона(возможно полнотелого кирпича)....но это сложности по отливке колонн и армпоясов,далее утепление мостиков холода в несущих конструкциях... .....поэтому продавцы ГБ,что бы втюхать свою продукцию написали,что:до трёх этажей можно строить из ГБ как несущим материалом,армпояса на часть ширины стены и пр. несуразицы,что я лично считаю преступлением с их стороны...и благодарные покупатели побежали покупать... ....кто был в Севастополе,на ЮБК,в Крыму,обратил внимание,что там большинство домов из ракушки(традиционный для Крыма материал,по физ.-тех. свойствам подобный ГБ) строят со скелетом из ЖБ,почему??? патамушо там большая вероятность сейсмоактивности,а у нас нет???я помню в начале 70-х три балла...если у нас,ТТТ,тряхнёт,то выдержит ли несущая стена из хрупкого ГБ или "паротерма"???? Если уже оччень хочеццца газобетон,то делайте ЖБ скелет,и на него упирайте/заполняйте что и как хотите!!Не забывайте,что это Ваш дом и Вам там жить... Извините,что не ответил Вам по теме,что Остапа понесло...уже на этом прекрасном форуме про то,что вы спрашиваете,написано переписано....и не только на этом... Как-то резко категорично,небось, надоело видеть мастеру чужие косяки.ИМХО,проблем с качественным стройматериалом,в том числе сейчас на Украине - нет.Так в чем же проблема дома из газобетона?САМОСТРОЙ,Стройка на свой страх и риск,сделал,а потом спросил как правильно было или нет. Все начинается с момента фундамента-нет инфы о нем ,кроме сведений от соседа,полученых им от других соседей.Ошибка. Непросчитаный ни начто фундамент.Ошибка. Толщина стен выбрана после прочтения форума,вне зависимости от региона,марки газобетона.Ошибка. Работа по укладке не соблюдая нормы предписаные производителем.Ошибка. Самовольная перепланировка в процессе строительства.Ошибка. Никаких проектов,расчетов-все сплошной експеримент.Ошибка. Работу выполнили супер мастера на все руки с вокзала (окружной),которые этот материал в руках не держали до этого.Ошибка. Итог-сумма всех ошибок-авария или катастрофа(в зависимости от последствий). Сам по себе материал как и другой материал,со своими плюсами и минусами,не более.Немцы не глупый народ,у них из него несущие стены строят,XELLA-их фирмочка,там ерунду тиражить десятилетиями недадут. Р.S.Купив скрипку Страдивари я,лично,вальсы ШУберта не сыграю,а выпускник муз.школы на скрипке Черниговской муз.фабрики-вполне.Не в инструменте дело. 3 Посилання на коментар Поділитися на інших сайтах More sharing options...
VillaDeLux (ex Акро) Опубліковано: 30 березня 2010 Поділитись Опубліковано: 30 березня 2010 Где крепить шпильки, в венец или надо отдельный армопояс, или что ?? однозначно в поясе. Как быть с мауэрлатом, он должен быть на уровне с перекрытием или на n см над ним ?? Однозначно на этот вопрос ответить нельзя. можно сделать по разному. всё зависит от изначальных эскизов дома и формы стропильной системы, от точек опоры стропилки и т.д. Буду очень благодарен за фото и схемы !! Вот тут посмотрите, если поможет. По поводу газобетона лично у меня фобий нет. Вполне хороший материал. Но себе я строил из ракушки (патамушо Крым). В любом случае, много решает соблюдение технологий. Indie, Вы дали маловато исходящей информации. Покажите эскизы, распишите габариты и т.д. А потом уже и спрашивайте: пойдёт или нет? 1 Посилання на коментар Поділитися на інших сайтах More sharing options...
Igor_M Опубліковано: 30 березня 2010 Поділитись Опубліковано: 30 березня 2010 Собираюсь строить дом из газобетона !! Все понятно, кроме крыши !! Где крепить шпильки, в венец или надо отдельный армопояс, или что ?? Чет не пойму - я полагал, что венец это и есть армопояс... Что вы вкладываете в эти два разных термина? Как быть с мауэрлатом, он должен быть на уровне с перекрытием или на n см над ним ?? Я сколько проектов смотрел - мауэрлат всегда выше. Опять же венец все равно нужно делать, ну и поднять хотя бы на 30см, чтобы можно было в случае чего подобраться... Обсмотрел-обчитал уйму информации, но так до конца и не понял Буду очень благодарен за фото и схемы !! А что, вы крышу уже завтра начинаете? Если нет, то до того времени еще обсмотритесь и обчитаетесь так, что ой-ой-ой... Посилання на коментар Поділитися на інших сайтах More sharing options...
Indie Опубліковано: 30 березня 2010 Автор Поділитись Опубліковано: 30 березня 2010 Общий смысл в следующем: дом сначала должен родиться в голове проектировщика, одновременно во всех взаимосвязях его частей. Это идеал. Этого я и хочу !! Спасибо ... Посилання на коментар Поділитися на інших сайтах More sharing options...
Indie Опубліковано: 30 березня 2010 Автор Поділитись Опубліковано: 30 березня 2010 Как-то резко категорично,небось, надоело видеть мастеру чужие косяки.ИМХО,проблем с качественным стройматериалом,в том числе сейчас на Украине - нет.Так в чем же проблема дома из газобетона?САМОСТРОЙ,Стройка на свой страх и риск,сделал,а потом спросил как правильно было или нет. Все начинается с момента фундамента-нет инфы о нем ,кроме сведений от соседа,полученых им от других соседей.Ошибка. Непросчитаный ни начто фундамент.Ошибка. Толщина стен выбрана после прочтения форума,вне зависимости от региона,марки газобетона.Ошибка. Работа по укладке не соблюдая нормы предписаные производителем.Ошибка. Самовольная перепланировка в процессе строительства.Ошибка. Никаких проектов,расчетов-все сплошной експеримент.Ошибка. Работу выполнили супер мастера на все руки с вокзала (окружной),которые этот материал в руках не держали до этого.Ошибка. Итог-сумма всех ошибок-авария или катастрофа(в зависимости от последствий). Сам по себе материал как и другой материал,со своими плюсами и минусами,не более.Немцы не глупый народ,у них из него несущие стены строят,XELLA-их фирмочка,там ерунду тиражить десятилетиями недадут. Р.S.Купив скрипку Страдивари я,лично,вальсы ШУберта не сыграю,а выпускник муз.школы на скрипке Черниговской муз.фабрики-вполне.Не в инструменте дело. +1 !!!!!!!!!!!!!!!!!!! Посилання на коментар Поділитися на інших сайтах More sharing options...
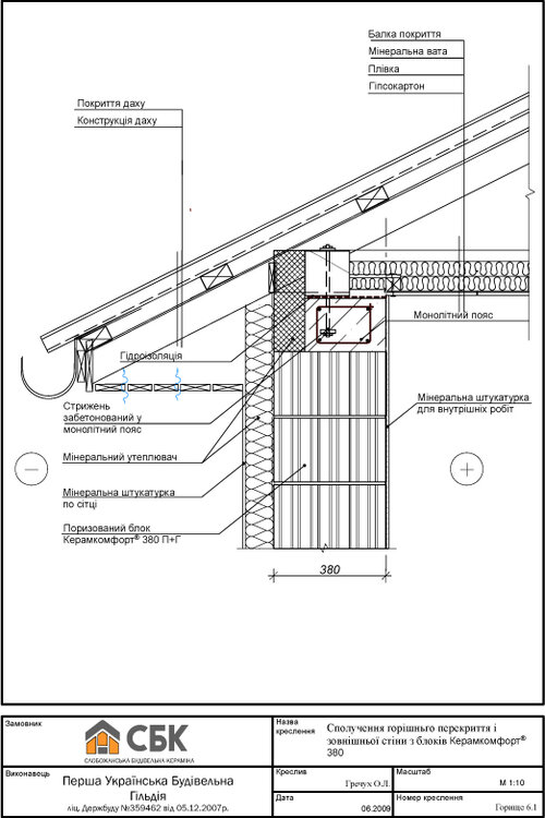
Letec Опубліковано: 30 березня 2010 Поділитись Опубліковано: 30 березня 2010 Думаю будет наглядно 3 Посилання на коментар Поділитися на інших сайтах More sharing options...
Indie Опубліковано: 30 березня 2010 Автор Поділитись Опубліковано: 30 березня 2010 однозначно в поясе. Однозначно на этот вопрос ответить нельзя. можно сделать по разному. всё зависит от изначальных эскизов дома и формы стропильной системы, от точек опоры стропилки и т.д. Вот тут посмотрите, если поможет. По поводу газобетона лично у меня фобий нет. Вполне хороший материал. Но себе я строил из ракушки (патамушо Крым). В любом случае, много решает соблюдение технологий. Indie, Вы дали маловато исходящей информации. Покажите эскизы, распишите габариты и т.д. А потом уже и спрашивайте: пойдёт или нет? Извините, что мало информации, но Ваш ответ (+схемы) для меня относительно достаточен, Спасибо !!! Посилання на коментар Поділитися на інших сайтах More sharing options...
Indie Опубліковано: 30 березня 2010 Автор Поділитись Опубліковано: 30 березня 2010 А что, вы крышу уже завтра начинаете? Если нет, то до того времени еще обсмотритесь и обчитаетесь так, что ой-ой-ой... Спасибо !! Ответ - сообщении в 13:03 !! Посилання на коментар Поділитися на інших сайтах More sharing options...
Indie Опубліковано: 30 березня 2010 Автор Поділитись Опубліковано: 30 березня 2010 Думаю будет наглядно Огромное спасибо !! Больше вопросов нет !! Посилання на коментар Поділитися на інших сайтах More sharing options...
Indie Опубліковано: 30 березня 2010 Автор Поділитись Опубліковано: 30 березня 2010 СПАСИБО всем, кто участвовал в теме, предоставляя требующую информацию и доп. материалы !! Для себя разобрался и думаю не одному человеку эта тема еще поможет !! Посилання на коментар Поділитися на інших сайтах More sharing options...
Крышник Опубліковано: 30 березня 2010 Поділитись Опубліковано: 30 березня 2010 Думаю будет наглядно Схема,как делать нельзя....армпояс должен быть на всю ширину стены!!!! Посилання на коментар Поділитися на інших сайтах More sharing options...
Владим61 Опубліковано: 30 березня 2010 Поділитись Опубліковано: 30 березня 2010 Схема,как делать нельзя....армпояс должен быть на всю ширину стены!!!! Уважаемій Крышник, выходит все конструкторы Кселлы сплошные бестолочи? Что то тут не так. Обоснуйте пожалуйста свою точку зрения. Посилання на коментар Поділитися на інших сайтах More sharing options...
Letec Опубліковано: 30 березня 2010 Поділитись Опубліковано: 30 березня 2010 Схема,как делать нельзя....армпояс должен быть на всю ширину стены!!!! Вы какой-то категоричный.Принимаю,что решения могут быть разными,готов посмотреть Ваши варианты. Орентируюсь на книгу Йожеф Косо "Крыши и кровельные работы"+сайт АЭРОК док "кровля 4.3.pdf" Картинки превышают размер разрешенного объема,выставить не могу.Могу попробовать выслать в мыло,если интересно. Посилання на коментар Поділитися на інших сайтах More sharing options...
Indie Опубліковано: 30 березня 2010 Автор Поділитись Опубліковано: 30 березня 2010 Уважаемій Крышник, выходит все конструкторы Кселлы сплошные бестолочи? Что то тут не так. Обоснуйте пожалуйста свою точку зрения. Получается не только Кселлы, а и СБК Посилання на коментар Поділитися на інших сайтах More sharing options...
S.A.Y. Опубліковано: 30 березня 2010 Поділитись Опубліковано: 30 березня 2010 Думаю будет наглядно Ващет, вопрос был о газоблоке. Вы дали картинки с керамоблоком. Так уж и нет разницы? ;) Посилання на коментар Поділитися на інших сайтах More sharing options...
MWer Опубліковано: 30 березня 2010 Поділитись Опубліковано: 30 березня 2010 Газобетон, материал очень компромисный для нашего климата. Или теплоизоляция не дотягивает до нормы, из - за высокой плотности надежного конструкционно теплоизоляционного камня, то прочность на грани фола в минимально разрешимых марках конструкционно-теплоизоляционного. Или вобще закрытие глаз на нормы и применение Д400 в несущих конструкциях. Вот как еще недавно было? Минимально допустимая плотность ячеистого бетона для несущих стен в сельском строительстве - 900 кг/м3. В капитальном - не менее 1100. Сейчас несущие от Д500. Другое дело, например Германия, где такое строительство весьма распостранено. Отопительный сезон, минимум. Стена от конденсата намокнуть не успевает. Значит на повышенную паропроницаемость и гигроскопичность можно закрыть глаза. Морозов, раз в десять лет (не везде конечно, но не везде их и строят), значит на низкую морозостойкость можно тоже не обращать внимания. Учитывая норму делать деревянные перекрытия и распостраненную схему этаж плюс мансарда, с поясом можно не сильно заморачиваться а стропила увязать с деревянным перекрытием. И плотность не так категорична, ведь стену меньше 375 мало кто делает. Хуже нашим конструкторам на службе газобетона, им приходиться постоянно искать компромис (а куда им деваться?). Не исключение и армопояс не на всю ширину стенки. Так что я поддерживаю Крышника, хоть и не столь категорично. 1 Посилання на коментар Поділитися на інших сайтах More sharing options...
Igor_M Опубліковано: 30 березня 2010 Поділитись Опубліковано: 30 березня 2010 Минимально допустимая плотность ячеистого бетона для несущих стен в сельском строительстве - 900 кг/м3. В капитальном - не менее 1100. Сейчас несущие от Д500. .............................. Не исключение и армопояс не на всю ширину стенки. Так что я поддерживаю Крышника, хоть и не столь категорично. Дык по старым нормативам (действующим!!!) писано про плотность, а надо бы по прочности смотреть... Если В2 и выше, то 2 этажа не проблема (в России м Беларуси нормативная база уже переписана частично под прочность, а не плотность). ............................. Армопояс я так полагал раньше расчитывается исходя из конструктивной потребности... при чем тут на всю ширину? А если ширина стенки 60см, то что, и армопояс тоже на 60см? Если нужно (по расчету) ширина 250, высота 300, то так и делаем... 1 Посилання на коментар Поділитися на інших сайтах More sharing options...
MWer Опубліковано: 30 березня 2010 Поділитись Опубліковано: 30 березня 2010 ............................. Армопояс я так полагал раньше расчитывается исходя из конструктивной потребности... при чем тут на всю ширину? А если ширина стенки 60см, то что, и армопояс тоже на 60см? Если нужно (по расчету) ширина 250, высота 300, то так и делаем... Само собой, по прочности. Как геометрические характеристики сечений подбираются? Сначала по рекомендуемым соотношениям "высота/ширина/длинна". Для балки длинной 10 м, какую высоту сечения выберете для первоначальных прикидок, 25 см или 60 см? Посилання на коментар Поділитися на інших сайтах More sharing options...
Рекомендовані повідомлення
Створіть акаунт або увійдіть у нього для коментування
Ви маєте бути користувачем, щоб залишити коментар
Створити акаунт
Зареєструйтеся для отримання акаунта. Це просто!
Зареєструвати акаунтУвійти
Вже зареєстровані? Увійдіть тут.
Увійти зараз