Зигзаг Удачи Опубліковано: 16 квітня 2010 Поділитись Опубліковано: 16 квітня 2010 Сижу разбираюсь и никак не могу принять решение как лучше сделать лестницу. Посоветуйте пожалуйста какой вариант выбрать: 1) Сделать лестницу железобетонной (металлокаркас+заливка) и потом обшить деревом 2) Сделать бетонной только промежуточную площадку, а сами две части лестницы сделать полностью из дерева Кто-то может подсказать плюсы и минусы, как экономические так и пользовательские обоих вариантов? Спасибо! Посилання на коментар Поділитися на інших сайтах More sharing options...
KosEroh Опубліковано: 16 квітня 2010 Поділитись Опубліковано: 16 квітня 2010 Плюсы ж/б: - быстрота и простота монтажа - экономия на этапе черновых работ - надежность и прочность (скрипеть точно не будет) Плюсы каркаса: - легкость конструкции, возможен монтаж без грязи - больше вариантов изготовления и отделки - сразу получаете почти отделанную конструкцию. Я для себя выбрал ж/б, потому что внутренняя отделка затягивается на длительный срок, и поставить сразу красивую лестницу, а потом носить по ней штукатурку, стяжку и пр. строительный мусор не хочется. Лестница будет отделываться в самую последнюю очередь. 1 Посилання на коментар Поділитися на інших сайтах More sharing options...
Soyka Опубліковано: 16 квітня 2010 Поділитись Опубліковано: 16 квітня 2010 Кто-то может подсказать плюсы и минусы, как экономические так и пользовательские обоих вариантов? Спасибо! Я думаю тут нужно смотреть, что у Вас под лестницей и как эта лестница впишется в общий вид. У меня бетонная, под лестницей кладовка, а сама лестница с обеих сторон обрамлена в стены. Деревянная мне не подошла. Если бы у меня была открытая лестница, то возможно я бы делала деревянную. Решайте сами. 1 Посилання на коментар Поділитися на інших сайтах More sharing options...
Зигзаг Удачи Опубліковано: 16 квітня 2010 Автор Поділитись Опубліковано: 16 квітня 2010 Я думаю тут нужно смотреть, что у Вас под лестницей и как эта лестница впишется в общий вид. У меня бетонная, под лестницей кладовка, а сама лестница с обеих сторон обрамлена в стены. Деревянная мне не подошла. Если бы у меня была открытая лестница, то возможно я бы делала деревянную. Решайте сами. В том то и дело, что на выходе и тот и другой вариант должен получится примерно одного вида, поэтому приходится напрягать извилины в этом вопросе Посилання на коментар Поділитися на інших сайтах More sharing options...
Зигзаг Удачи Опубліковано: 16 квітня 2010 Автор Поділитись Опубліковано: 16 квітня 2010 Плюсы ж/б: - быстрота и простота монтажа - экономия на этапе черновых работ - надежность и прочность (скрипеть точно не будет) Плюсы каркаса: - легкость конструкции, возможен монтаж без грязи - больше вариантов изготовления и отделки - сразу получаете почти отделанную конструкцию. Я для себя выбрал ж/б, потому что внутренняя отделка затягивается на длительный срок, и поставить сразу красивую лестницу, а потом носить по ней штукатурку, стяжку и пр. строительный мусор не хочется. Лестница будет отделываться в самую последнюю очередь. Логично.... но с другой стороны - метр подъема обшивки , как мне отвечали в рекламе 6800 грн И сама лестница с дуба - метр подъема те же деньги. Но в первом варианте есть еще затраты на каркас и заливку, которых нет во втором... Что бы лестница не убивалась при работах по второму этажу - мои строители обычно делают временную лестницу с остатков опалубки, риштовок и тп Посилання на коментар Поділитися на інших сайтах More sharing options...
KosEroh Опубліковано: 16 квітня 2010 Поділитись Опубліковано: 16 квітня 2010 но с другой стороны - метр подъема обшивки , как мне отвечали в рекламе 6800 грн И сама лестница с дуба - метр подъема те же деньги. Но в первом варианте есть еще затраты на каркас и заливку, которых нет во втором... Как-то нелогично звучит, не находите? Обшить лестницу тонкими деревянным накладками, не парясь о скрипе, напряженности дерева и пр. и сделать правильный каркас полностью из дуба - одинаково по стоимости? Не верю (с) Станиславский Посилання на коментар Поділитися на інших сайтах More sharing options...
Котяра Опубліковано: 16 квітня 2010 Поділитись Опубліковано: 16 квітня 2010 Плюсы бетонной лестницы еще: - аккумуляция тепла зимой - негорючесть Посилання на коментар Поділитися на інших сайтах More sharing options...
S.A.Y. Опубліковано: 16 квітня 2010 Поділитись Опубліковано: 16 квітня 2010 Если Вы делаете лестницу в итоге деревянной - есть смысл не заморачиваться и сделать ее по металлическому ступенчатому каркасу. Смотрится в разы лучше и изящнее: металл красится, а дерево - под лак. Проступи можно взять готовые. По этому же каркасу можно и бегать пока не установятся проступи. Посилання на коментар Поділитися на інших сайтах More sharing options...
AmateurFF Опубліковано: 16 квітня 2010 Поділитись Опубліковано: 16 квітня 2010 Плюсы бетонной лестницы еще: - аккумуляция тепла зимой ..... Она аккумулирует тепло в землю, через фундамент? Посилання на коментар Поділитися на інших сайтах More sharing options...
Levandr Опубліковано: 16 квітня 2010 Поділитись Опубліковано: 16 квітня 2010 Плюсы бетонной лестницы еще: - аккумуляция тепла зимой - негорючесть я сделал из бетона. не гремит/скрипит дешевле больше вариантов отделки (например дерево или мрамор) Посилання на коментар Поділитися на інших сайтах More sharing options...
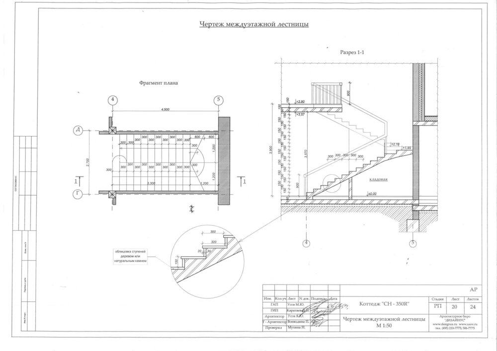
Igor_M Опубліковано: 16 квітня 2010 Поділитись Опубліковано: 16 квітня 2010 Сижу разбираюсь и никак не могу принять решение как лучше сделать лестницу. Посоветуйте пожалуйста какой вариант выбрать: 1) Сделать лестницу железобетонной (металлокаркас+заливка) и потом обшить деревом 2) Сделать бетонной только промежуточную площадку, а сами две части лестницы сделать полностью из дерева Кто-то может подсказать плюсы и минусы, как экономические так и пользовательские обоих вариантов? Спасибо! Уже несколько недель тоже сушу голову над этим. Принял для себя решение - бетонная. Когда придет время отделки, будет более понятно - чем обшивать: дерево, мрамор или еще чего... тогда же и с перилами понятнее станет... У меня есть "рацуха" (если я могу это так назвать)... Размер ступеней у вас 300х150, т.е. "стандартный советский"... Он привычный, но оптимальным назвать нельзя... угол подъема меньше 30 градусов... Теоретики лестничного дела считают оптимальным размер 290х170 (см. аттач). и здесь (ссылка устарела) Если вы посоветуетесь с архитектором, то применение данного типоразмера позволит вам избежать этих двух забежных ступенек и будет ровная поворотная площадка, т.е. лестница станет более безопасной для движения... Оговорюсь, что это как вариант... но у себя запроектировал именно так...Конструкция лестниц.doc 1 Посилання на коментар Поділитися на інших сайтах More sharing options...
Зигзаг Удачи Опубліковано: 16 квітня 2010 Автор Поділитись Опубліковано: 16 квітня 2010 Как-то нелогично звучит, не находите? Обшить лестницу тонкими деревянным накладками, не парясь о скрипе, напряженности дерева и пр. и сделать правильный каркас полностью из дуба - одинаково по стоимости? Не верю (с) Станиславский Позвоню-ка спрошу у тех Житомирских мастеров, что уже как-то делали мне лестницу... Посилання на коментар Поділитися на інших сайтах More sharing options...
Зигзаг Удачи Опубліковано: 16 квітня 2010 Автор Поділитись Опубліковано: 16 квітня 2010 Позвоню-ка спрошу у тех Житомирских мастеров, что уже как-то делали мне лестницу... Пообщался.... резюме мастеров: ввиду конструктивных решений согласно которых: 1) лестница одним краем крепится жестко к стене 2) длина частей лестницы сравнительно небольшая 3) нижняя часть лестницы имеет дополнительную опору в виде стены кладовки вполне достаточно делать лестницу только из дерева... Жду от них финансовые расчеты по такой лестнице... Посилання на коментар Поділитися на інших сайтах More sharing options...
Зигзаг Удачи Опубліковано: 16 квітня 2010 Автор Поділитись Опубліковано: 16 квітня 2010 У меня есть "рацуха" (если я могу это так назвать)... Размер ступеней у вас 300х150, т.е. "стандартный советский"... Он привычный, но оптимальным назвать нельзя... угол подъема меньше 30 градусов... Теоретики лестничного дела считают оптимальным размер 290х170 (см. аттач). и здесь (ссылка устарела) Если вы посоветуетесь с архитектором, то применение данного типоразмера позволит вам избежать этих двух забежных ступенек и будет ровная поворотная площадка, т.е. лестница станет более безопасной для движения... Оговорюсь, что это как вариант... но у себя запроектировал именно так... Да, думаю что примерно к такому размеру я и приду, так как действительно хочу отказаться от забежных ступеней... Посилання на коментар Поділитися на інших сайтах More sharing options...
Татьяна5 Опубліковано: 16 квітня 2010 Поділитись Опубліковано: 16 квітня 2010 вполне достаточно делать лестницу только из дерева... в смысле полностью деревянная на деревянном каркасе? имхо, есть моменты - скрип будет, как не старайся, года через 3-4 он появляется, сильно активно эксплуатируемую лестницу не очень рационально делать так, опять же имхо. Каркас надежнее, мне очень понравился вариант "ажурного" вареного каркаса с ковкой и только сама ступень обшита деревом, подступенника нет, могу даже фото поискать, было где-то у меня такое Посилання на коментар Поділитися на інших сайтах More sharing options...
Бес Опубліковано: 17 квітня 2010 Поділитись Опубліковано: 17 квітня 2010 В том то и дело, что на выходе и тот и другой вариант должен получится примерно одного вида, поэтому приходится напрягать извилины в этом вопросе Можно и заказать и красивую бетонную лестницу, правда, по цене не знаю во что выльется :D Самому лить такое вряд-ли получится... (ссылка на изображение устарела) (ссылка на изображение устарела) www.scala.com.ua/ Посилання на коментар Поділитися на інших сайтах More sharing options...
Зигзаг Удачи Опубліковано: 17 квітня 2010 Автор Поділитись Опубліковано: 17 квітня 2010 в смысле полностью деревянная на деревянном каркасе? имхо, есть моменты - скрип будет, как не старайся, года через 3-4 он появляется, сильно активно эксплуатируемую лестницу не очень рационально делать так, опять же имхо. Каркас надежнее, мне очень понравился вариант "ажурного" вареного каркаса с ковкой и только сама ступень обшита деревом, подступенника нет, могу даже фото поискать, было где-то у меня такое Хм... то, что я представляю - это две несущие по бокам к которым крепятся ступени и подступени... Металл мне не нравится в интерьере...хочется спокойных пастельных тонов... Посилання на коментар Поділитися на інших сайтах More sharing options...
Зигзаг Удачи Опубліковано: 17 квітня 2010 Автор Поділитись Опубліковано: 17 квітня 2010 Можно и заказать и красивую бетонную лестницу, правда, по цене не знаю во что выльется :D Красивые лестницы... но на определенный дизайн Я кстати к Вам все собираюсь заехать посмотреть подоконники Где-то видел, что это в районе Народного ополчения? Посилання на коментар Поділитися на інших сайтах More sharing options...
Бес Опубліковано: 17 квітня 2010 Поділитись Опубліковано: 17 квітня 2010 Красивые лестницы... но на определенный дизайн Я кстати к Вам все собираюсь заехать посмотреть подоконники Где-то видел, что это в районе Народного ополчения? Все решения - под какой-то дизайн ;) Ага, за музеем Авиации, через забор на самолетики смотрим Посилання на коментар Поділитися на інших сайтах More sharing options...
HUGO BOSS Опубліковано: 17 квітня 2010 Поділитись Опубліковано: 17 квітня 2010 Главное ,если надумаете делать бетонную лестницу проследить,чтоб строители залили идеальную поверхность ступени и обязательно точные размеры, а то они любят говорить,что мебельщики все закроют и будет ок. С первой лестницой много намучились,а вторая залита была идеально.В итоге все получится красиво.Удачи 1 Посилання на коментар Поділитися на інших сайтах More sharing options...
valerazaz Опубліковано: 17 квітня 2010 Поділитись Опубліковано: 17 квітня 2010 скажу от себя я давно уже занимаюсь лесницами полностю из дерева,делали разным состоятельным людям ,и за всё время нариканий на скрип и типа лесница розваливается не было, каркаси с бетона и метала ето лишние затрати для закажчика,вся красота лесницы зависит в многом от точно выставленого основания,как фундамент для дома,я обшывал деревом лесницы с бетона и метала,и скажу что качество сборки страдает от кривизны и погрешности бетонного и металичного каркаса,также у многих спецов плоха техноглогия крепежа балясин,и поручень и шатается в разные стороны. общывка каркаса лесниц с бетона и метала выходит закажчику дороже чем полностю с дерева, бетонный и металический каркас особенно при общывке деревом не спасает лесницу от скрипа ,и не придает жосткость ,только добавляет цену к леснице,и гемор мастерам которые обшывают. Посилання на коментар Поділитися на інших сайтах More sharing options...
Sergg Опубліковано: 17 квітня 2010 Поділитись Опубліковано: 17 квітня 2010 Узнайте ответ на вопрос у профи, посмотрите на сайте svarnoy.dp.ua от Нашей лестницы которую парни забабахали у многих слюнки потекли Посилання на коментар Поділитися на інших сайтах More sharing options...
HUGO BOSS Опубліковано: 17 квітня 2010 Поділитись Опубліковано: 17 квітня 2010 и гемор мастерам которые обшывают. с этим согласен, а от скрипа ступеней на бетонном основании очень легко избавиться Посилання на коментар Поділитися на інших сайтах More sharing options...
HUGO BOSS Опубліковано: 17 квітня 2010 Поділитись Опубліковано: 17 квітня 2010 Узнайте ответ на вопрос у профи, посмотрите на сайте svarnoy.dp.ua от Нашей лестницы которую парни забабахали у многих слюнки потекли Металлический каркас красиво смотрится, когда лестниц без подступенников. Обшить деревом легче бетонную. А по цене деревянная тетива или косоуры намного дешевле. Это мое ИМХО Посилання на коментар Поділитися на інших сайтах More sharing options...
Татьяна5 Опубліковано: 17 квітня 2010 Поділитись Опубліковано: 17 квітня 2010 Обшить деревом легче бетонную. неа, сложнее, но это так, ремарка по цене - все в дереве будет дешевле чем с каркасами, бетонами и тп, это очевидно. Если лестница условно простой формы и скрип не пугает - ну так о чем думать . Посилання на коментар Поділитися на інших сайтах More sharing options...
Рекомендовані повідомлення
Створіть акаунт або увійдіть у нього для коментування
Ви маєте бути користувачем, щоб залишити коментар
Створити акаунт
Зареєструйтеся для отримання акаунта. Це просто!
Зареєструвати акаунтУвійти
Вже зареєстровані? Увійдіть тут.
Увійти зараз