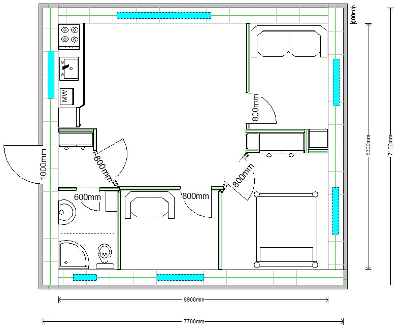
Alex-SPD Опубліковано: 16 червня 2010 Поділитись Опубліковано: 16 червня 2010 Исходные данные: есть дачный участок 4 сотки. На участке расположены фургончик "кунг" служащий "спальней" (2 кровати, буржуйка, мелочи...), щитовой домик 4*2,5 ( он же кухня, он же гостевое спальное место). Есть скважина для питьевой воды. Перечисляю потому, что до окончания планируемой стройки разрушать - перемещать - перепланировать имеющиеся на участке перечисленные "удобства" крайне нежелательно. Т.е. хочу на время строительства сохранить участок пригодным для посещения семьей с детишками и отдыха на свежем воздухе)) После долгого изучения форума, раздумий и.т.д. " родилась" планировка будущего строения. Материал стен - газобетон, помещение "свободной планировки(все внутренние стены - гипсокартон) Остальное - в процессе "рождения". Прошу советов, конструктивной критики, указаний на ошибки и просчеты... А, быть может, и похвалы за оригинальность Изображения с планировкой участка и предпологаемого домика прилагаются ! Посилання на коментар Поділитися на інших сайтах More sharing options...
Hover Опубліковано: 16 червня 2010 Поділитись Опубліковано: 16 червня 2010 На да модель строить крутить смотреть а так сказать нечего. Посилання на коментар Поділитися на інших сайтах More sharing options...
Alex-SPD Опубліковано: 16 червня 2010 Автор Поділитись Опубліковано: 16 червня 2010 На да модель строить крутить смотреть а так сказать нечего. Пока софт нужный не освоил) А с планировкой помещений, ориентацией окон по сторонам света есть мысли? Посилання на коментар Поділитися на інших сайтах More sharing options...
Телесистемы Опубліковано: 17 червня 2010 Поділитись Опубліковано: 17 червня 2010 Пока софт нужный не освоил) А с планировкой помещений, ориентацией окон по сторонам света есть мысли? есть мысль,что нет ни одного подсобного помещения, это для сезонного проживания? Посилання на коментар Поділитися на інших сайтах More sharing options...
Alex-SPD Опубліковано: 17 червня 2010 Автор Поділитись Опубліковано: 17 червня 2010 есть мысль,что нет ни одного подсобного помещения, это для сезонного проживания? А как сама задумка по планировке помещений? Нет ли "подводных камней"? Была идея - максимум функциональности при минимуме площади для семейной пары и 2 детей. Принципиально 1 этаж! Да, проживание весна-лето + пара-тройка визитов за зиму "на шашлык". Отопление - электроконвекторы и (возможно) камин. С его размещением в гостинной еще не определился, нужен совет. Позже, на месте существующих временных построек (где сейчас по плану "кунг" планируется вторая постройка - баня+гостевая комната. В этой постройке и будет также подсобное помещение. Перед входом в дом планируется терраса ( на плане её пока нет). Посилання на коментар Поділитися на інших сайтах More sharing options...
Рекомендовані повідомлення
Створіть акаунт або увійдіть у нього для коментування
Ви маєте бути користувачем, щоб залишити коментар
Створити акаунт
Зареєструйтеся для отримання акаунта. Це просто!
Зареєструвати акаунтУвійти
Вже зареєстровані? Увійдіть тут.
Увійти зараз