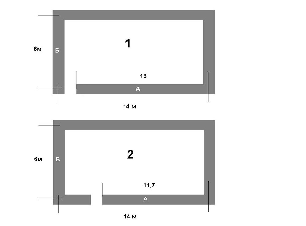
Propeller Опубліковано: 6 липня 2010 Поділитись Опубліковано: 6 липня 2010 Все. Перестаю Вас мучить. Со стеной Б понятно. Ей в случае 2 станет комфортней. А как быть со стеной А? Неужели "плечо" в 11 с лишним метров будет работать эффективней плеча в 13 метров для удержания стены от грунтовой нагрузки? Посилання на коментар Поділитися на інших сайтах More sharing options...
trianom Опубліковано: 6 липня 2010 Поділитись Опубліковано: 6 липня 2010 Этот вход-проем окажется внутри прилитого на глубину основного фундамента (обозначено синим) а то что предлагается в середину перенести-ну сильно планировку "убивает" А чуть подробнее про пристройку можно (чем перекрывается, как из нее в гараж проникать будут, ск. этажей) Посилання на коментар Поділитися на інших сайтах More sharing options...
Ulan Опубліковано: 6 липня 2010 Поділитись Опубліковано: 6 липня 2010 Все. Перестаю Вас мучить. Со стеной Б понятно. Ей в случае 2 станет комфортней. А как быть со стеной А? Неужели "плечо" в 11 с лишним метров будет работать эффективней плеча в 13 метров для удержания стены от грунтовой нагрузки? боковое давление грунта величина расчетная, если оно превышает допустимые значения для стены А, то проводятся мероприятия уменьшающие расчетную длинну, например ставятся контрфорсы (поперечные ребра), либо делается сборно монолитный фундамент. в случае дверного проема, к примеру, в этом месте будет поперечная стена лесничной площадки, которая развяжет стену подвала из плоскости Посилання на коментар Поділитися на інших сайтах More sharing options...
Propeller Опубліковано: 6 липня 2010 Поділитись Опубліковано: 6 липня 2010 Меня как-то смущает понятие боковое давление грунта именно в это ситуации (проема). 1. Пучение легко убирается обратной отсыпкой щебнем. 2. Боковая нагрузка от массы грунта растет с глубиной. Чем ближе к пяте фундамента , тем больше нагрузка. А там у пяты все намного жестче + вес почти все стены. Посилання на коментар Поділитися на інших сайтах More sharing options...
bonikn Опубліковано: 29 жовтня 2010 Автор Поділитись Опубліковано: 29 жовтня 2010 КОСЯК с ДИАГОНАЛЯМИ Договорился с замечательным товарищем(без всякого ерничества) на переделку 0-цикла после заброшенной 15 летней стройки. 3-ряда ФБС-4 на них плиты ПК42*1.5 в 2 ряда.Размер фундамента 9*9 м Т.к. под плитами кирпич пришел в негодность-решили плиты снять,соорудить армопояс высотой 25 см и вновь водрузить их назад. Почти всё сделали нормально,но когда ложили плиты уже на армопояс решили промерить диагонали и вдруг обнаружили,что не стреляет на много и чтоб исправить предлагают на лицевой стороне присверлиться,заармировать и подлить монолитом 12 см(полкирпича однако) стеночку с самой нижней точки. Вопросы такие: 1)Чей косяк(товарищ признался, что на момент возведения опалубки под армопояс не промерял диагонали) но вину спихивает на тех первых строителей которые монтировали 15 лет назад ФБС4.? 2)Можно ли было на момент монтирования опалубки армопояса-исправить огрехи на таком размере фундамента? 3)Какие ещё советы по исправлению косяка. Предлагают подливать на фасаде -говорят только здесь можно исправить.Я бы хотел чтоб на задней части . Фото и эскиз прилагается. Посилання на коментар Поділитися на інших сайтах More sharing options...
Рекомендовані повідомлення
Створіть акаунт або увійдіть у нього для коментування
Ви маєте бути користувачем, щоб залишити коментар
Створити акаунт
Зареєструйтеся для отримання акаунта. Це просто!
Зареєструвати акаунтУвійти
Вже зареєстровані? Увійдіть тут.
Увійти зараз