calipso Опубліковано: 7 липня 2010 Поділитись Опубліковано: 7 липня 2010 Нужна бригада для строительства дома - 1,5 этажа, 11 на 9 плюс гараж, газоблок (около 65 м.куб с хорошей геометрией), перекрытие деревянное по балкам, крыша металлочерепица, все коммуникации есть на участке, перестенки кирпичные, фундамент плитный уже залит, место для проживание есть (Васильков). Интересуют : - стоимость возведения коробки, армопоясов (лотковые блоки), перемычки, перестенки - стоимость перекрытия по деревянным балкам между первым и вторым этажами - стоимость работ по монтажу крыши Материалл пока не закуплен, если есть интересные предложение то в личку. Стартовать можно через неделю-две. Посилання на коментар Поділитися на інших сайтах More sharing options...
vovalla Опубліковано: 7 липня 2010 Поділитись Опубліковано: 7 липня 2010 На перспективу. Электромонтаж и электросварка. Владимир тел. 0989920740 Посилання на коментар Поділитися на інших сайтах More sharing options...
lastandr Опубліковано: 7 липня 2010 Поділитись Опубліковано: 7 липня 2010 Аналогичный дом (из каховского газоблока на клею)сейчас заканчиваем в Забирье: - стоимость возведения коробки-180грн/м3, армопоясов -40грн/мп(лотковые блоки), перемычки-60грн, перестенки кирпиччные-50грн/м2,из газоблока-40грн/м2 - стоимость перекрытия по деревянным балкам между первым и вторым этажами-укладка балок-20грн/м2,черновой пол-40грн/м2, обрешетка-20грн/м2 - стоимость работ по монтажу крыши-160грн/м2 с подшивкой свесов и водостоками Посилання на коментар Поділитися на інших сайтах More sharing options...
nlev73 Опубліковано: 7 липня 2010 Поділитись Опубліковано: 7 липня 2010 газоблок - 200гр./м3 (около 65 м.куб х 200=13 000гр.) армопоясов (лотковые блоки)- 50гр./м.п. (~40х50=2000гр.) перемычки - 50гр./шт. перестенки - 50гр./ м2 перекрытие - 50гр./м2 кровля(стропильная часть, паро-гидробарьер, утеплитель, OSB,кровля) весь пирог - 220 гр./м2 Посилання на коментар Поділитися на інших сайтах More sharing options...
burnua Опубліковано: 7 липня 2010 Поділитись Опубліковано: 7 липня 2010 Есть бригада строителей: - газоблок - 200гр./м куб; - кровельных работ металлочерепицы состовляет 150грн./м.кв. - армопояс 40-50 грн/м.п. Вася (067)-173-90-20 Посилання на коментар Поділитися на інших сайтах More sharing options...
Natikk Опубліковано: 7 липня 2010 Поділитись Опубліковано: 7 липня 2010 Мы представляем ремонтно-строительную компанию «Аврора». Выполняем любые работы – БЫСТРО, КАТЕЧЕСТВЕННО, НЕДОРОГО! Строительство домов, коттеджей «с нуля под ключ». Гипсокартон (любой сложности), отделочные работы, ремонт под ключ, офисов, квартир, утепление фасада, монтаж/демонтаж крыш, доставка строительных материалов. Тел. 096 832 26 00, (044) 455 78 87 (77), Наталия. укладка газоблока - 200 грн. укладка металлочерепици - 50 грн. Все расценки согласуются по тел. Посилання на коментар Поділитися на інших сайтах More sharing options...
calipso Опубліковано: 7 липня 2010 Автор Поділитись Опубліковано: 7 липня 2010 Наличие у исполнителей лесов, риштовок, основного инструмента и т.д. обязательно. Посилання на коментар Поділитися на інших сайтах More sharing options...
lastandr Опубліковано: 8 липня 2010 Поділитись Опубліковано: 8 липня 2010 Аналогичный дом (из каховского газоблока на клею)сейчас заканчиваем в Забирье: - стоимость возведения коробки-180грн/м3, армопоясов -40грн/мп(лотковые блоки), перемычки-60грн, перестенки кирпиччные-50грн/м2,из газоблока-40грн/м2 - стоимость перекрытия по деревянным балкам между первым и вторым этажами-укладка балок-20грн/м2,черновой пол-40грн/м2, обрешетка-20грн/м2 - стоимость работ по монтажу крыши-160грн/м2 с подшивкой свесов и водостоками P.S.Заканчиваем крышу... Посилання на коментар Поділитися на інших сайтах More sharing options...
Yosip- Опубліковано: 9 липня 2010 Поділитись Опубліковано: 9 липня 2010 Расценки в личке! Посилання на коментар Поділитися на інших сайтах More sharing options...
bigl Опубліковано: 9 липня 2010 Поділитись Опубліковано: 9 липня 2010 газоблок - 170гр./м3 армопоясов (лотковые блоки)- 35-40 гр./м.п. перемычки - 50гр./шт. перестенки - 40 гр./ м2 перекрытие - 40 гр./м2 кровля весь пирог - 160 гр./м2 Владимир 097 1482633:beer: Посилання на коментар Поділитися на інших сайтах More sharing options...
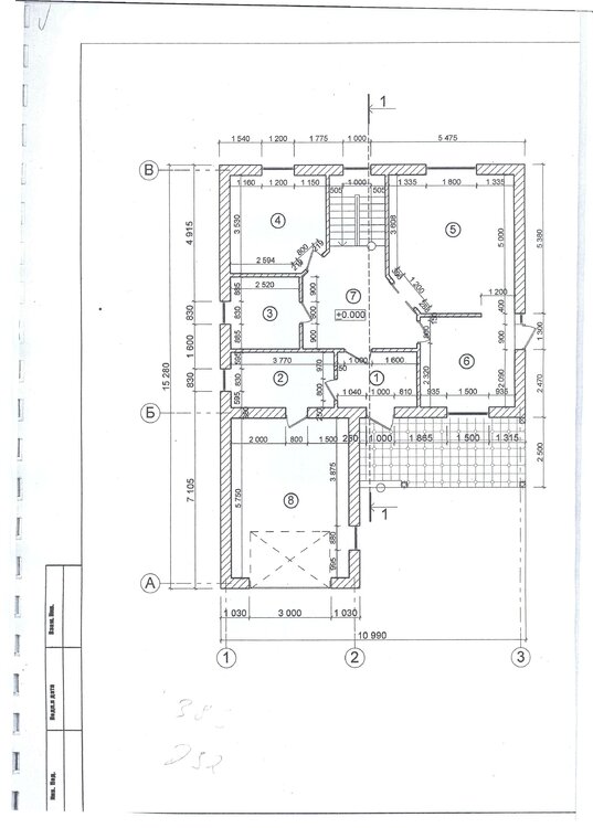
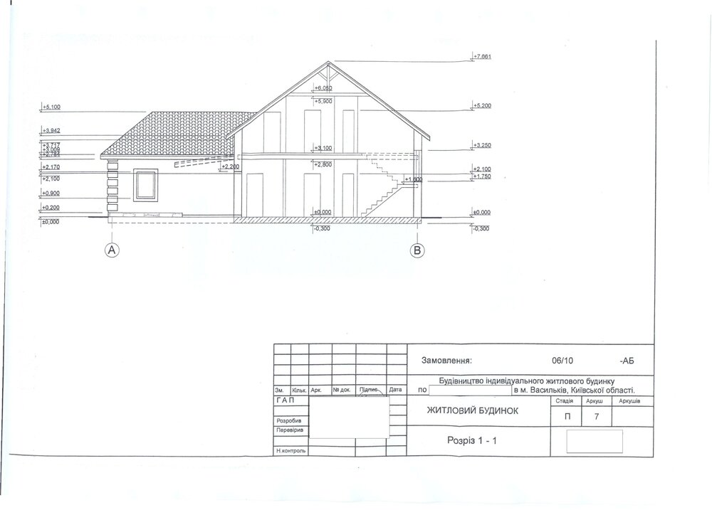
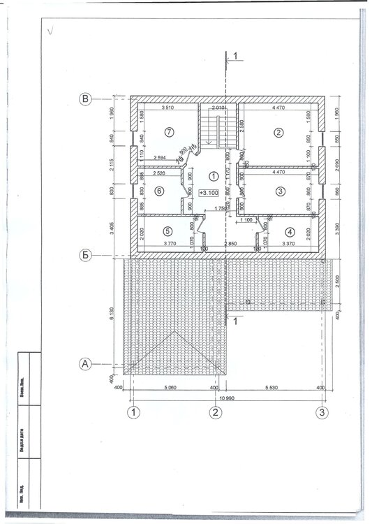
calipso Опубліковано: 10 липня 2010 Автор Поділитись Опубліковано: 10 липня 2010 Выкладываю планы дома конт. тел. 068-701-70-35 begin_of_the_skype_highlighting**************068-701-70-35******end_of_the_skype_highlighting Игорь Посилання на коментар Поділитися на інших сайтах More sharing options...
Andrey-Varshavka Опубліковано: 10 липня 2010 Поділитись Опубліковано: 10 липня 2010 Выкладываю планы дома конт. тел. 068-701-70-35 begin_of_the_skype_highlighting**************068-701-70-35******end_of_the_skype_highlighting Игорь Наш прораб уже едет к Вам. Доставим все основные строительные материалы. Дадим утеплители и сопутствующие материалы по супернизкой цене! Как раз дна из наших бригад достраивает дом в Буче. из АЭРОКА паз-гребень. Можете приехать посмотреть как будет выглядеть Ваш дом через 1 месяц Посилання на коментар Поділитися на інших сайтах More sharing options...
calipso Опубліковано: 17 липня 2010 Автор Поділитись Опубліковано: 17 липня 2010 Поиск бригады строителей продолжается. Коробка-стены-перекрытие-крыша. 068-701-70-35 Игорь Посилання на коментар Поділитися на інших сайтах More sharing options...
Andrey-Varshavka Опубліковано: 17 липня 2010 Поділитись Опубліковано: 17 липня 2010 Поиск бригады строителей продолжается. Коробка-стены-перекрытие-крыша. 068-701-70-35 Игорь Значит моя бригада с прорабом Денисом не подошла. Спасибо что хотя бы тут сообщили, а то все-таки нужно распределять фронт работ. удачи в поиске Посилання на коментар Поділитися на інших сайтах More sharing options...
calipso Опубліковано: 17 липня 2010 Автор Поділитись Опубліковано: 17 липня 2010 Значит моя бригада с прорабом Денисом не подошла. Спасибо что хотя бы тут сообщили, а то все-таки нужно распределять фронт работ. удачи в поиске[/quote Спасибо за хорошие пожелание. Да, снова ищу бригаду. К сожелению. Из всех бригад кто был у меня (12) только 2(!!!) просчитали смету. Всем бригадам/прорабам в пятницу было выслано сообщение с просьбой предоставить смету. Без четкой сметы принципиально никого нанимать не буду. Всем кто приезжал и смотрел были высланы на почту планы и проекты. Неужали так сложно сделать смету и уже говорить о конкретных цифрах и сроках. С таким подходом к работе довольно трудно расчитывать на успешную и плодотворную работу. Сам использую системный подход к любой работе, чего и всем желаю. П.С. прораб у Вас толковый. Посилання на коментар Поділитися на інших сайтах More sharing options...
Andrey-Varshavka Опубліковано: 27 липня 2010 Поділитись Опубліковано: 27 липня 2010 Значит моя бригада с прорабом Денисом не подошла. Спасибо что хотя бы тут сообщили, а то все-таки нужно распределять фронт работ. удачи в поиске[/quote Спасибо за хорошие пожелание. Да, снова ищу бригаду. К сожелению. Из всех бригад кто был у меня (12) только 2(!!!) просчитали смету. Всем бригадам/прорабам в пятницу было выслано сообщение с просьбой предоставить смету. Без четкой сметы принципиально никого нанимать не буду. Всем кто приезжал и смотрел были высланы на почту планы и проекты. Неужали так сложно сделать смету и уже говорить о конкретных цифрах и сроках. С таким подходом к работе довольно трудно расчитывать на успешную и плодотворную работу. Сам использую системный подход к любой работе, чего и всем желаю. П.С. прораб у Вас толковый. Игорь! Спасибо большое за сюрприз. Вы приехали в субботу, посмотрели на достроенный объект этой бригадой. Потом согласовали, что со вторника бригада может заежать на объект. Сообщили о том, что где-то рядом есть комната для них и т.д. В понедельник приехало еще 4 человека на этот объект и Денис в течение всего понедельника не мог Вам дозвониться. После чего он решил приехать на Ваш объект и был удивлен, что так уже работает бригада... А нельзя это было как-то мне или Денису сообщить, чтобы не привозить лишних людей в Киев??? Как то это некрасиво получается... Мы то не обеднеем, хорошо стоим на ногах. Но вот на Вас осадок остался. Задумайтесь о своем поведении Посилання на коментар Поділитися на інших сайтах More sharing options...
YuSerg Опубліковано: 27 липня 2010 Поділитись Опубліковано: 27 липня 2010 Смета - один из важнейших документов строительства. Но не все заказчики правильно ее понимают. Смета расcчитывается , исходя из собственных ресурсов строителей (наличие лесов, опалубки, инструментов, оборудования, возможности поставки материалов, наличие транспорта, расстояния до объекта. ). То есть этот документ сугубо индивидуальный для каждой бригады или компании. Если иcпользовать смету, расcчитанную одной компанией, а строить объект с помощью другой - застройщика ждет глубокое разочарование уже на первых этапах. Смета будет трещать по швам. Тем, кто уже строился с применением чужой сметы, приходилось менять бригады, как перчатки, да и строительство наверняка обошлось гораздо дороже, чем по смете. Таковы реалии сегодняшнего дня. Подтверждает такой вывод и то, что начинающим застройщикам советуют увеличить планируемую сумму на строительство минимум процентов на 20. А это неправильно. Чтобы все было хорошо, со стороны заказчика не стоит пользоваться чужими сметами, а строителям можно увеличивать стоимость смет только в случае каких-либо непредвиденных обстоятельств, обнаруженных в ходе строительства и которые нельзя было предвидеть. 1 Посилання на коментар Поділитися на інших сайтах More sharing options...
Рекомендовані повідомлення
Створіть акаунт або увійдіть у нього для коментування
Ви маєте бути користувачем, щоб залишити коментар
Створити акаунт
Зареєструйтеся для отримання акаунта. Це просто!
Зареєструвати акаунтУвійти
Вже зареєстровані? Увійдіть тут.
Увійти зараз