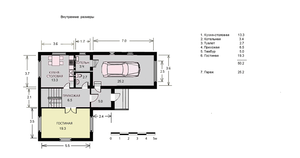
bump Опубліковано: 23 січня 2008 Поділитись Опубліковано: 23 січня 2008 Наконец определился с проектом... на основе Е-0175 из homeplans.ru. Подогнал размеры под стандартные плиты, увеличил гараж, совместил вентканалы. Без подвала и балконов, за камин еще не решил. Планирую уложиться в 60 тыс, коммуникации есть. Критикуйте, хвалите. Посилання на коментар Поділитися на інших сайтах More sharing options...
Дом в городе Опубліковано: 23 січня 2008 Поділитись Опубліковано: 23 січня 2008 Мне очень нравится Ваш проект. Даже ничего критиковать не хочется. Посилання на коментар Поділитися на інших сайтах More sharing options...
Nikk Опубліковано: 23 січня 2008 Поділитись Опубліковано: 23 січня 2008 Да, а когда строить будете... Посилання на коментар Поділитися на інших сайтах More sharing options...
snitsar Опубліковано: 24 січня 2008 Поділитись Опубліковано: 24 січня 2008 Я пока вижу две неувязочки: 1. Один скат крыши гаража упирается в стену. Для нормального функционирования крыши, Вам нужно будет решить, каким то образом этот узел - или добавть скат, или поменять конфигурацию крыши. Поэтому она может выглядеть чуть не так как Вы себе сейчас представляете. 2. Дымоход на фасаде нарисован длинной стороной вдоль ската, а судя по планам этажей, он должен быть поперек ската, что тоже не очень хорошее решение. Посилання на коментар Поділитися на інших сайтах More sharing options...
bump Опубліковано: 24 січня 2008 Автор Поділитись Опубліковано: 24 січня 2008 Занимаюсь оформлением участка... в городе, 5 соток. Если согласования - разрешения не затянутся, весной начну. Сейчас думаю, как сделать второй выход во двор, наверное под лестницей. Вот так должно выглядеть расположение на участке: Посилання на коментар Поділитися на інших сайтах More sharing options...
bump Опубліковано: 25 січня 2008 Автор Поділитись Опубліковано: 25 січня 2008 Snitsar, таки да, с крышей проблемка есть... Посоветуйте кто-нибудь? Посилання на коментар Поділитися на інших сайтах More sharing options...
yri Опубліковано: 25 січня 2008 Поділитись Опубліковано: 25 січня 2008 Над гаражом все же я би делал комнату а то место в пустую, с кухни и гостиной франц окна или как они там правильно називаются, ну и на 2 етаже если над гаражом делать комнату то команта на 6.8 станет гардеробом и коридоров в комнату над гаражом. Посилання на коментар Поділитися на інших сайтах More sharing options...
Ugushka Опубліковано: 28 січня 2008 Поділитись Опубліковано: 28 січня 2008 Хороший домик - уютный, компактный и домашний. Пальцы не стучат писать гадости Единственное, чего бы мне не хватало - кладовой-поглажечной Разве что под это дело отдать комнату 6,8 на втором этаже.. . Посилання на коментар Поділитися на інших сайтах More sharing options...
bump Опубліковано: 28 січня 2008 Автор Поділитись Опубліковано: 28 січня 2008 Котельная достаточно просторная, я там планирую стиралку и глажку. 6,8 может быть гардеробной например... себе я планирую там кабинет небольшой. Конечно, бюджет дает о себе знать... но на двоих-троих должно хватить. Посилання на коментар Поділитися на інших сайтах More sharing options...
Ugushka Опубліковано: 29 січня 2008 Поділитись Опубліковано: 29 січня 2008 Котельная достаточно просторная, я там планирую стиралку и глажку. Вход в котельную через гараж.. думаете, самый удобный путь ,чтобы постирать или погладить? Нужно будет одевать шубу? ДА и запах там будет, поверьте.. никакие Ленор с Силаном не спасут... Кладовки.. это я тут всех этим вопросом мучаю.. где будет пылесос? Елочные игрушки? Инструменты, санки и лыжи- в гараже, а вот бытовые вещи.. .под лестницей, куда хотят это все примостить некоторые, вы собираетесь делать выход во двор.. место занято... Кстати, а котельная 3,4 м - этого достаточно по СНиПам? Посилання на коментар Поділитися на інших сайтах More sharing options...
ПрЫнц Мальтийский Опубліковано: 29 січня 2008 Поділитись Опубліковано: 29 січня 2008 А проект получается расчитан на троих человек? если будут двое детей, то куда второго ребенка? может действительно есть смысл подумать о комнате над гаражем? Посилання на коментар Поділитися на інших сайтах More sharing options...
Alexander Pryakha Опубліковано: 29 січня 2008 Поділитись Опубліковано: 29 січня 2008 Наконец определился с проектом... на основе Е-0175 из homeplans.ru. Подогнал размеры под стандартные плиты, увеличил гараж, совместил вентканалы. Без подвала и балконов, за камин еще не решил. Планирую уложиться в 60 тыс, коммуникации есть. Критикуйте, хвалите. На лестнице я насчитал 12 подъемов. Нужно еще 8 достроить, (20х150=3000) чтобы выйти на 2 этаж. Забежные ступени - неприветсвуются, это только ноги бить себе и наследникам. Так вот, достройте еще 8 ступеней (ну 6 это минимум) - и посмотрите что получится с вашими планами. А дизайнерам, которые такие планы в инете выкладывают на продажу - за эту лестницу им руки бы да повыкручивал! В 60К -может и уложитесь. Это фундамент+стены+перекрытие+монолитный лестничный марш+крыша+водосточная система+готовность фасада 100%+входная дверь. Это без инж. сетей и отделки. Посилання на коментар Поділитися на інших сайтах More sharing options...
Katya Опубліковано: 29 січня 2008 Поділитись Опубліковано: 29 січня 2008 я согласна с Александром на счет лестницы, и еще обратите внимание на лестничку из гаража. с учетом высоты фундамента необходимо будет 3-4 ступени, а это где-то метр гаража вы украдете. в моем случае мы начали спуск в гараж еще из котельной та, чтоб до края фундамента дома опуститься на ноль гаража. Посилання на коментар Поділитися на інших сайтах More sharing options...
Katya Опубліковано: 29 січня 2008 Поділитись Опубліковано: 29 січня 2008 и вообще, если хотите сэкоомить, зачем мансардная крыша? по-моему холодный чердак дешевле. Да, вы не предусмотрели прачечную. Посилання на коментар Поділитися на інших сайтах More sharing options...
Рекомендовані повідомлення
Створіть акаунт або увійдіть у нього для коментування
Ви маєте бути користувачем, щоб залишити коментар
Створити акаунт
Зареєструйтеся для отримання акаунта. Це просто!
Зареєструвати акаунтУвійти
Вже зареєстровані? Увійдіть тут.
Увійти зараз