oksik Опубліковано: 28 серпня 2010 Поділитись Опубліковано: 28 серпня 2010 Здравствуйте уважаемые. Не мог бы кто скинуть примеры реальных черетежей схем комуникаций (отопление, вода, канализация) для частного дома сделанных проффесионалами? Пожалуйста, очень нужно. Посилання на коментар Поділитися на інших сайтах More sharing options...
thb Опубліковано: 28 серпня 2010 Поділитись Опубліковано: 28 серпня 2010 напомните в личку, в понедельник Посилання на коментар Поділитися на інших сайтах More sharing options...
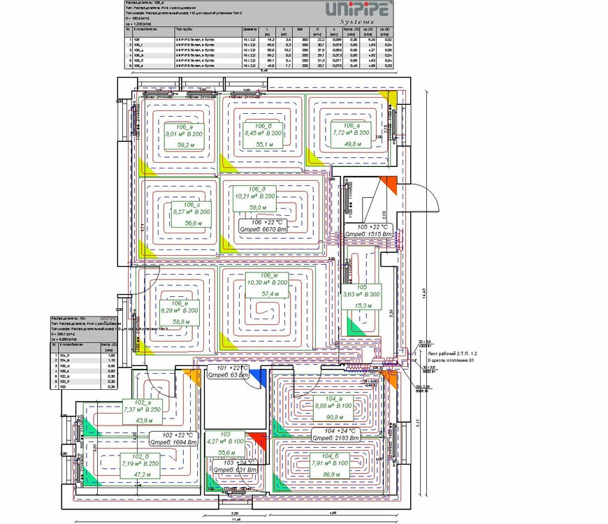
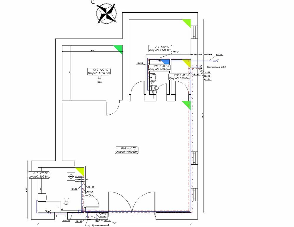
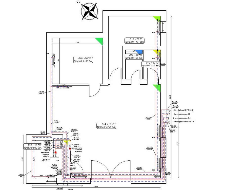
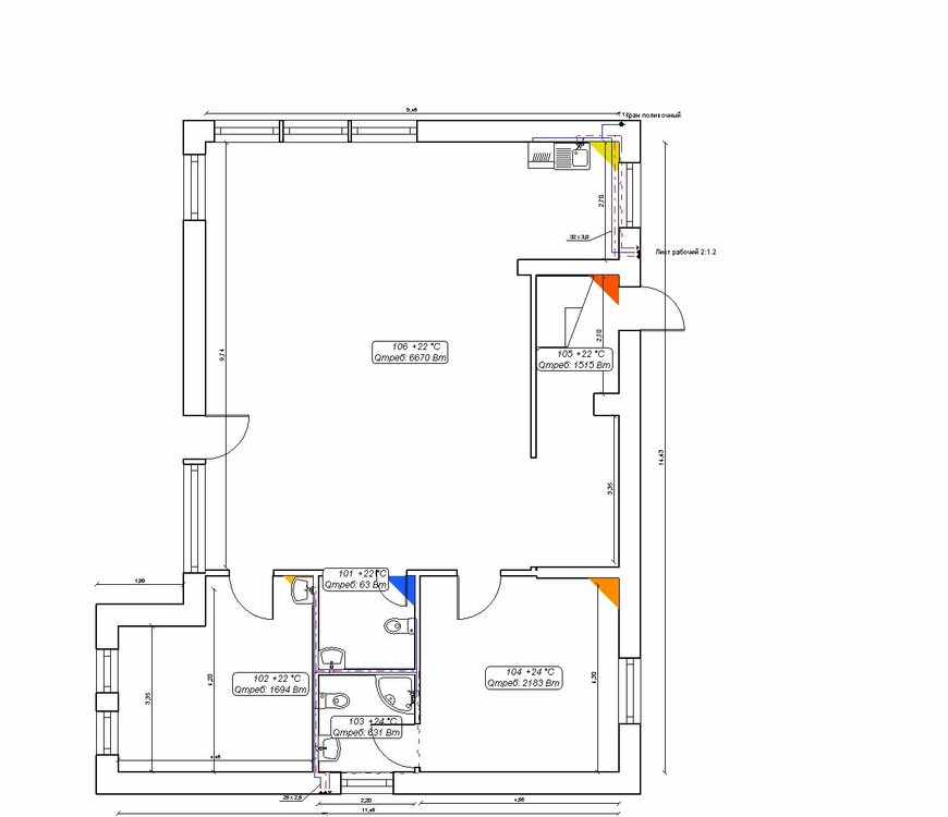
STANISLAV Опубліковано: 29 серпня 2010 Поділитись Опубліковано: 29 серпня 2010 Здравствуйте уважаемые. Не мог бы кто скинуть примеры реальных черетежей схем комуникаций (отопление, вода, канализация) для частного дома сделанных проффесионалами? Пожалуйста, очень нужно. схемы отопления, водоснабжения Посилання на коментар Поділитися на інших сайтах More sharing options...
B.S.V. Опубліковано: 29 серпня 2010 Поділитись Опубліковано: 29 серпня 2010 Здравствуйте уважаемые. Не мог бы кто скинуть примеры реальных черетежей схем комуникаций (отопление, вода, канализация) для частного дома сделанных проффесионалами? Пожалуйста, очень нужно. Если есть Автокад, скину,только через почту. Дайте обьемы дома. Посилання на коментар Поділитися на інших сайтах More sharing options...
agreegat Опубліковано: 29 серпня 2010 Поділитись Опубліковано: 29 серпня 2010 схемы отопления, водоснабжения Станислав, а Вы продолжаете пользоваться каталогом Unipipe для напольного отопления или перешли на MLCP? =) Посилання на коментар Поділитися на інших сайтах More sharing options...
STANISLAV Опубліковано: 29 серпня 2010 Поділитись Опубліковано: 29 серпня 2010 Станислав, а Вы продолжаете пользоваться каталогом Unipipe для напольного отопления или перешли на MLCP? =) это старые расчеты Посилання на коментар Поділитися на інших сайтах More sharing options...
Рекомендовані повідомлення
Створіть акаунт або увійдіть у нього для коментування
Ви маєте бути користувачем, щоб залишити коментар
Створити акаунт
Зареєструйтеся для отримання акаунта. Це просто!
Зареєструвати акаунтУвійти
Вже зареєстровані? Увійдіть тут.
Увійти зараз