вторик Опубліковано: 13 вересня 2010 Поділитись Опубліковано: 13 вересня 2010 15 метров хола и сплошные двери, некуда даже шкафчик приткнуть, кухня 8,5 и при этом сауна с проходным туалетом, лестница с дверью? какоето непонятное решение. по моему предыдущий был лучше. Посилання на коментар Поділитися на інших сайтах More sharing options...
Archist Опубліковано: 13 вересня 2010 Поділитись Опубліковано: 13 вересня 2010 Фасада пока нет. Вопрос задан наверно исходя из того, что нет ни одного окна на фасад. Просто со стороны входа северная сторона и довольно оживленная улица. Вопрос больше к планировке и функциональности. Если о планировке, то не совсем понятны комнатки по 9 м2 при холле в 15 м2. Причем тамбур, где повидимому все будут переобуваться и раздеваться - крохотный. Возможно надо убрать одну внутреннюю несущую стену (при такой ширине дома вполне хватает одной) и тогда планировка будет более гибкой, а не такой казарменной. Если о функциональности, то вход в топочную с улицы - нефункционален (особенно зимой, когда как раз и возникают всякие проблемы с теплом). Не хватает кладовой на 1 этаже. Лоджия - действительно нужна или так получилось? Посилання на коментар Поділитися на інших сайтах More sharing options...
вторик Опубліковано: 13 вересня 2010 Поділитись Опубліковано: 13 вересня 2010 перед проектированием определитесь для начала со своими хачу. напишите на листике комната-площадь и в путь. по ходу смотрите куда выходят окна, представляйте какие виды будут открыватся из окон, как будет смотрется помещение при входе. смоделируйте процес приготовления пищи, и ее подачу на стол, уборку посуды. Необходимость и размер кладовок. дополнительный выход во двор? собирайте по частям свое представление о доме мечты, потом проектируйте, втискивайте в возможности. баньку всегда можно достроить возле мангала удачи. Посилання на коментар Поділитися на інших сайтах More sharing options...
trzx Опубліковано: 13 вересня 2010 Автор Поділитись Опубліковано: 13 вересня 2010 А вот так? Кладовка на 1 этаже находится в лестнице там где дверь. Лоджия нужна для перекуров. Посилання на коментар Поділитися на інших сайтах More sharing options...
trzx Опубліковано: 13 вересня 2010 Автор Поділитись Опубліковано: 13 вересня 2010 перед проектированием определитесь для начала со своими хачу. напишите на листике комната-площадь и в путь. по ходу смотрите куда выходят окна, представляйте какие виды будут открыватся из окон, как будет смотрется помещение при входе. смоделируйте процес приготовления пищи, и ее подачу на стол, уборку посуды. Необходимость и размер кладовок. дополнительный выход во двор? собирайте по частям свое представление о доме мечты, потом проектируйте, втискивайте в возможности. баньку всегда можно достроить возле мангала удачи. Вот именно это и было сделано. В результате всех хотелок это и получилось. Участок маленький поэтому дополнительных строений больше не будет вообще. Посилання на коментар Поділитися на інших сайтах More sharing options...
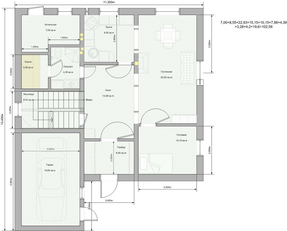
trzx Опубліковано: 10 січня 2011 Автор Поділитись Опубліковано: 10 січня 2011 Проведя "работу над ошибкам" и частично пересмотрев требования выкладываю новые планировки. Жду конструктивной критики. Из открытых вопросов, которые мне пока не до конца понятны: 1. Удачно ли расположен камин (в углу)? Вопрос для тех кто уже пользовался угловыми каминами. 2. Стоить ли делать разводку теплого воздуха от камина на 2 этаж, учитывая, что камин будет нести вспомогательную функцию? На первом этаже такое сделать вроде не очень накладно. 3. Достаточен ли размер котельной для расположения в ней конденсационного котла и всей автоматики?1этаж.pdf2этаж.pdf Посилання на коментар Поділитися на інших сайтах More sharing options...
trzx Опубліковано: 12 січня 2011 Автор Поділитись Опубліковано: 12 січня 2011 Судя по "многочисленным ответам" все или очень плохо или очень хорошо. Может все-таки будут предложения и замечания? Посилання на коментар Поділитися на інших сайтах More sharing options...
Ольга В Опубліковано: 12 січня 2011 Поділитись Опубліковано: 12 січня 2011 Может все-таки будут предложения и замечания? Нанять архитектора, можно на форуме. Посилання на коментар Поділитися на інших сайтах More sharing options...
DVIJOK Опубліковано: 12 січня 2011 Поділитись Опубліковано: 12 січня 2011 Проведя "работу над ошибкам" и частично пересмотрев требования выкладываю новые планировки. Жду конструктивной критики. Из открытых вопросов, которые мне пока не до конца понятны: 1. Удачно ли расположен камин (в углу)? Вопрос для тех кто уже пользовался угловыми каминами. 2. Стоить ли делать разводку теплого воздуха от камина на 2 этаж, учитывая, что камин будет нести вспомогательную функцию? На первом этаже такое сделать вроде не очень накладно. 3. Достаточен ли размер котельной для расположения в ней конденсационного котла и всей автоматики? Эта планировка самая удачная из всех. Но есть свои "но". 1. Камин расположен неудачно. Не его место возле входа, поставьте в противоположный угол немного сместив окно. 2. Если сделать толково, то почему нет? 3. Достаточный. Теперь но - предусмотрите вход в гараж из дома (но это специфика, если вы уверены что он вам не нужен, не делайте). Кладовая размещена на втором этаже, лучше перенесите на первый. Проходной кабинет - не есть хорошо, тем более через спальню, либо сделайте в него отдельный вход либо перенесите на первый этаж. Кабинет помещение первых этажей. Заметил, что в кухне вы тяготеете к боковым мойке и плите, скажу сразу это потеря места и не функционально. Холодильник можно вписать в кухню, а не ставить его в углу. 1 Посилання на коментар Поділитися на інших сайтах More sharing options...
Рекомендовані повідомлення
Створіть акаунт або увійдіть у нього для коментування
Ви маєте бути користувачем, щоб залишити коментар
Створити акаунт
Зареєструйтеся для отримання акаунта. Це просто!
Зареєструвати акаунтУвійти
Вже зареєстровані? Увійдіть тут.
Увійти зараз