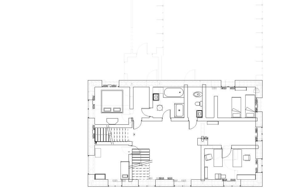
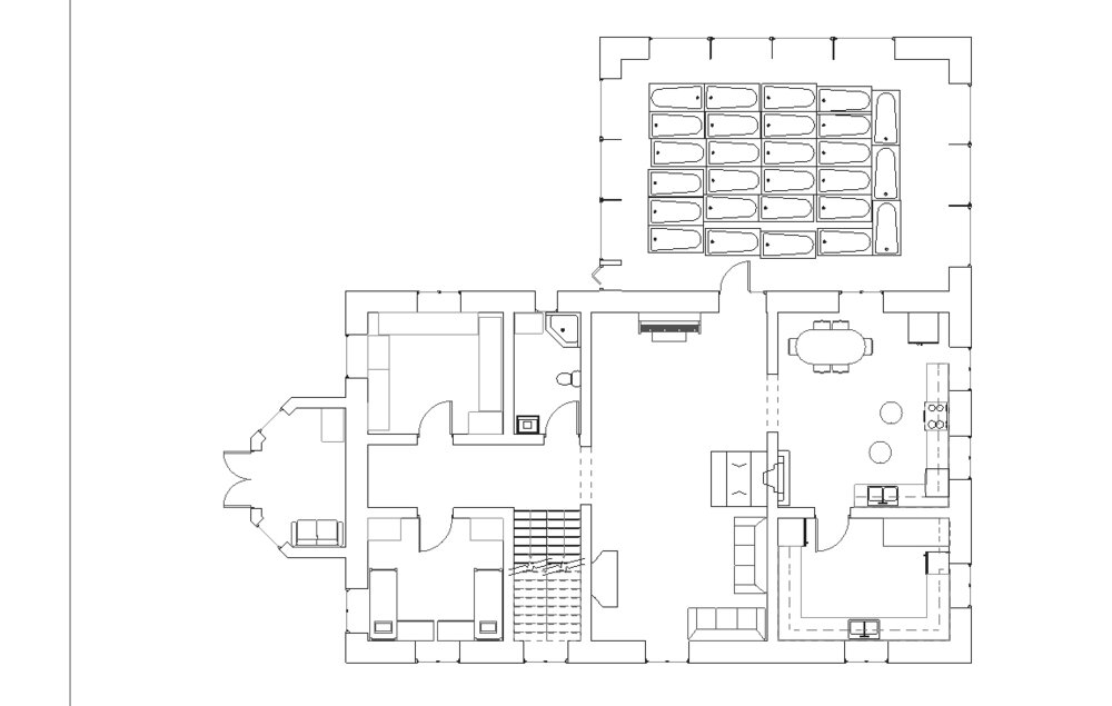
Fly Wind Опубліковано: 10 лютого 2008 Поділитись Опубліковано: 10 лютого 2008 Нарисовал себе в 3Д Хоум Архитект проектик предварительный, пока минусов не вижу особых. Помогите плиз! На картинках 1 и 2 этажи соответственно! 1 этаж: душ с туалетом, напротив гардеробная, далее зал с выходом на улицу и в бассейн, потом кухня-столовая, из нее выход в кладовую, из кладовой в котельню. 2 этаж: слева от лестницы детская, потом спальня, ванная, туалет, вторая детская, кабинет, гардеробная. Север снизу, юг соотв. сверху. Посилання на коментар Поділитися на інших сайтах More sharing options...
Fly Wind Опубліковано: 10 лютого 2008 Автор Поділитись Опубліковано: 10 лютого 2008 Да, размер дома 14*8 примерно по внутреннему габариту, без учета бассейна. По центру зала первого этажа стоит печь-камин. Посилання на коментар Поділитися на інших сайтах More sharing options...
gambrina Опубліковано: 12 лютого 2008 Поділитись Опубліковано: 12 лютого 2008 По второму этажу особой критики нет... А вот планировка первого этажа мне кажеться, что будет неочень удобной! во первых - заходить в кухню через зал. Представте, вы приехали из супермаркета и надо занести продукты и вы с огромными пакетами идете через зал или несете жене картошку из погреба на кухню, обязательно где-то пыль на пол упадет, а если там еще и ковер, а если белый... У вас практически весь первый этаж паровозиком (змейкой) расположен, что всегда неудобно. поверьте уж на слово! да и в кладовке, к примеру, можна намного больше всего разместить если в ней одна дверь. так же и с остальными помещениями. еще совет, если у вас участок позволяет, то делайте вход в той стене, которая шире, тогда больше вариантов рационально разместить все помещения. кстати, ваш второй этаж тому пример! Посилання на коментар Поділитися на інших сайтах More sharing options...
Fly Wind Опубліковано: 13 лютого 2008 Автор Поділитись Опубліковано: 13 лютого 2008 участок позволяет, попробую сейчас перепланировать. Посилання на коментар Поділитися на інших сайтах More sharing options...
Ugushka Опубліковано: 13 лютого 2008 Поділитись Опубліковано: 13 лютого 2008 Присоединяюсь к критике первого этажа. Лучше бы дом немного "квадратизировать"? Относительно второго: у вас трое детей? Даже, если так, детские лучше перепланировать таким образом, чтобы у них были свои гардеробные. А взрослым иметь свою гардеробную - иначе Вам придется всей семьей толпиться в одном гардеробе, постоянно перетаскивая одежду туда-сюда. (в идеале - и свой санузел). А вот эта кладовка, в которую можно попасть только из ванной - думаю, она тоже не очень функциональная - хорошо бы было попадать в нее из коридора, иначе не будет возможности взять оттуда что-то, пока другие члены семьи принимают душ. Бесполезный, на мой взгляд, кусочек коридора между второй детской и кабинетом, если отказаться от окна, можно смело отгородить и превратить в гардероб, куда можно попадать из детской или сделать там кладовую. НУ и хорошо бы было проставить площадь комнат и представить себе их длину и ширину. Такое чувство, что зал слишком длинный и широкий - не уверена, что плитам будет на что упираться... Вообще, столько недочетов, что правильнее, наверное, порыться в сети, найти подходящий под Ваши запросы вариант нужного размера и его уже немного перестроить Посилання на коментар Поділитися на інших сайтах More sharing options...
Romka Опубліковано: 14 лютого 2008 Поділитись Опубліковано: 14 лютого 2008 не жалко 25% второго этажа отдать на корридор?? Посилання на коментар Поділитися на інших сайтах More sharing options...
Fly Wind Опубліковано: 14 лютого 2008 Автор Поділитись Опубліковано: 14 лютого 2008 в конце коридора будет стоять компьютер, насчет второго гардероба согласен, насчет ширины зала - там примерно 8*5,9 метров, плита 6,3 подходит. пс-детей пока нет, жены тоже. пс2-проставлять размеры пока не умею, площадь тоже. пс3-все время свет палить влом, а так темно в коридоре будет без окон Посилання на коментар Поділитися на інших сайтах More sharing options...
Ugushka Опубліковано: 14 лютого 2008 Поділитись Опубліковано: 14 лютого 2008 в конце коридора будет стоять компьютер пс3-все время свет палить влом, а так темно в коридоре будет без окон Если там будет стоять комп - там будут все время закрыты жалюзи. Постоянно тянуться через стол, чтобы их открыть после окончания работы за компом, вам будет в лом и неудобно. Кроме того, если комп высталять в коридор, зачем Вам такой просторный кабинет? насчет второго гардероба согласен, Даже не второго, а в каждой комнате свой в идеале. насчет ширины зала - там примерно 8*5,9 метров, плита 6,3 подходит. Мы свой дом планировали по габаритом, отталкиваясь от длин стандартных плит. Лить плиты нестандартного размера оказалось на 30% дороже. пс2-проставлять размеры пока не умею, площадь тоже. Распечатайте, проставьте руками, отсканируйте и выкладывайте заново Я думаю, проект нашего дома сделан примерно с такими же запросами, что и у вас, только у нас есть еще цоколь. Если гостевую или гараж занять котельной - Вам, возможно, подойдет как основа для альтернативного проекта. www.stroimdom.com.ua/forum/showpost.php?p=61112&postcount=3 Посилання на коментар Поділитися на інших сайтах More sharing options...
Fly Wind Опубліковано: 14 лютого 2008 Автор Поділитись Опубліковано: 14 лютого 2008 комп в коридоре - детям, чтоб 24 часа в сутки (как я в свое время) в инете не висели. плиты длиной 6,3 метра вроде стандартные. за проект спасибо, посмотрю. пс1-у меня еще к дому в проекте пристроен зимний сад с озером (такой же площади почти как и дом) пс2-низ дома - север, по спальням требование - восток, по саду - юг, все хозкомнаты - север, топочная - с металлической дверью и изолированная (вообще думал пристроить отдельно, думаю вот) Посилання на коментар Поділитися на інших сайтах More sharing options...
Ugushka Опубліковано: 14 лютого 2008 Поділитись Опубліковано: 14 лютого 2008 комп в коридоре - детям, чтоб 24 часа в сутки (как я в свое время) в инете не висели. 1. дети не будут раскрывать жалюзи, это точно 2. Когда Ваши дети достигнут возраста возможностью пльзоваться интеренетом, думаю, технологии будут позволять это делать, сидя в холодильнике 3. Шутки-шутками - логики не уловила.. . кабинет можно от них закрыть на замок, комп - запаролить или поставить в режим рзрешения пользоваться не дольше, чем пару часов в сутки.. И вообще, у вас могут родиться девочки, которым это будет неинтересно... а как вы отгородите от них коридор? Посилання на коментар Поділитися на інших сайтах More sharing options...
Fly Wind Опубліковано: 15 лютого 2008 Автор Поділитись Опубліковано: 15 лютого 2008 детей на свой комп я естественно не пущу, у них свой будет, а вообще во первых легче увидеть чем они занимаются выглянув в коридор чем идит к ним а во вторых зачем комп ставить в то комнате где спишь Посилання на коментар Поділитися на інших сайтах More sharing options...
Ugushka Опубліковано: 15 лютого 2008 Поділитись Опубліковано: 15 лютого 2008 детей на свой комп я естественно не пущу, у них свой будет, а вообще во первых легче увидеть чем они занимаются выглянув в коридор чем идит к ним а во вторых зачем комп ставить в то комнате где спишь 1. их комп для них же можно запаролить 2. в то время, как они будут играться, вы будете на 1 этаже телек смотреть в лучшем случае 3. Все компы (принтеры ,сканеры, факсы...) надо ставить в кабинет, иначе зачем он? Если дверь кабинета и детской снести ближе к стене, то, перегородив коридор, вы получите приличного размера комнату В принципе, вопрос в том, что вы теряете полезную площадь..... Комп займет мало.. Секрет: Когда дети подрастут - им не понравится сидеть за компом таким макаром, чтобы экран был доступен для просмотра любому входящему на этаж Кстати ,у вас два санузла и кухня расположеныдалеко друг от друга - им понадобятся автономные стояки и вентиляция.. ДУмаю, лучше постараться все это свести как можно ближе... Посилання на коментар Поділитися на інших сайтах More sharing options...
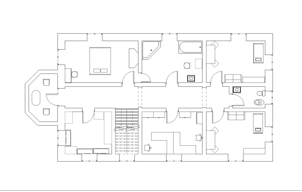
Fly Wind Опубліковано: 24 лютого 2008 Автор Поділитись Опубліковано: 24 лютого 2008 вот обновился. перенес лестницы, сделал тамбур, гостевую на 1 этаж спустил и гардеробные добавил для спальни и детской. жду дальнейшей критики. Посилання на коментар Поділитися на інших сайтах More sharing options...
Ugushka Опубліковано: 24 лютого 2008 Поділитись Опубліковано: 24 лютого 2008 Ничего не понимаю Все мелкое и пунктирное.. еще и столы и кровати другого этажа просматриваются... Наверное, вы задумали сделать стеклянные полы и потолки ? Посилання на коментар Поділитися на інших сайтах More sharing options...
Fly Wind Опубліковано: 24 лютого 2008 Автор Поділитись Опубліковано: 24 лютого 2008 Ничего не понимаю Все мелкое и пунктирное.. еще и столы и кровати другого этажа просматриваются... Наверное, вы задумали сделать стеклянные полы и потолки ? это не я, это программа. сча попробую исправить. Посилання на коментар Поділитися на інших сайтах More sharing options...
Ugushka Опубліковано: 24 лютого 2008 Поділитись Опубліковано: 24 лютого 2008 это не я, это программа. сча попробую исправить. Я просто коммент начала писать с того, что в коридоре электроплиту ставить неправильно... потом поняла, что это - кориддор второго этажа.. и 5 минут не могла понять, в чем смысл такого чудесного выбора места для плиты Посилання на коментар Поділитися на інших сайтах More sharing options...
gambrina Опубліковано: 24 лютого 2008 Поділитись Опубліковано: 24 лютого 2008 сделайте больше разрешение картинки, а то все очень мелкое и плохо просматривается. и скройте план ненужного на плане этажа, а то очень сложно что-то понять. и или я немогу найти или на планах не в каждом помещении указано где вход Посилання на коментар Поділитися на інших сайтах More sharing options...
Fly Wind Опубліковано: 24 лютого 2008 Автор Поділитись Опубліковано: 24 лютого 2008 исправил вроде Посилання на коментар Поділитися на інших сайтах More sharing options...
gambrina Опубліковано: 24 лютого 2008 Поділитись Опубліковано: 24 лютого 2008 ой, пока начала предыдущий пост писать, то было еще актуально, а когда закончила, то уже нет... вообщем по прошлому посту уже отреагировали))) Посилання на коментар Поділитися на інших сайтах More sharing options...
gambrina Опубліковано: 25 лютого 2008 Поділитись Опубліковано: 25 лютого 2008 ИМХО, у вас очень много места на втором этаже занимает коридор. на этаже, где только спальни он как минимум небудет функциональним! увеличте площадь комнат или можно пару гардеробных предусмотреть! кстати, если хотите чтобы дети за компом только играли в игры, то тогда его можно в коридоре ставить, а если им он нужен будет для учебы, то сконцентрироваться сидя в коридоре тяжеловато, опять же ИМХО, и пользы от компа будет мало, да и с точки зрения эргономики рабочее место будет неправильно оборудовано, это только испортит зрение и здоровье детям! а возьле лестницы можно сделать кабинет для детей ( если бы знать какая там площадь), для того чтобы не ставить комп в детскую. и насчет кухни и санузлов согдасна с Ugushka, но это опять таки зависит только от того хотите вы удешевить строительство или вам всеравно какие будут материальные затраты Посилання на коментар Поділитися на інших сайтах More sharing options...
Fly Wind Опубліковано: 25 лютого 2008 Автор Поділитись Опубліковано: 25 лютого 2008 ИМХО, у вас очень много места на втором этаже занимает коридор. на этаже, где только спальни он как минимум небудет функциональним! -я думал сделать такую себе площадку для игр детей увеличте площадь комнат или можно пару гардеробных предусмотреть! -гардеробные есть во всех комнатах кстати, если хотите чтобы дети за компом только играли в игры, то тогда его можно в коридоре ставить, а если им он нужен будет для учебы, то сконцентрироваться сидя в коридоре тяжеловато, опять же ИМХО, и пользы от компа будет мало, да и с точки зрения эргономики рабочее место будет неправильно оборудовано, это только испортит зрение и здоровье детям! -а что с эргономикой и зрением? окно зашторивается, лампа настольная рулит. впрочем когда дети вырастут можно комп поставить на площадке этой. мое имхо что комп в комнате вреден. площадь смотреть не умею, но думаю метров 20. и насчет кухни и санузлов согдасна с Ugushka, но это опять таки зависит только от того хотите вы удешевить строительство или вам всеравно какие будут материальные затраты -не все равно конечно, но как кухню, ванную и 2 санузла сделать в 1 месте пока не придумал, так что выходит 3 стояка. Посилання на коментар Поділитися на інших сайтах More sharing options...
Fly Wind Опубліковано: 2 березня 2008 Автор Поділитись Опубліковано: 2 березня 2008 жду дальнейшей критики. размер дома по внутреннему периметру (без бассейна) 16*9 м. 1 этаж (слева направо по часовой): тамбур 5, гардеробная 12, ванная 6, зал 40, кухня 25, кладовая 14, гостевая 12 м.кв. 2 этаж: балкон 5, спальня 20, ванная 16, детская1-16, туалет 4, детская2-16, кабинет 16, гардеробная 12 м. кв. стены арболит 60см. топочная и коммуникации в подвале. Посилання на коментар Поділитися на інших сайтах More sharing options...
gambrina Опубліковано: 2 березня 2008 Поділитись Опубліковано: 2 березня 2008 Этот вариант мне намного больше нравиться! Посилання на коментар Поділитися на інших сайтах More sharing options...
Yanina Опубліковано: 3 березня 2008 Поділитись Опубліковано: 3 березня 2008 В ванную на 2 этаже 2 входа. Мне интересно: вы из своей спальни входите в ванную и первым делом закрываете дверь в коридор? Посилання на коментар Поділитися на інших сайтах More sharing options...
Ugushka Опубліковано: 3 березня 2008 Поділитись Опубліковано: 3 березня 2008 В ванную на 2 этаже 2 входа. Мне интересно: вы из своей спальни входите в ванную и первым делом закрываете дверь в коридор? Поддерживаю Все остальное очень даже хорошо ;) Посилання на коментар Поділитися на інших сайтах More sharing options...
Рекомендовані повідомлення
Створіть акаунт або увійдіть у нього для коментування
Ви маєте бути користувачем, щоб залишити коментар
Створити акаунт
Зареєструйтеся для отримання акаунта. Це просто!
Зареєструвати акаунтУвійти
Вже зареєстровані? Увійдіть тут.
Увійти зараз