AlexLSL Опубліковано: 4 жовтня 2010 Поділитись Опубліковано: 4 жовтня 2010 У меня проект на ввод в дом 3-х фазного питания. В проекте предусмотрено 2 3-х фазных автомата одинакового номинала до счетчика и после. Тот, что до счетчика пломбируется. В чем заключается идея этих автоматов? Номинал одинаков, если вырубит тот, что запломбирован его можно будет включить самостоятельно? Автоматы разрывают только фазы. Посилання на коментар Поділитися на інших сайтах More sharing options...
engeneer Опубліковано: 4 жовтня 2010 Поділитись Опубліковано: 4 жовтня 2010 У меня проект на ввод в дом 3-х фазного питания. В проекте предусмотрено 2 3-х фазных автомата одинакового номинала до счетчика и после. Тот, что до счетчика пломбируется. В чем заключается идея этих автоматов? Номинал одинаков, если вырубит тот, что запломбирован его можно будет включить самостоятельно? Автоматы разрывают только фазы. Конечно, можно! Пломбируется только доступ к клеммам - чтобы нельзя было подключиться до счетчика. Флажок открыт. Так сейчас делают у всех. Посилання на коментар Поділитися на інших сайтах More sharing options...
AlexLSL Опубліковано: 4 жовтня 2010 Автор Поділитись Опубліковано: 4 жовтня 2010 Тогда наверное загвоздка в другом. Корпус куда прячется счетчик и автоматы пломбируется? Железный ставить запрещено, а те пластмассовые, что я видел кажись дают доступ только к одному автомату, или я не прав? Посилання на коментар Поділитися на інших сайтах More sharing options...
sanykrimea Опубліковано: 4 жовтня 2010 Поділитись Опубліковано: 4 жовтня 2010 (змінено) Проектировщик обкурился или переучился. Например ((ссылка устарела)) (РФ) Змінено 4 жовтня 2010 користувачем sanykrimea Посилання на коментар Поділитися на інших сайтах More sharing options...
Юрчег Опубліковано: 4 жовтня 2010 Поділитись Опубліковано: 4 жовтня 2010 У меня в доме ввод тоже 3-х фазный. И вводной автомат один - до счетчика. Я сделал одну глупость - послесчетчиковые автоматы стоят в том-же ряду, что и вводной. И это все опломбировано Буду переделывать ввод - все исправлю. Посилання на коментар Поділитися на інших сайтах More sharing options...
Krylaty Опубліковано: 4 жовтня 2010 Поділитись Опубліковано: 4 жовтня 2010 У меня проект на ввод в дом 3-х фазного питания. В проекте предусмотрено 2 3-х фазных автомата одинакового номинала до счетчика и после. Тот, что до счетчика пломбируется. В чем заключается идея этих автоматов? Номинал одинаков, если вырубит тот, что запломбирован его можно будет включить самостоятельно? Автоматы разрывают только фазы. Может идея в том, что автоматы до счетчика и счетчик стоят на улице, а автоматы после счетчика в доме. Если бы автоматов в доме не было, то в случае отключения автоматов нужно одеваться и идти на улицу, а так сработают входные автоматы в доме. Посилання на коментар Поділитися на інших сайтах More sharing options...
sanykrimea Опубліковано: 4 жовтня 2010 Поділитись Опубліковано: 4 жовтня 2010 Может идея в том, что автоматы до счетчика и счетчик стоят на улице, а автоматы после счетчика в доме. Если бы автоматов в доме не было, то в случае отключения автоматов нужно одеваться и идти на улицу, а так сработают входные автоматы в доме. Вы имеете ввиду селективность. Сопротивление линии от АВ на улице до АВ в доме должно быть большИм ( сечение + длина). Посилання на коментар Поділитися на інших сайтах More sharing options...
Krylaty Опубліковано: 4 жовтня 2010 Поділитись Опубліковано: 4 жовтня 2010 Вы имеете ввиду селективность. Сопротивление линии от АВ на улице до АВ в доме должно быть большИм ( сечение + длина). Я не электрик, но мне кажется логично если выбъет входной автомат, то лучше он будет внутри дома, а не снаружи на столбе за сугробом. Для гарантии конечно желательно чтобы автомат в доме был рассчитан на меньший ток. Возможно в тему заглянут электрики, поправят Посилання на коментар Поділитися на інших сайтах More sharing options...
AmateurFF Опубліковано: 4 жовтня 2010 Поділитись Опубліковано: 4 жовтня 2010 Может идея в том, что автоматы до счетчика и счетчик стоят на улице, а автоматы после счетчика в доме. Если бы автоматов в доме не было, то в случае отключения автоматов нужно одеваться и идти на улицу, а так сработают входные автоматы в доме. Ага, будут срабатыват автоматы на улице:), и прийдется бежать сначала в доме проверять, а затем на улицу. Какой из последовательно соединенных однинаквых автоматов сработает определить можно только опытным путем, ножками. :D Посилання на коментар Поділитися на інших сайтах More sharing options...
AlexLSL Опубліковано: 5 жовтня 2010 Автор Поділитись Опубліковано: 5 жовтня 2010 Может идея в том, что автоматы до счетчика и счетчик стоят на улице, а автоматы после счетчика в доме. Если бы автоматов в доме не было, то в случае отключения автоматов нужно одеваться и идти на улицу, а так сработают входные автоматы в доме. Нее, оба автомата на улице, внутри дома еще один автомат 4-х полюсный. Спросил зачем второй на улице, если есть в доме. Толком не ответил. Посилання на коментар Поділитися на інших сайтах More sharing options...
sanykrimea Опубліковано: 5 жовтня 2010 Поділитись Опубліковано: 5 жовтня 2010 Нее, оба автомата на улице, внутри дома еще один автомат 4-х полюсный... :lol: 3 АВ последовательно? Шедевр! Можно глянуть тр..бр..прожект? ПС. Может, УЗО, а не АВ?:D Посилання на коментар Поділитися на інших сайтах More sharing options...
engeneer Опубліковано: 5 жовтня 2010 Поділитись Опубліковано: 5 жовтня 2010 Нее, оба автомата на улице, внутри дома еще один автомат 4-х полюсный. Спросил зачем второй на улице, если есть в доме. Толком не ответил. Обычно, на второй автомат садят трехфазную розетку в щитке. А дом подключают транзитом от счетчика. Посилання на коментар Поділитися на інших сайтах More sharing options...
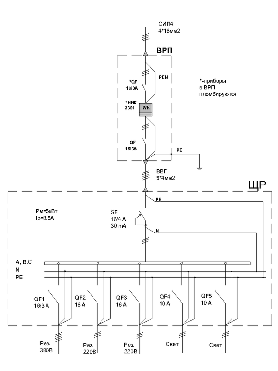
AlexLSL Опубліковано: 9 жовтня 2010 Автор Поділитись Опубліковано: 9 жовтня 2010 (змінено) :lol: 3 АВ последовательно? Шедевр! Можно глянуть тр..бр..прожект? ПС. Может, УЗО, а не АВ?:D Да это УЗО.. я не доглядел. А розетка 3-х фазная предусмотрена через автомат внутри дома. Схему скину позже. ---------------------- Добавил схему Змінено 9 жовтня 2010 користувачем AlexLSL Посилання на коментар Поділитися на інших сайтах More sharing options...
yutiger Опубліковано: 13 жовтня 2010 Поділитись Опубліковано: 13 жовтня 2010 Автомат до счетчика - требование энергонадзора, его опечатывают. Автомат после счетчика защищает отходящий кабель от щита учета до потребителя. А вот вводной автомат в доме обычно заменяют на УЗО или диф. автомат. Посилання на коментар Поділитися на інших сайтах More sharing options...
sanykrimea Опубліковано: 13 жовтня 2010 Поділитись Опубліковано: 13 жовтня 2010 АВ после счётчика лишний. Проектировщик, вероятно, хотел нарисовать УЗИП, но дрогнула рука. Посилання на коментар Поділитися на інших сайтах More sharing options...
yutiger Опубліковано: 13 жовтня 2010 Поділитись Опубліковано: 13 жовтня 2010 А защищать кабель после счетчика не надо? Счетчик прямого включения. Т.е. КЗ ниже счетчика может повредить сам счетчик. Посилання на коментар Поділитися на інших сайтах More sharing options...
sanykrimea Опубліковано: 13 жовтня 2010 Поділитись Опубліковано: 13 жовтня 2010 Для этого требуется соблюдать селективность - рассчитать ТКЗ, если в пределах 0.2 - 0.3 кА (что вряд ли). Номиналы и типы должны отличаться по таблице селективности производителя АВ. В данном случае никакой защиты счётчика нет. Кабель защищён вводным АВ. Посилання на коментар Поділитися на інших сайтах More sharing options...
yutiger Опубліковано: 13 жовтня 2010 Поділитись Опубліковано: 13 жовтня 2010 Для этого требуется соблюдать селективность - рассчитать ТКЗ, если в пределах 0.2 - 0.3 кА (что вряд ли). Номиналы и типы должны отличаться по таблице селективности производителя АВ. В данном случае никакой защиты счётчика нет. Кабель защищён вводным АВ. Ну вообще-то соблюдение селективности и расчет токов КЗ это разные вещи. На схеме у автоматических выключателей кривые отключения (В, С и т.д.) и максимальные токи КЗ не указаны (4,5кА, 6кА) не указаны, поэтому судить о такой схеме сложно. А о том, что кабель снизу защищен диф. автоматом это вообще жесть. Вроде как кабель сверху надо защищать. Зачем же тогда в щитовых дома на отходящих линиях ставят плавкие вставки или автоматы? Еще одни нюанс это согласование схем с энергонадзорами и ПТО, возьмите предлагаемую вами схему и пойдите её согласовывайте. Посилання на коментар Поділитися на інших сайтах More sharing options...
sanykrimea Опубліковано: 13 жовтня 2010 Поділитись Опубліковано: 13 жовтня 2010 Набор слов. Посилання на коментар Поділитися на інших сайтах More sharing options...
yutiger Опубліковано: 13 жовтня 2010 Поділитись Опубліковано: 13 жовтня 2010 Ну у вас они судя по всему закончились . Посмотрите специализированные сайты по электрике, там эти вопросы поднимались уже. Кстати: ДНАОП 0.00-1.32-01 "2.7.5. За лічильником, увімкненим безпосередньо в мережу, повинен бути установлений апарат захисту відповідно до глави 3.1 ПУЭ. Якщо від лічильника відходять декілька ліній, обладнаних апаратами захисту, то встановлення загального апарата захисту не потрібне." Или этот норматив уже отменен? Посилання на коментар Поділитися на інших сайтах More sharing options...
sanykrimea Опубліковано: 13 жовтня 2010 Поділитись Опубліковано: 13 жовтня 2010 Горе, горе мне... ДБН В. 2.5-23-2003 Проектування електрообладнання об’єктів цивільного призначення 11.8 Перед засобом обліку, безпосередньо включеним у мережу, на відстані не більше ніж 10 м по довжині проводки для безпечної заміни засобу обліку повинний бути установлений комутаційний апарат чи запобіжник, що дозволяє зняти напругу з усіх фаз. 11.9 Після засобу обліку, включеного безпосередньо в живильну мережу, має бути встановлений апарат захисту якнайближче до засобу обліку, але не далі ніж 10 м по довжині електропроводки. Якщо після засобу обліку відходить декілька ліній, обладнаних апаратами захисту, встановлення загального апарата захисту не потрібне. Ну да - первый АВ работает как выключатель. Посыпаю голову пеплом.. (Но от # 19 в ответ на # 18 не отказываюсь.) Посилання на коментар Поділитися на інших сайтах More sharing options...
Бигдус Опубліковано: 15 жовтня 2010 Поділитись Опубліковано: 15 жовтня 2010 Горе, горе мне... ДБН В. 2.5-23-2003 Проектування електрообладнання об’єктів цивільного призначення Ну да - первый АВ работает как выключатель. Посыпаю голову пеплом.. (Но от # 19 в ответ на # 18 не отказываюсь.) Ну да ..... Они с РЭСа туды обычно дрянь какуюто пихают какая ни при каких условиях не выбивает. Так снять напругу для замены счетчика. Посилання на коментар Поділитися на інших сайтах More sharing options...
sanykrimea Опубліковано: 15 жовтня 2010 Поділитись Опубліковано: 15 жовтня 2010 Ну да ..... Они с РЭСа туды обычно дрянь какуюто пихают какая ни при каких условиях не выбивает. Так снять напругу для замены счетчика. Я пропустил, что щиток вводной не в доме - на групповой - линия идёт( Посилання на коментар Поділитися на інших сайтах More sharing options...
Рекомендовані повідомлення
Створіть акаунт або увійдіть у нього для коментування
Ви маєте бути користувачем, щоб залишити коментар
Створити акаунт
Зареєструйтеся для отримання акаунта. Це просто!
Зареєструвати акаунтУвійти
Вже зареєстровані? Увійдіть тут.
Увійти зараз