Igor_M Опубліковано: 25 жовтня 2010 Поділитись Опубліковано: 25 жовтня 2010 Я пользуюсь такими схемами подготовки проема. Может у кого-то совершеннее есть. А чего это так много закладных в проеме на калитку? Не достаточно ли будет сделать по два выпуска на столбиках (таких же как и для заполнения внутреннего - см фото), а потом приварить к ним вертикально трубу квадратную (типа боковых рамок), а к ней уже - петли? И еще вопрос - нужно же где-то подвести провода для замка. Где это лучше сделать? Вывести из столбика где-то на высоте 1-1,2м? Или не заморачиваться и потом тупо из земли выйти в угол калитки? И где обычно размещают звонок от домофона? На столбиках? Может, его прикрепить на калитку? Скажем, 1,6 - 1,8м от земли (и тогда тоже к нему подвести провод)? Посилання на коментар Поділитися на інших сайтах More sharing options...
sonor Опубліковано: 26 жовтня 2010 Поділитись Опубліковано: 26 жовтня 2010 По поводу радиоканала. Множество производителей автоматики работают с радиоприемниками частотой 868 МГц. Вспомним частоту мобильной связи, она равна 900/1800 Мгц. Вот из-за этого стабильность и дальность работы приемников и пультов на частоте 868 МГц очень зависит от расстояния расположения и мощности ретрансляторов Украинских мобильных операторов. Существует и еще одна частота, которую используют производители - это 433 МГц. Так вот эта частота более стабильна и независима от внешних факторов. Посилання на коментар Поділитися на інших сайтах More sharing options...
Вратарь Опубліковано: 26 жовтня 2010 Поділитись Опубліковано: 26 жовтня 2010 А чего это так много закладных в проеме на калитку? Не достаточно ли будет сделать по два выпуска на столбиках? И еще вопрос - нужно же где-то подвести провода для замка. Где это лучше сделать? Вывести из столбика где-то на высоте 1-1,2м? Или не заморачиваться и потом тупо из земли выйти в угол калитки? И где обычно размещают звонок от домофона? На столбиках? Может, его прикрепить на калитку? Скажем, 1,6 - 1,8м от земли (и тогда тоже к нему подвести провод)? Двух закладных мало. Провод для замка выводите на высоте 400-500 мм, оставьте запас 2,0-2,5 метра для подключения к замку. Камеру домофона обычно размещают на высоте 1,5 метра со стороны ручки калитки на притворной трубе калитки или на столбе. 1 Посилання на коментар Поділитися на інших сайтах More sharing options...
Вратарь Опубліковано: 26 жовтня 2010 Поділитись Опубліковано: 26 жовтня 2010 А антенну какую-то специальную надо покупать или можно провод на столб и антенну от старого приемника ? Подарю антенну из комплекта автоматики САМЕ, где только встретиться? Посилання на коментар Поділитися на інших сайтах More sharing options...
sonor Опубліковано: 26 жовтня 2010 Поділитись Опубліковано: 26 жовтня 2010 А никто не поделится чертежом калитки и распашных ворот??? Можно в Автокаде, Архикаде, Компассе. Посилання на коментар Поділитися на інших сайтах More sharing options...
Вратарь Опубліковано: 26 жовтня 2010 Поділитись Опубліковано: 26 жовтня 2010 А никто не поделится чертежом калитки и распашных ворот??? Можно в Автокаде, Архикаде, Компассе. Подготовку проема или конструктив изделия? Посилання на коментар Поділитися на інших сайтах More sharing options...
sonor Опубліковано: 26 жовтня 2010 Поділитись Опубліковано: 26 жовтня 2010 Подготовку проема или конструктив изделия? Конструктив изделия. Посилання на коментар Поділитися на інших сайтах More sharing options...
Вратарь Опубліковано: 26 жовтня 2010 Поділитись Опубліковано: 26 жовтня 2010 Конструктив изделия. Нарисовать могу, а в виде чертежей нет. Посилання на коментар Поділитися на інших сайтах More sharing options...
sonor Опубліковано: 26 жовтня 2010 Поділитись Опубліковано: 26 жовтня 2010 Нарисовать могу, а в виде чертежей нет. Нарисовать и я могу Посилання на коментар Поділитися на інших сайтах More sharing options...
lavilong Опубліковано: 26 жовтня 2010 Поділитись Опубліковано: 26 жовтня 2010 Думаю у Вратаря покрасивше выйдет.. 1 Посилання на коментар Поділитися на інших сайтах More sharing options...
Вратарь Опубліковано: 26 жовтня 2010 Поділитись Опубліковано: 26 жовтня 2010 Думаю у Вратаря покрасивше выйдет.. Ужасно рисую. Качество изображения стараюсь компенсировать полезностью изображенного :D Посилання на коментар Поділитися на інших сайтах More sharing options...
Igor_M Опубліковано: 26 жовтня 2010 Поділитись Опубліковано: 26 жовтня 2010 Двух закладных мало. Провод для замка выводите на высоте 400-500 мм, оставьте запас 2,0-2,5 метра для подключения к замку. Камеру домофона обычно размещают на высоте 1,5 метра со стороны ручки калитки на притворной трубе калитки или на столбе. В своем посте забыл приаттачить фото. Сейчас приаттачиваю, чтоб было виднее, что я имею ввиду. На фото 2 - крупный план... Т.е. эти двух закладных будет мало? А если еще по центру выпустить такую же пластину (торчащую) и тогда их будет три, а к ним уже приварить вертикально трубу, то будет нормально? Или все-таки лучше плоские закладные сделать (заподлицо со стороной столбика) скажем из той же пластины кусочки 50х50? 400-500мм от земли - ОК. Правда, если потом его все равно тянуть до уровня замка.... ну хорошо. По камере домофона - если расположить на притворной трубе, то столб примыкающий будет ограничивать обзор. Если на столбе, то сейчас уже четко нужно определить место куда выводить провода и форму (а значит и модель), чтоб потом бетон не долбить... И опять же будет "мертвая зона" обзора... Вот потому и подумал, что можно было бы прямо на калитку камеру с кнопкой поцепить... где-то по центру на высоте 1,5-1,6м от земли... И обзор был бы максимальный... Были ли в вашей практике такие решения? И в связи с этим еще один вопрос - если рядом будет идти провод к замку (220В) и кабель к камере (так понимаю, слаботочка), то не будет ли наводок? Посилання на коментар Поділитися на інших сайтах More sharing options...
Вратарь Опубліковано: 26 жовтня 2010 Поділитись Опубліковано: 26 жовтня 2010 Т.е. эти двух закладных будет мало? А если еще по центру выпустить такую же пластину (торчащую) и тогда их будет три, а к ним уже приварить вертикально трубу, то будет нормально? Или все-таки лучше плоские закладные сделать (заподлицо со стороной столбика) скажем из той же пластины кусочки 50х50? Правда, если потом его все равно тянуть до уровня замка.... ну хорошо. По камере домофона - если расположить на притворной трубе, то столб примыкающий будет ограничивать обзор. Если на столбе, то сейчас уже четко нужно определить место куда выводить провода и форму (а значит и модель), чтоб потом бетон не долбить... И опять же будет "мертвая зона" обзора... Вот потому и подумал, что можно было бы прямо на калитку камеру с кнопкой поцепить... где-то по центру на высоте 1,5-1,6м от земли... И обзор был бы максимальный... Были ли в вашей практике такие решения? И в связи с этим еще один вопрос - если рядом будет идти провод к замку (220В) и кабель к камере (так понимаю, слаботочка), то не будет ли наводок? Двух закладных на высоту калитки минимум 2000 мм мало. Хуже вертикального вывода полосы в качестве закладной может быть 8-ка арматура. Потом прийдется вбивать в столб с другой стороны арматуру или еще что-то или срезать полосы и крепить сквозь трубу анкерами предварительно просверлив в каркасе отверстия большого диаметра. Делайте закладные из уголка 50х50х5 или большего размера с шириной, достаточной для обварки с двух сторон. Из двух сваренных пластин будет не красиво - шов будет виден. Закладные обязательно грунтовать так же как и швеллер. 400-500 мм вывод провода не бросается в глаза и гибкий переход не висит перед глазами. Для камеры домофона есть подкладка, поворачивающая камеру на 45 градусов, еcли ее использовать, то столб не будет резать обзор камере. Вмуровывать в столб камеру не рекомендую (или я не правильно понял текст по поводу определения модели для того, чтобы не резать бетон). Из практики камера домофона в калитке не красиво. К замку с домофона идет 12 вольт постоянного тока, даже специальный провод с двумя жилами по 0,5 мм для замка. Для домофона лучше использовать экранированный провод. 1 Посилання на коментар Поділитися на інших сайтах More sharing options...
Igor_M Опубліковано: 27 жовтня 2010 Поділитись Опубліковано: 27 жовтня 2010 Про ворота наискосок : Ролик должен быть всегда, и толщина у него не мала, и зазоры должны быть. Варианты обмануть навскидку: 1. Изнутри укрепить к воротам Г-образную направляющую и пользоваться одним роликом (не очень эстетично изнутри) 2. Сдвинуть ворота в месте закрывания внутрь двора и получить такой же зазор 10см, закрыть его потом симметрично трубами или еще чем (просто и легко) 3. Смонтировать ролики НЕ напротив столба (забор то за столбом поуже, там ниша есть), надо всего лишь немного удлинить верхнюю трубу ворот, не заваливать ее сразу вниз под углом 45. 4. Можно даже устроить в столбе углубление для ролика - видно его все равно не будет за воротами. Вот такой вариант с углубленными роликами кто-то исполнял? Или может видел? Как это реализовать - ну очень не хочется иметь щель в 7-10см... СПАСИБА! Посилання на коментар Поділитися на інших сайтах More sharing options...
Вратарь Опубліковано: 28 жовтня 2010 Поділитись Опубліковано: 28 жовтня 2010 Вот такой вариант с углубленными роликами кто-то исполнял? Или может видел? Как это реализовать - ну очень не хочется иметь щель в 7-10см... СПАСИБА! Щель 7-10 сантиметров никто не хочет иметь По поводу зазора - стандартный зазор между воротами и столбом 6 см. Легко закрываете профильной трубой 60х40 или 60х30 чуть утопив за проем. Все будет красиво. Посилання на коментар Поділитися на інших сайтах More sharing options...
Igor_M Опубліковано: 28 жовтня 2010 Поділитись Опубліковано: 28 жовтня 2010 Щель 7-10 сантиметров никто не хочет иметь По поводу зазора - стандартный зазор между воротами и столбом 6 см. Легко закрываете профильной трубой 60х40 или 60х30 чуть утопив за проем. Все будет красиво. Ну допустим как вариант... я для этого на всякий пожарный уже и закладные сделал на столбах... Тогда еще вопрос по датчикам, которые "простреливают" створ. Вот тут выше писали, что в эти трубы можно вывести провода и датчики поцепить прямо на трубы. тогда не будет на столбах таких "инородных" включений, как синие фонарики на цоколе на выложенных вами фотках... Что скажете насчет датчиков на трубах - насколько это работоспособный вариант? Посилання на коментар Поділитися на інших сайтах More sharing options...
Вратарь Опубліковано: 29 жовтня 2010 Поділитись Опубліковано: 29 жовтня 2010 Вот тут выше писали, что в эти трубы можно вывести провода и датчики поцепить прямо на трубы. тогда не будет на столбах таких "инородных" включений, как синие фонарики на цоколе на выложенных вами фотках... Что скажете насчет датчиков на трубах - насколько это работоспособный вариант? Синие фотоэлементы я ставил в молодости , теперь ставлю черные как на фото. Идея поставить на трубы за проем хороша, ставим так, когда столбы готовы, а провода не заложены. Посилання на коментар Поділитися на інших сайтах More sharing options...
LM Опубліковано: 29 жовтня 2010 Поділитись Опубліковано: 29 жовтня 2010 (змінено) Я бы ставил пару фотоэлементов и на внутренней стороне: покраска бампера дороже (это из собственного печального опыта ). Я не спец по воротам, но по совету моего товарища, кот. ковкой занимается и ворота и калитки, кот. они ставят, как правило, очень тяжелые, сделано так. Закладные делаются в виде выпусков 10-12 арматуры, приваренных перепендикулярно к трубе в столбе. В последствии, в накладной трубе, кот. тулится к столбу, сверлятся отверстия в местах выпуска арматуры, труба "надевается на арматурины, лишнее срезается и проваривается. Обычно делают 4-5 таких выпусков на 2-х метрах по вертикали. to Igor_M: фотоэлементы абс. не режут глаз: вот пример моих черных ФЭ на желтых столбиках (кстати, тоже работа Вратаря ). Ну и интересовались домофоном - размещение вызывной панели домофона на столбе: Змінено 29 жовтня 2010 користувачем LM 2 Посилання на коментар Поділитися на інших сайтах More sharing options...
Вратарь Опубліковано: 29 жовтня 2010 Поділитись Опубліковано: 29 жовтня 2010 А я категорически против выведения арматуры в качестве закладных. Уголок практичнее. Если вдруг (а такое бывает) калитку нужно переставить вырезать половину притворной трубы чтобы снять ее с арматурин не окок. Посилання на коментар Поділитися на інших сайтах More sharing options...
Flanker Опубліковано: 29 жовтня 2010 Поділитись Опубліковано: 29 жовтня 2010 Делайте закладные из уголка 50х50х5 или большего размера с шириной, достаточной для обварки с двух сторон. Можно на фото вблизи посмотреть как выглядит столб приваренный к уголку? Закладные еще стоят как правило не идеально по уровню, как потом со щелями между закладной и столбом бороться? Закладные делаются в виде выпусков 10-12 арматуры, приваренных перепендикулярно к трубе в столбе. В последствии, в накладной трубе, кот. тулится к столбу, сверлятся отверстия в местах выпуска арматуры, труба "надевается на арматурины, лишнее срезается и проваривается. Обычно делают 4-5 таких выпусков на 2-х метрах по вертикали. По-моему это самый грамотный способ изготовления закладных, следует только отметить, что арматура должна внутри столба быть связана металлическим с каркасом столба. И прутки должны стоять не на одной линии, а в шахматном порядке с разбросом около 40мм, чтобы труба 60х40 наделась, даже с учетом неточной установки прутков в пределах 5мм. После срезания и зачистки лишнего все выглядит аккуратно и приятно глазу. Никаких закладных не видно вообще! А я категорически против выведения арматуры в качестве закладных. Уголок практичнее. Если вдруг (а такое бывает) калитку нужно переставить вырезать половину притворной трубы чтобы снять ее с арматурин не окок. Можно подробнее аргументацию против арматуры? Или Вам часто калитки срезать приходиться? Посилання на коментар Поділитися на інших сайтах More sharing options...
Вратарь Опубліковано: 29 жовтня 2010 Поділитись Опубліковано: 29 жовтня 2010 Можно на фото вблизи посмотреть как выглядит столб приваренный к уголку? Закладные еще стоят как правило не идеально по уровню, как потом со щелями между закладной и столбом бороться? По-моему это самый грамотный способ изготовления закладных, следует только отметить, что арматура должна внутри столба быть связана металлическим с каркасом столба. И прутки должны стоять не на одной линии, а в шахматном порядке с разбросом около 40мм, чтобы труба 60х40 наделась, даже с учетом неточной установки прутков в пределах 5мм. После срезания и зачистки лишнего все выглядит аккуратно и приятно глазу. Никаких закладных не видно вообще! Можно подробнее аргументацию против арматуры? Или Вам часто калитки срезать приходиться? Посмотреть можно, но у меня фотографий данного ракурса нет. На арматуру ставил не больше 5 калиток за все время работы с ними. Именно их срезать не приходилось, но понять последовательность и последствия могу. По поводу закладных не в уровне. А в шахматном порядке арматуру с допуском 5 мм Вы со строителями выставить беретесь. Потробуйте с тем же допуском вывести толковые закладные. Причин для срезания калиток достаточно. LM знает как минимум одну. Варите к арматуре, я не против. 1 Посилання на коментар Поділитися на інших сайтах More sharing options...
kulak43 Опубліковано: 6 листопада 2010 Поділитись Опубліковано: 6 листопада 2010 20 сантиметров провода в клемную колодку для антенны обеспечит устойчивый радиус 50-100 метров. Значительно влияет на радиус приема наличие ретрансляторов мобильной связи (может не только мобильной). В таком случае антенна не поможет - нужно менять универсальным приемником частоту передачи сигнала. лучше 17 см или 34см (для 433 МГц) Посилання на коментар Поділитися на інших сайтах More sharing options...
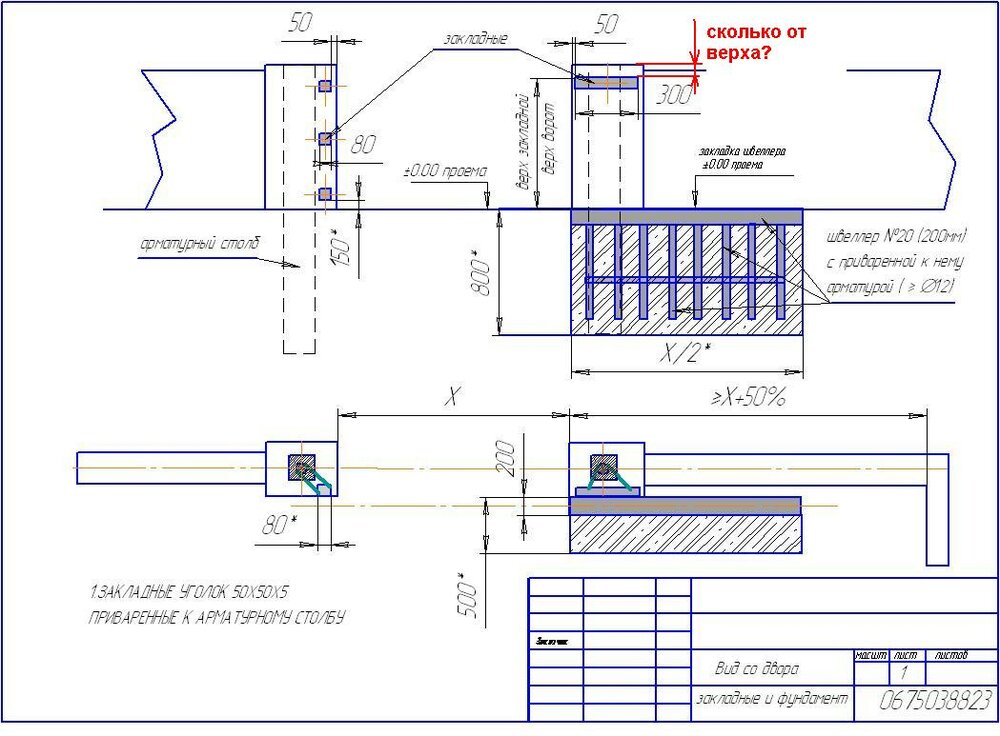
Igor_M Опубліковано: 8 листопада 2010 Поділитись Опубліковано: 8 листопада 2010 Я пользуюсь такими схемами подготовки проема. Может у кого-то совершеннее есть. Спасибо за схемку - все понятно... На калитку таки решил пластины закладывать 100х50 по три штуки с каждой стороны... посередине столба... Но вот меня еще мучает вопрос - сколько отступать для установки закладной в столбике для ворот для направляющих роликов и соответственно для "уловителя" верхней части створки с обратной стороны. На чертеже доходчиво написано - на высоте ворот... Вот только обычно какая высота ворот? На сколько НИЖЕ от верха столбика? На 5 см или на 10см? По опыту установщиков - на сколько обычно ворота ниже делают? Вот на рисунке обозначил суть вопроса... Посилання на коментар Поділитися на інших сайтах More sharing options...
muvic Опубліковано: 8 листопада 2010 Поділитись Опубліковано: 8 листопада 2010 1-2 кирпича от верха столба отступают обычно. центр закладной (горизонталь) соответствует верхнему краю ворот. Посилання на коментар Поділитися на інших сайтах More sharing options...
Flanker Опубліковано: 8 листопада 2010 Поділитись Опубліковано: 8 листопада 2010 Но вот меня еще мучает вопрос - сколько отступать для установки закладной в столбике для ворот для направляющих роликов и соответственно для "уловителя" верхней части створки с обратной стороны. На чертеже доходчиво написано - на высоте ворот... Вот только обычно какая высота ворот? На сколько НИЖЕ от верха столбика? На 5 см или на 10см? По опыту установщиков - на сколько обычно ворота ниже делают? Вот на рисунке обозначил суть вопроса... Если Вы делаете точно в соответствии с чертежом, то на левом кирпичном столбе по чертежу будет стоять доп. столб с ловушками (труба 60х30, 60х40). Иначе зачем средняя закладная? Это означает, что с стороны швеллера на кирпичный столб тоже логично ставить такую же вертикальную трубу. Снизу эта труба варится к швеллеру, сверху к закладной. При этом не важно где именно расположена закладная - вы к ней приварите трубу, а пластину с роликами по высоте ворот приварите к трубе на нужной высоте. А ворота чаще всего делают вровень с забором. (ИМХО) 1 Посилання на коментар Поділитися на інших сайтах More sharing options...
Рекомендовані повідомлення
Створіть акаунт або увійдіть у нього для коментування
Ви маєте бути користувачем, щоб залишити коментар
Створити акаунт
Зареєструйтеся для отримання акаунта. Це просто!
Зареєструвати акаунтУвійти
Вже зареєстровані? Увійдіть тут.
Увійти зараз