=Олег= Опубліковано: 26 жовтня 2010 Поділитись Опубліковано: 26 жовтня 2010 Добрый день! Прошу высказать свое мнение по поводу этого (ссылка устарела) проекта. Я его немного изменил внутри. Буду благодарен за отзывы. Извините за корявое черчение.1.pdf2.pdf Посилання на коментар Поділитися на інших сайтах More sharing options...
Katya Опубліковано: 26 жовтня 2010 Поділитись Опубліковано: 26 жовтня 2010 я всем всегда говорю - не забудте про прачечную-посушечную. хотя в целом неплохо. 2 Посилання на коментар Поділитися на інших сайтах More sharing options...
=Олег= Опубліковано: 26 жовтня 2010 Автор Поділитись Опубліковано: 26 жовтня 2010 Я думаю на втором этаже в С/у хватит места для стиралки? Посилання на коментар Поділитися на інших сайтах More sharing options...
Katya Опубліковано: 26 жовтня 2010 Поділитись Опубліковано: 26 жовтня 2010 Я думаю на втором этаже в С/у хватит места для стиралки? дело не в установке стиральной машины, а в том, ГДЕ Вы будете сушить? если вариант "во дворе " Вас устраивает - пусть, но может Вы хорошо подумаете? Посилання на коментар Поділитися на інших сайтах More sharing options...
=Олег= Опубліковано: 26 жовтня 2010 Автор Поділитись Опубліковано: 26 жовтня 2010 ))Я у жены спрошу по-этому поводу? А где Вы посоветуете сделать сушку? Может отделить часть с/у над топочной? Посилання на коментар Поділитися на інших сайтах More sharing options...
Katya Опубліковано: 26 жовтня 2010 Поділитись Опубліковано: 26 жовтня 2010 ))Я у жены спрошу по-этому поводу? А где Вы посоветуете сделать сушку? Может отделить часть с/у над топочной? у себя я так и сделала. Но, там необходимо окно, вентиляционный канал, и желательно приточная вентиляция в окне, также радиатор и неплохо было бы полотенцесушитель.... ну или хотя бы правильная вентиляция + теплый пол или чё-нить для сугреву... Посилання на коментар Поділитися на інших сайтах More sharing options...
=Олег= Опубліковано: 26 жовтня 2010 Автор Поділитись Опубліковано: 26 жовтня 2010 у себя я так и сделала. Но, там необходимо окно, вентиляционный канал, и желательно приточная вентиляция в окне, также радиатор и неплохо было бы полотенцесушитель.... ну или хотя бы правильная вентиляция + теплый пол или чё-нить для сугреву... Спасибо! будем думать Посилання на коментар Поділитися на інших сайтах More sharing options...
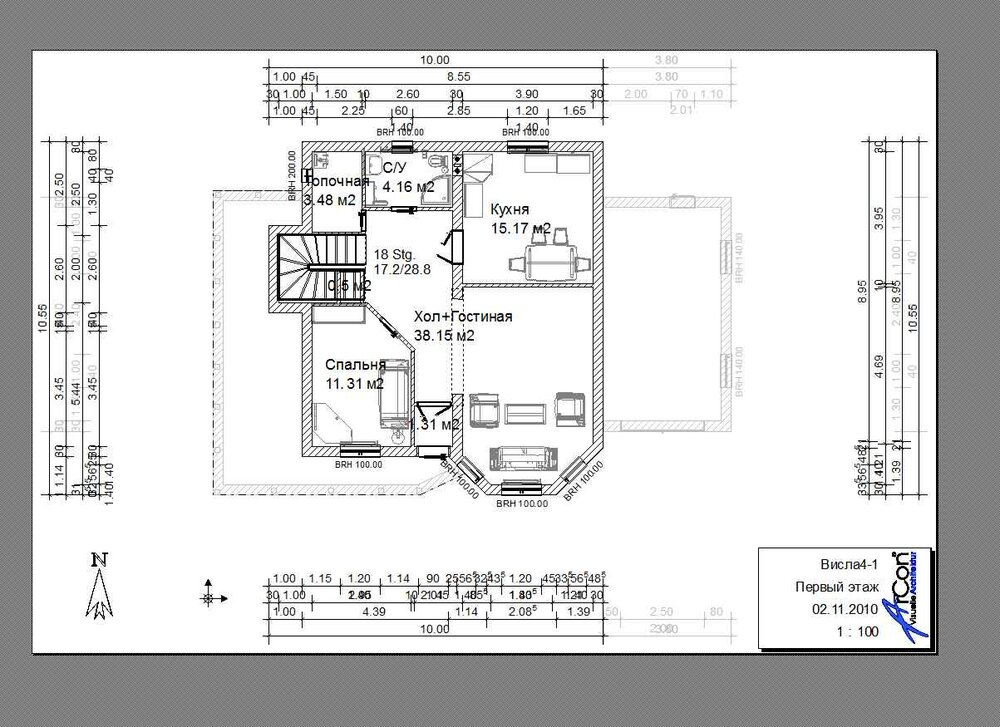
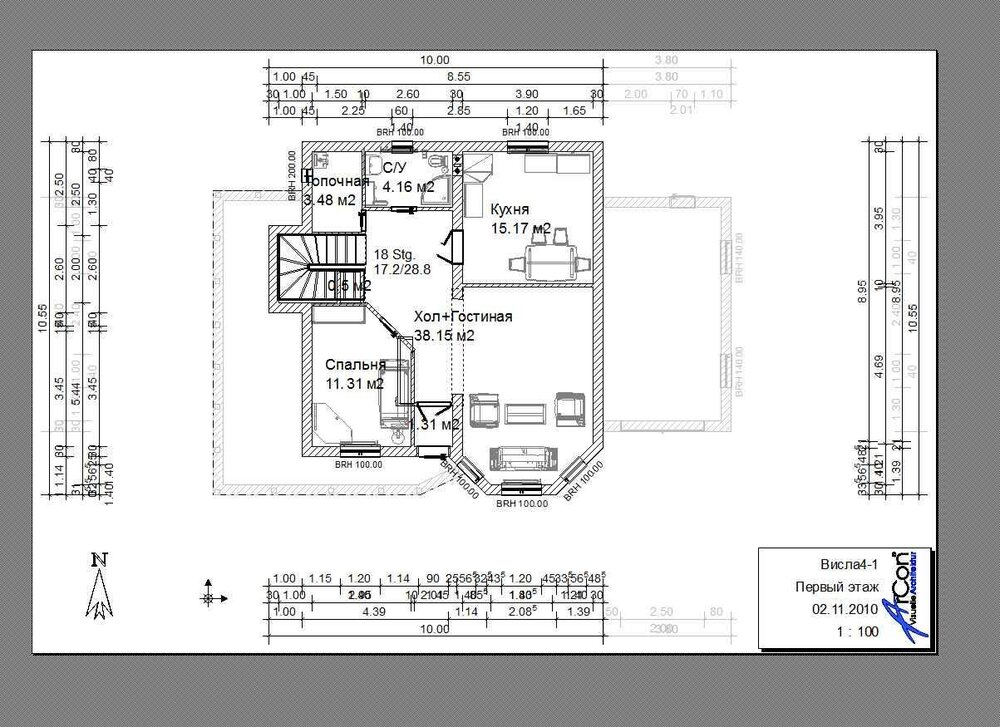
vickov Опубліковано: 28 жовтня 2010 Поділитись Опубліковано: 28 жовтня 2010 Входная дверь чересчур узкая. Или мне показалось? Посилання на коментар Поділитися на інших сайтах More sharing options...
=Олег= Опубліковано: 28 жовтня 2010 Автор Поділитись Опубліковано: 28 жовтня 2010 Спасибо, уже исправил. Планирую 90см. Ширина тамбура 1,15м Посилання на коментар Поділитися на інших сайтах More sharing options...
=Олег= Опубліковано: 2 листопада 2010 Автор Поділитись Опубліковано: 2 листопада 2010 Ну вот, послушав Ваши советы, после некоторых исправлений пришел к такому варианту Посилання на коментар Поділитися на інших сайтах More sharing options...
Katya Опубліковано: 3 листопада 2010 Поділитись Опубліковано: 3 листопада 2010 на мой взгляд, очень неплохо! Удачного Вам строительства! 1 Посилання на коментар Поділитися на інших сайтах More sharing options...
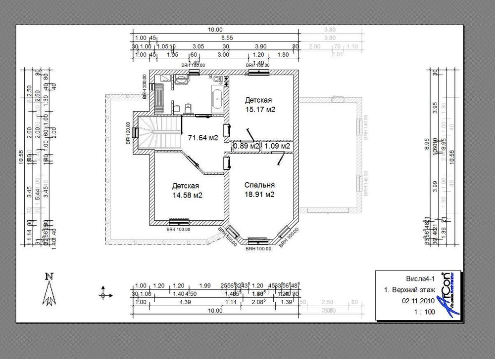
Archist Опубліковано: 3 листопада 2010 Поділитись Опубліковано: 3 листопада 2010 меня напрягают комнаты неправильной формы (особенно детская на втором эт.) попробуй поменять местами спальню 1 эт. с с/у и топочной. для этого лестницу нужно сместить вниз. ну и подумай о шкафе в прихожей. Посилання на коментар Поділитися на інших сайтах More sharing options...
первый домик Опубліковано: 3 листопада 2010 Поділитись Опубліковано: 3 листопада 2010 ))Я у жены спрошу по-этому поводу? А где Вы посоветуете сделать сушку? Может отделить часть с/у над топочной? А почему не использовать стиралку с сушкой или отдельно два агрегата? Так отпадает необходимость в отдельной комнате - "прачечно-посушечной". 1 Посилання на коментар Поділитися на інших сайтах More sharing options...
=Олег= Опубліковано: 3 листопада 2010 Автор Поділитись Опубліковано: 3 листопада 2010 меня напрягают комнаты неправильной формы (особенно детская на втором эт.) попробуй поменять местами спальню 1 эт. с с/у и топочной. для этого лестницу нужно сместить вниз. ну и подумай о шкафе в прихожей. Не хочется разделять с/у и кухню. Если сделать правильной, то длинный и узковатый проход получится. И для чего ипользовать тот "закуток", что получится? В детской вдоль этой стены станет кровать. Шкаф надо подумать куда именно "запихнуть. Посилання на коментар Поділитися на інших сайтах More sharing options...
=Олег= Опубліковано: 3 листопада 2010 Автор Поділитись Опубліковано: 3 листопада 2010 А почему не использовать стиралку с сушкой или отдельно два агрегата? Так отпадает необходимость в отдельной комнате - "прачечно-посушечной". Спасибо! Наверное я немного отстал от прогресса. Покопаюсь в инете. Посилання на коментар Поділитися на інших сайтах More sharing options...
первый домик Опубліковано: 3 листопада 2010 Поділитись Опубліковано: 3 листопада 2010 Спасибо! Наверное я немного отстал от прогресса. Покопаюсь в инете. Да, не за что! Но, предусмотреть резервное место для сушки (как в обычных квартирах) над ванной (в виде "верёвок") стоит. Посилання на коментар Поділитися на інших сайтах More sharing options...
=Олег= Опубліковано: 3 листопада 2010 Автор Поділитись Опубліковано: 3 листопада 2010 А если украсть чуть гостевой? В углу на ширину тамбура там останется ниша под шкаф. Посилання на коментар Поділитися на інших сайтах More sharing options...
Archist Опубліковано: 3 листопада 2010 Поділитись Опубліковано: 3 листопада 2010 Не хочется разделять с/у и кухню. Если сделать правильной, то длинный и узковатый проход получится. И для чего ипользовать тот "закуток", что получится? В детской вдоль этой стены станет кровать. Шкаф надо подумать куда именно "запихнуть. привычка блокировать с/у с кухней - пережиток советских многоэтажек, где каждый метр трубы был на счету. для частного дома не критично. зато спальня получится правильной формы, а уж детская - обязательно (не травмируйте психику ребенка деформированными пространствами ), а санузел при входе - нормально! Посилання на коментар Поділитися на інших сайтах More sharing options...
=Олег= Опубліковано: 4 листопада 2010 Автор Поділитись Опубліковано: 4 листопада 2010 Спасибо, я попробую все сместить. Но а как же тогда спальни под мансардной крышей? Это не травмирует? )) Посилання на коментар Поділитися на інших сайтах More sharing options...
первый домик Опубліковано: 4 листопада 2010 Поділитись Опубліковано: 4 листопада 2010 ... зато спальня получится правильной формы, а уж детская - обязательно (не травмируйте психику ребенка деформированными пространствами ... Я совсем не согласен с высказыванием, что комнаты, отличные от прямоугольника травмируют психику! Конечно, не должно быть крайностей, таких как – узкие и длинные, г-образные и подобные комнаты. Куда больше влияет на психику плохое освещение и цвет. По-моему, если ребёнок живёт в комнате с пятью углами (или подобное) или под мансардной крышей, да ещё и с мансардными окнами – это только поможет ему нестандартно смотреть на мир! Посилання на коментар Поділитися на інших сайтах More sharing options...
Archist Опубліковано: 5 листопада 2010 Поділитись Опубліковано: 5 листопада 2010 Я совсем не согласен с высказыванием, что комнаты, отличные от прямоугольника травмируют психику! Конечно, не должно быть крайностей, таких как – узкие и длинные, г-образные и подобные комнаты. Куда больше влияет на психику плохое освещение и цвет. По-моему, если ребёнок живёт в комнате с пятью углами (или подобное) или под мансардной крышей, да ещё и с мансардными окнами – это только поможет ему нестандартно смотреть на мир! вообще-то реч шла о шестиугольной комнате Посилання на коментар Поділитися на інших сайтах More sharing options...
первый домик Опубліковано: 5 листопада 2010 Поділитись Опубліковано: 5 листопада 2010 вообще-то реч шла о шестиугольной комнате Читаем внимательно "...в комнате с пятью углами (или подобное)..." Нет разницы между 5 или 6 углами. И тот и тот варианты не испортят психику ребёнка (во всяком случае в примере данной детской комнаты). Куда более сильно повлиять на психику ребёнка могут мнительные родители. Посилання на коментар Поділитися на інших сайтах More sharing options...
Archist Опубліковано: 5 листопада 2010 Поділитись Опубліковано: 5 листопада 2010 Читаем внимательно "...в комнате с пятью углами (или подобное)..." Нет разницы между 5 или 6 углами. И тот и тот варианты не испортят психику ребёнка (во всяком случае в примере данной детской комнаты). Куда более сильно повлиять на психику ребёнка могут мнительные родители. при ближайшем рассмотрении обнаружил 7-угол! теперь все стало на свои места: каждый день ребенка можно ставить в новый угол! педиатры могут быть спокойны! только не пойму, зачем делать как получится, если можно сделать как лучше?.. Посилання на коментар Поділитися на інших сайтах More sharing options...
первый домик Опубліковано: 5 листопада 2010 Поділитись Опубліковано: 5 листопада 2010 только не пойму, зачем делать как получится, если можно сделать как лучше?.. Да, я и не спорю! Более того, нужно делать как лучше! Посилання на коментар Поділитися на інших сайтах More sharing options...
=Олег= Опубліковано: 8 листопада 2010 Автор Поділитись Опубліковано: 8 листопада 2010 После размышлений и обсуждений, было решено оставить комнаты на месте. Шкаф в холе добавится как выше в картинке. Сильно гостевая комната не пострадала. Спасибо всем большое! Посилання на коментар Поділитися на інших сайтах More sharing options...
Рекомендовані повідомлення
Створіть акаунт або увійдіть у нього для коментування
Ви маєте бути користувачем, щоб залишити коментар
Створити акаунт
Зареєструйтеся для отримання акаунта. Це просто!
Зареєструвати акаунтУвійти
Вже зареєстровані? Увійдіть тут.
Увійти зараз