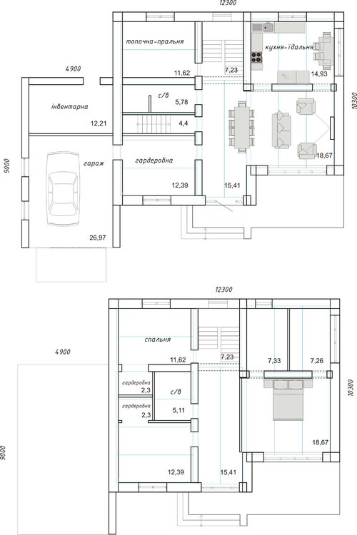
Оксенюк Владимир Опубліковано: 3 листопада 2010 Поділитись Опубліковано: 3 листопада 2010 Вот. В первом изображении представлена концепция нашего будущего дома. Во втором переделанная планировка. Прошу дать аргументированные советы и коментарии. Посилання на коментар Поділитися на інших сайтах More sharing options...
Виктор Глебов Опубліковано: 3 листопада 2010 Поділитись Опубліковано: 3 листопада 2010 Владимир я не понял где север. А так проект мне нравится. Все боятся плоской крыши, а у тебя прекрасный вид будет с крыши! Посилання на коментар Поділитися на інших сайтах More sharing options...
apxitektop.s Опубліковано: 3 листопада 2010 Поділитись Опубліковано: 3 листопада 2010 16 м2 коридора на втором этаже и гардеробная на первом в 13 м2 - далеко не рационально использована площадь по проекту а в целом зачет архитектору Оксанюк Е.В =))) 1 Посилання на коментар Поділитися на інших сайтах More sharing options...
архітектор Опубліковано: 3 листопада 2010 Поділитись Опубліковано: 3 листопада 2010 Владимир я не понял где север. А так проект мне нравится. Все боятся плоской крыши, а у тебя прекрасный вид будет с крыши! Вид на что? И где лестница на крышу? 1 Посилання на коментар Поділитися на інших сайтах More sharing options...
архітектор Опубліковано: 3 листопада 2010 Поділитись Опубліковано: 3 листопада 2010 Вот. В первом изображении представлена концепция нашего будущего дома. Во втором переделанная планировка. Прошу дать аргументированные советы и коментарии. То, то первое - явно дорогое, предполагает три монолитных перекрытия и еще кучу "мелочей" с большими окнами, батареями под ними и т.п. Второй вариант - еще хуже по рациональности. Помните что стоимость укладки плитки или ламината в двух гардеробах 50-80 грн/м2, без стоимости материалов. По плитку еще надо пол сделать, крышу и стены. А уборка и отопление? Ну и вход в дом без тамбура и через столовую - оригинально, но не практично. 1 Посилання на коментар Поділитися на інших сайтах More sharing options...
Оксенюк Владимир Опубліковано: 4 листопада 2010 Автор Поділитись Опубліковано: 4 листопада 2010 Владимир я не понял где север. А так проект мне нравится. Все боятся плоской крыши, а у тебя прекрасный вид будет с крыши! Юг находится со стороны входа (на втором изображении). Старались сделать ориентирование по сторонам света. Вид, как сказать участок находиться в городе, но для города вид будет нормальный, меня и жену устраивает. Посилання на коментар Поділитися на інших сайтах More sharing options...
Оксенюк Владимир Опубліковано: 4 листопада 2010 Автор Поділитись Опубліковано: 4 листопада 2010 16 м2 коридора на втором этаже и гардеробная на первом в 13 м2 - далеко не рационально использована площадь по проекту а в целом зачет архитектору Оксанюк Е.В =))) Коридор на вотором этаже, а именно часть около окна будет использована в качестве рабочего места. А гардеробная в 13 кв. м. это то что надо для нашей семьи. Посилання на коментар Поділитися на інших сайтах More sharing options...
Оксенюк Владимир Опубліковано: 4 листопада 2010 Автор Поділитись Опубліковано: 4 листопада 2010 Архитектору: Лестницу на крышу не предусматриваем специально. Не хотим нарушать монолит крыши (все таки плоская, вероятность протечки больше...). По первой картинке: я говорил что это концепция, сейчас все переделывается под перекрытия плитами (дешевле)... Обозначили столько проблем при строительстве, типа укладки плитки, ламината, батареи, отопление...получается надо квартиру купить и не париться Еще раз повторю, обсуждаем план на второй картинке (первая - концепция!!!от которой отказались как раз от того что с гаража надо идти через топочную и кухню) Посилання на коментар Поділитися на інших сайтах More sharing options...
AНДРЮША Опубліковано: 4 листопада 2010 Поділитись Опубліковано: 4 листопада 2010 Интересно. Только я бы сделал террасу рядом с кухней и выход на нее. В теплое время суток захочется посидеть на свежем воздухе с кофе и коньяком, а тут таскать через весь дом, и ковры персидские заляпать можно. Посилання на коментар Поділитися на інших сайтах More sharing options...
Оксенюк Владимир Опубліковано: 4 листопада 2010 Автор Поділитись Опубліковано: 4 листопада 2010 Интересно. Только я бы сделал террасу рядом с кухней и выход на нее. В теплое время суток захочется посидеть на свежем воздухе с кофе и коньяком, а тут таскать через весь дом, и ковры персидские заляпать можно. Думал об этом, но как обычно все посиделки происходят в гостинной, на мой взляд прикольно с раскрытыми окнами посидеть на диванчике...а насчет таскать через весь дом, то плита перекрытия над гостинной всего 4,2 метра - не такое уж и большое растояние Кстати, кухня с северной стороны, поэтому окон там должно быть как можно меньше. ПС: ковров не будет Спасибо за комент. Кстати как нажать кнопочку спасибо, не могу понять Посилання на коментар Поділитися на інших сайтах More sharing options...
архітектор Опубліковано: 4 листопада 2010 Поділитись Опубліковано: 4 листопада 2010 Архитектору: Лестницу на крышу не предусматриваем специально. Не хотим нарушать монолит крыши (все таки плоская, вероятность протечки больше...). По первой картинке: я говорил что это концепция, сейчас все переделывается под перекрытия плитами (дешевле)... Обозначили столько проблем при строительстве, типа укладки плитки, ламината, батареи, отопление...получается надо квартиру купить и не париться А я имел ввиду наружную металлическую лестницу, а не дыру в потолке Ну и так, общее замечание - с того момента, когда начинается "экономия" с привязывания дома под стандартные плиты, суть современной архитектуры пропадает. Скажем так, цена перекрытия дома не настолько значительна в общем объеме затрат на строительство современного дома, чтобы ставить ее во главу угла экономии. В результате, как правило, получается стандартный дом, сильно отличающийся от журнальных картинок. 1 Посилання на коментар Поділитися на інших сайтах More sharing options...
Оксенюк Владимир Опубліковано: 4 листопада 2010 Автор Поділитись Опубліковано: 4 листопада 2010 А я имел ввиду наружную металлическую лестницу, а не дыру в потолке Ну и так, общее замечание - с того момента, когда начинается "экономия" с привязывания дома под стандартные плиты, суть современной архитектуры пропадает. Скажем так, цена перекрытия дома не настолько значительна в общем объеме затрат на строительство современного дома, чтобы ставить ее во главу угла экономии. В результате, как правило, получается стандартный дом, сильно отличающийся от журнальных картинок. Металлическая лестница снаружи будет обязательно, надо ж будет хоть както туда попадать для обслуживания... А вот про стандартный дом это уж слишком... где Вы увидели у меня стандартный дом, он точно отличается от 99,9 % всех домов в Полтаве, да и посмотрев ветку Моя стройка, хочу заметить там и подобного я не видел... Читал все Ваши темы про строительство, очень понравилось, много полезного почерпнул, спасибо! Про цену перекрытия. Плиты на перекрытие одного этажа мне обойдутся в 15000 тыс. грн., плюс доставка и укладка около 7000 - 10000, а м. кв. монолитного перекрытия качественно сделаного в полтаве добирается до отметки в 1000 грн., т.е. один этаж у меня выйдет около 90000, экономия помоему на лицо!!! ПС: С удовольствием приму Ваши замечания и видиние. Еще раз спасибо! Посилання на коментар Поділитися на інших сайтах More sharing options...
Оксенюк Владимир Опубліковано: 5 листопада 2010 Автор Поділитись Опубліковано: 5 листопада 2010 Больше нет вопросов и замечаний? Это радует Посилання на коментар Поділитися на інших сайтах More sharing options...
vorona Опубліковано: 5 листопада 2010 Поділитись Опубліковано: 5 листопада 2010 Фасады где? Те, что в первом сообщении, не приклеиваются к Вашей планировке. Посилання на коментар Поділитися на інших сайтах More sharing options...
Оксенюк Владимир Опубліковано: 8 листопада 2010 Автор Поділитись Опубліковано: 8 листопада 2010 Фасады где? Те, что в первом сообщении, не приклеиваются к Вашей планировке. Я ж писал что в первом изображении (там где есть фасады) показана концепция дома, это изначальный эскиз, не понравилась планировка вот и переделали на ту которая показана на втором изображении. Фасады еще не переделывали. Сейчас жена доработает детально планировку, все прорисует и затем приступит к фасадам... Посилання на коментар Поділитися на інших сайтах More sharing options...
forma Опубліковано: 8 листопада 2010 Поділитись Опубліковано: 8 листопада 2010 Еще раз повторю, обсуждаем план на второй картинке (первая - концепция!!!от которой отказались как раз от того что с гаража надо идти через топочную и кухню) Если отказались из-за того, что надо идти из гаража через топочную и кухню, то можно поменять местами санузел и лестницу в подвал. И выход из гаража организовать через помещение с лесенкой. 1 Посилання на коментар Поділитися на інших сайтах More sharing options...
Оксенюк Владимир Опубліковано: 8 листопада 2010 Автор Поділитись Опубліковано: 8 листопада 2010 to forma: Согласен с Вами, этот вариант пробовали в самом начале, крутили - вертели, все равно не то... И еще, забыл сразу написать. На картинке видно как мы хотели расположить дом (помоему по другому не получается), получается что максимально остекленная сторона с севера что не есть гут...вот и дошли до второго варианта. Посилання на коментар Поділитися на інших сайтах More sharing options...
forma Опубліковано: 8 листопада 2010 Поділитись Опубліковано: 8 листопада 2010 Как-то первый вариант больше нравится))) Можно попробовать домик "отзеркалить", въезд, если это возможно, сделать с ул. Балацького, тогда остекленная сторона будет на запад. Посилання на коментар Поділитися на інших сайтах More sharing options...
Оксенюк Владимир Опубліковано: 8 листопада 2010 Автор Поділитись Опубліковано: 8 листопада 2010 Пробовали различные варианты, и отзеркаливали на Балацкого, западная сторона тоже холодная. Хотим чтобы максимальное стекление было с южной стороны, дабы минимизировать затраты на отопление в зимнее время. Посилання на коментар Поділитися на інших сайтах More sharing options...
Katya Опубліковано: 8 листопада 2010 Поділитись Опубліковано: 8 листопада 2010 мне не нравится, что выход их гаража на кухню. вы ведь чаще всего именно так ходить будете. 1 Посилання на коментар Поділитися на інших сайтах More sharing options...
Оксенюк Владимир Опубліковано: 8 листопада 2010 Автор Поділитись Опубліковано: 8 листопада 2010 мне не нравится, что выход их гаража на кухню. вы ведь чаще всего именно так ходить будете. ;) И мне не нравится, вот и переделали на второй вариант, посмотрите! Посилання на коментар Поділитися на інших сайтах More sharing options...
Katya Опубліковано: 8 листопада 2010 Поділитись Опубліковано: 8 листопада 2010 ;) И мне не нравится, вот и переделали на второй вариант, посмотрите! это у меня глюк? не вижу 2-го варианта Посилання на коментар Поділитися на інших сайтах More sharing options...
Оксенюк Владимир Опубліковано: 8 листопада 2010 Автор Поділитись Опубліковано: 8 листопада 2010 Понятно, так вообще не получаеться посмотреть второй вариант? И если видно - есть какие мысли??? Посилання на коментар Поділитися на інших сайтах More sharing options...
Katya Опубліковано: 8 листопада 2010 Поділитись Опубліковано: 8 листопада 2010 я не вижу. в каком посте вы его прикрепили? Посилання на коментар Поділитися на інших сайтах More sharing options...
Оксенюк Владимир Опубліковано: 9 листопада 2010 Автор Поділитись Опубліковано: 9 листопада 2010 В первом посте! Там две картинки, на первой с фасадами, а на второй чисто планировка. Посилання на коментар Поділитися на інших сайтах More sharing options...
Рекомендовані повідомлення
Створіть акаунт або увійдіть у нього для коментування
Ви маєте бути користувачем, щоб залишити коментар
Створити акаунт
Зареєструйтеся для отримання акаунта. Це просто!
Зареєструвати акаунтУвійти
Вже зареєстровані? Увійдіть тут.
Увійти зараз