metezz Опубліковано: 1 грудня 2010 Поділитись Опубліковано: 1 грудня 2010 Имееться дом 9х7, стены дерево/кирпич, фундамент 0,5 м., необходимо возвести второй этаж с минимальной потерей площади второго этажа по отношению к площади первого 9х7 Ввиду отсутствия полноценного фундамента под стенами первого этажа и тем, что данные стены скорее всего не обладают необходимой несущей способностью рассматриваеться вариант возведения второго этажа на колоннах без опирания на первый этаж Планируеться четыре(три) колонны возвести как можно ближе к фасаду дома, и четыре(три) с другой стороны с отступом 1,5 м. от существующей стены первого этажа Далее на эти колонны положить балку и пустотные плиты 1,2х9 8 шт., второй этаж должен получиться 9х9 Далее возводяться стены высотой 1,5 м и перекрываеться простой двускатной крышей 1. Может ли иметь место такая конструкция на колоннах, будет ли она устойчивой 2. Могут ли данные плиты накрыть такой пролет 9м. 3. Достаточно ли 4-х или лучше 3-х колонн с каждой стороны 4. Какое сечение должно быть у данных колонн 5. Какой фундамент необходим для данных колонн Людей обладающих достаточными знаниями просьба подсказать правильное ли направление движения выбрано, вопрос достройки по земле и очень дельный совет всЁ снести и построить заново не рассматривается, интересует только жизнеспособность данной конструкции. Заранее благодарю за ответы.Достройка.doc Посилання на коментар Поділитися на інших сайтах More sharing options...
lastandr Опубліковано: 3 грудня 2010 Поділитись Опубліковано: 3 грудня 2010 В принципе,подобные схемы применяются в строительстве,но они обязательно должны быть просчитаны по нагрузкам,особенно это касается фундаментов и колонн.А пока могу лишь сказать,что колонны по вашим эскизам должны быть железобетонные,по 4 шт. с каждой стороны сечением не менее 400х400мм с шагом примерно 2.8м в осях,по ним можно положить 3 прогона ПРГ 28.1.3-4 Т (или изготовить балки из 2-х швеллеров №22-24), и затем смонтировать 6 плит ПК 88.15-8. Второй вариант-это кирпичные колонны 510х510мм со всех 4-х сторон с расчетным шагом ,армированные через каждые 2 ряда сеткой ,а сверху монолитное ж/б перекрытие со встроенными балками на ширину колонн по всему периметру и посредине пролета. Фундамент в обоих случаях проектируется в зависимости от грунтов,можно предположить,что это будет монолитная балочная конструкция с пространственным каркасом шириной 500мм на глубину 700мм с расширением 800-1000мм и углублением до 1.1-1.2м в местах расположения колонн... Но, повторяюсь,все это надо просчитывать... Посилання на коментар Поділитися на інших сайтах More sharing options...
postrojV Опубліковано: 3 грудня 2010 Поділитись Опубліковано: 3 грудня 2010 Тоже интересует подобная тема но немного с иными "заморочками". А именно: возможность устройства более легкого перекрытия из легкого (ячеистого) бетона (о териве знаю, но может есть еще варианты?); дальше стена из газоблока(или, может, монолит заодно с перекрытием из того же легкого бетона); и весь этот каркас закрыть(облицевать) кирпичём. На верху планируется мансарда. Посилання на коментар Поділитися на інших сайтах More sharing options...
metezz Опубліковано: 6 грудня 2010 Автор Поділитись Опубліковано: 6 грудня 2010 В принципе,подобные схемы применяются ... Спасибо за ответ, я примерно так и прикидывал, хочу ещЁ рассмотреть вариант с металлическими колоннами, но ме как человеку далекому от строительста, непонятем момент с тем, что же в конце концов должно обеспечить жесткость конструкции и не даст всему этому сложиться? Посилання на коментар Поділитися на інших сайтах More sharing options...
duk Опубліковано: 6 грудня 2010 Поділитись Опубліковано: 6 грудня 2010 Спасибо за ответ, я примерно так и прикидывал, хочу ещЁ рассмотреть вариант с металлическими колоннами, но ме как человеку далекому от строительста, непонятем момент с тем, что же в конце концов должно обеспечить жесткость конструкции и не даст всему этому сложиться? похожее на 3-ю картинку наблюдаю в поле софиевской борщаговки. Мужики сделали фундамент, мотом колонны 2-го этажа и из газоблоки(или чего-то другого) выложили мансардный этаж. а пролеты меж сваями первого заложили осб. Посилання на коментар Поділитися на інших сайтах More sharing options...
Мирт Опубліковано: 6 грудня 2010 Поділитись Опубліковано: 6 грудня 2010 Фундамент здесь придётся делать свайный, потому-что проблематично его развивать внутрь дома. Колонны нужно замкнуть мощным монолитным поясом для жёсткости всей конструкции. Посилання на коментар Поділитися на інших сайтах More sharing options...
lastandr Опубліковано: 6 грудня 2010 Поділитись Опубліковано: 6 грудня 2010 Спасибо за ответ, я примерно так и прикидывал, хочу ещЁ рассмотреть вариант с металлическими колоннами, но ме как человеку далекому от строительста, непонятем момент с тем, что же в конце концов должно обеспечить жесткость конструкции и не даст всему этому сложиться? Металлические колонны здесь не очень вписываются,потому что для обеспечения жесткости конструкции их придется связывать между собой горизонтальными и диагональными элементами,т.е.создавать рамную конструкцию,которую потом надо будет как-то камуфлировать... Посилання на коментар Поділитися на інших сайтах More sharing options...
ВАДИМ-КОНСТРУКТОР Опубліковано: 9 грудня 2010 Поділитись Опубліковано: 9 грудня 2010 Я бы на вашем месте (в случае хороших кирпичных стен) пересадил дом на новый фундамент, сделал бы по верху монолитный пояс и выстроил второй этаж! Посилання на коментар Поділитися на інших сайтах More sharing options...
mans_2008 Опубліковано: 9 грудня 2010 Поділитись Опубліковано: 9 грудня 2010 Я бы на вашем месте (в случае хороших кирпичных стен) пересадил дом на новый фундамент Как можно дом пересадить на новый фундамент? Посилання на коментар Поділитися на інших сайтах More sharing options...
ВАДИМ-КОНСТРУКТОР Опубліковано: 9 грудня 2010 Поділитись Опубліковано: 9 грудня 2010 Как можно дом пересадить на новый фундамент? Захватками. Это не новая технология! Посилання на коментар Поділитися на інших сайтах More sharing options...
mans_2008 Опубліковано: 10 грудня 2010 Поділитись Опубліковано: 10 грудня 2010 Захватками. Это не новая технология! Подробней можно? Посилання на коментар Поділитися на інших сайтах More sharing options...
ВАДИМ-КОНСТРУКТОР Опубліковано: 11 грудня 2010 Поділитись Опубліковано: 11 грудня 2010 Подробней можно? Выкапываем шурф под 1м стены с двух сторон через каждые 3м. Делаем подготовку (в зависимости от грунта) и выполняем армированную бетонную подушку под стеной (шириной - по расчёту), закапываем после того как бетон наберёт хотябы процентов 50-60 прочности, смещаемся захватками на 1м. Длину захватки - определяем по месту, в зависимости от конструкции существующего фундамента. Посилання на коментар Поділитися на інших сайтах More sharing options...
Valentinooo Опубліковано: 12 грудня 2010 Поділитись Опубліковано: 12 грудня 2010 В принципе,подобные схемы применяются в строительстве,но они обязательно должны быть просчитаны по нагрузкам,особенно это касается фундаментов и колонн.А пока могу лишь сказать,что колонны по вашим эскизам должны быть железобетонные,по 4 шт. с каждой стороны сечением не менее 400х400мм с шагом примерно 2.8м в осях,по ним можно положить 3 прогона ПРГ 28.1.3-4 Т (или изготовить балки из 2-х швеллеров №22-24), и затем смонтировать 6 плит ПК 88.15-8. Второй вариант-это кирпичные колонны 510х510мм со всех 4-х сторон с расчетным шагом ,армированные через каждые 2 ряда сеткой ,а сверху монолитное ж/б перекрытие со встроенными балками на ширину колонн по всему периметру и посредине пролета. Фундамент в обоих случаях проектируется в зависимости от грунтов,можно предположить,что это будет монолитная балочная конструкция с пространственным каркасом шириной 500мм на глубину 700мм с расширением 800-1000мм и углублением до 1.1-1.2м в местах расположения колонн... Но, повторяюсь,все это надо просчитывать... Помогите, ПЛЗ, и мне!!! Какие лучше установить колонны (шириной 300*300 хватит?) и какой под них нужно делать фундамент для перекрытия пространства под лестничным маршем панелями перекрытия длинной до 4м. Понадобятся 3 колонны на расстоянии 1-1.5 друг от друга. Остальное пространство 2-го этажа перекрывается такими же панелями, опирающимися на стены (пеноблок). Посилання на коментар Поділитися на інших сайтах More sharing options...
lastandr Опубліковано: 12 грудня 2010 Поділитись Опубліковано: 12 грудня 2010 Помогите, ПЛЗ, и мне!!! Какие лучше установить колонны (шириной 300*300 хватит?) и какой под них нужно делать фундамент для перекрытия пространства под лестничным маршем панелями перекрытия длинной до 4м. Понадобятся 3 колонны на расстоянии 1-1.5 друг от друга. Остальное пространство 2-го этажа перекрывается такими же панелями, опирающимися на стены (пеноблок). Ну,во-первых,опирать ПК на стены из пеноблока без армопояса я вам бы не советоваал,во-вторых,не совсем понятно с перекрытием над лестницей,почему колонны и тем более три?ПК должны опираться на 2 короткие стороны,если только это не коробчатые плиты... Посилання на коментар Поділитися на інших сайтах More sharing options...
Valentinooo Опубліковано: 12 грудня 2010 Поділитись Опубліковано: 12 грудня 2010 Ну,во-первых,опирать ПК на стены из пеноблока без армопояса я вам бы не советоваал,во-вторых,не совсем понятно с перекрытием над лестницей,почему колонны и тем более три?ПК должны опираться на 2 короткие стороны,если только это не коробчатые плиты... Армопояс будет обязательно! Вот только его ширина пока под вопросом... 3 колонны устанавливаются вдоль одной стороны Г-образной лестницы: 1 плита опирается одной короткой стороной на две колонны, 2 плита - на третью колонну и несущую стену. Посилання на коментар Поділитися на інших сайтах More sharing options...
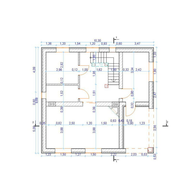
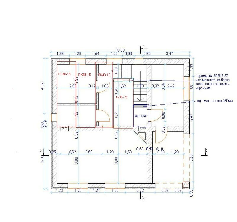
lastandr Опубліковано: 13 грудня 2010 Поділитись Опубліковано: 13 грудня 2010 Армопояс будет обязательно! Вот только его ширина пока под вопросом... 3 колонны устанавливаются вдоль одной стороны Г-образной лестницы: 1 плита опирается одной короткой стороной на две колонны, 2 плита - на третью колонну и несущую стену. Армопояс надо делать на всю ширину пеноблока,если снаружи будет утепление,а если не будет,то на 1/2 кирпича-120мм сдвинуть внутрь. А по перекрытию,если это перекрытие между 1-м и 2-м этажом,то можно сделать так(см.рис.) Сечение 2-х кирпичных колонн 380х380(в полтора кирпича)с армированием кладочной сеткой через 2ряда,фундаменты под них и под кирпичный простенок 250мм можно делать на их ширину+100мм с каждой стороны и глубиной 500мм(т.к. внутри здания) ,желательно фундаменты колонн связать между собой и с основными фундаментами и заливать все одновременно... 1 Посилання на коментар Поділитися на інших сайтах More sharing options...
aleks21 Опубліковано: 14 грудня 2010 Поділитись Опубліковано: 14 грудня 2010 1. Может ли иметь место такая конструкция на колоннах, будет ли она устойчивой 2. Могут ли данные плиты накрыть такой пролет 9м. 3. Достаточно ли 4-х или лучше 3-х колонн с каждой стороны 4. Какое сечение должно быть у данных колонн 5. Какой фундамент необходим для данных колонн Людей обладающих достаточными знаниями просьба подсказать правильное ли направление движения выбрано, вопрос достройки по земле и очень дельный совет всЁ снести и построить заново не рассматривается, интересует только жизнеспособность данной конструкции. Заранее благодарю за ответы. Доброго дня! Из опыта и наработок - отвечаю - ( это мое мнение ) 1. Такая констр. только возможна на колоннах. 2.Плиты накрыть пролет могут, но все равно нужна промежуточная поддержка, ведь и Вы не знаеете нагрузок по итоговой конструкции. 3. При прикидочном расчете - лучше шаг колонн 2,5-2,8 м по осевой. 4.Саму конструкцию и колонны лучше сделать сарной из металла. На него Вы и крышу любую посадите и стяжки для прочности можно сделать . Вопрос эстетики - можно обыграть по разному, наиболее радикальный - зашить все на фиг сайдингом - и смотреться будет и утепление - подшить можно. 5. Можно сделать точки под опоры. Првдв необходимо завязать весь периметр в пояс Посилання на коментар Поділитися на інших сайтах More sharing options...
Ulan Опубліковано: 14 грудня 2010 Поділитись Опубліковано: 14 грудня 2010 2.Плиты накрыть пролет могут, но все равно нужна промежуточная поддержка, ведь и Вы не знаеете нагрузок по итоговой конструкции. каждый строитель должен это знать, как отченаш - пустотные плиты рассчитаны на однопролетное опирание без промежуточных опор и консолей. Посилання на коментар Поділитися на інших сайтах More sharing options...
Andron B Опубліковано: 17 грудня 2010 Поділитись Опубліковано: 17 грудня 2010 (змінено) каждый строитель должен это знать, как отченаш - пустотные плиты рассчитаны на однопролетное опирание без промежуточных опор и консолей. Пане Ulan невжеш в ПТУ У 1988 році за шість місяців викладали проґраму яку,як мінімум у технікому викладають за 3 роки ? І навіщо плиточнику-штукатуру сопромат і технологія матеріалів ? Бідняга ПТУшник. Вам би в міністри освіти.А ще консультації про фундамент даєте . Не згадуй надаремно імя Бога! Змінено 17 грудня 2010 користувачем Andron B Посилання на коментар Поділитися на інших сайтах More sharing options...
Valentinooo Опубліковано: 28 грудня 2010 Поділитись Опубліковано: 28 грудня 2010 А по перекрытию,если это перекрытие между 1-м и 2-м этажом,то можно сделать так(см.рис.) Сечение 2-х кирпичных колонн 380х380(в полтора кирпича)с армированием кладочной сеткой через 2ряда,фундаменты под них и под кирпичный простенок 250мм можно делать на их ширину+100мм с каждой стороны и глубиной 500мм(т.к. внутри здания) ,желательно фундаменты колонн связать между собой и с основными фундаментами и заливать все одновременно... Еще вопрос по посту 15 и 16: можно ли перекрыть лестничное пространство между 1-м и 2-м этажами без использования колонн: т.е. лестничное пространство (вместо двух панелей ПК 48-12 и ПК 36-15 и мололита) залить полностью монолитно по балконному типу? Посилання на коментар Поділитися на інших сайтах More sharing options...
lastandr Опубліковано: 28 грудня 2010 Поділитись Опубліковано: 28 грудня 2010 Еще вопрос по посту 15 и 16: можно ли перекрыть лестничное пространство между 1-м и 2-м этажами без использования колонн: т.е. лестничное пространство (вместо двух панелей ПК 48-12 и ПК 36-15 и монолита) залить полностью монолитно по балконному типу? Можно,только при этом надо будет делать балки из двутавров и швеллеров (либо железобетонные) по периметру лестничного проема,хотя одна стойка(колона) на внутреннем угле лестницы для разгрузки конструкции все-таки не помешает... Посилання на коментар Поділитися на інших сайтах More sharing options...
Valentinooo Опубліковано: 29 грудня 2010 Поділитись Опубліковано: 29 грудня 2010 Спасибо! - одна колонна гораздо лучше смотрится, чем три! Не знала, что в строительстве столько вариантов и нюансов... Только из такого расклада возник еще вопрос: на что будут опираться три короткие балки швеллера по периметру лестничного проема, т .е. длинную и короткие балки швеллера варить придется? сварка нужна в 3-х местах - правильно? Посилання на коментар Поділитися на інших сайтах More sharing options...
lastandr Опубліковано: 29 грудня 2010 Поділитись Опубліковано: 29 грудня 2010 Спасибо! - одна колонна гораздо лучше смотрится, чем три! Не знала, что в строительстве столько вариантов и нюансов... Только из такого расклада возник еще вопрос: на что будут опираться три короткие балки швеллера по периметру лестничного проема, т .е. длинную и короткие балки швеллера варить придется? сварка нужна в 3-х местах - правильно? Они будут опираться одним концом на нижнюю полку двутавра,а вторым на стены или стойку(колону),хотя сварка тоже понадобится... 1 Посилання на коментар Поділитися на інших сайтах More sharing options...
magary4 Опубліковано: 30 грудня 2010 Поділитись Опубліковано: 30 грудня 2010 Я бы на вашем месте (в случае хороших кирпичных стен) пересадил дом на новый фундамент, сделал бы по верху монолитный пояс и выстроил второй этаж! а есть подобные темы? фотки? Посилання на коментар Поділитися на інших сайтах More sharing options...
ВАДИМ-КОНСТРУКТОР Опубліковано: 4 січня 2011 Поділитись Опубліковано: 4 січня 2011 а есть подобные темы? фотки? Это всё индивидуально! Посилання на коментар Поділитися на інших сайтах More sharing options...
Рекомендовані повідомлення
Створіть акаунт або увійдіть у нього для коментування
Ви маєте бути користувачем, щоб залишити коментар
Створити акаунт
Зареєструйтеся для отримання акаунта. Це просто!
Зареєструвати акаунтУвійти
Вже зареєстровані? Увійдіть тут.
Увійти зараз