Vifa Опубліковано: 6 січня 2011 Поділитись Опубліковано: 6 січня 2011 Спецы. Познакомьтесь с тем, кто вначале делает, а потом думает. Поэтому сильно не ругайтесь. У меня в доме смонтирована приточно-вытяжная вентиляция. Никто ее не рассчитывал. Пластиковые трубы разных сечений, гибкие воздуховоды, грибки на выходах и т.д. Приток и отток выведены на чердак для подключения рекуператора. Выведен в канализацию с чердака шланг для конденсата. Как рассчитать рекуператор? Будет это все работать? Файл прилагаю. Посилання на коментар Поділитися на інших сайтах More sharing options...
Альберт (СТЕП) Опубліковано: 8 січня 2011 Поділитись Опубліковано: 8 січня 2011 1. Где стоит приточно -вытяжная установка? 2. Мощность И вообще по-больше информации... Посилання на коментар Поділитися на інших сайтах More sharing options...
Vifa Опубліковано: 9 січня 2011 Автор Поділитись Опубліковано: 9 січня 2011 1. Где стоит приточно -вытяжная установка? 2. Мощность И вообще по-больше информации... Приточно-вытяжной установки нет. Планировал ставить на чердак. Трубы диаметром 150 мм (приток/отток) выведены на чердак. Чердак холодный. В основном разводка ПВХ трубами 200х60 мм производства "Вентс". В крыше предусмотрены отверстия для забора воздуха. Если вам не трудно, перечислите вопросы, а я на них отвечу. Посилання на коментар Поділитися на інших сайтах More sharing options...
Maestro Kiev Опубліковано: 10 січня 2011 Поділитись Опубліковано: 10 січня 2011 Если вам не трудно, перечислите вопросы, а я на них отвечу. По холодному чердаку утепляйте воздуховоды. Для начала по Вашей системе: 1. Расход наружного воздуха и внутреннего, [м3/ч]. 2. Потери давления системы, [Па]. 3. Тип нагрева наружного воздуха (вода/эл-во/газ). 4. Тип рекуператора (противоточный, перекрестноточный пластинчатый, роторный, тепловой насос и т.д). Без контактных данных мы не прорабатываем запросы и потребитель должен понимать, что без тезданных нереально дать ответ по цене - вышлите планировки на office@vecotech.com.ua и напишите что Вы хотите. Мало того, пожалуюсь - нам шлют интернет-магазины планировки чтобы мы считывали им коммерческие... P.S. На данном форуме описаны ответы на 95% новых вопросов по системам микроклимата - многое уже оговорено. Посилання на коментар Поділитися на інших сайтах More sharing options...
Vifa Опубліковано: 10 січня 2011 Автор Поділитись Опубліковано: 10 січня 2011 По холодному чердаку утепляйте воздуховоды. Для начала по Вашей системе: 1. Расход наружного воздуха и внутреннего, [м3/ч]. 2. Потери давления системы, [Па]. 3. Тип нагрева наружного воздуха (вода/эл-во/газ). 4. Тип рекуператора (противоточный, перекрестноточный пластинчатый, роторный, тепловой насос и т.д). Без контактных данных мы не прорабатываем запросы и потребитель должен понимать, что без тезданных нереально дать ответ по цене - вышлите планировки на office@vecotech.com.ua и напишите что Вы хотите. Мало того, пожалуюсь - нам шлют интернет-магазины планировки чтобы мы считывали им коммерческие... P.S. На данном форуме описаны ответы на 95% новых вопросов по системам микроклимата - многое уже оговорено. Проверьте, пожалуйста, почту Посилання на коментар Поділитися на інших сайтах More sharing options...
Vifa Опубліковано: 14 січня 2011 Автор Поділитись Опубліковано: 14 січня 2011 По холодному чердаку утепляйте воздуховоды. Для начала по Вашей системе: 1. Расход наружного воздуха и внутреннего, [м3/ч]. 2. Потери давления системы, [Па]. 3. Тип нагрева наружного воздуха (вода/эл-во/газ). 4. Тип рекуператора (противоточный, перекрестноточный пластинчатый, роторный, тепловой насос и т.д). Без контактных данных мы не прорабатываем запросы и потребитель должен понимать, что без тезданных нереально дать ответ по цене - вышлите планировки на office@vecotech.com.ua и напишите что Вы хотите. Мало того, пожалуюсь - нам шлют интернет-магазины планировки чтобы мы считывали им коммерческие... P.S. На данном форуме описаны ответы на 95% новых вопросов по системам микроклимата - многое уже оговорено. Кто-то может помочь по данному вопросу??? Maestro Kiev не отреагировал на мое электронное письмо. Мне не нужны ответы на вопросы - мне нужно, чтобы кто-то (за деньги) рассчитал мне необходимый рекуператор и помог его приобрести и установить! (за деньги) Посилання на коментар Поділитися на інших сайтах More sharing options...
Maestro Kiev Опубліковано: 14 січня 2011 Поділитись Опубліковано: 14 січня 2011 (змінено) Вот например сейчас на почте мой фирмы - с 19ч пришло 9 планировок и техзаданий. Вероятно это Ваш запрос: Тема: Нужен рассчет рекуператора От: Фатеев <fateev67@gmail.com> Тема: [Fwd: запрос] Дата: 14 января 2011, 20:49:29 Размер: 354К Если так, то извольте - сегодня пятница, а получили на электронку как Вы видите в 20:49:29 Ну и если Вас так волнует судьба Вашего запроса, то могли бы даже позвонить когда писали этот пост. Несмотря на зиму мы и завтра работаем, у нас много заказчиков из которых мы выбираем сами адекватных, т.к. мало у нас конкурентов или у них дорого. Мы отрабатываем деньги которые нам уже оплатили и кидать все, ради пришедшего запроса на фирмы мы не будем. Нас просят брендовые заводы и фабрики рассчитать рекуператор и шлют оговоренную оплату за его расчет. Что считать рекуператор на 100000м3/ч, что на 1000м3/ч по времени трудозатрат одинаково... Вас я просил указать: По холодному чердаку утепляйте воздуховоды. Для начала по Вашей системе: 1. Расход наружного воздуха и внутреннего, [м3/ч]. 2. Потери давления системы, [Па]. 3. Тип нагрева наружного воздуха (вода/эл-во/газ). 4. Тип рекуператора (противоточный, перекрестноточный пластинчатый, роторный, тепловой насос и т.д). Без контактных данных мы не прорабатываем запросы и потребитель должен понимать, что без тезданных нереально дать ответ по цене - вышлите планировки на office@vecotech.com.ua и напишите что Вы хотите. Мало того, пожалуюсь - нам шлют интернет-магазины планировки чтобы мы считывали им коммерческие... Вы прислали ответ: Готов оплатить выезд специалиста на место, для уточнения тех деталей. Хорошо что понимаете. Я как руководитель, могу бесплатно послать к Вам низкого уровня спеца, или опытного, а может к Вам сам приеду если вопрос интересен. Но что толку с выезда если не понятно о чем говорить с Вами на объекте - рекуператоров типов много и нюансов так же. Не буду Вам "парить" выгодные карману решения, а подобрать рекуператор без расхода воздуха я не могу физически или не хочу Вас разводить выгодным, но нереальным КПД рекуператора. В любом деле есть 3 критерия: дешево, быстро и качественно - выбирайте сами. Мы стараемся этот принцип развенчать, но если Вы против и готовы платить, то будет быстро и качественно. Вы готовы к этому? Змінено 14 січня 2011 користувачем Maestro Kiev 1 Посилання на коментар Поділитися на інших сайтах More sharing options...
Vifa Опубліковано: 16 січня 2011 Автор Поділитись Опубліковано: 16 січня 2011 По холодному чердаку утепляйте воздуховоды. Для начала по Вашей системе: 1. Расход наружного воздуха и внутреннего, [м3/ч]. 2. Потери давления системы, [Па]. 3. Тип нагрева наружного воздуха (вода/эл-во/газ). 4. Тип рекуператора (противоточный, перекрестноточный пластинчатый, роторный, тепловой насос и т.д). 1. Я не знаю 2. Я не знаю 3. Электричество 4. Я не понимаю Я не специалист. Поэтому как вам предоставить данные, объясните, пожалуйста, на уровне деревенской табуретки. Что мерять, на что умножать, куда смотреть и т.д. Я считал, что для этих целей и нужен выезд специалиста на место. Если вам не интересно, то посоветуйте кто может заняться для меня решением вопроса. Посилання на коментар Поділитися на інших сайтах More sharing options...
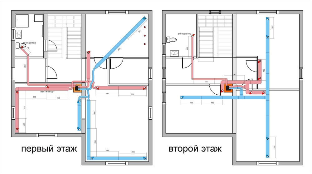
Maestro Kiev Опубліковано: 16 січня 2011 Поділитись Опубліковано: 16 січня 2011 Вчера Вам еще написал в ответ на Вашу электронку; ушло 15 января 2011, 14:05:42 в ответ на Ваше письмо: Поверхностно рассмотрев Ваши схемы замечу: 1. Отсутствуют клапана регулировки на ответвлениях. Возможна регулировка решетками, но расположенные не далеко от стояка возможно будут создавать шум. 2. Предельный расход воздуха по каждому каналу составит 170м3/ч, мах 250м3/ч. 3. Если предварительно взять грубо 5 каналов, что не совсем четко ясно по чертежу, то выйдем на мах 170х5=850 - 250х5=1000м3/ч. При расходе воздуха в 1000м3/ч в стояках и клапанах регулировки высока вероятность образования шума. Ввиду чего рекомендую режим работы принять мах расход воздуха 1000м3/ч, эксплуатационный расход 850м3/ч, в ночное время значительно меньше. Обеспечить систему регулятором оборотов вентиляторов для возможности выставить баланс систем притока и вытяжки, обеспечить контроль производительности, расхода энергии на нагрев и уровня шума. Это все конечно предварительные заключения. Тип нагрева решает существенную роль в выборе оборудования (вода, электрика дешевле всего, газ Вам не выгодно). Типы рекуператоров существенно отличаются по эффективности и стоимости. Реально необходимо посмотреть на месте. Как я понял здание находится в Боярке? Посилання на коментар Поділитися на інших сайтах More sharing options...
Рекомендовані повідомлення
Створіть акаунт або увійдіть у нього для коментування
Ви маєте бути користувачем, щоб залишити коментар
Створити акаунт
Зареєструйтеся для отримання акаунта. Це просто!
Зареєструвати акаунтУвійти
Вже зареєстровані? Увійдіть тут.
Увійти зараз