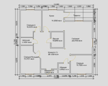
irka1983 Опубліковано: 11 січня 2011 Поділитись Опубліковано: 11 січня 2011 Здравствуйте. У нас земельный участок 10сот. Выбираем проект. Покритикуйте нашу планировку дома. Дом на 4 человекаДом.bmp Посилання на коментар Поділитися на інших сайтах More sharing options...
Viks Опубліковано: 11 січня 2011 Поділитись Опубліковано: 11 січня 2011 Здравствуйте. У нас земельный участок 10сот. Выбираем проект. Покритикуйте нашу планировку дома. Дом на 4 человека Плохое качество картинки... Но что бросается в глаза из минусов - комфортно будет только в спальнях - маленький с/у - куда ставить на 4м2 стиралку, сушку, унитаз, душ, умывальник? - гостинная - не сильно много места для столовой + гостинная зона небольшая - где тех-помещение, кладовка? котельня напр? на кухне? 2м2 без окна - это скорее гардеробная А что-то покомпактние но 2-х этажное или с жилой масандрой не смотрели? Ну или Г или Т-образные хотябы польские проекты (ссылка устарела) - проект Дмитрій напр. только вместо гаража комната А квадратная коробка 12х13 в один этаж - мрачновато... Посилання на коментар Поділитися на інших сайтах More sharing options...
AНДРЮША Опубліковано: 12 січня 2011 Поділитись Опубліковано: 12 січня 2011 Входной двери не увидел, кроме из кухни на террасу. Посилання на коментар Поділитися на інших сайтах More sharing options...
irka1983 Опубліковано: 12 січня 2011 Автор Поділитись Опубліковано: 12 січня 2011 (змінено) С/у 6м2(хотелось бы конечно побольше, но площадь дома не увеличивая). Котельная между спальнями 2,9м2, машинку стиральную хочу тоже туда, (котел на стену машинку под ним) окно забыла туда приделать-будет. Хочется найти такую золотую середину чтобы и жить комфортно и в обслуживании было не дорого и не сильно хлопотно.(у родителей 500м2, пошли на пенсию за газ 10000р в мес. и полы мыть 3этажа, а дети все разъехались) Змінено 12 січня 2011 користувачем irka1983 Посилання на коментар Поділитися на інших сайтах More sharing options...
irka1983 Опубліковано: 12 січня 2011 Автор Поділитись Опубліковано: 12 січня 2011 Улучшила качество. Насчет гостинной - увеличить до конца кухни? Терраса из кухни и прикрыта ее стеной мне кажется удобной, хотя я думаю об этом. 2 этажа не хочу принципиально. Посилання на коментар Поділитися на інших сайтах More sharing options...
irka1983 Опубліковано: 12 січня 2011 Автор Поділитись Опубліковано: 12 січня 2011 (ссылка устарела) - проект Дмитрій напр. только вместо гаража комната Дмитрий понравился. но носить через всю гостинную еду и посуду на террасу?? и коридор между спальнями и ванной узкий(ощущение квартиры). Мы не хотели квадратный дом, но продумывая планировку получилось так. Посилання на коментар Поділитися на інших сайтах More sharing options...
Музей Опубліковано: 12 січня 2011 Поділитись Опубліковано: 12 січня 2011 Если закрыть глаза на отсутствие 2-го этажа, чего я лично не воспринимаю, то я бы обратила внимание на следующие вещи. · Надо увеличить топочную. Тем более, что Вы намерены расположить там стиралку. · Кроме того, топочная будет создавать «приятный шум» в обеих спальнях, а разводку будете делать по всему дому, т.к. кухня, с\у-лы и топочная не расположены рядом друг с другом. · В ванной нет окна – это не модно. Да и ванная, как центр дома, не лучший вариант. · Зачем Вам эта 26-ти метровая комната 1? · А тамбур (комната 2)? Я бы увеличила максимально, т.к. именно там я бы снимала обувь и мокрые плащи, оставляя в тамбуре весь песок, пыль, зонты и пр. Открыватьи закрывать двери будет крайне неудобно. И, по моему, при таком расстоянии от двери до двери можно проходить только по одному. · Как будут выглядеть фасады? У Вас входная дверь и не в центре и не с краю. А будет ли над ней козырёк или что-нибудь в этом роде? · Где у Вас Юг? Посилання на коментар Поділитися на інших сайтах More sharing options...
Oleksandr Protsev Опубліковано: 12 січня 2011 Поділитись Опубліковано: 12 січня 2011 Дом-, просто мечта сантехника. Разводка воды и канализации, может занять первое место, на форуме, по стоимости. Посмотрите по темам, у кого уже готовы топочные, сколько туда нужно впихнуть помимо стиралки. 1 Посилання на коментар Поділитися на інших сайтах More sharing options...
irka1983 Опубліковано: 12 січня 2011 Автор Поділитись Опубліковано: 12 січня 2011 Спасибо. Согласна со всем кроме2х этажей. Сейчас еще и папа что то про фундамент говорил, что должно хотя бы 5 стен фундаментных (для связи), а у на непонятно где 5-ю делать? пожоже и этот план в топку. В инете горы проектов - и ни что не нравится(((. Мы хотим: 1этаж 120-160м2. Кухня смежная с гостинной но не на всю ширину кухни(чтобы небольшой рабочий беспорядок не портил настроение отдыхающим в гостинной) Террасу из кухни. 3 спальни желательно изолированные др.от др. В топочную хочу вход из большой ванной (стир.машинку туда и корзины с бельем.) Помогите Посилання на коментар Поділитися на інших сайтах More sharing options...
Музей Опубліковано: 12 січня 2011 Поділитись Опубліковано: 12 січня 2011 Помощь и критика - понятия противоположные друг другу. Критик - почти всегда прав и может показаться очень умным. Тот кто помогает вряд ли сможет угодить.:D Нарисуйте ситуацию на участке. Я вечером поиграю в архитектора. Вдруг смогу помочь. Хотя 1 этажный дом меня не вдохновляет. Посилання на коментар Поділитися на інших сайтах More sharing options...
kamin_2006 Опубліковано: 12 січня 2011 Поділитись Опубліковано: 12 січня 2011 Спасибо. Согласна со всем кроме2х этажей. Сейчас еще и папа что то про фундамент говорил, что должно хотя бы 5 стен фундаментных (для связи), а у на непонятно где 5-ю делать? пожоже и этот план в топку. В инете горы проектов - и ни что не нравится(((. Мы хотим: 1этаж 120-160м2. Кухня смежная с гостинной но не на всю ширину кухни(чтобы небольшой рабочий беспорядок не портил настроение отдыхающим в гостинной) Террасу из кухни. 3 спальни желательно изолированные др.от др. В топочную хочу вход из большой ванной (стир.машинку туда и корзины с бельем.) Помогите Посмотрите такие варианты, если планируете гараж в доме proekty.muratordom.com.ua/projekt_dom-dlia-tiebia,361,1,0.htm?frm_search=1&id_grupy=0&symbol=%D0%BC14&powierzchnia_od=%D0%BE%D1%82&powierzchnia_do=%D0%B4%D0%BE&powierzchnia_zab_od=%D0%BE%D1%82&powierzchnia_zab_do=%D0%B4%D0%BE&typ_budynku_dom=brak_dom&typ_budynku_garaz=brak_garaz&x=0&y=0&nr=0 или proekty.muratordom.com.ua/projekt_obdumannyi,555,1,0.htm?frm_search=1&id_grupy=0&symbol=%D0%BC42&powierzchnia_od=%D0%BE%D1%82&powierzchnia_do=%D0%B4%D0%BE&powierzchnia_zab_od=%D0%BE%D1%82&powierzchnia_zab_do=%D0%B4%D0%BE&typ_budynku_dom=brak_dom&typ_budynku_garaz=brak_garaz&x=0&y=0&nr=1 или Вы планируете отдельностоящий? Посилання на коментар Поділитися на інших сайтах More sharing options...
irka1983 Опубліковано: 12 січня 2011 Автор Поділитись Опубліковано: 12 січня 2011 Помощь и критика - понятия противоположные друг другу. Критик - почти всегда прав и может показаться очень умным. Тот кто помогает вряд ли сможет угодить.:D Нарисуйте ситуацию на участке. Я вечером поиграю в архитектора. Вдруг смогу помочь. Хотя 1 этажный дом меня не вдохновляет. Участок 35м(по улице) 30м глубина. нужен гараж отдельный на 2 машины и баню не далеко от террасы. Посилання на коментар Поділитися на інших сайтах More sharing options...
irka1983 Опубліковано: 12 січня 2011 Автор Поділитись Опубліковано: 12 січня 2011 Подвал не хотим.Жила с родителями в большом доме с подвалом. Безполезная площадь где скапливается хлам. но спасибо за предложение. Посилання на коментар Поділитися на інших сайтах More sharing options...
irka1983 Опубліковано: 12 січня 2011 Автор Поділитись Опубліковано: 12 січня 2011 Есть еще такой вариант сама придумала. но муж говорит что гостинная темная будет с одним окном и террасой. Посилання на коментар Поділитися на інших сайтах More sharing options...
Музей Опубліковано: 12 січня 2011 Поділитись Опубліковано: 12 січня 2011 Я думаю, что это неправильный подход. Хотя концепция у Вас есть. Но, прежде чем планировать кухни и спальни надо спланировать участок. Иначе, может так случиться, что для того, чтобы проехать в гараж Вы будете вынуждены снести баньку. Я не архитектор, но планирую строить дом и тоже убила много времени на создание проекта. Мне приходилось жить в различных домах и квартирах. Я учла свой опыт. Лично мне, важна каждая деталь. Я не думаю, что Вам понравиться, если окна гостиной будут выходить на стенку гаража. И таких неприятных сюрпризом может быть очень много. Нарисуйте Ваш участок. Обозначьте стороны света. Это очень важно. Сделайте более-менее точный план участка. Дом, гаражи, баньки, патио, септик!!!, подъезды и проходы ко всем строениям. В конце концов, необходимо учесть, что находиться на участках Ваших соседей. Т.к. их пальмы могут затенять ваш фонтан. :D Я хочу сказать, что дом и участок – это единый проект. После этого Вы увидите Ваш дом по-иному. А архитектор сможет предложить Вам именно то, что Вы желаете. Это моё личное мнение. Желаю успехов. Посилання на коментар Поділитися на інших сайтах More sharing options...
irka1983 Опубліковано: 12 січня 2011 Автор Поділитись Опубліковано: 12 січня 2011 Спасибо. Попробую. только теперь вообще%) Посилання на коментар Поділитися на інших сайтах More sharing options...
Музей Опубліковано: 12 січня 2011 Поділитись Опубліковано: 12 січня 2011 Уж лучше %) сейчас, чем после того, как Вы закопаете в змлю 50000 убитых Вами енотов, а то и больше. Успехов. Дайте знать, что у Вас получилось. Или не получилось...%) Посилання на коментар Поділитися на інших сайтах More sharing options...
Viks Опубліковано: 12 січня 2011 Поділитись Опубліковано: 12 січня 2011 (ссылка устарела) - проект Дмитрій напр. только вместо гаража комната Дмитрий понравился. но носить через всю гостинную еду и посуду на террасу?? и коридор между спальнями и ванной узкий(ощущение квартиры). Мы не хотели квадратный дом, но продумывая планировку получилось так. Посмотрите - Менует E-345 А Вы уверенны что исходя из планировки вы сможете получить толковый фасад? Посилання на коментар Поділитися на інших сайтах More sharing options...
руки_из_попы Опубліковано: 14 січня 2011 Поділитись Опубліковано: 14 січня 2011 одного сан узла маловато будет.. Посилання на коментар Поділитися на інших сайтах More sharing options...
Babinuk Опубліковано: 15 січня 2011 Поділитись Опубліковано: 15 січня 2011 Мне проєкт не понравился=квадрат=очень плохо будет смотреться крыша,нет внутри дома капитальной стены ,куда ложить балки?,нет прихожей. Посилання на коментар Поділитися на інших сайтах More sharing options...
olya7715 Опубліковано: 28 січня 2011 Поділитись Опубліковано: 28 січня 2011 Немного Вам стоит подкорректировать: 1. Из топочной должен быть выход на улицу, по ДБНУ, или каким-то там нормам. 2. Вход в топочную через ванную, это как минимум странно. 3. В гостиной, большой спальне и на кухне мало окон А в целом очень даже миленько =)) Посилання на коментар Поділитися на інших сайтах More sharing options...
irka1983 Опубліковано: 31 січня 2011 Автор Поділитись Опубліковано: 31 січня 2011 А.... На кухне окдо забыла нарисовать-будет, а в гостинной с удовольствием бы , но некуда, а в спальне считаю достаточно. Вход в топочную из ванной хочу принципиально. Котлы сейчас есть маленькие, настенные, а под ним машинку стиральную поставить, сушилку там же и корзину с бельем, чтобы в ванной было эстетично, а на постирочную места жалко. Посилання на коментар Поділитися на інших сайтах More sharing options...
wironna Опубліковано: 31 січня 2011 Поділитись Опубліковано: 31 січня 2011 Вот Вам еще вариант, как мне кажется, неплохой планировки, 154 кв.м. с гаражом (проект "Любовь", если понравится, - напишите, поищу сайт, на котором он мне встретился): Parter: 1. Wiatroіap 10,5 m2 2. Hall 5,1 m2 3. WC 1,4 m2 4. Kuchnia 11,2 m2 5. Pokуj dzienny 31,6 m2 6. Przedpokуj 7,1 m2 7. Pokуj 14,7 m2 8. Pokуj 17,5 m2 9. Pokуj 13,3 m2 10. Garderoba 3,5 m2 11. Јazienka 10,1 m2 12. Kotіownia 6,3 m2 13. Garaї 21,6 m2 Посилання на коментар Поділитися на інших сайтах More sharing options...
Рекомендовані повідомлення
Створіть акаунт або увійдіть у нього для коментування
Ви маєте бути користувачем, щоб залишити коментар
Створити акаунт
Зареєструйтеся для отримання акаунта. Це просто!
Зареєструвати акаунтУвійти
Вже зареєстровані? Увійдіть тут.
Увійти зараз