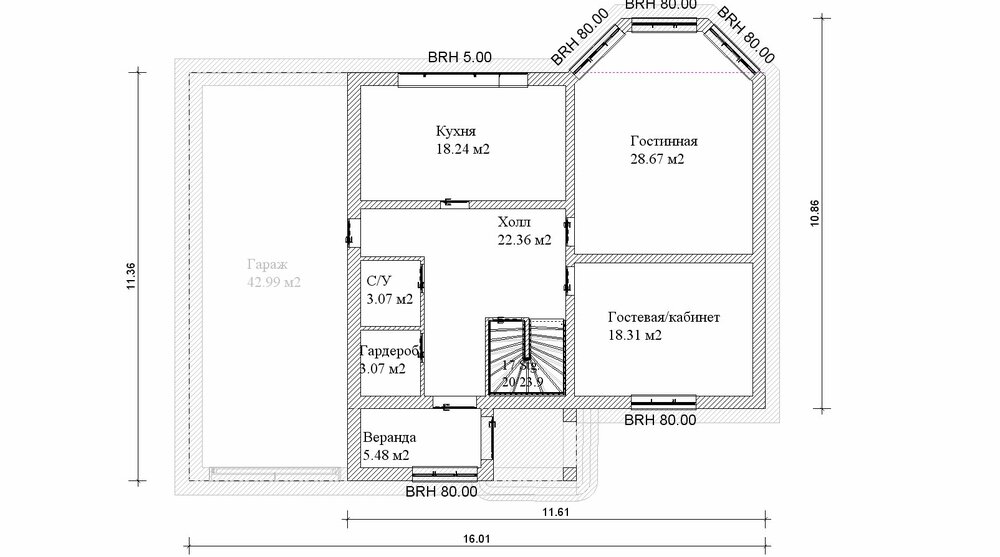
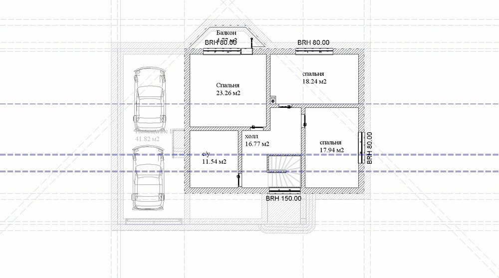
loeron Опубліковано: 29 січня 2011 Поділитись Опубліковано: 29 січня 2011 (змінено) Доброго времени всем форумчанам. Есть мечта, построить свой дом. В данный момент появилась призрачная надежда на то, что она может осуществиться и даже в ближайшем будущем. Собственно нужна оценка финансовой стороны. Поэтому ищу толкового архитектора который бы смог сделать мне, за вменяемую(разумную) сумму проект и рассчитал бы материалы. Я приблизительно накидал в Arcon то что я хотел бы построить. И выкладываю все на суд общественности. Немного вводных по участку, в прицепе ровный на месте строительства, но довольно высоки грунтовые воды по словам владельцев - 5 метров от уровня земли. На участке была произведена насыпка земли 20 лет назад, 1.5 метра. Предполагаемый основной материал стен - шлакоблок. Снаружи утепление, штукатурка, покраска. Высота потолков: цоколь - 2.6м Первый этаж - 3 м Второй этаж - 2.80м Чердачный ? как получится Прилагаемые планы были набросаны мною в программе Arcon 2005, для тех, у кого есть эта программа приложен исходник в zip файле. Не судите строго, я тока учусь SweetHome.zip Змінено 29 січня 2011 користувачем loeron Посилання на коментар Поділитися на інших сайтах More sharing options...
loeron Опубліковано: 29 січня 2011 Автор Поділитись Опубліковано: 29 січня 2011 (змінено) Второй вариант дома. К сожалению первый раз не то выложил, но в прицепе по площади они одинаковые практически.SweetHome1.zip Змінено 29 січня 2011 користувачем loeron Посилання на коментар Поділитися на інших сайтах More sharing options...
loeron Опубліковано: 29 січня 2011 Автор Поділитись Опубліковано: 29 січня 2011 (змінено) Отвечу на наиболее часто задаваемые вопросы про мой проект. 1. Зачем такой большой. Ну как бы дом рассчитан на семью из 4х человек, родители и 2е детей. Поэтому имеет 3 спальни на втором этаже, 1 для родителей с балконом и по одной на каждого ребенка. Первый этаж иметт исключительно общее назначение. 2. Зачем цокольный этаж. Ну во первых для размещения сауны . На самом деле сауна и спортзал не самые важные элементы и тем более не самые необходимые. Цокольный этаж нужен, в первую очередь, для нагрева основных этажей и для размещения всех элементов отопления, также я планирую, рано или поздно обеспечить полную автономность дома, следовательно мне нужно место для котельной и для силовой, где я размещу генератор и силовые батареи. 3. Почему полный второй этаж, а не мансардный. Люблю тишину, следовательно барабанная дробь дождя по крыше над головой будет меня несколько раздражать . Опятьже с целью энерго независимости и т.д. планирую разместить на крыше солнечные батареи, которые нужно будет как-то обслуживать, а следовательно нужен будет удобный выход к ним, что легче реализуется с чердака, а не с мансарды. Во вторых, планирую разместить на чердаке дополнительную емкость для воды, для обеспечения напора в душе как то так. Змінено 30 січня 2011 користувачем loeron Посилання на коментар Поділитися на інших сайтах More sharing options...
loeron Опубліковано: 30 січня 2011 Автор Поділитись Опубліковано: 30 січня 2011 Очень хочу услышать комментарии от тех кто уже построил дома своей мечты. На пример, нужен ли камин в доме и т.д. Посилання на коментар Поділитися на інших сайтах More sharing options...
_knopko_ Опубліковано: 30 січня 2011 Поділитись Опубліковано: 30 січня 2011 Очень хочу услышать комментарии от тех кто уже построил дома своей мечты. На пример, нужен ли камин в доме и т.д. Думаю, что лучше разместить вам свою тему по поводу планировок в другом разделе. Там, где обсуждают проекты. Там более посещаемые места Посилання на коментар Поділитися на інших сайтах More sharing options...
loeron Опубліковано: 30 січня 2011 Автор Поділитись Опубліковано: 30 січня 2011 спасибо - перенес) Посилання на коментар Поділитися на інших сайтах More sharing options...
Технолог Опубліковано: 30 січня 2011 Поділитись Опубліковано: 30 січня 2011 Добрый день! Простите,но материал для стен совсем не подходит для коттеджной застройки! Чем мотивируется Ваш выбор? И наличие цокольного этажа и чердака дает удорожание Вашего строения мин. на 30 %,хотя вполне возможно грамотно разместить в площади первого и второго! Посилання на коментар Поділитися на інших сайтах More sharing options...
loeron Опубліковано: 30 січня 2011 Автор Поділитись Опубліковано: 30 січня 2011 Добрый день! Простите,но материал для стен совсем не подходит для коттеджной застройки! Чем мотивируется Ваш выбор? И наличие цокольного этажа и чердака дает удорожание Вашего строения мин. на 30 %,хотя вполне возможно грамотно разместить в площади первого и второго! Честно говоря особой мотивации нет, на самом деле я похоже перепутал материалы по не опытности Наверное правильное название это газобетон Чердак однозначно будет, так как мансардный этаж не нравится ни мне по причинам звукоизоляционным ни моей жене в плане неровности потолков. Поэтому даже не обсуждается его наличие. По поводу цокаля, готов к конструктивному разговору . Изначально цоколь предполагался как тепловая защита пола на первом этаже. Затем он наполнился функциональными помещениями и прижился в базовом плане дома. Посилання на коментар Поділитися на інших сайтах More sharing options...
Технолог Опубліковано: 30 січня 2011 Поділитись Опубліковано: 30 січня 2011 Газоблок на клей фирмы Аэрок и будет Вам счастье! Ну если хотите чердак тогда не вопрос! Цоколь лучше убрать. Вопросы: 1)Какой вид кровельного материала предполагается? 2)Наличие коммуникаций на участке? 3)Какие пожелания по отделке? 3) Посилання на коментар Поділитися на інших сайтах More sharing options...
INTERRO Опубліковано: 30 січня 2011 Поділитись Опубліковано: 30 січня 2011 Очень хочу услышать комментарии от тех кто уже построил дома своей мечты. На пример, нужен ли камин в доме и т.д. Отпишитесь мне в личку, поедем смотреть ваш виртуальный домик И не забудьте взять с собой ваши бумажные планы! Посилання на коментар Поділитися на інших сайтах More sharing options...
loeron Опубліковано: 30 січня 2011 Автор Поділитись Опубліковано: 30 січня 2011 Отпишитесь мне в личку, поедем смотреть ваш виртуальный домик И не забудьте взять с собой ваши бумажные планы! Спасибо за предложение но пока не на что смотреть, у часток только в процессе покупки и займет это дело еще пару месяцев. Так что вести пока не куда. К томуже проекта нет еще, есть только мои наброски которые не имеют привязки к материалам и реальным требованиям. В данный момент у меня чисто математическая задача получить цифру в деньгах... как бы вот такое количество площади будет стоить столько то. Ну определиться с материалами конечно. Посилання на коментар Поділитися на інших сайтах More sharing options...
loeron Опубліковано: 30 січня 2011 Автор Поділитись Опубліковано: 30 січня 2011 Газоблок на клей фирмы Аэрок и будет Вам счастье! Ну если хотите чердак тогда не вопрос! Цоколь лучше убрать. Вопросы: 1)Какой вид кровельного материала предполагается? 2)Наличие коммуникаций на участке? 3)Какие пожелания по отделке? 3) 1. Не определился еще, хотелбы получить рекомендации 2. Комуникации на участке все есть. Но возможно будет нужно сделать новый септик и новую скважину. 3. Если имеется в виду наружная отделка то штукатурка с покраской. О внутренней пока даже не мечтаю. Бюджет ограничен, основная задача выгнать коробку с крышей и окнами/дверьми, внутри черновая штукатурка. Внутренюю отделку уже буду делать в основном сам по мере получения зарплаты Посилання на коментар Поділитися на інших сайтах More sharing options...
Dex-paketa Опубліковано: 30 січня 2011 Поділитись Опубліковано: 30 січня 2011 Добрый день! Простите,но материал для стен совсем не подходит для коттеджной застройки! Чем мотивируется Ваш выбор? А можно небольшой оффтоп на 1 сообщение? Объясните, почему шлакоблок не подходит? (я сам его не планирую, просто его недостатки не сильно понимаю). Посилання на коментар Поділитися на інших сайтах More sharing options...
Aleks1977 Опубліковано: 31 січня 2011 Поділитись Опубліковано: 31 січня 2011 Вопросы очень интересные... мне тоже интересно услышать ответы... так как также планирую делать цокольный этаж... так как для меня он необходим потому что ну очень хочу спортзал и сауну... плюс топочную и холодильную(продуктовую) комнаты лучше всего иметь в подвале и не тратить живую площадь. Я расчитываю делать фундамент из бетонных фундаментных блоков или монолитный фундамент (просто залить бетоном с арматурой) этаж перекрывать плитами... Еще не знаю плюсы и минусы этого... хотелось бы узнать... Мне интересно узнать где опасность просадки фундамента выше: монолитного или из сборных блоков... и что дешевле? где можно съэкономить и т.п. вещи... Посилання на коментар Поділитися на інших сайтах More sharing options...
loeron Опубліковано: 31 січня 2011 Автор Поділитись Опубліковано: 31 січня 2011 Вопросы очень интересные... мне тоже интересно услышать ответы... так как также планирую делать цокольный этаж... так как для меня он необходим потому что ну очень хочу спортзал и сауну... плюс топочную и холодильную(продуктовую) комнаты лучше всего иметь в подвале и не тратить живую площадь. Я расчитываю делать фундамент из бетонных фундаментных блоков или монолитный фундамент (просто залить бетоном с арматурой) этаж перекрывать плитами... Еще не знаю плюсы и минусы этого... хотелось бы узнать... Мне интересно узнать где опасность просадки фундамента выше: монолитного или из сборных блоков... и что дешевле? где можно съэкономить и т.п. вещи... +1 я вот тоже как-то без цоколя плохо представляю себе дом. Все выходные пытался представить себе дом без цоколя и как-то не очень получается. Хотя ценовой аргумент очень сильный. Посилання на коментар Поділитися на інших сайтах More sharing options...
Хохол Опубліковано: 31 січня 2011 Поділитись Опубліковано: 31 січня 2011 я-б исключил цоколь аргументы- дорого, высоко грунтовые воды. Шлакоблок тоже не самая хоошая идея, есть газобетон или термодом. Балкон на втором этаже- мост холода от которого не уйти. Два санузла рядом ? Смысл .... Посилання на коментар Поділитися на інших сайтах More sharing options...
Gitan Опубліковано: 31 січня 2011 Поділитись Опубліковано: 31 січня 2011 Не делайте гараж в цоколе. Или будет длинный пандус для выьзда, что украдет много замли на участке, или сделав короткий вьезд, заколотите его со временем . По зиме не выедете. Посилання на коментар Поділитися на інших сайтах More sharing options...
loeron Опубліковано: 31 січня 2011 Автор Поділитись Опубліковано: 31 січня 2011 я-б исключил цоколь аргументы- дорого, высоко грунтовые воды. Шлакоблок тоже не самая хоошая идея, есть газобетон или термодом. Балкон на втором этаже- мост холода от которого не уйти. Два санузла рядом ? Смысл .... Ну шлакоблок это просто ошибка. Естественно газобетон будет. Ну этот мост холода решается хорошим стекло пакетом, поэтому не очень пугает. Хотя вполне возможно в конечном проекте балкона и не будет, сейчас работаю над уменьшением площади, а то как то много получилось. Про цоколь. Знаете вот дорого конечно это проблема, но вот как аргумент как-раз не очень. Опять же пока нет на руках геодезии поэтому окончательного решения нет. Собственно из того что я прочел, выходит, что если высоки грунтовые воды то цоколь как-раз и нужно делать причем очень добротный и с хорошей системой дренажа вокруг него. Посилання на коментар Поділитися на інших сайтах More sharing options...
loeron Опубліковано: 31 січня 2011 Автор Поділитись Опубліковано: 31 січня 2011 Не делайте гараж в цоколе. Или будет длинный пандус для выьзда, что украдет много замли на участке, или сделав короткий вьезд, заколотите его со временем . По зиме не выедете. Нет, гараж в цоколе не планируется. Гараж отдельной пристройкой, просто в программе он как отдельное здание идет поэтому на планах серый. Посилання на коментар Поділитися на інших сайтах More sharing options...
Технолог Опубліковано: 31 січня 2011 Поділитись Опубліковано: 31 січня 2011 1. Не определился еще, хотелбы получить рекомендации 2. Комуникации на участке все есть. Но возможно будет нужно сделать новый септик и новую скважину. 3. Если имеется в виду наружная отделка то штукатурка с покраской. О внутренней пока даже не мечтаю. Бюджет ограничен, основная задача выгнать коробку с крышей и окнами/дверьми, внутри черновая штукатурка. Внутренюю отделку уже буду делать в основном сам по мере получения зарплаты 1)В вашем случае оптимален вариант из битумной черепицы. 2)Если все новое,то коммуникаций нет. 3)Имелось ввиду про внутр. отделку! . Посилання на коментар Поділитися на інших сайтах More sharing options...
Технолог Опубліковано: 31 січня 2011 Поділитись Опубліковано: 31 січня 2011 А можно небольшой оффтоп на 1 сообщение? Объясните, почему шлакоблок не подходит? (я сам его не планирую, просто его недостатки не сильно понимаю). Шлакоблок с его теплоизоляционными характеристиками уж больно не подходит! 1 Посилання на коментар Поділитися на інших сайтах More sharing options...
loeron Опубліковано: 31 січня 2011 Автор Поділитись Опубліковано: 31 січня 2011 Про два туалета на втором этаже: сделано исключительно по причине наличия свободного места :D. Не придумали что еще полезного туда влепить можно. Сегодня жена совершенно случайно нашла проект который практически полностью удовлетворят наши потребности, причем ощутимо меньше домик получается. вот он www.cottage.com.ua/project.php?id=485 так что по всей видимости возьмем его за основу при разговоре с архитектором. Посилання на коментар Поділитися на інших сайтах More sharing options...
Технолог Опубліковано: 31 січня 2011 Поділитись Опубліковано: 31 січня 2011 Сегодня жена совершенно случайно нашла проект который практически полностью удовлетворят наши потребности, причем ощутимо меньше домик получается. вот он www.cottage.com.ua/project.php?id=485 так что по всей видимости возьмем его за основу при разговоре с архитектором. Хороший проект. Мы что-то подобное строили в 2006 на Б.Даниловке,вот только арки лучше выделить кирпичом другого цвета и битумная черепица просто сама напрашивается! Посилання на коментар Поділитися на інших сайтах More sharing options...
loeron Опубліковано: 31 січня 2011 Автор Поділитись Опубліковано: 31 січня 2011 О... вот проект с цоколем, www.cottage.com.ua/project.php?id=908 Осталось сделать косметические изменения в планировке и поменять материал Посилання на коментар Поділитися на інших сайтах More sharing options...
loeron Опубліковано: 31 січня 2011 Автор Поділитись Опубліковано: 31 січня 2011 Нарисовался вопрос по поводу цоколя, можно ли делать цокольный этаж не под всем зданием? Вот в последней моей ссылке есть цоколь, так вот сделать только меньшую половину которая 38 метров квадратных? Посилання на коментар Поділитися на інших сайтах More sharing options...
Рекомендовані повідомлення
Створіть акаунт або увійдіть у нього для коментування
Ви маєте бути користувачем, щоб залишити коментар
Створити акаунт
Зареєструйтеся для отримання акаунта. Це просто!
Зареєструвати акаунтУвійти
Вже зареєстровані? Увійдіть тут.
Увійти зараз