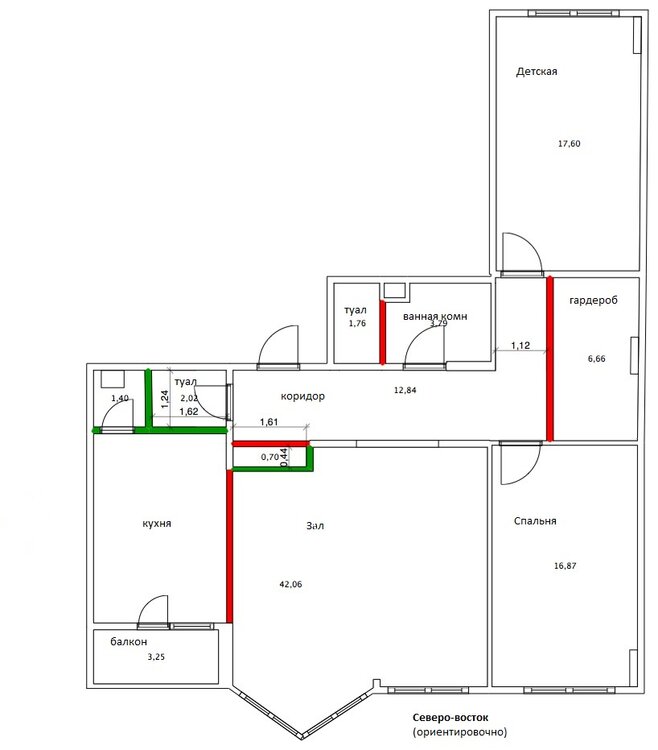
ББогдан Опубліковано: 25 лютого 2011 Поділитись Опубліковано: 25 лютого 2011 Всем добрый день, Хотелось бы парочку дельных советов и рекомендаций относительно оборудования, монтажа и тд.. Итак, квартира 106 м. Местонахождение - Вышгород (т.е. воздух, в принципе, чистый) Квартира на 9-м этаже 10-ти этажного дома Дом новый - монолитно-каркасный, фасад утеплен 10см пенопластом... Отопление дома газовое, дом очень теплый (при минус 15 в квартире реально Ташкент), окна - пластик. Высота потолков: 2,75 Вентиляционные каналы есть, но информации о них пока нет... кол-во людей: пока двое взрослых, но скоро планируется малышня. В приложении план (красным - то, что сносится, зеленым - добавляется... метраж комнат приблизительный (+/- пару метров... ЗАЛ, правда, изначально не 42м, а 32м...) Хочется: хорошую вытяжку на кухне, чтобы запахи не проникали в зал (т.к планируется "а-ля студия"), вытяжки в санузлах, и, возможно, в гардеробной (????)... Кондиционеры, в принципе, ненавижу... кашель/аллергия у меня от них, но понимаю, что при +30 за бортом, да при 10см фасадном пенопласте, может быть жарковато внутри... очень люблю свежий воздух... (практически всегда, если есть возможность, сплю с открытыми окнами..) Очень хотелось бы получить дельную консультацию относительно того, что что можно сделать при бюджете, ограниченном на уровне 3к уе... (материалы+работа): просто кондиционеры; кондиционеры + вентиляция, а может с рекуператором.... просто запутался уже Хотелось бы также, по возможности, найти нормальных подрядчиков. Спасибо Посилання на коментар Поділитися на інших сайтах More sharing options...
heppy Опубліковано: 25 лютого 2011 Поділитись Опубліковано: 25 лютого 2011 На все про все - денег маловато, имхо. Если очень любите свежий воздух - подумайте насчет естественной вентиляции, по крайней мере притока. Хочется: хорошую вытяжку на кухне, чтобы запахи не проникали в зал К сожалению, хорошей кухонной вытяжке (зонту) для работы требуется ОЧЕНЬ много воздуха (200-600 кубов в час), примерно как всей остальной квартире или даже больше. Имхо, если планируется именно готовить еду на кухне (а не только чай, кофе, пельмени), то студия не лучший вариант. 1 Посилання на коментар Поділитися на інших сайтах More sharing options...
ББогдан Опубліковано: 25 лютого 2011 Автор Поділитись Опубліковано: 25 лютого 2011 На все про все - денег маловато, имхо. Если очень любите свежий воздух - подумайте насчет естественной вентиляции, по крайней мере притока. К сожалению, хорошей кухонной вытяжке (зонту) для работы требуется ОЧЕНЬ много воздуха (200-600 кубов в час), примерно как всей остальной квартире или даже больше. Имхо, если планируется именно готовить еду на кухне (а не только чай, кофе, пельмени), то студия не лучший вариант. Под естественной вентиляцией подразумевается проветривание + что-то вроде приточных клапанов??? Касательно студии, так в том то и дело, что постоянного (изо дня в день) пирожкоиспекания/борщеварения/постоянно что-то тушения не будет... в том числе поэтому было принято такое решение... да плюс ко всему нравится именно так.... так что плясать придется именно от этого... ПС: Если бы не 10см пенопласт на фасаде, возможно с искусственным вентилированием бы и не заморачивался..а так Посилання на коментар Поділитися на інших сайтах More sharing options...
Maestro Kiev Опубліковано: 28 лютого 2011 Поділитись Опубліковано: 28 лютого 2011 Вентиляционные каналы есть, но информации о них пока нет... Вытяжку необходимо будет организовать в каналы - информация по каналам важна. Сечение, проверьте тягу доступными способами, особенно по каналам важно распределение их с соединением каналов соседей. Здесь различны варианты с принятой в здании схемы каналов и навряд-ли у Вас личный канал. Хочется: хорошую вытяжку на кухне, чтобы запахи не проникали в зал (т.к планируется "а-ля студия"), вытяжки в санузлах, и, возможно, в гардеробной (????)... Вытяжку на кухне от зонта (самый крупный потребитель воздуха) и если газовая плита, то необходим естественный канал в кухне. Вытяжные системы от с/у нельзя совмещать с другими, что тогда в случае с гардеробной подразумевает отдельную вытяжную систему. Очень хотелось бы получить дельную консультацию относительно того, что что можно сделать при бюджете, ограниченном на уровне 3к уе... (материалы+работа): просто кондиционеры; кондиционеры + вентиляция, а может с рекуператором.... просто запутался уже Полноценная приточная прямоточная система вентиляции с автоматикой и воздуховодами с монтажом обойдется уже в 1200-2500$. Рекуператор центральной системы при таком бюджете нет смысла рассматривать. Кондиционеры (сплит-системы) без сквозняков реализовываются на базе внутренних блоков канального типа, но они с воздуховодами и дороже чем настенные. Настенные кондиционеры самое дешевое решение. В Вашем случае с применением в трех помещениях кондиционеров мощностью 2,1кВт стоимостью 375$ + для зала мощностью 3,5кВт, 435$ = 375х3+435=1560$ с типовым монтажом. Иверторные настенные кондиционеры - следующий тип отличающийся техническими преимуществами и стоят такие кондиционеры дороже. Уже выйдет 560х3+625=2305$ с типовым монтажом. Это я Вам предложил кондиционеры бюджетного производителя, со скидкой 10%, по ценам последней поставки, а если перейти на бренды высокого класса, то стоимость можно умножить на 1,6-1,8. 1 Посилання на коментар Поділитися на інших сайтах More sharing options...
Альберт (СТЕП) Опубліковано: 28 лютого 2011 Поділитись Опубліковано: 28 лютого 2011 Всем добрый день, Оптимально было бы, чтобы инженер посмотрел объект и на месте определился, какую систему можно поставить. Выезд инженера бесплатный. Как раз один наш инженер будет на объекте в Вышгороде с 13 до 15 часов. Если готовы обсуждать, то позвоните и он заедет. Посилання на коментар Поділитися на інших сайтах More sharing options...
ББогдан Опубліковано: 28 лютого 2011 Автор Поділитись Опубліковано: 28 лютого 2011 Оптимально было бы, чтобы инженер посмотрел объект и на месте определился, какую систему можно поставить. Выезд инженера бесплатный. Как раз один наш инженер будет на объекте в Вышгороде с 13 до 15 часов. Если готовы обсуждать, то позвоните и он заедет. 2 вопроса: будет с 13 до 15 КОГДА ?? Звонить КУДА ??? Посилання на коментар Поділитися на інших сайтах More sharing options...
Альберт (СТЕП) Опубліковано: 1 березня 2011 Поділитись Опубліковано: 1 березня 2011 2 вопроса: будет с 13 до 15 КОГДА ?? Звонить КУДА ??? Сегодня. Телефон в профиле. Посилання на коментар Поділитися на інших сайтах More sharing options...
c_vitaliy Опубліковано: 1 березня 2011 Поділитись Опубліковано: 1 березня 2011 для зала мощностью 3,5кВт, 435$ А можно поинтересоваться маркой кондера за 435у.е. с установкой в Вышгороде? Посилання на коментар Поділитися на інших сайтах More sharing options...
Maestro Kiev Опубліковано: 1 березня 2011 Поділитись Опубліковано: 1 березня 2011 MIDEA MSG-12HR, а для Вышгорода при монтаже будет доп. +10$ за межгород. Посилання на коментар Поділитися на інших сайтах More sharing options...
c_vitaliy Опубліковано: 1 березня 2011 Поділитись Опубліковано: 1 березня 2011 MIDEA MSG-12HR, а для Вышгорода при монтаже будет доп. +10$ за межгород. Вот, цена уже пошла в верх Посилання на коментар Поділитися на інших сайтах More sharing options...
Рекомендовані повідомлення
Створіть акаунт або увійдіть у нього для коментування
Ви маєте бути користувачем, щоб залишити коментар
Створити акаунт
Зареєструйтеся для отримання акаунта. Це просто!
Зареєструвати акаунтУвійти
Вже зареєстровані? Увійдіть тут.
Увійти зараз