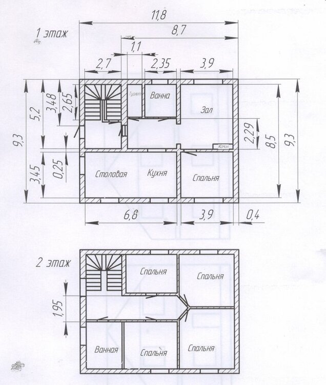
m.shevchenko Опубліковано: 18 березня 2011 Поділитись Опубліковано: 18 березня 2011 Подскажите, имеет ли право на жизнь данная планировка? Стены и перестенки привязаны к уже залитому фундаменту. Посилання на коментар Поділитися на інших сайтах More sharing options...
вторик Опубліковано: 18 березня 2011 Поділитись Опубліковано: 18 березня 2011 скорей всего через пол года спросите имеет ли право на жизнь такая крыша, боюсь тогда ответ будет однозначно отрицательный. а пока да. имеет. только вентканалы с дымарями нарисуйте. Посилання на коментар Поділитися на інших сайтах More sharing options...
m.shevchenko Опубліковано: 18 березня 2011 Автор Поділитись Опубліковано: 18 березня 2011 С вентканалами еще работаю, а крыша может быть вот такой конфигурации. Посилання на коментар Поділитися на інших сайтах More sharing options...
OlegArh Опубліковано: 18 березня 2011 Поділитись Опубліковано: 18 березня 2011 Подскажите, имеет ли право на жизнь данная планировка? Стены и перестенки привязаны к уже залитому фундаменту."Интересное" решение, но непонятное: с/узлы разбросаны по всему дому, столовая идет с заворотом - т.е. сначала в кухню, а потом в столовую... Предлогаю: там, где зал и спальня (возле с/узла) - сделайте кухню (одной стеной с туалетом) и залкухню, а где столовая - сделайте спальню со входом из фоййе (где лестница). На 2-м этаже с/узел поставте над с/узлом 1-го этажа, а спальню - на его место. ИМХО Посилання на коментар Поділитися на інших сайтах More sharing options...
вторик Опубліковано: 18 березня 2011 Поділитись Опубліковано: 18 березня 2011 нарисуйте план кровли, решите на что обопрете конек Посилання на коментар Поділитися на інших сайтах More sharing options...
m.shevchenko Опубліковано: 21 березня 2011 Автор Поділитись Опубліковано: 21 березня 2011 По поводу планировки: с переносом с/у на место спальни я согласен, хотя смущает, что это солнечная сторона (все санузлы- к солнцу). Большую кухню-столовую с окнами выходящими во двор, и таким расположением рабочей стенки- с правой стороны захотела жена. Конечно более органичным был-бы вход в столовую, из помещения где лестница на второй этаж, но там правельнее поставить прихожую. Выбрал пока такой вариант. По поводу конька: с трех сторон фронтоны, разве они не могут быть опорой для коньков? Если можете, подскажите в чем проблема, буду очень благодарен. Спасибо! Посилання на коментар Поділитися на інших сайтах More sharing options...
вторик Опубліковано: 21 березня 2011 Поділитись Опубліковано: 21 березня 2011 проблема в полете. между фронтонами за 10 метров. паламаецса. щитайте вес кровли под 300 кг м2. посоветуйтесь с крышниками. Посилання на коментар Поділитися на інших сайтах More sharing options...
m.shevchenko Опубліковано: 22 березня 2011 Автор Поділитись Опубліковано: 22 березня 2011 Перестенки второго этажа планируются из кирпича, поэтому промежуточное опирание будет также и на них. Посилання на коментар Поділитися на інших сайтах More sharing options...
zara1 Опубліковано: 22 березня 2011 Поділитись Опубліковано: 22 березня 2011 Я нарисовала.Возможно,неправильно поняла расположение относительно сторон света.Если неправильно,то и весь план неправильный.Под лестницей будет место под кладовку(вход из тамбура).Без тамбура дом стоить не рекомендую.План.pdf 1 Посилання на коментар Поділитися на інших сайтах More sharing options...
zara1 Опубліковано: 22 березня 2011 Поділитись Опубліковано: 22 березня 2011 Или такой вариантПлан1.pdf 1 Посилання на коментар Поділитися на інших сайтах More sharing options...
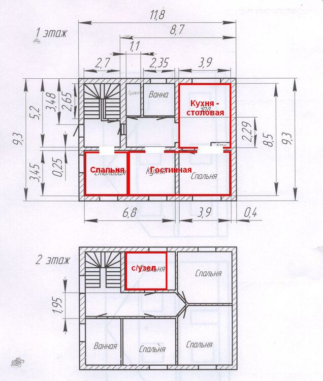
Milissa Опубліковано: 24 березня 2011 Поділитись Опубліковано: 24 березня 2011 Или такой вариант Со всем уважением, но не могу удержатся от критики. 1. То что Вы предложили не забежную лестницу, а обычную это конечно хорошо. Но количество ступенек на Вашем плане (как в первом, так и во второй варианте) значительно сокращено. Высота этажа будет меньше 2х метров. Там необходимо минимум по 10 ступеней в каждом пролете (при высоте этажа в чистоте 2,7 м). 2. Тамбур тоже правильное предложение, но так же не соответствует правильным размерам. 3. На плане добавлен к холлу коридор. Не имеет никакого смысла его делать. Просто съедается дополнительна площадь на этаже. Размещение холла довольно удачное. С него просто нужно сделать входы в кухню-столовую, с/у и гостиную (вход в спальню будет через нее). Посилання на коментар Поділитися на інших сайтах More sharing options...
Milissa Опубліковано: 24 березня 2011 Поділитись Опубліковано: 24 березня 2011 Совет автору темы. Вам нужно определится не только в првильном размещении комнат по сторонам света, но так же решить что для Вас лучше: разместить с/у рядом с кухней или со спальнней. Первый вариант хорош тем, что там может быть общий стояк и совмещенный венканал. Второй - Вы сможет отделить ночную зону от дневной (если эта спальня не гостевая и используется хозяевами). Посилання на коментар Поділитися на інших сайтах More sharing options...
zara1 Опубліковано: 24 березня 2011 Поділитись Опубліковано: 24 березня 2011 Лестница-это понятно и правильно.В свое оправдание скажу,что я ее поставила схематично,всего лишь показать,где она находится.Ничего не считала.Места там сделать правильную-достаточно. 2.Тамбур имеет размер 1,5*1,5.Чем не правильные размеры? 3.Я делала чертеж,считая,что стена АВ несущая.План2.pdf Посилання на коментар Поділитися на інших сайтах More sharing options...
zara1 Опубліковано: 24 березня 2011 Поділитись Опубліковано: 24 березня 2011 А ,вообще,мне показалось,что автору темы не интересны наши с Вами мысли.Он даже не ответил по ориентации дома по сторонам света. Посилання на коментар Поділитися на інших сайтах More sharing options...
m.shevchenko Опубліковано: 24 березня 2011 Автор Поділитись Опубліковано: 24 березня 2011 Спасибо, девочки, за коментарии и отдельно Zare за планировки. Прошу прощения, что не отвечал - работа не позволяла. Решения мне понравились, особенно там где есть помещение для котельной. Хотя и хотелось-бы на первом этаже иметь раздельный с/у. Стороны света Вы правильно угадали, мало того северное и восточное направления и являются "дворовой" частью участка, (поэтому я и расположил кухню так, чтобы окна выходили во двор). В том-то моя проблема и состоит, что я не могу увязать рядом кухню-столовую, раздельный с/у, котельную, да и фасад дома сделать эстетическим. По поводу тамбора: у меня несколько знакомых которые не имеют его в доме, и от этого не страдают. 1 Посилання на коментар Поділитися на інших сайтах More sharing options...
zara1 Опубліковано: 24 березня 2011 Поділитись Опубліковано: 24 березня 2011 И все таки не советую делать дом без тамбура.Когда будете считать расходы на отопление дома.пожалеете,что не сделали.А если так:План5.pdfПлан4.pdf 1 Посилання на коментар Поділитися на інших сайтах More sharing options...
Milissa Опубліковано: 24 березня 2011 Поділитись Опубліковано: 24 березня 2011 Zara 1, Вы написали, что поставили лестницу ориентировочно и места достаточно. Но если нарисовать лестницу по нормам она займет весь Ваш тамбур и часть котельной. Просто не вижу смысла делать варианты планировки, которые на практике просто не осуществимы. Посилання на коментар Поділитися на інших сайтах More sharing options...
m.shevchenko Опубліковано: 25 березня 2011 Автор Поділитись Опубліковано: 25 березня 2011 Спасибо Zara 1, планировка мне понравилась, удовлетворяет почти все мои желания. Хотя, наверное, в кухню-столовую вход надо попробовать сделать из хола, а тамбор вообще пристроить к дому (он будет выполнять и хоть какую-то дизайнерскую функцию, а то дом вообще похож на коробку). И, еще утрясти размеры. Действительно, если лестница вылезет в ХОЛ - это комфорта не добавит. Кстати, в какой програме Вы работаете. Я немного в AutoCAD и КОМПАС, а вот ArchiCAD что-то побороть пока не могу. Посилання на коментар Поділитися на інших сайтах More sharing options...
zara1 Опубліковано: 25 березня 2011 Поділитись Опубліковано: 25 березня 2011 Вы умеете считать?Я сейчас нарисовала вариант при глубине ступени-25 см,а высоте подступенка-16,7 см.Или Вы знаете какие-то другие нормы?Лестница.pdf Посилання на коментар Поділитися на інших сайтах More sharing options...
zara1 Опубліковано: 25 березня 2011 Поділитись Опубліковано: 25 березня 2011 Я рисую в Архикаде.Он достаточно простой Поставьте себе,позвоните,я вам расскажу,куда нажимать Ирина,093-155-95-82.Н Насчет лестницы не волнуйтесь.Она там очень хорошо вписывается. Посилання на коментар Поділитися на інших сайтах More sharing options...
Milissa Опубліковано: 25 березня 2011 Поділитись Опубліковано: 25 березня 2011 Вы умеете считать?Я сейчас нарисовала вариант при глубине ступени-25 см,а высоте подступенка-16,7 см.Или Вы знаете какие-то другие нормы? Да, думаю умею). Минимальная ширина проступи 300 мм, высота подступенка 150 мм (для жилых домов). И даже при всех изощрениях у Вас получилась конечная отметка +3.006 (округлим до +3.000 - просто нормальный инженер покрутит у виска, увидев Вашу цифру). Убрав ещё и толщину пирожка перекрытия 300 мм, получим высоту этажа в чистоте 2,700 (хотя по нормам предлагается минимум 2,800). Теперь уже хозяину будущего дома нужно думать подходит или нет. Но не сделать высоту этажа минимум 3 метра, отстраивая себе, любимому, дом считаю преступлением. П.С.: и не нужно так волноваться, уважаемая zara1 Посилання на коментар Поділитися на інших сайтах More sharing options...
zara1 Опубліковано: 25 березня 2011 Поділитись Опубліковано: 25 березня 2011 Ув.Milissа!У нас какоой-то странный спор получился.Спорит дипломированный архитектор(судя по всему) с неархитектором(я по специальности математик),но с 20-летним опытом дизайнерства и строительсва.Будем считать это хобби.Так вот нормы и правила-это хорошо и правильно,но не всегда получается им точно следовать.По опыту знаю.что лестница 25 и высотой18 см уже достаточно удобна.А что мешает сделать по нормам в данном случае.1-й вариант высота подъема-15 см,2--16 см.Пусть ступень будет 30 см.В этих случаях достаточно,в отличие от всего дома иметь высоту стен в тамбуре не 3 метра,а,например,2,5 м.Нормально?Очень даже.Над тамбуром и поднимемся на нужную высоту.Надо фантазию включать.лестница(30,15).pdfЛестница(30,16).pdf Посилання на коментар Поділитися на інших сайтах More sharing options...
Milissa Опубліковано: 25 березня 2011 Поділитись Опубліковано: 25 березня 2011 Ув.Milissа!У нас какоой-то странный спор получился.Спорит дипломированный архитектор(судя по всему) с неархитектором(я по специальности математик),но с 20-летним опытом дизайнерства и строительсва.Будем считать это хобби.Так вот нормы и правила-это хорошо и правильно,но не всегда получается им точно следовать.По опыту знаю.что лестница 25 и высотой18 см уже достаточно удобна.А что мешает сделать по нормам в данном случае.1-й вариант высота подъема-15 см,2--16 см.Пусть ступень будет 30 см.В этих случаях достаточно,в отличие от всего дома иметь высоту стен в тамбуре не 3 метра,а,например,2,5 м.Нормально?Очень даже.Над тамбуром и поднимемся на нужную высоту.Надо фантазию включать. Спор не имеет смысла. Каждый поступает как считаем нужным. В данному случае решать автору темы, какой дом строить и по каким ступеням ходить. И даже против включения фантазии ничего не имею. Включайте на здоровье. Посилання на коментар Поділитися на інших сайтах More sharing options...
arca Опубліковано: 25 березня 2011 Поділитись Опубліковано: 25 березня 2011 zara1 Совершенно не удобна ширина ступени. 25см это очень мало. Если у мужчины который будет ходить по лестнице размер ноги 45, а это 30см длинна ступни, то ему будет ходить не удобно. Поэтому нормальная ширина ступени приближенная к 30 должна быть. 18 см тоже высоковато, но вполне терпимо. Не спорьте с дипломированными архитекторами у них кроме опыта есть знания науки эргономики.;) Посилання на коментар Поділитися на інших сайтах More sharing options...
zara1 Опубліковано: 25 березня 2011 Поділитись Опубліковано: 25 березня 2011 Да что с Вами?Ни с кем я не спорю.Как раз в поседнем варианте и есть ширина ступени-30 см,а высота-15.Просто поднимемся мы на нужную высоту в этом случае над тамбуром,что не есть проблемой(в тамбуре потолок будет ниже).Кстати, с эргономикой я тоже знакома.Мы часто со своими детьми вместе учимся.Я со своей дочкой и школу.и институт вместе заканчивала (дизайнерский факультет).Проосто меня упрекнули в том,что я нарисовала нереальную планировку.Пришлось доказывать,что это не так. Посилання на коментар Поділитися на інших сайтах More sharing options...
Рекомендовані повідомлення
Створіть акаунт або увійдіть у нього для коментування
Ви маєте бути користувачем, щоб залишити коментар
Створити акаунт
Зареєструйтеся для отримання акаунта. Це просто!
Зареєструвати акаунтУвійти
Вже зареєстровані? Увійдіть тут.
Увійти зараз