Перейти до публікації
Пошук в
  • Додатково...
Шукати результати, які містять...
Шукати результати в...

Моя пристройка к дому

ENB

Рекомендовані повідомлення

Начало стройки 2007 год планировал достроить кухню, ванную, туалет в ходе строительства решил двухэтажную пристройку построить так сказать расширить жилплощадь. Габариты здания 8500*5250 мм. Выбрал систему Термодом.

 

Весной 2007 года лопату в руки и давай подготавливать траншею под фундамент глубиной 1100 мм, рабочие силы только я и отец. При подготовки пришлось яблоню выкорчевать (ох и намучались….%)) всего в зону стройки попало три дерева (жалко конечно было но пришлось их ликвидировать). Залили армированную фундаментную подушку 600мм на 400 мм и с отметки ± 700 мм до отметки ± 0.000 уже термоблоками. В местах стыков со старым домом подкапывался под фундамент и заливал пятки шириной 1000 мм., получилось 3 пятки.

PIC1.thumb.JPG.c9027e71f1c496727e9bb6b5c234ca78.JPG

PIC.thumb.JPG.02cc77db76f81f04eddac9f3a2082dc2.JPG

PIC_1422.thumb.JPG.4d9681e00ddfd751d516ec820bdef559.JPG

1048129151_011.thumb.jpg.616281e0d1105f8500f879ebdf4ee616.jpg

712249457_021.thumb.jpg.9f2dfa39d56f5cfb14230b29cd67a854.jpg

183519687_033.thumb.jpg.cfc13926e13c6676824c538da2a40015.jpg

  • Лайк 2
Посилання на коментар
Поділитися на інших сайтах

Долил фундамент из термоблоков до ± 0.000 кинул гидроизоляцию и взял перерыв на месяц. Строюсь я не спеша и планировал в 2007 году построить только коробку первого этажа (причина такого медленного строительства, во времени - выделяю для строительства только выходные и в финансировании - одна ЗП.)

PIC_1754.thumb.JPG.f12f9db53247721a2951c6a16b87435c.JPG

PIC_1755.thumb.JPG.e55b45a84c42e7075a538f351d52d866.JPG

PIC_1757.thumb.JPG.4e6e90d2478827e569b0b59b14328ef2.JPG

PIC_1758.thumb.JPG.d01d4bb835c3d9b9caafc1001eafb0ef.JPG

PIC_1759.thumb.JPG.e95a5b9a4fe468c4e647ef362a6f44ff.JPG

PIC_1763.thumb.JPG.21c97bb0cfd52392e18e39defdd3d89c.JPG

PIC_1773.thumb.JPG.44da602bb85ae66e23b4a27fe296e639.JPG

Посилання на коментар
Поділитися на інших сайтах

На 2008 год планы были только на межэтажное перекрытие. Остановил свой выбор на наборном перекрытии TERIVA. В ходе монтирования был запланирован балкон.

PIC_0658.thumb.JPG.267edb0ab19ba9ed04267ae212e67b9b.JPG

PIC_0659.thumb.JPG.7c7ea54cfc366b38bbd13ab0d4eb2d88.JPG

PIC_0651.thumb.JPG.6723bebea71fe4f6d7c51a7fa3c500c7.JPG

PIC_0949.thumb.JPG.874f95ecb5ae6965ac2d2e7be09a6a9c.JPG

Посилання на коментар
Поділитися на інших сайтах

На 2008 год планы были только на межэтажное перекрытие. Остановил свой выбор на наборном перекрытии TERIVA. В ходе монтирования был запланирован балкон.

 

Сколько обошлось перекрытие ?

Посилання на коментар
Поділитися на інших сайтах

Сколько обошлось перекрытие ?

 

Балки и кирпичики с доставкой примерно 7500 грн. 35 м.кв. ну и плюс бетон (замес делал вручную). ИТОГО примерно 10 000 грн. со своей работой разумеется.

Посилання на коментар
Поділитися на інших сайтах

Балки и кирпичики с доставкой примерно 7500 грн. 35 м.кв. ну и плюс бетон (замес делал вручную). ИТОГО примерно 10 000 грн. со своей работой разумеется.

 

Я столько же потратил на плиты перекрытия. Стройка очень похожа на мою, и по размерам, и по срокам и вообще.

Посилання на коментар
Поділитися на інших сайтах

Я столько же потратил на плиты перекрытия. Стройка очень похожа на мою, и по размерам, и по срокам и вообще.

Спасибо коллега. У меня вопрос к вам. Как вы решили вопрос по проводке газа в пристройку (стоимость). У вас дом на две половины или нет? Если на две то как решили вопрос по отопление.....?

Посилання на коментар
Поділитися на інших сайтах

На 2009 год была поставлена задача закончить коробку, сделать кровлю и поставить окна. Кровля металлочерепица RUUKKI. Окна REHAU.

PIC_0936.thumb.JPG.d8e215edace197a4c36722e4a15a32a4.JPG

PIC_0937.thumb.JPG.6dc9409aae330557924377fa2df361a6.JPG

PIC_0938.thumb.JPG.ff2bec21e753ef738ec0d62218bc1cb7.JPG

PIC_0945.thumb.JPG.995a30455eee342f8845b61df3835d93.JPG

PIC_0952.thumb.JPG.ae0edd7a2c288ff84a485d7240ae03a0.JPG

PIC_0956.thumb.JPG.eec90c148b70c2fd8d56c691916488e8.JPG

PIC_0963.thumb.JPG.d6ee89a2426efe91dbfa5222a5bca3dc.JPG

PIC_0966.thumb.JPG.c85a71c5fef66defdc26c1a6379fdaca.JPG

PIC_0968.thumb.JPG.08a172fbea3b7d98a706d8affd457658.JPG

PIC_0960.thumb.JPG.24cfad7649891f10213dbd0168cd55a8.JPG

PIC_0959.thumb.JPG.3f8bc625ca0f2295ff57d36e91cf64c2.JPG

Посилання на коментар
Поділитися на інших сайтах

Спасибо коллега. У меня вопрос к вам. Как вы решили вопрос по проводке газа в пристройку (стоимость). У вас дом на две половины или нет? Если на две то как решили вопрос по отопление.....?

 

Этот вопрос сейчас как раз на повестке дня и ни как не решен. Земля и дом принадлежит отцу. Газ я хочу проводить на себя, чтобы входить в лимиты. А для этого нужно, чтобы отец подарил кусочек земли и дом который я пристроил. Короче морока еще предстоит.

В том году газовщики нас заставили переделывать проект для старого дома которому уже было 20 лет, из-за того что перенесли газовую трубу и газовую колонку. Так вот за проект+ они переварили 15 уголочков на трубе+ сделали для газа заземление обошлось нам в 7000 грн. :evil:

Посилання на коментар
Поділитися на інших сайтах

Этот вопрос сейчас как раз на повестке дня и ни как не решен. Земля и дом принадлежит отцу. Газ я хочу проводить на себя, чтобы входить в лимиты. А для этого нужно, чтобы отец подарил кусочек земли и дом который я пристроил. Короче морока еще предстоит.

В том году газовщики нас заставили переделывать проект для старого дома которому уже было 20 лет, из-за того что перенесли газовую трубу и газовую колонку. Так вот за проект+ они переварили 15 уголочков на трубе+ сделали для газа заземление обошлось нам в 7000 грн. :evil:

 

И тут у нас совпадение, тоже просять 6500 - 7000 грн.:) А отопление будет общее, один котел?

Посилання на коментар
Поділитися на інших сайтах

И тут у нас совпадение, тоже просять 6500 - 7000 грн.:) А отопление будет общее, один котел?

 

Предполагаю делать отдельный котел, родители любят поэкономить, а мы любим потеплей, короче, чтоб ни от кого независить.

Посилання на коментар
Поділитися на інших сайтах

  • 2 тижні потому...
В апреле приступаю к изготовлению лестницы (металлокаркас), и внутренних перегородок (в полкирпича М-100) на первом этаже. Кстати, нужны рабочие, хоть объем небольшой (стена 32 м.кв. + каркас для лестницы) но за пару дней тоже можно подзаработать;)

537267322_.thumb.JPG.66f85e264262f0200afa651deca5f430.JPG

2066212974_1.JPG.a9fccb71b27c9188045aa25b86818bde.JPG

1318806965_2.JPG.3840d0288845714d2aacba5c543e8f82.JPG

Посилання на коментар
Поділитися на інших сайтах

  • 2 тижні потому...
Молодец что отважились!:good: Продолжайте в том же духе! Я через такое уже прошла и как никто другой понимаю насколько это проблематично!;) Удачи!
Посилання на коментар
Поділитися на інших сайтах

Молодец что отважились!:good: Продолжайте в том же духе! Я через такое уже прошла и как никто другой понимаю насколько это проблематично!;) Удачи!

 

Спасибо Вам за теплые слова и за Ваш подробный отчет по стройке, во многих вопросах очень помог:rolleyes:

Посилання на коментар
Поділитися на інших сайтах

Спасибо Вам за теплые слова и за Ваш подробный отчет по стройке, во многих вопросах очень помог:rolleyes:

 

Я рада, что мой труд не пропал зря!:D Обращайтесь если что!

Посилання на коментар
Поділитися на інших сайтах

  • 2 місяці потому...
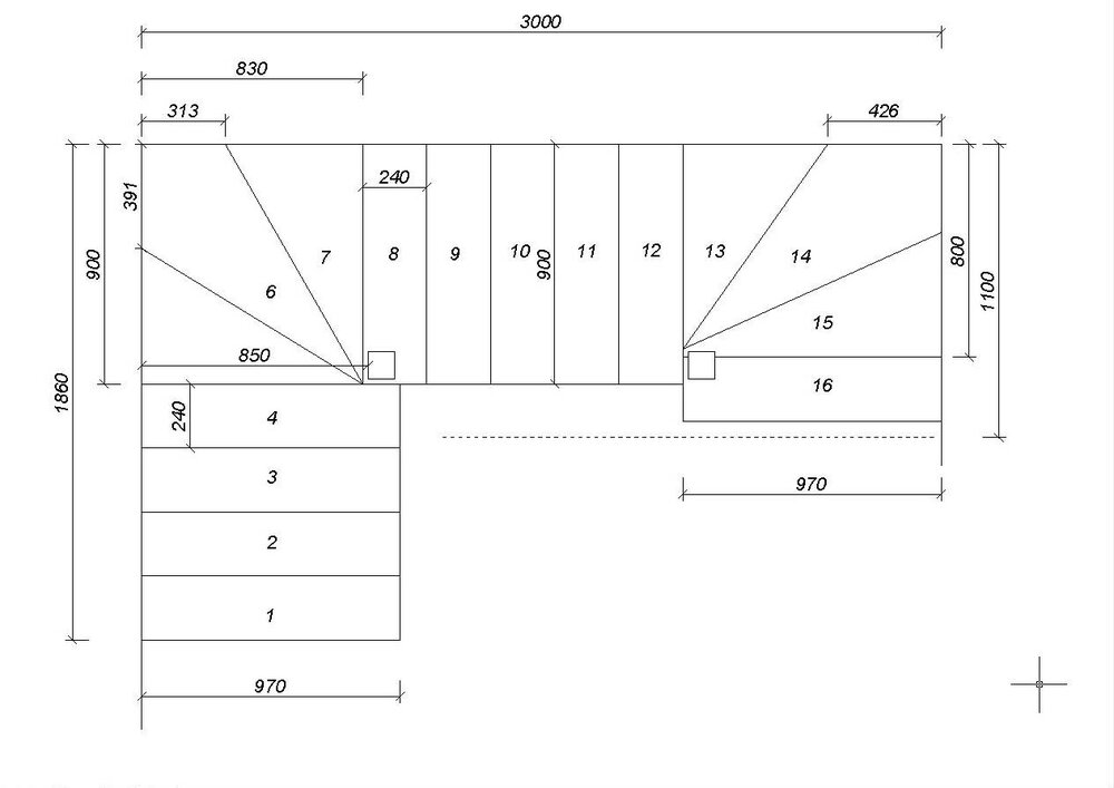
Неделю назад был сварен металлокаркас будущей лестницы и введена в эксплуатацию лестница с черновыми ступенями:Yahoo!:. Получилась достаточно удобная. Использованные материалы: 1) швеллер 10 - 14 м.п., 2) уголок 25 - 18 м.п., 3) уголок 50 - 10 м.п., 4) полоса 50 - 2 м.п., 5) крогляшка 10 - 12 м.п., 6) Электроды 4 - 5 кг, 7) Доска разнокалиберная 30 и 40 - 18 м.п. 8) Саморезы - 100 шт.

2001460498_1attachment.php(16001200).thumb.JPG.27897e49b531f1ad62b11ed886decaf9.JPG

1769147266_2attachment.php(16001200).thumb.JPG.c1b411f6243bc1aafdef424e341d193e.JPG

916827785_3attachment.php(16001200).thumb.JPG.590bbbd8cfd4f6251488bc2622d14f64.JPG

374858549_4attachment.php(16001200).thumb.JPG.4a4d509df7050af4726b19c57e97132a.JPG

1873218932_5attachment.php(16001200).thumb.JPG.7ef8465ff7ab4caab8204f3a72148d0d.JPG

1655660794_6attachment.php(16001200).thumb.JPG.fc7ec89ef63556f8d801669b4bed595a.JPG

1036162975_7attachment.php(16001200).thumb.JPG.3384bfe6a975ec5ddc20bb02284d5889.JPG

837454474_8attachment.php(16001200).thumb.JPG.88336d046dd4907d2d49fe47633636bf.JPG

833259136_attachment.php(16001200).thumb.JPG.d9583c2548df16507559a8a4cf3dacc5.JPG

1.thumb.JPG.d9d7d6f7fd939743442af2196cb20e43.JPG

2.thumb.JPG.ed862ab5a672a5332151ceb748ee6cff.JPG

  • Лайк 2
Посилання на коментар
Поділитися на інших сайтах

  • 1 місяць потому...
Вот токое получилось, так сказать разделение жилпространства на функциональные помещения.... кухня, 2 санузла прихожая.

P1010029.thumb.JPG.d0ffae357f0cf380c35ebb5e508aa10d.JPG

P1010030.thumb.JPG.85a6bffcb86d3ea6f5daa7e374d5d203.JPG

P1010033.thumb.JPG.7dcb0621cf11f51ff5d719e32f5ffda8.JPG

P1010034.thumb.JPG.0bf8d5d26f286a998c2ba99f82c03a06.JPG

P1010037.thumb.JPG.e428b307d01fc8331c6c47e3fa38c331.JPG

P1010038.thumb.JPG.e965c274ea0ca6022a5c71b2e03a5a22.JPG

P1010041.thumb.JPG.4db4dd935370071184b6154c7385c337.JPG

P1010040.thumb.JPG.6a4002b03627db63cd342cc47218f740.JPG

  • Лайк 2
Посилання на коментар
Поділитися на інших сайтах

Пол пока еще не делали?

Об этом ничего не написано. Тогда на чем стоят перегородки из кирпича?

 

Термоблоки в грунте - звучит стремновато... Как вы их отделывали?

Спасибо!

Посилання на коментар
Поділитися на інших сайтах

Пол пока еще не делали?

Об этом ничего не написано. Тогда на чем стоят перегородки из кирпича?

 

Термоблоки в грунте - звучит стремновато... Как вы их отделывали?

Спасибо!

 

Черновой пол был залит ранее, толщина заливки 10-12 см армированый сеткой 10х10 ячейка из катанки диаметром 4мм, перед заливкой делал трамбовку и подсыпку песок, щебень. На этой плите и стоят перегородки.

 

Термоблоки в грунте без отделки оставил......... а что тут стремного? Так бы в грунте стоял просто бетон, а у меня этот бетон в утеплители получается, даже если с ним что-то случится в земле то я сильно за это переживать не буду:). Вот если бы это было подвальное помещение, то тогда наружную защиту нужно делать и плюс дополнительную гидроизоляцию.

Посилання на коментар
Поділитися на інших сайтах

На выходных был сделан армослой по пенопласту. Клей покупал в Эпицентре самый дешевый, так как дальше планирую фасад сайдингом закрывать, по 55,30 грн. 25 кг. Master-Супер универсальный, честно говоря я был удивлен качеством этого клея, стекловолокно в достаточном количестве, тянется супер, в общем вполне достойный материал. Стал задумываться, а може сделать короед......:beer:

P1010002.thumb.JPG.e42e7e5e1d1ef322bdd9a6e1e45b9c39.JPG

P1010011.thumb.JPG.f2ad12768a97defc7684667454413fc2.JPG

P1010016.thumb.JPG.c3ab09c426c36c52b4c2447e99bed6f0.JPG

P1010007.thumb.JPG.28f75f506def8c284c1dd812ddbedec2.JPG

Посилання на коментар
Поділитися на інших сайтах

Створіть акаунт або увійдіть у нього для коментування

Ви маєте бути користувачем, щоб залишити коментар

Створити акаунт

Зареєструйтеся для отримання акаунта. Це просто!

Зареєструвати акаунт

Увійти

Вже зареєстровані? Увійдіть тут.

Увійти зараз
×
×
  • Створити...