Mirotvorec Опубліковано: 13 квітня 2008 Поділитись Опубліковано: 13 квітня 2008 Добрый день всем. Жду Ваших коментарий... Домик планируется демисезонный, каркасный... Посилання на коментар Поділитися на інших сайтах More sharing options...
XamGelo Опубліковано: 13 квітня 2008 Поділитись Опубліковано: 13 квітня 2008 На второй этаж через улицу ? Посилання на коментар Поділитися на інших сайтах More sharing options...
Mirotvorec Опубліковано: 13 квітня 2008 Автор Поділитись Опубліковано: 13 квітня 2008 Думаю да. 1. место экономиться (которого мало) 2. Все равно на втором этаже только две спальни... Основное движение на первом и на участке. естественно сверху лестницы, будет либо часть крыши либо навес. Посилання на коментар Поділитися на інших сайтах More sharing options...
XamGelo Опубліковано: 13 квітня 2008 Поділитись Опубліковано: 13 квітня 2008 А как вам такой планчик. Ну веранду там, ориентацию по сторонам света - это мелочи. Спальная зона на 1м этаже отделяется стенкой-ширмой. Крыша 2-скатная но в 2х уровнях, где лестница пониже, где комнаты - повыше ЗЫ: Это я вместо того чтобы себе чертеж лестницы делать играюсь :D Посилання на коментар Поділитися на інших сайтах More sharing options...
Mirotvorec Опубліковано: 13 квітня 2008 Автор Поділитись Опубліковано: 13 квітня 2008 В приницпе нормально... надо будет подумать... Размеры правда второго этажа не такие... там по одной стороне будет уменьшение с 6 метров до 4-х.. примерно. Я тут поразмыслил.. наверное все таки лестница должна быть в доме... (ребенок спросил а как я буду из душа подниматься по лестнице (которая на улице) в спальню ) И наверное надо сразу продумывать камин.. какой то... Мне говорили что при помощи камина, каркастые дома отапливаются в течении часа.. для зимы самое оно... XamGelo: А в чем вы рисуете? И если можно ссылку на прогу что бы скачать.. Спасибо. Посилання на коментар Поділитися на інших сайтах More sharing options...
XamGelo Опубліковано: 13 квітня 2008 Поділитись Опубліковано: 13 квітня 2008 Архикад. Ищите на торрентах (тссс Я пиратские версии не распостраняю ;)) Кстати, там и камин можно разместить. А второй этаж - так по бокам от лестницы кладовки - гардеробные И крышу с той стороны начинать можно чуть ли не от перекрытия, лишь бы по лестнице пройти можно было У меня еще подобная планировка где-то есть, только там 6х7 кажется. Надо поискать Посилання на коментар Поділитися на інших сайтах More sharing options...
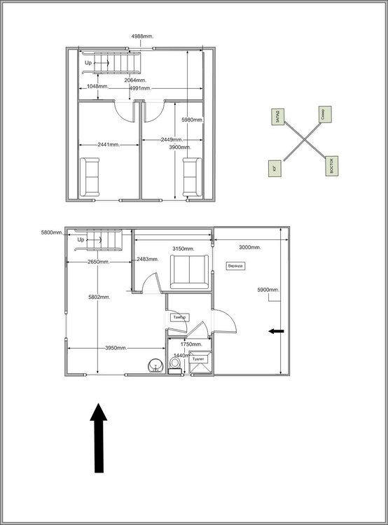
Mirotvorec Опубліковано: 13 квітня 2008 Автор Поділитись Опубліковано: 13 квітня 2008 Вообщем выкладываю финальную планировку... Добавлена "груба" или может быть камин, надо мнение людей которые могут сказать что лучше... Увеличена веранда, лестница внутри дома. Вообщем смотрите. Коментарии приветствуются Посилання на коментар Поділитися на інших сайтах More sharing options...
XamGelo Опубліковано: 13 квітня 2008 Поділитись Опубліковано: 13 квітня 2008 А лестница вертикальная ? В эти размеры даже откидная чердачная не впишется Посилання на коментар Поділитися на інших сайтах More sharing options...
Mirotvorec Опубліковано: 14 квітня 2008 Автор Поділитись Опубліковано: 14 квітня 2008 Размеры лестницы приблизительные... Как видно из плана, там есть куда ее увеличивать, как на первом так и на втором этажах. Я просто не могу соориентироваться с размером Посилання на коментар Поділитися на інших сайтах More sharing options...
Рост Опубліковано: 22 квітня 2008 Поділитись Опубліковано: 22 квітня 2008 А как вам такой планчик. Ну веранду там, ориентацию по сторонам света - это мелочи. Спальная зона на 1м этаже отделяется стенкой-ширмой. Крыша 2-скатная но в 2х уровнях, где лестница пониже, где комнаты - повыше ЗЫ: Это я вместо того чтобы себе чертеж лестницы делать играюсь :D Мне наравится планировочка. А еще что-нибудь похожее, небольших размеров типа 5х6, 6х6, 6х7 у Вас есть? Посилання на коментар Поділитися на інших сайтах More sharing options...
panalex Опубліковано: 2 травня 2008 Поділитись Опубліковано: 2 травня 2008 Очень приглянулись вот этих 2 проекта: www.ivd.ru/document.xgi?id=5072 www.ivd.ru/document.xgi?id=5709&gid=219&hid=329&oid=329 Посилання на коментар Поділитися на інших сайтах More sharing options...
tomik Опубліковано: 10 травня 2008 Поділитись Опубліковано: 10 травня 2008 Мне наравится планировочка. А еще что-нибудь похожее, небольших размеров типа 5х6, 6х6, 6х7 у Вас есть? сам собираюсь строить домик на даче из дерева 6*6 но чтото нелезут проекты в голову незнаю как чего разместить Посилання на коментар Поділитися на інших сайтах More sharing options...
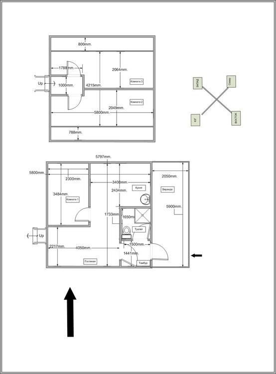
Mirotvorec Опубліковано: 11 травня 2008 Автор Поділитись Опубліковано: 11 травня 2008 Вообщем так.. вот сегодня согласовали финальный проект. Может кому то понадобится пользуйтесь 2 Посилання на коментар Поділитися на інших сайтах More sharing options...
Рекомендовані повідомлення
Створіть акаунт або увійдіть у нього для коментування
Ви маєте бути користувачем, щоб залишити коментар
Створити акаунт
Зареєструйтеся для отримання акаунта. Це просто!
Зареєструвати акаунтУвійти
Вже зареєстровані? Увійдіть тут.
Увійти зараз