gambrina Опубліковано: 17 квітня 2008 Поділитись Опубліковано: 17 квітня 2008 По первому этажу мне кажеться, что такой большой холл ( с таким колличеством дверей) при небольшой площади дома - это неочень функционально. по второму этажу - длинная и узкая спальня неправильной формы - тоже непрактично. если в ней сделать гардеробную или встроеный шкаф, то станет функциональней, но тогда ненадо делать окно в узкой части. Проставьте площадь комнат, пожалуйста. Посилання на коментар Поділитися на інших сайтах More sharing options...
OldHouse Опубліковано: 17 квітня 2008 Автор Поділитись Опубліковано: 17 квітня 2008 По первому этажу мне кажеться, что такой большой холл ( с таким колличеством дверей) при небольшой площади дома - это неочень функционально. по второму этажу - длинная и узкая спальня неправильной формы - тоже непрактично. если в ней сделать гардеробную или встроеный шкаф, то станет функциональней, но тогда ненадо делать окно в узкой части. Как вариант, спальнь совместить с кабинетом. Тоесть, в том апендиксе пставить стол-подоконник. Хотя вариант с шкофом я тоже рассматриваю. И скроее всего так и будет Посилання на коментар Поділитися на інших сайтах More sharing options...
gambrina Опубліковано: 17 квітня 2008 Поділитись Опубліковано: 17 квітня 2008 У нас тоже эконом дом. внутренние размеры 6,9*10. Я уже выкладывала свою планировку на форуме, посмотрите ее, может что-то для себя возьмете. Вы напишите размеры помещений, я могу набросать планировку, которая мне кажеться более рациональной. может вам она понравиться, возьмете себе на заметку. Посилання на коментар Поділитися на інших сайтах More sharing options...
gambrina Опубліковано: 17 квітня 2008 Поділитись Опубліковано: 17 квітня 2008 У Вас 7*9 - это внешние или внутренние размеры? если внутренние, то лучше сделать 6,9м, чтобы дом можно было перекрыть стандартными панелями ПК72.хх.хх, внешние стены получатся несущие, внутри несущие ненадо будет делать ( только там где надо будет спрятать трубы) и это удешевит строительство Использование стандартных материалов всегда удешевляет строительство Посилання на коментар Поділитися на інших сайтах More sharing options...
OldHouse Опубліковано: 17 квітня 2008 Автор Поділитись Опубліковано: 17 квітня 2008 У Вас 7*9 - это внешние или внутренние размеры? если внутренние, то лучше сделать 6,9м, чтобы дом можно было перекрыть стандартными панелями ПК72.хх.хх, внешние стены получатся несущие, внутри несущие ненадо будет делать ( только там где надо будет спрятать трубы) и это удешевит строительство Использование стандартных материалов всегда удешевляет строительство пасибо огромное! Кстати, я понимаю оно вам не надо )))) Но не хотите присоедениться к проекту? Вот например планировки тут разместить? Я всего лишь эксперементирую. Хочу увидеть то, что мне нравиться. Посилання на коментар Поділитися на інших сайтах More sharing options...
OldHouse Опубліковано: 17 квітня 2008 Автор Поділитись Опубліковано: 17 квітня 2008 У нас тоже эконом дом. внутренние размеры 6,9*10. Я уже выкладывала свою планировку на форуме, посмотрите ее, может что-то для себя возьмете. Вы напишите размеры помещений, я могу набросать планировку, которая мне кажеться более рациональной. может вам она понравиться, возьмете себе на заметку. По планировке только один момент, это то, что участок узкий. участок 14 метров. получаем в идеале 8 метров дом. Поэтому у меня в проекте окна смотрят в Основном в две стороны. Там соседй нет ))) И ещё подъезд крана не возможен. Тоесть либо деревянные перекрытия, либо бетононасос. Посилання на коментар Поділитися на інших сайтах More sharing options...
Vl@dimir Опубліковано: 17 квітня 2008 Поділитись Опубліковано: 17 квітня 2008 Чёто я не понимаю. Строят же домики 7х8 в 2 этажа под ключ в пределах 60т. Т.е. привел на участок и сказал: "Тут мне нада дом!". Через где-то пол годика он готов. итог: подключил воду, электричество, если есть - газ и всё! Общая 112 квадратов! Всреднем 530 за квадрат. Так это с отделкой, внутренней-внешней. 60 даже при нынешней стоимости однушки - считаю фантастической ценой, я бы даже сказал куда уж экономнее. Посилання на коментар Поділитися на інших сайтах More sharing options...
Vl@dimir Опубліковано: 17 квітня 2008 Поділитись Опубліковано: 17 квітня 2008 О! Нашел первую часть. "130 метров за 50 000" - реально, если своими силами. Посилання на коментар Поділитися на інших сайтах More sharing options...
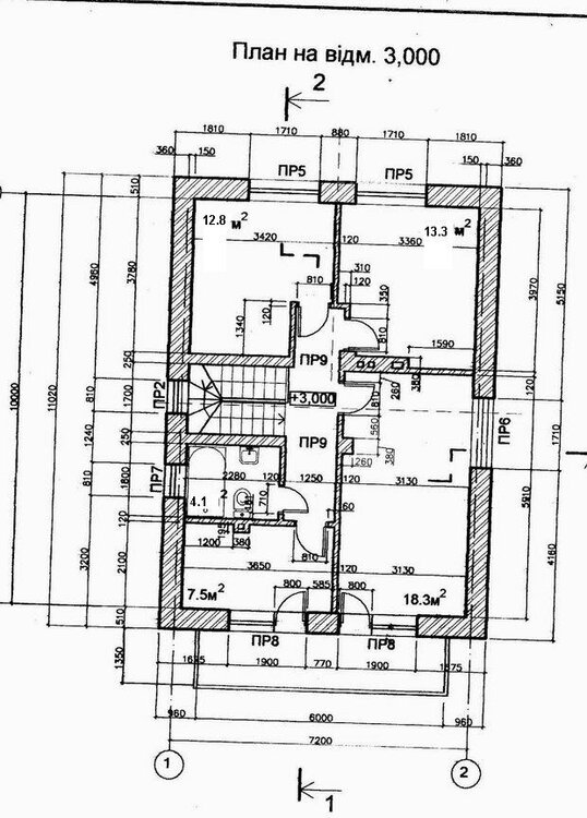
gambrina Опубліковано: 17 квітня 2008 Поділитись Опубліковано: 17 квітня 2008 У нас участок еще уже, 11м)) С подъездом крана нам тоже говорили, что кран несможет подьехать, но мы удачно перекрыли дом панелями, кран смог подьехать и рядом стал длинномер. вот наши поэтажные планы. Посилання на коментар Поділитися на інших сайтах More sharing options...
gambrina Опубліковано: 17 квітня 2008 Поділитись Опубліковано: 17 квітня 2008 Очень похожи с нами стартовые условия)) А где вы планируете строить? Кстати, вы зря неделали окна в санузлах и на лестнице, естественное освещение очень непомешает! Завтра попробую нарисовать вам вариантик планировки учитывая ваши пожелания и наш опыт) Посилання на коментар Поділитися на інших сайтах More sharing options...
МАКАР Опубліковано: 17 квітня 2008 Поділитись Опубліковано: 17 квітня 2008 Этот проэкт хотели вначале (ссылка устарела) А по этому построились (ссылка устарела) Вы не смотрите что проэкты для бревна, смотрите на планировки. Я их пол года обсасывал.8-) Построить можно хоть из гав...........:D всмысле самана с дер. каркасом. А вот тех условия диктуют свое. Вот у вас длина плит,а у меня длина бревна была, поэтому и получилось 8.8на 8.3 а не 7.8 на 8.4 Посилання на коментар Поділитися на інших сайтах More sharing options...
Ugushka Опубліковано: 18 квітня 2008 Поділитись Опубліковано: 18 квітня 2008 (ссылка устарела) Вы не смотрите что проэкты для бревна, смотрите на планировки. Я их пол года обсасывал.8-) Если предусматривать, что комната на первом этаже превратится в зал, а не в жилую комнату, то он явно маловат и далековат от кухни. А на втором этаже у автора ветки предусмотрены 3 комнаты и санузел. А у Вас - просто две. Как по мне - у него пространства больше. Или с его проектом он рискует не списаться в бюджет? Посилання на коментар Поділитися на інших сайтах More sharing options...
OldHouse Опубліковано: 18 квітня 2008 Автор Поділитись Опубліковано: 18 квітня 2008 Чёто я не понимаю. Строят же домики 7х8 в 2 этажа под ключ в пределах 60т. Т.е. привел на участок и сказал: "Тут мне нада дом!". Через где-то пол годика он готов. итог: подключил воду, электричество, если есть - газ и всё! Общая 112 квадратов! Всреднем 530 за квадрат. Так это с отделкой, внутренней-внешней. 60 даже при нынешней стоимости однушки - считаю фантастической ценой, я бы даже сказал куда уж экономнее. Это теория ))) А на практике с 60 только всё начинаеться. ))) Посилання на коментар Поділитися на інших сайтах More sharing options...
OldHouse Опубліковано: 18 квітня 2008 Автор Поділитись Опубліковано: 18 квітня 2008 Очень похожи с нами стартовые условия)) А где вы планируете строить? Кстати, вы зря неделали окна в санузлах и на лестнице, естественное освещение очень непомешает! Завтра попробую нарисовать вам вариантик планировки учитывая ваши пожелания и наш опыт) Спасбо вам! ))) Окна конечно будут. Прсто не предусмотрел. Строиться собираюсь в Киеве. район Куренёвки. Кран не подъедет потому, что там уже стоит один дом, а второй буду строить за ним. Как приеду в киев, выложу фото ))) Посилання на коментар Поділитися на інших сайтах More sharing options...
OldHouse Опубліковано: 18 квітня 2008 Автор Поділитись Опубліковано: 18 квітня 2008 У нас участок еще уже, 11м)) С подъездом крана нам тоже говорили, что кран несможет подьехать, но мы удачно перекрыли дом панелями, кран смог подьехать и рядом стал длинномер. вот наши поэтажные планы. ))) А мне нравитьсся ваша планировка! Посилання на коментар Поділитися на інших сайтах More sharing options...
OldHouse Опубліковано: 18 квітня 2008 Автор Поділитись Опубліковано: 18 квітня 2008 Если предусматривать, что комната на первом этаже превратится в зал, а не в жилую комнату, то он явно маловат и далековат от кухни. А на втором этаже у автора ветки предусмотрены 3 комнаты и санузел. А у Вас - просто две. Как по мне - у него пространства больше. Или с его проектом он рискует не списаться в бюджет? хм. А я насчитал на втором этаже 4 комнаты )))) Посилання на коментар Поділитися на інших сайтах More sharing options...
МАКАР Опубліковано: 18 квітня 2008 Поділитись Опубліковано: 18 квітня 2008 ))) А мне нравитьсся ваша планировка! И мне нравится:D Тока там 160 кв.м. Посилання на коментар Поділитися на інших сайтах More sharing options...
gambrina Опубліковано: 18 квітня 2008 Поділитись Опубліковано: 18 квітня 2008 МАКАР Не 160, а 125 м кв Вы немножко преувеличили наш домик, мы бы непротив 160, но пока есть только 125;) Хотя если считать чердак, то получается 165 м кв, но чердак у нас неотаплеваемый. внутренние размеры 6,9*10, вычитаем перестенки и умножаем на 2. На втором этаже делали посредине внутренюю несущую стену и деревяяное перекрытие. OldHouse Можете взять за основу нашу планировку, если что-то ненравиться, то доработать в доме еще не жыли, но планировка удобная, мне кажеться, что будет комфортно. Кстати планируем в 65-70 тыс вложиться, чтобы вьехать Коробка, крыша, простенки, перекрытия, окна, стяжка, электрика и канализация обошлись в 37 тыс уе. Посилання на коментар Поділитися на інших сайтах More sharing options...
МАКАР Опубліковано: 18 квітня 2008 Поділитись Опубліковано: 18 квітня 2008 Отделку(хотяб. штукатурку) есче не делали? Посилання на коментар Поділитися на інших сайтах More sharing options...
gambrina Опубліковано: 18 квітня 2008 Поділитись Опубліковано: 18 квітня 2008 нет, сейчас делаем отопление и водоснабжение и разводку газа к источникам потребления. Дальше будем делать отделку стен. На внутрянку будем меньше нанимать, будем стараться что можно делать самим. Посилання на коментар Поділитися на інших сайтах More sharing options...
Рекомендовані повідомлення
Створіть акаунт або увійдіть у нього для коментування
Ви маєте бути користувачем, щоб залишити коментар
Створити акаунт
Зареєструйтеся для отримання акаунта. Це просто!
Зареєструвати акаунтУвійти
Вже зареєстровані? Увійдіть тут.
Увійти зараз