OldHouse Опубліковано: 16 квітня 2008 Поділитись Опубліковано: 16 квітня 2008 Пока есть план первого этажа. В проекте два этажа. Метраж пока не замерял. Но больше 100 метров не должно быть. Вопрос один, что в этом проекте не экономного? Бум резать как можем. А вообще, рассчитываю вынать коробку, сделать ремонт на первом этаже, а второ, когда получиться. ПыСы. Сори за бешенные размеры. Рисовал в SketchUp, очень легко... но не для точности, а для наглядности. Посилання на коментар Поділитися на інших сайтах More sharing options...
alyak Опубліковано: 16 квітня 2008 Поділитись Опубліковано: 16 квітня 2008 а спать ты где будешь ? Ни одной спальни , зато прихожая под 12 квадратов . А где у тебя котел будет стоять ? Посилання на коментар Поділитися на інших сайтах More sharing options...
XamGelo Опубліковано: 16 квітня 2008 Поділитись Опубліковано: 16 квітня 2008 Ну, будем считать что это однокомнатная квартира повышенного метража. Ели в нижнем ряду справа налево: санузел - котельная- кухня, а возле лестницы будет встроенный шкаф - по минимуму все есть на первое время. Тут более тщательно надо думать о подборе материалов и строительстве своими силами по максимуму - только так возможна экономия Посилання на коментар Поділитися на інших сайтах More sharing options...
Seriy Опубліковано: 16 квітня 2008 Поділитись Опубліковано: 16 квітня 2008 вот мои мысли относительно небольшого домика 7 на 9 с возможностью достройки мансарды. Крыша двухскатная, веранда под навесом крыши в 1,5 м либо спереди, либо сзади домика. Посилання на коментар Поділитися на інших сайтах More sharing options...
mirock Опубліковано: 16 квітня 2008 Поділитись Опубліковано: 16 квітня 2008 Пока есть план первого этажа. В проекте два этажа. Метраж пока не замерял. Но больше 100 метров не должно быть. Вопрос один, что в этом проекте не экономного? Бум резать как можем. А вообще, рассчитываю вынать коробку, сделать ремонт на первом этаже, а второ, когда получиться. ПыСы. Сори за бешенные размеры. Рисовал в SketchUp, очень легко... но не для точности, а для наглядности. скетчап рулит!!!! Посилання на коментар Поділитися на інших сайтах More sharing options...
sevlad Опубліковано: 16 квітня 2008 Поділитись Опубліковано: 16 квітня 2008 Никто не подскажет где скачать набор текстур для заливок под скетч ап? Посилання на коментар Поділитися на інших сайтах More sharing options...
alyak Опубліковано: 16 квітня 2008 Поділитись Опубліковано: 16 квітня 2008 всем вообще рекомендую - сначала сесть и написать список помещений которые нужны , с метражем , подсчитать общий поделить на 2 , и распределить помещения по двум этажам . Затем открыть журналы типа 700 проектов и изучить первый десяток , потом понять что принцип одинаков , и разместить помещения , учитываю ориентацию по сторонам света , по концентрации коммуникаций - ванны/туалеты в одну сторону . После этого если вопросы и остануться то задавать их будет глупо . Посилання на коментар Поділитися на інших сайтах More sharing options...
Ugushka Опубліковано: 16 квітня 2008 Поділитись Опубліковано: 16 квітня 2008 Мне не очень нравится идея клиновидного расположения дверей в зал и кухню. Выходящие будут сталкиваться. Ну и балконные двери "вникуда" - это часть дальнейших планов? Посилання на коментар Поділитися на інших сайтах More sharing options...
OldHouse Опубліковано: 17 квітня 2008 Автор Поділитись Опубліковано: 17 квітня 2008 Никто не подскажет где скачать набор текстур для заливок под скетч ап? Ищи в нете. 3D Текстыры. Да и в самом скетче есть Варэхаус, с которого можно скачать некие текстуры. А вообще, лучше рисовать самому ))) Посилання на коментар Поділитися на інших сайтах More sharing options...
OldHouse Опубліковано: 17 квітня 2008 Автор Поділитись Опубліковано: 17 квітня 2008 Мне не очень нравится идея клиновидного расположения дверей в зал и кухню. Выходящие будут сталкиваться. Ну и балконные двери "вникуда" - это часть дальнейших планов? Это первый этаж двух этажного дома. Выход на терасу или прямиком в сад. Посилання на коментар Поділитися на інших сайтах More sharing options...
OldHouse Опубліковано: 17 квітня 2008 Автор Поділитись Опубліковано: 17 квітня 2008 а спать ты где будешь ? Ни одной спальни , зато прихожая под 12 квадратов . А где у тебя котел будет стоять ? Котёл двухконтурный на кухне. Это первый этаж. На втором этаже будут ещё помещения, которые я ещё не дорисовал. Но лестница уже есть )))) Посилання на коментар Поділитися на інших сайтах More sharing options...
OldHouse Опубліковано: 17 квітня 2008 Автор Поділитись Опубліковано: 17 квітня 2008 Ну, будем считать что это однокомнатная квартира повышенного метража. Ели в нижнем ряду справа налево: санузел - котельная- кухня, а возле лестницы будет встроенный шкаф - по минимуму все есть на первое время. Тут более тщательно надо думать о подборе материалов и строительстве своими силами по максимуму - только так возможна экономия Поможете в теории? Только это всётаки дом. Будет второй этаж. Там три спальни )))) Посилання на коментар Поділитися на інших сайтах More sharing options...
OldHouse Опубліковано: 17 квітня 2008 Автор Поділитись Опубліковано: 17 квітня 2008 всем вообще рекомендую - сначала сесть и написать список помещений которые нужны , с метражем , подсчитать общий поделить на 2 , и распределить помещения по двум этажам . Затем открыть журналы типа 700 проектов и изучить первый десяток , потом понять что принцип одинаков , и разместить помещения , учитываю ориентацию по сторонам света , по концентрации коммуникаций - ванны/туалеты в одну сторону . После этого если вопросы и остануться то задавать их будет глупо . Впринципе это всё уже сделано. Чуть позже дорисую второй этаж. Потом планировку на участке и экстерьер дома. Тут впрос в другом, вычислить общую площадь, а потом расчитать смету )))) Посилання на коментар Поділитися на інших сайтах More sharing options...
XamGelo Опубліковано: 17 квітня 2008 Поділитись Опубліковано: 17 квітня 2008 :DТак я ж говорил о том, что на первом этапе планируется :D Посилання на коментар Поділитися на інших сайтах More sharing options...
OldHouse Опубліковано: 17 квітня 2008 Автор Поділитись Опубліковано: 17 квітня 2008 :DТак я ж говорил о том, что на первом этапе планируется :D Я говорю про первый этам, как о этапе внутренеей отделки. Я просто прикинул, сколько лет мне надо отдавать всю мою зарплату банку, в случае того, ели я возьму кредит ))) Тоесть, это не только обсуждения проекта в плане комфортности, но ещё и экономичности. Посилання на коментар Поділитися на інших сайтах More sharing options...
Алик Опубліковано: 17 квітня 2008 Поділитись Опубліковано: 17 квітня 2008 похожее обсуждалось тут: www.stroimdom.com.ua/forum/showthread.php?t=5314&highlight=%C0%EB%E8%EA Посилання на коментар Поділитися на інших сайтах More sharing options...
OldHouse Опубліковано: 17 квітня 2008 Автор Поділитись Опубліковано: 17 квітня 2008 похожее обсуждалось тут: www.stroimdom.com.ua/forum/showthread.php?t=5314&highlight=%C0%EB%E8%EA было. )))) Но хочеться сделать смету. ))) Посилання на коментар Поділитися на інших сайтах More sharing options...
Алик Опубліковано: 17 квітня 2008 Поділитись Опубліковано: 17 квітня 2008 было. )))) Но хочеться сделать смету. ))) так там же была попытка подсчитать) Посилання на коментар Поділитися на інших сайтах More sharing options...
OldHouse Опубліковано: 17 квітня 2008 Автор Поділитись Опубліковано: 17 квітня 2008 так там же была попытка подсчитать) Я хочу, что бы нужно было только расставить цены на необходимые материалы и работы. После чего автоматом подсчитывалась смета. Вот. Но для этого, необходимо закончить второй этаж.. а как я смотю, это будет после праздников. Посилання на коментар Поділитися на інших сайтах More sharing options...
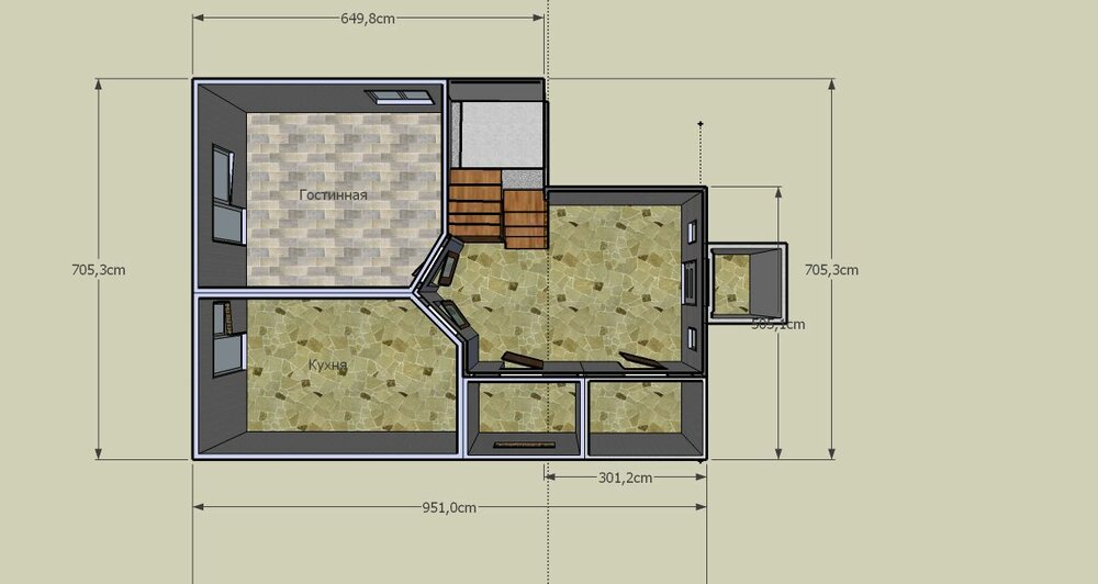
Chiara Опубліковано: 17 квітня 2008 Поділитись Опубліковано: 17 квітня 2008 а чем обснован такой угловатый фасад?, я понимаю, если бы это был выход на терассу, но ведь нет? Посилання на коментар Поділитися на інших сайтах More sharing options...
Romka Опубліковано: 17 квітня 2008 Поділитись Опубліковано: 17 квітня 2008 а чем обснован такой угловатый фасад? Если речь идет о пятне застройки - присоединяюсь, если речь идет о бюджетном или экономном строительстве - то все "загогулины" не вписываются в концепцию. зачем у самого себя отрезать 6 кв.м. площади и потом пристраивать тамбур на 1,5 кв м. отдельно? Посилання на коментар Поділитися на інших сайтах More sharing options...
OldHouse Опубліковано: 17 квітня 2008 Автор Поділитись Опубліковано: 17 квітня 2008 Если речь идет о пятне застройки - присоединяюсь, если речь идет о бюджетном или экономном строительстве - то все "загогулины" не вписываются в концепцию. зачем у самого себя отрезать 6 кв.м. площади и потом пристраивать тамбур на 1,5 кв м. отдельно? Исправляюсь Посилання на коментар Поділитися на інших сайтах More sharing options...
OldHouse Опубліковано: 17 квітня 2008 Автор Поділитись Опубліковано: 17 квітня 2008 Переделал план. Как вам такой вариант? Смотрим, критикуем. Посилання на коментар Поділитися на інших сайтах More sharing options...
OldHouse Опубліковано: 17 квітня 2008 Автор Поділитись Опубліковано: 17 квітня 2008 Собственно второй этаж. Посилання на коментар Поділитися на інших сайтах More sharing options...
OldHouse Опубліковано: 17 квітня 2008 Автор Поділитись Опубліковано: 17 квітня 2008 А теперь вот полностью фасад )))))))))) А вот теперь самое главное. Я хочу расчитать смету и автоматизировать её ))) Посилання на коментар Поділитися на інших сайтах More sharing options...
Рекомендовані повідомлення
Створіть акаунт або увійдіть у нього для коментування
Ви маєте бути користувачем, щоб залишити коментар
Створити акаунт
Зареєструйтеся для отримання акаунта. Це просто!
Зареєструвати акаунтУвійти
Вже зареєстровані? Увійдіть тут.
Увійти зараз