санек31 Опубліковано: 9 квітня 2011 Поділитись Опубліковано: 9 квітня 2011 (змінено) ИМЕЕМ УЧАСТОК 25сот.50*50 ХОТИМ ПОСТРОИТЬ ВОТ ТАКОЙ ДОМИК.ИНТЕРЕСУЕТ МНЕНИЕ ПО ПОВОДУ ПЛАНИРОВКИ ,СЕМЬЯ 3 ЧЕЛОВЕКА,В БУДУЩЕМ+1.ХОТЕЛОСЬ НА ПЕРВОМ ЭТАЖЕ ВМЕСТИТЬ ЖИЛУЮ КОМНАТУ И УБРАТЬ ВЫСТУП НА КУХНЕ,ГАРАЖ ПОСТАВИТЬ ОТДЕЛЬНО.ТАКЖЕ ИНТЕРЕСУЕТ ОБЩЕЕ МНЕНИЕ ПО ДОМУ. МОЖЕТ КТО-ТО СТРОИЛ ТАКОЙ ДОМ , ГОТОВЫ КУПИТЬ ПРОЕКТ (НЕ ДОРОГО)!!! СКОЛЬКО ОБОЙДЕТСЯ СТРОИТЕЛЬСТВО ТАКОГО ДОМА ?????? Змінено 9 квітня 2011 користувачем санек31 Посилання на коментар Поділитися на інших сайтах More sharing options...
Ольга В Опубліковано: 9 квітня 2011 Поділитись Опубліковано: 9 квітня 2011 Начнете колхозить переделки - ухудшите фасады. Посилання на коментар Поділитися на інших сайтах More sharing options...
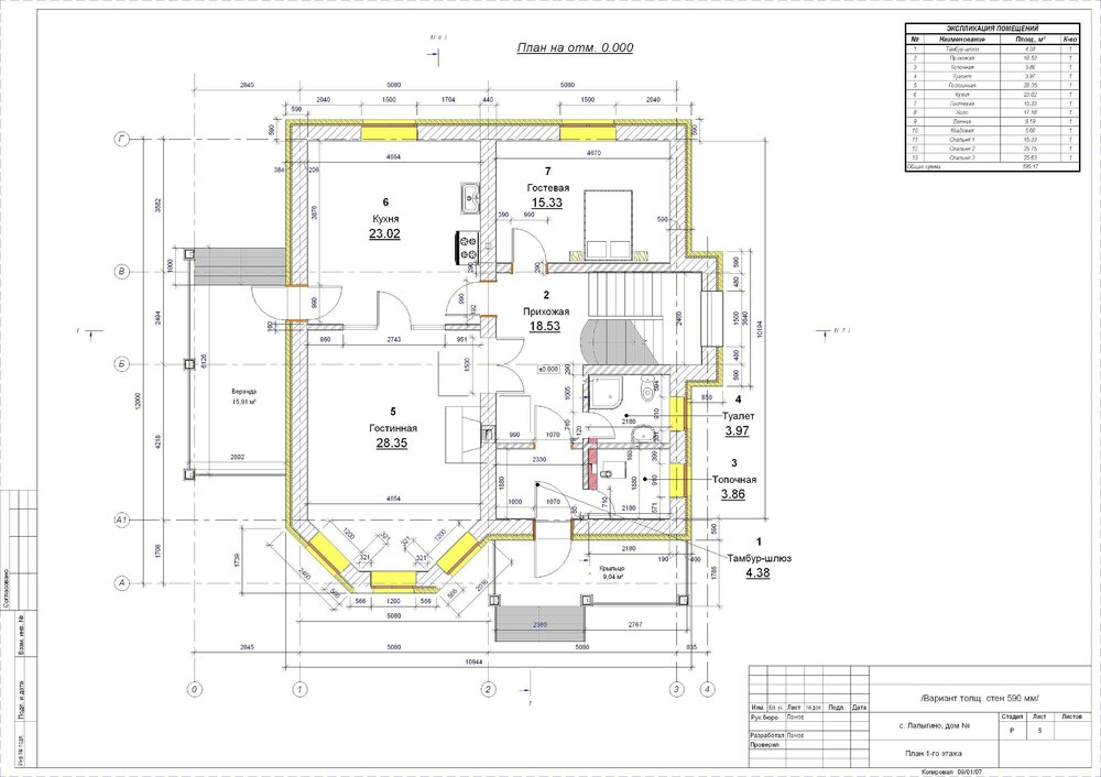
svetlan-ka Опубліковано: 9 квітня 2011 Поділитись Опубліковано: 9 квітня 2011 Внешне - ничего ,а вот внутри...особенно 1 этаж. Ну зачем такая огроменная гостинная и кухня-столовая??? И это при том, что нигде не предусмотрено хотя бы кладовку, не говоря уже о гадеробной. Сделать такую большую комнату, чтоб потом ее шкафами захламить? Кухни-столовой вполне 24-25 метров хватит. Да и гостинную метов на 10-15 меньше бы. 1 Посилання на коментар Поділитися на інших сайтах More sharing options...
svetlan-ka Опубліковано: 9 квітня 2011 Поділитись Опубліковано: 9 квітня 2011 И зачем сауна в доме? Еще и на втором этаже Посилання на коментар Поділитися на інших сайтах More sharing options...
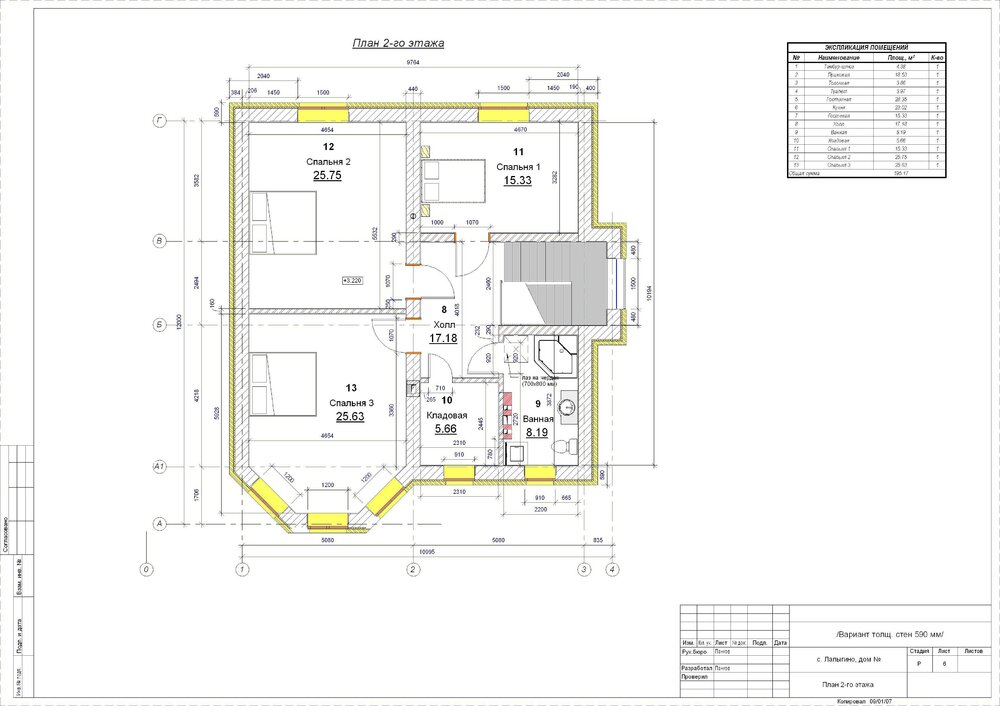
санек31 Опубліковано: 9 квітня 2011 Автор Поділитись Опубліковано: 9 квітня 2011 И зачем сауна в доме? Еще и на втором этажеТЕХ ПОМЕЩЕНИЕ ПЕРЕНЕСЕМ НА ЦОКОЛЬНЫЙ ЭТАЖ,ТАМ СДЕЛАЕМ ПОСТИРЧНУЮ,НА ВТОРОМ ЭТ.ВМЕСТО КЛАДОВКИ СДЕЛАТЬ ДОП.ТУАЛЕТ С ДУШЕМ,САУНЫ НЕ БУДЕТ,РАСШИРИМ СПАЛЬНЮ Посилання на коментар Поділитися на інших сайтах More sharing options...
санек31 Опубліковано: 9 квітня 2011 Автор Поділитись Опубліковано: 9 квітня 2011 Внешне - ничего ,а вот внутри...особенно 1 этаж. Ну зачем такая огроменная гостинная и кухня-столовая??? И это при том, что нигде не предусмотрено хотя бы кладовку, не говоря уже о гадеробной. Сделать такую большую комнату, чтоб потом ее шкафами захламить? Кухни-столовой вполне 24-25 метров хватит. Да и гостинную метов на 10-15 меньше бы. БОЛЬШАЯ ГОСТИНАЯ И СТОЛОВАЯ НАША МЕЧТА Посилання на коментар Поділитися на інших сайтах More sharing options...
svetlan-ka Опубліковано: 9 квітня 2011 Поділитись Опубліковано: 9 квітня 2011 БОЛЬШАЯ ГОСТИНАЯ И СТОЛОВАЯ НАША МЕЧТА И наша тоже. Но при высоте потолков 3-3.20 это будет слииишком много. Как музей будет Мы тоже сначала азмахнулись на такое, а потом пошастали, поискали пиблизительное по площади помещение и...передумали. Уменьшите гостинную и сделайте гардеробную. Посилання на коментар Поділитися на інших сайтах More sharing options...
Damiani Опубліковано: 9 квітня 2011 Поділитись Опубліковано: 9 квітня 2011 Уважаемый санек31! Текст заглавными буквами в сообщении означает крик или возмущение. Очень вас прошу, не нажимайте кнопочку капслок на клавиатуре. Уважайте собеседников! Посилання на коментар Поділитися на інших сайтах More sharing options...
санек31 Опубліковано: 9 квітня 2011 Автор Поділитись Опубліковано: 9 квітня 2011 Уважаемый санек31! Текст заглавными буквами в сообщении означает крик или возмущение. Очень вас прошу, не нажимайте кнопочку капслок на клавиатуре. Уважайте собеседников! А ПО ТЕМЕ? Посилання на коментар Поділитися на інших сайтах More sharing options...
Sizonov Опубліковано: 10 квітня 2011 Поділитись Опубліковано: 10 квітня 2011 А ПО ТЕМЕ? РЕАЛЬНАЯ ХАТА!!! Строй и не замарачивайся!!! Только камин не по "фен-шуй", перенеси во внутрь дома. Ну не любит он наружных стен!!! 2 Посилання на коментар Поділитися на інших сайтах More sharing options...
Oleksandr Protsev Опубліковано: 10 квітня 2011 Поділитись Опубліковано: 10 квітня 2011 ХОТЕЛОСЬ НА ПЕРВОМ ЭТАЖЕ ВМЕСТИТЬ ЖИЛУЮ КОМНАТУ И УБРАТЬ ВЫСТУП НА КУХНЕ,ГАРАЖ ПОСТАВИТЬ ОТДЕЛЬНО.ТАКЖЕ ИНТЕРЕСУЕТ ОБЩЕЕ МНЕНИЕ ПО ДОМУ. МОЖЕТ КТО-ТО СТРОИЛ ТАКОЙ ДОМ , ГОТОВЫ КУПИТЬ ПРОЕКТ (НЕ ДОРОГО)!!! СКОЛЬКО ОБОЙДЕТСЯ СТРОИТЕЛЬСТВО ТАКОГО ДОМА ?????? Ваши замечания, к этому проекту, говорят, что Вы хотите построить не этот дом. Без выступа, с комнатой, без гаража. Ищите то, что не нужно переделывать или заказывайте индивидуальный проект. Даже если получиться купить дешевый проект (), не обольщайтесь, что получится построить дешевый дом. Дом на 250 квадратов, не должен быть дешевым. Особенно, с мечтой о большой гостиной и высокими потолками, полноценных двух этажах и цоколе. Это очень дорогой дом, который, потом придется обслуживать, топить. Кроме того, если дои из кирпича, гараж, сарайчик, беседку и забор, придется делать ему под стать, иначе будет заметно, на каком этапе у Вас закончились деньги. Посилання на коментар Поділитися на інших сайтах More sharing options...
санек31 Опубліковано: 10 квітня 2011 Автор Поділитись Опубліковано: 10 квітня 2011 Ваши замечания, к этому проекту, говорят, что Вы хотите построить не этот дом. Без выступа, с комнатой, без гаража. Ищите то, что не нужно переделывать или заказывайте индивидуальный проект. Даже если получиться купить дешевый проект (), не обольщайтесь, что получится построить дешевый дом. Дом на 250 квадратов, не должен быть дешевым. Особенно, с мечтой о большой гостиной и высокими потолками, полноценных двух этажах и цоколе. Это очень дорогой дом, который, потом придется обслуживать, топить. Кроме того, если дои из кирпича, гараж, сарайчик, беседку и забор, придется делать ему под стать, иначе будет заметно, на каком этапе у Вас закончились деньги. гараж хотим поставить отдельно , цоколь под вопросом ( нужен ли он???) смотрели много проектов этот очень понравился ,просто хотим небольшие изменения в планировки . 1 этаж вместить комнату 12 -15кв.м . 2 этаж убрать сауну, расширить комнату !!!! Посилання на коментар Поділитися на інших сайтах More sharing options...
Damiani Опубліковано: 10 квітня 2011 Поділитись Опубліковано: 10 квітня 2011 А ПО ТЕМЕ? так я как раз по теме:D Цитата из правил данного форума, которые вы, видно, забыли прочитать: 4. Запрещается писать название тем и сами сообщения большими буквами, цветным шрифтом. Посилання на коментар Поділитися на інших сайтах More sharing options...
санек31 Опубліковано: 10 квітня 2011 Автор Поділитись Опубліковано: 10 квітня 2011 так я как раз по теме:D Цитата из правил данного форума, которые вы, видно, забыли прочитать: Все верно,забыл прочитать.Извиняюсь. Посилання на коментар Поділитися на інших сайтах More sharing options...
Oleksandr Protsev Опубліковано: 10 квітня 2011 Поділитись Опубліковано: 10 квітня 2011 гараж хотим поставить отдельно , цоколь под вопросом ( нужен ли он???) смотрели много проектов этот очень понравился ,просто хотим небольшие изменения в планировки . 1 этаж вместить комнату 12 -15кв.м . 2 этаж убрать сауну, расширить комнату !!!! Любое изменение типового проекта ведет к увеличению его стоимости. Если изменений несколько, то, однозначно, нужно заказывать индивидуальный проект, будет дешевле. Но делать это нужно после геологии (цоколь, может нарисоваться против Вашего желания, сваи и т.п) Фундамент, пляшется от будущего веса дома. Кирпич, керамическая черепица, очень тяжелые и требуют расчета (как, впрочем и легкий дом). На некоторых сайтах, с проектами (например, "Буддом", пишут сразу стоимость коробки, при заказе, у них). Это, поможет Вам, сориентироваться в Ваших финансовых хотелках и представить разницу стоимости, в зависимости от материала. Не забудьте добавить воду, электричество, газ, канализацию (септик) применительно к Вашему району. А также забор (хороший, почему-то очень дорого), отмостки, дорожки... Про внутрянку и говорить не хочется. 1 Посилання на коментар Поділитися на інших сайтах More sharing options...
санек31 Опубліковано: 17 квітня 2011 Автор Поділитись Опубліковано: 17 квітня 2011 ИМЕЕМ УЧАСТОК 25сот.50*50 ХОТИМ ПОСТРОИТЬ ВОТ ТАКОЙ ДОМИК.ИНТЕРЕСУЕТ МНЕНИЕ ПО ПОВОДУ ПЛАНИРОВКИ ,СЕМЬЯ 3 ЧЕЛОВЕКА,В БУДУЩЕМ+1.ХОТЕЛОСЬ НА ПЕРВОМ ЭТАЖЕ ВМЕСТИТЬ ЖИЛУЮ КОМНАТУ И УБРАТЬ ВЫСТУП НА КУХНЕ,ГАРАЖ ПОСТАВИТЬ ОТДЕЛЬНО.ТАКЖЕ ИНТЕРЕСУЕТ ОБЩЕЕ МНЕНИЕ ПО ДОМУ. МОЖЕТ КТО-ТО СТРОИЛ ТАКОЙ ДОМ , ГОТОВЫ КУПИТЬ ПРОЕКТ (НЕ ДОРОГО)!!! СКОЛЬКО ОБОЙДЕТСЯ СТРОИТЕЛЬСТВО ТАКОГО ДОМА ?????? заказали проект с переделками,посмотрим что получится. Посилання на коментар Поділитися на інших сайтах More sharing options...
санек31 Опубліковано: 12 травня 2011 Автор Поділитись Опубліковано: 12 травня 2011 заказали проект с переделками,посмотрим что получится. вот что получилось.по совету архитектора переделали многое,ждем вашей критики. Посилання на коментар Поділитися на інших сайтах More sharing options...
вторик Опубліковано: 12 травня 2011 Поділитись Опубліковано: 12 травня 2011 страшилка какаято Посилання на коментар Поділитися на інших сайтах More sharing options...
санек31 Опубліковано: 12 травня 2011 Автор Поділитись Опубліковано: 12 травня 2011 страшилка какаято а поподробней Посилання на коментар Поділитися на інших сайтах More sharing options...
Катерина Ш Опубліковано: 12 травня 2011 Поділитись Опубліковано: 12 травня 2011 страшилка какаято Почему страшилка??? Что ж Вы людей так сразу расстраиваете??? и зачем?? Мне, допустим, очень понравилось. Тем более, внести изменения получилось достаточно удачно!!!! Стройтесь - замечательный получится дом!!!!!!! Посилання на коментар Поділитися на інших сайтах More sharing options...
вторик Опубліковано: 12 травня 2011 Поділитись Опубліковано: 12 травня 2011 высказал сугубо личное мнение. планировка рациональная я ее не трогаю. но каждый раз возвращаясь с работы любоватся этим шедевром и знать шо сам, за свои деньги это построил, меня бы это подавляло постоянно. Посилання на коментар Поділитися на інших сайтах More sharing options...
Sizonov Опубліковано: 12 травня 2011 Поділитись Опубліковано: 12 травня 2011 вот что получилось.по совету архитектора переделали многое,ждем вашей критики. Не.... ну не шедевр Антонио Гуади.... но имеет право БЫТЬ!!! Если нормально подобрать цветовую гамму фасада, в реале получит неплохо. Точно такой дом есть в Вишенках. В облицовочном кирпиче под битумкой. Смотрится хорошо. Посилання на коментар Поділитися на інших сайтах More sharing options...
Amazonka Опубліковано: 12 травня 2011 Поділитись Опубліковано: 12 травня 2011 вот что получилось.по совету архитектора переделали многое,ждем вашей критики. Даже не переделали, а изменили практически полностью. Второй вариант намного лучше и жизнеспособнее. Только люк на чердак из ванной перенесите в другое место. Посилання на коментар Поділитися на інших сайтах More sharing options...
Катерина Ш Опубліковано: 12 травня 2011 Поділитись Опубліковано: 12 травня 2011 А из чего планируете строиться??? Посилання на коментар Поділитися на інших сайтах More sharing options...
Amazonka Опубліковано: 12 травня 2011 Поділитись Опубліковано: 12 травня 2011 ...... но каждый раз возвращаясь с работы любоватся этим шедевром и знать шо сам, за свои деньги это построил, меня бы это подавляло постоянно. Читаешь такое и сразу напрашивается вопрос - а покажите свой шедевр, который не подавляет (вдохновляет?) каждый раз по возвращению домой. 1 Посилання на коментар Поділитися на інших сайтах More sharing options...
Рекомендовані повідомлення
Створіть акаунт або увійдіть у нього для коментування
Ви маєте бути користувачем, щоб залишити коментар
Створити акаунт
Зареєструйтеся для отримання акаунта. Це просто!
Зареєструвати акаунтУвійти
Вже зареєстровані? Увійдіть тут.
Увійти зараз