pbyt Опубліковано: 1 травня 2008 Поділитись Опубліковано: 1 травня 2008 Добрый день Покритикуйте проект. Строительство началось без окончательного проекта и вот что получилось : Сейчас 1-й этаж уже стоит в том виде, как на плане. Есть проблемы с лестницей, которая была неправильно сварена, но вроде, как ее можно передалать , но когда начинали мостить 2-й этаж, то посмотрев, как будет становиться крыша решили сделать мансардный этаж и снова возникла проблема с лестницей :D. В общем если есть более здравые соображения, чем мои прошу порекомендовать... Посилання на коментар Поділитися на інших сайтах More sharing options...
pbyt Опубліковано: 1 травня 2008 Автор Поділитись Опубліковано: 1 травня 2008 А в целом очень хочется получить что то в этом роде...:D Посилання на коментар Поділитися на інших сайтах More sharing options...
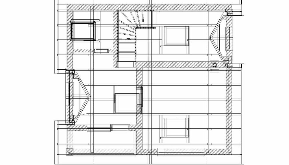
pbyt Опубліковано: 1 травня 2008 Автор Поділитись Опубліковано: 1 травня 2008 и вот еще... Посилання на коментар Поділитися на інших сайтах More sharing options...
pbyt Опубліковано: 4 травня 2008 Автор Поділитись Опубліковано: 4 травня 2008 неужели нечего сказать? не бывает так.... Посилання на коментар Поділитися на інших сайтах More sharing options...
Гість Alexius Опубліковано: 5 травня 2008 Поділитись Опубліковано: 5 травня 2008 Мне понравилось. Я новичок пока только проэкты рассматриваю. Мне больше нравится 2 этажа у вас почти три. А еще а где гараж? На какую семью рассчитан дом?:roll: Посилання на коментар Поділитися на інших сайтах More sharing options...
pbyt Опубліковано: 5 травня 2008 Автор Поділитись Опубліковано: 5 травня 2008 А еще а где гараж? Нет и не планируется... Стоянка с навесом будет возле боклвой стены На какую семью рассчитан дом?:roll: В принципе это дачный дом, но в который можно приехать в любое время года и жить, поскольку дача находится близко от города. Сейчас пока на 3 человек ну и плюс компании гостей :D, а дальше видно будет Посилання на коментар Поділитися на інших сайтах More sharing options...
XamGelo Опубліковано: 5 травня 2008 Поділитись Опубліковано: 5 травня 2008 А что, над лестницей с первого на 2-й не получится ? С уклоном таким же как крыша и началом напроотив двери санузла ? Посилання на коментар Поділитися на інших сайтах More sharing options...
pbyt Опубліковано: 5 травня 2008 Автор Поділитись Опубліковано: 5 травня 2008 А что, над лестницей с первого на 2-й не получится ? С уклоном таким же как крыша и началом напроотив двери санузла ? Там она получается, правда ширина проступи всего 18 см при нормальной высоте подъема 17,5 см, шаг 53 см, ну или скалолазание нужно осваивать... :D Мне вторая лестница на мансардный этаж не нравится, которая из комнаты начинается, но больше я не соображу куда ее поставить Посилання на коментар Поділитися на інших сайтах More sharing options...
Igortigr Опубліковано: 20 травня 2008 Поділитись Опубліковано: 20 травня 2008 Добрый день Покритикуйте проект. Строительство началось без окончательного проекта и вот что получилось : Сейчас 1-й этаж уже стоит в том виде, как на плане. Есть проблемы с лестницей, которая была неправильно сварена, но вроде, как ее можно передалать , но когда начинали мостить 2-й этаж, то посмотрев, как будет становиться крыша решили сделать мансардный этаж и снова возникла проблема с лестницей :D. В общем если есть более здравые соображения, чем мои прошу порекомендовать... Лестница с жилой комнаты на втором этаже - нонсенс! Это уже не ЖК а холл! Проще отказаться от комнаты на третьем этаже - опустить немного стены и уменьшить крутизну крыши. Как второй вариант - приподнять стены второго этажа, т.е крышу, а лестницу продолжить в лестничной шахте. Балкон в холле не несёт никакой функциональности. Лучше сделать выход из большой спальни. ИМХО. Вторая спальня - слишком узкая и слишком длинная. Лучше укоротить и за счёт её увеличить санузел или кладовочку сделать. Лестницу я бы сделал против часовой стрелки - место на втором этаже увеличивается для санузла! Успехов! А, вообще, практика показывает, что начинать строительство без окончательного проекта - терять время и деньги... Посилання на коментар Поділитися на інших сайтах More sharing options...
pbyt Опубліковано: 28 травня 2008 Автор Поділитись Опубліковано: 28 травня 2008 итак проект переделал немного: 1. Появилась пристройка в которой разместили прихожую и гардеробную, соответственно на втором этаже увеличилась площадь террассы, 2. исчезли слуховые и мансардные окна, 3. увеличилась высота стен 2-го этажа, 4. изменена планировка лестницы, 5. увеличил с/у на 2-м этаже 6. добавлены гардиробные в спальни 2-го этажа за счет этого спальня менее вытянутая. Балкон в холле не несёт никакой функциональности. Лучше сделать выход из большой спальни. ИМХО.... почему теряется его функциональность? не пойму... Посилання на коментар Поділитися на інших сайтах More sharing options...
Рекомендовані повідомлення
Створіть акаунт або увійдіть у нього для коментування
Ви маєте бути користувачем, щоб залишити коментар
Створити акаунт
Зареєструйтеся для отримання акаунта. Це просто!
Зареєструвати акаунтУвійти
Вже зареєстровані? Увійдіть тут.
Увійти зараз