sagitron Опубліковано: 18 червня 2011 Поділитись Опубліковано: 18 червня 2011 Проектанты попросили посчитать стоимость строительства, но глянув на "проект" понял что без конструктора не обойтись. Ширина пролета 12м, настаивает заказчик, подскажите реально поставить 12 м перекрытие с учетом несущих стен 200-250 мм ж/б Посилання на коментар Поділитися на інших сайтах More sharing options...
МИР СТУПЕНЕК Опубліковано: 18 червня 2011 Поділитись Опубліковано: 18 червня 2011 Проектанты попросили посчитать стоимость строительства, но глянув на "проект" понял что без конструктора не обойтись. Ширина пролета 12м, настаивает заказчик, подскажите реально поставить 12 м перекрытие с учетом несущих стен 200-250 мм ж/б Думаю, без металла тут не обойтись. Конструкция перекрытия - металлические балки (min двутавр 40...50) или фермы. Есть еще в продаже 12-ти метровые плиты перекрытия с предварительно напряженной арматурой. Насчет стен 200...250мм нужен расчет. Я бы в месте опирания конструкций перекрытия сделал пилястры (колонны). Посилання на коментар Поділитися на інших сайтах More sharing options...
mahno 31 Опубліковано: 18 червня 2011 Поділитись Опубліковано: 18 червня 2011 Монолитной плитой нада делать. Ж/Б плиту надо будет делать под заказ и она получится золотой, а также во времени ростянется. Посилання на коментар Поділитися на інших сайтах More sharing options...
Alexander Pryakha Опубліковано: 18 червня 2011 Поділитись Опубліковано: 18 червня 2011 Ширина пролета 12м, настаивает заказчик, подскажите реально поставить 12 м перекрытие с учетом несущих стен 200-250 мм ж/б Тут вопрос - больше в планировочном решении ресторана. Технологии совсем не видно. Моечная, банкетный - зал - что это за помещения? Там недостаточно выделено места для кухни. Где мясорыбный, холодильники, загрузка, а где бар? Вид вызывает унылый - такой ресторан. А пролет там надо делать меньше, имхо 8м - в самый раз, и стойки поставить Конструкции для такого сарая -конечно надо прорабатывать, это факт. Посилання на коментар Поділитися на інших сайтах More sharing options...
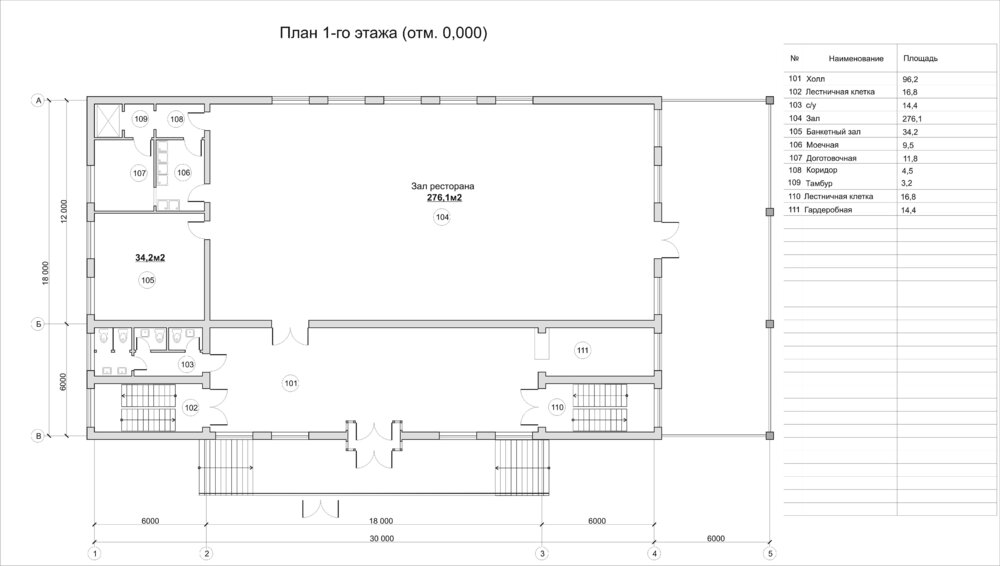
sagitron Опубліковано: 19 червня 2011 Автор Поділитись Опубліковано: 19 червня 2011 Есть еще в продаже 12-ти метровые плиты перекрытия с предварительно напряженной арматурой. Плиты надо не ПК, а П или ПГ - подсказали, хотя что те что те для меня темный лес, пока. Монолитной плитой нада делать. Ж/Б плиту надо будет делать под заказ и она получится золотой, а также во времени ростянется. Я кстати тоже думал, но ктобы расчитал на 12м вот такую (картинка внизу) Тут вопрос - больше в планировочном решении ресторана. Технологии совсем не видно. Моечная, банкетный - зал - что это за помещения? Там недостаточно выделено места для кухни. Где мясорыбный, холодильники, загрузка, а где бар? Вид вызывает унылый - такой ресторан. А пролет там надо делать меньше, имхо 8м - в самый раз, и стойки поставить Конструкции для такого сарая -конечно надо прорабатывать, это факт. Это просто 1 этаж, там все есть и "комнаты отдыха":). Тыж знаешь заказчик платит - праектанты танцуют, попросил такое нарисовать ему нарисовали, а теперь строители е.утся че туда положить на эти 12 метров. Посилання на коментар Поділитися на інших сайтах More sharing options...
Olegg Опубліковано: 19 червня 2011 Поділитись Опубліковано: 19 червня 2011 можно конечно заказать ЖБ ригель (их до 24м делают) желательно типа 2-х полочного (РДП - но в сортаменте на этот тип макс 11,2 м встречал), а уже на ригеля (на плоки в случае РДП) уложить плиты ПК 6-8 метров длиной (уже вдоль зала). Но без доп колонн (пилястров) в месте опирания ригеля на стену думаю не обоитись - считать однако надо. Посилання на коментар Поділитися на інших сайтах More sharing options...
ИльЯ С Опубліковано: 19 червня 2011 Поділитись Опубліковано: 19 червня 2011 Зал выполнить каркасным. колонны ., фермы., связи. ,столбчатый фундамент под колонны. Посилання на коментар Поділитися на інших сайтах More sharing options...
ИльЯ С Опубліковано: 19 червня 2011 Поділитись Опубліковано: 19 червня 2011 Зал выполнить каркасным: колонны ., фермы., связи. ,столбчатый фундамент под колонны. Посилання на коментар Поділитися на інших сайтах More sharing options...
sagitron Опубліковано: 19 червня 2011 Автор Поділитись Опубліковано: 19 червня 2011 Зал выполнить каркасным: колонны ., фермы., связи. ,столбчатый фундамент под колонны. Колоны отпадают! Посилання на коментар Поділитися на інших сайтах More sharing options...
ИльЯ С Опубліковано: 19 червня 2011 Поділитись Опубліковано: 19 червня 2011 Колоны отпадают! Понимаю. Сетка колон пролет 12, шаг 6 м, стены слабенькие большая грузовая площадь. Посилання на коментар Поділитися на інших сайтах More sharing options...
sagitron Опубліковано: 19 червня 2011 Автор Поділитись Опубліковано: 19 червня 2011 Понимаю. Сетка колон пролет 12, шаг 6 м, стены слабенькие большая грузовая площадь. ты имеешь ввиду усилить колонами стену? Посилання на коментар Поділитися на інших сайтах More sharing options...
ИльЯ С Опубліковано: 19 червня 2011 Поділитись Опубліковано: 19 червня 2011 ты имеешь ввиду усилить колонами стену? .Именно сделать каркасным зданием. , Посилання на коментар Поділитися на інших сайтах More sharing options...
Alexander Pryakha Опубліковано: 19 червня 2011 Поділитись Опубліковано: 19 червня 2011 Тыж знаешь заказчик платит - праектанты танцуют, попросил такое нарисовать ему нарисовали, а теперь строители е.утся че туда положить на эти 12 метров. А мы с вами гусей вместе не пасли - так шо не надо тыкать. Чертежик, То шо есть в первом посте - это так,.. картиночка, ескизная проработка, силует. Там еще по чертежам - пахать и пахать, это проектировщикам. На месте заказчика - я бы не торопился особо строить, сказал бы строителям - чтобы погуляли пока без работы.. А потом полностью бы переделал проект этого бунгало. Вы кстати - на чьей стороне воюете? Проектируете, строите, осмечиваете - или конструировать каркас собралисися? Посилання на коментар Поділитися на інших сайтах More sharing options...
civilengineer Опубліковано: 20 червня 2011 Поділитись Опубліковано: 20 червня 2011 Проектанты попросили посчитать стоимость строительства, но глянув на "проект" понял что без конструктора не обойтись. Ширина пролета 12м, настаивает заказчик, подскажите реально поставить 12 м перекрытие с учетом несущих стен 200-250 мм ж/б Как инженер-конструктор могу сказать, что нужны либо фермы, либо колонны в зале. 6м - ещё куда не шло 1 Посилання на коментар Поділитися на інших сайтах More sharing options...
Alexander Pryakha Опубліковано: 21 червня 2011 Поділитись Опубліковано: 21 червня 2011 Как инженер-конструктор могу сказать, что нужны Все верно, либо балки либо фермы. вернее - и то и другое .. Кстати на 12 м можно только балки делать, сварные высокопрочные -из стали козырной С345. Только это дороже. Главное -ТС - приготовить пачку евро -толщиной сантиметра в полтора -тогда уж заходи в гости - выполним из силуета ресторана- нормальный, приносящий прибыль объект. Посилання на коментар Поділитися на інших сайтах More sharing options...
mahno 31 Опубліковано: 21 червня 2011 Поділитись Опубліковано: 21 червня 2011 Обращайтесь просчитаю. Посилання на коментар Поділитися на інших сайтах More sharing options...
Alexander Pryakha Опубліковано: 21 червня 2011 Поділитись Опубліковано: 21 червня 2011 Обращайтесь просчитаю. Махно уже представил в уме пачку евро -толщиной в 15мм. Посилання на коментар Поділитися на інших сайтах More sharing options...
sagitron Опубліковано: 22 червня 2011 Автор Поділитись Опубліковано: 22 червня 2011 Махно уже представил в уме пачку евро -толщиной в 15мм. Я уже представил Ситуация усложняется еще тем что высота 3м для такого пролета (24*12) просто смешная - гараж подвальный. Короче нагрузил я проектантов, пусть общаются с заказчиком уверенней! Посилання на коментар Поділитися на інших сайтах More sharing options...
mahno 31 Опубліковано: 22 червня 2011 Поділитись Опубліковано: 22 червня 2011 Махно уже представил в уме пачку евро -толщиной в 15мм. Извините я не альтруист и за спасиба не роботаю:D Посилання на коментар Поділитися на інших сайтах More sharing options...
mahno 31 Опубліковано: 22 червня 2011 Поділитись Опубліковано: 22 червня 2011 Все верно, либо балки либо фермы. вернее - и то и другое .. Кстати на 12 м можно только балки делать, сварные высокопрочные -из стали козырной С345. Только это дороже. Главное -ТС - приготовить пачку евро -толщиной сантиметра в полтора -тогда уж заходи в гости - выполним из силуета ресторана- нормальный, приносящий прибыль объект. Не объязательно есть и другие варианты Посилання на коментар Поділитися на інших сайтах More sharing options...
dsk Опубліковано: 23 червня 2011 Поділитись Опубліковано: 23 червня 2011 Ширина пролета 12м, настаивает заказчик, подскажите реально поставить 12 м перекрытие с учетом несущих стен 200-250 мм ж/б У меня гараж в г/к. Ширина проезда между рядами гаражей ~10м. Перекрытие - ж/б плиты, цвета иссиня-черные. Опирание на стены с колоннами ж/б порядка 400 мм. И так 4 этажа. По этим перекрытиям ездят... Не 12, конечно, но... Посилання на коментар Поділитися на інших сайтах More sharing options...
Мирт Опубліковано: 23 червня 2011 Поділитись Опубліковано: 23 червня 2011 Преднапрежённый железобетон вам поможет (ссылка устарела) Посилання на коментар Поділитися на інших сайтах More sharing options...
sagitron Опубліковано: 24 червня 2011 Автор Поділитись Опубліковано: 24 червня 2011 Преднапрежённый железобетон вам поможет (ссылка устарела) поможет, только высокие цены - 1 плита 12000*1000*300 стоит 6,5т.грн с доставкой, плюс монтаж 500 грн (кран, сварка, руки) дороговато выходит однако!!! итого 3,6м3 перекрития 7т. грн или ~ 2т.грн куб Посилання на коментар Поділитися на інших сайтах More sharing options...
Winder Опубліковано: 24 червня 2011 Поділитись Опубліковано: 24 червня 2011 Халявы не будет в любом случае, не надейтесь8-) Посилання на коментар Поділитися на інших сайтах More sharing options...
Мирт Опубліковано: 24 червня 2011 Поділитись Опубліковано: 24 червня 2011 поможет, только высокие цены - 1 плита 12000*1000*300 стоит 6,5т.грн с доставкой, плюс монтаж 500 грн (кран, сварка, руки) дороговато выходит однако!!! итого 3,6м3 перекрития 7т. грн или ~ 2т.грн куб Если вычесть пустоты то обьём получится минимум в два раза меньше, но ведь это меньше вес. Шарнирно опёртую монолитную плиту вам сделать низкой не получится. Необходимо жёстко соединять её со стенами чтобы уменьшить прогиб. Поэтому стены должны быть заармированы соответственно моментам передающимися плитой. Раз дорого попробуйте сделать сами (ссылка устарела) Посилання на коментар Поділитися на інших сайтах More sharing options...
Рекомендовані повідомлення
Створіть акаунт або увійдіть у нього для коментування
Ви маєте бути користувачем, щоб залишити коментар
Створити акаунт
Зареєструйтеся для отримання акаунта. Це просто!
Зареєструвати акаунтУвійти
Вже зареєстровані? Увійдіть тут.
Увійти зараз