murtik Опубліковано: 23 червня 2011 Поділитись Опубліковано: 23 червня 2011 доброе время суток хотел сделать вертиляцию пола дом 2-этажный живу на 1-этаже где показано на рис. 2 трубу хотел прокладывать, это схема вентиляции может вентелировать воздух в доме а то сырость так уж достало помогите плз. Посилання на коментар Поділитися на інших сайтах More sharing options...
SON Опубліковано: 23 червня 2011 Поділитись Опубліковано: 23 червня 2011 это схема вентиляции может вентелировать воздух в доме а то сырость так уж достало помогите плз. Давайте сначала разделим мухи и котлеты.:D Пол я понял деревянный на лагах по грунту, его вентилировать нада обязательно, а то сгниет, а вот "сырость в доме" это уже другая песня, и к вентиляции пола отношения не имеет. Давайте больше инфы, что, где и как в доме с вентиляцией, потом бум править вашу схемку.:D 1 Посилання на коментар Поділитися на інших сайтах More sharing options...
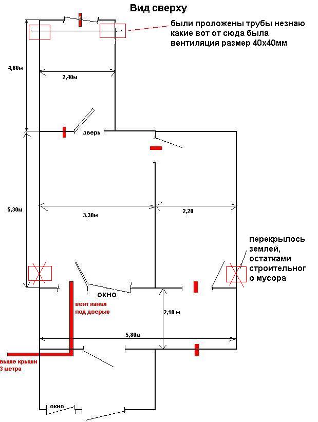
murtik Опубліковано: 27 червня 2011 Автор Поділитись Опубліковано: 27 червня 2011 вот нынче откуда воздух подавался (в остальных комнатах нету такой вентиляции как показано в рис 3 красными квадратами) зимой пол мёрзнет невозможно ходит посоветуйте как мне сделать вообще, по приведенная выше схема может хотябы на 60-70% работать Посилання на коментар Поділитися на інших сайтах More sharing options...
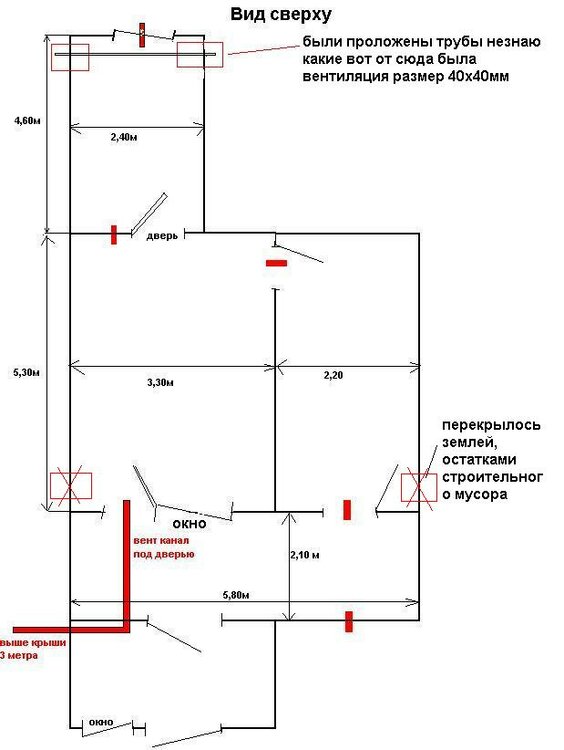
murtik Опубліковано: 1 липня 2011 Автор Поділитись Опубліковано: 1 липня 2011 вот нынче откуда воздух подавался (в остальных комнатах нету такой вентиляции как показано в рис 3 красными квадратами) зимой пол мёрзнет невозможно ходит посоветуйте как мне сделать вообще, по приведенная выше схема может хотябы на 60-70% работать закрыл где показано рис 3 красными квадратами закрыл Посилання на коментар Поділитися на інших сайтах More sharing options...
SON Опубліковано: 1 липня 2011 Поділитись Опубліковано: 1 липня 2011 зимой пол мёрзнет невозможно ходит посоветуйте как мне сделать вообще Если зимой пол мерзнет, это говорит о том, что вентиляция подпольного пространства все таки имеется. То, что засыпали землей - это были продухи, сейчас надо сделать новые, в принципе на схеме все нормально, но лучше парочку продухов на противоположных сторонах можно добавить, вертикальная труба - эт уже лишнее. Переточные каналы (которые внутри дома) как будете делать? Это -ж нужно пол срывать. Вероятнее всего у Вас пол на лагах по грунту, и переточки не понадобятся, там и так ветер гуляет. Продухи пола на зиму обычно затыкают. Все сказанное относится тока к подполу, если в доме сырость - значит нет вентиляции в самом доме или она не работает. Давайте расклад по вентканалам и прочему, тогда картина будет понятнее. Посилання на коментар Поділитися на інших сайтах More sharing options...
murtik Опубліковано: 12 липня 2011 Автор Поділитись Опубліковано: 12 липня 2011 Если зимой пол мерзнет, это говорит о том, что вентиляция подпольного пространства все таки имеется. То, что засыпали землей - это были продухи, сейчас надо сделать новые, в принципе на схеме все нормально, но лучше парочку продухов на противоположных сторонах можно добавить, вертикальная труба - эт уже лишнее. Переточные каналы (которые внутри дома) как будете делать? Это -ж нужно пол срывать. Вероятнее всего у Вас пол на лагах по грунту, и переточки не понадобятся, там и так ветер гуляет. Продухи пола на зиму обычно затыкают. Все сказанное относится тока к подполу, если в доме сырость - значит нет вентиляции в самом доме или она не работает. Давайте расклад по вентканалам и прочему, тогда картина будет понятнее. помогло со схемой спс за совет! Посилання на коментар Поділитися на інших сайтах More sharing options...
Рекомендовані повідомлення
Створіть акаунт або увійдіть у нього для коментування
Ви маєте бути користувачем, щоб залишити коментар
Створити акаунт
Зареєструйтеся для отримання акаунта. Це просто!
Зареєструвати акаунтУвійти
Вже зареєстровані? Увійдіть тут.
Увійти зараз