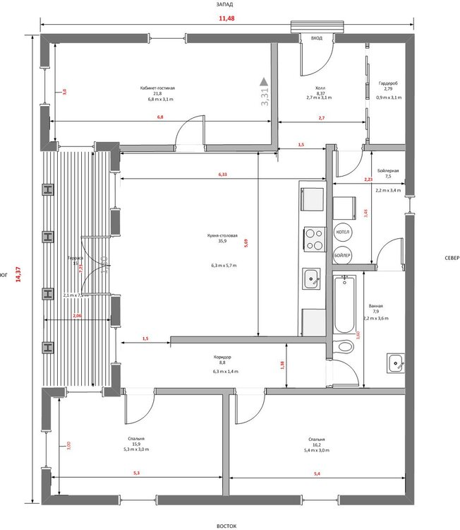
Vikki Опубліковано: 18 липня 2011 Поділитись Опубліковано: 18 липня 2011 Одноэтажный домик 120 метров для не пожилой семьи с одной дитятей. На участок становится идеально. От южного фасада до следующего дома ( с учетом нашего участка, дороги и отступа следующего через дорогу дома) минимум 30 метров (это много или мало кстати?) . Всем спасибо заранее традиционно - это 20ый приблизительно вариант, очень волнительно Посилання на коментар Поділитися на інших сайтах More sharing options...
Artyomovets Опубліковано: 18 липня 2011 Поділитись Опубліковано: 18 липня 2011 нет тамбура закуток между входом и гардеробной - домик для кота? гостиная - маленькая и на запад стеной... ух. тепленькая гостиная корридор между спальней и санузлом - надо думать. много места съедает кухня в центре дома. как-то некомфортно всем плясать вокруг плиты 30 метров - это много! можно уквадратнить дом и более выгодно расположить помещения Посилання на коментар Поділитися на інших сайтах More sharing options...
Vikki Опубліковано: 18 липня 2011 Автор Поділитись Опубліковано: 18 липня 2011 нет тамбура закуток между входом и гардеробной - домик для кота? гостиная - маленькая и на запад стеной... ух. тепленькая гостиная корридор между спальней и санузлом - надо думать. много места съедает кухня в центре дома. как-то некомфортно всем плясать вокруг плиты Отвечаю: Тамбур мне не нравится ни в каких разрезах как концепт. Я сознательно иду на гембель и траты с утопленным крыльцом дабы немного утеплить входную группу но не делать гроб с дверями типа тамбур (сори если это задевает чье-то рациональное видение тамбура) Закуток - это для электрощитка, сигнализации, этс, у нас в квартире такой же, очень удобно. Если в частном доме этих панелей нету - тогда уберу. Коридор спецом здоровый - выполняет две функции - отгораживает нашу спальню от движняка в доме, полки с книгами и картины вешаются по всей плоскости стен. Снова таки - у нас сейчас так. Гостиная одной стеной на чистый юг, второй на южную террасу, а западная стена для музыки, книг и тв, спецом без окон - я точно знаю сколько у нас места занимает все вышеперечисленное, велосипед не придумываю. Кухня в центре - по-моему скромному мнению - это как раз жир. Спасибо за комментарии! Посилання на коментар Поділитися на інших сайтах More sharing options...
красилсончик Опубліковано: 18 липня 2011 Поділитись Опубліковано: 18 липня 2011 мне здесь не хватает кладовки - хоз.блока: как угодно его назовите. в кладовке возле кухни мы храним овощи, закрутки, инструменты, стремянка, швабры, веники, химия и т.п.. в котельной у нас же постирочная - поэтому там идельно чисто и сушиться бельё. я не знаю, где вы планируете сушить бельё, но если в котельной- то унитазу там точно не место.. щиток и сигнализация у нас в шкафу-купе за дверью - этот закуток не украсит дом. кухня не рационально спланирована, да и нарушен порядок - холодильник-мойка-плита. двери в кухню мы тоже сначала не планировали - теперь однозначно будем ставить - вытяжка всё равно не справиться и в запахах кухни (хоть и отличных) - весь дом. в гостиной некомфортно сидеть спиной к выходу на террасу.. вот, как то так Посилання на коментар Поділитися на інших сайтах More sharing options...
Vikki Опубліковано: 18 липня 2011 Автор Поділитись Опубліковано: 18 липня 2011 мне здесь не хватает кладовки - хоз.блока: как угодно его назовите. в кладовке возле кухни мы храним овощи, закрутки, инструменты, стремянка, швабры, веники, химия и т.п.. в котельной у нас же постирочная - поэтому там идельно чисто и сушиться бельё. я не знаю, где вы планируете сушить бельё, но если в котельной- то унитазу там точно не место.. щиток и сигнализация у нас в шкафу-купе за дверью - этот закуток не украсит дом. кухня не рационально спланирована, да и нарушен порядок - холодильник-мойка-плита. двери в кухню мы тоже сначала не планировали - теперь однозначно будем ставить - вытяжка всё равно не справиться и в запахах кухни (хоть и отличных) - весь дом. в гостиной некомфортно сидеть спиной к выходу на террасу.. вот, как то так Большое спасибо за комментарий! Очень надеюсь на то, что функционал части хозблока примет на себя 6ти метровая рабочая кухонная поверхность - шкапики, этс, остальное я ничтоже сумняшеся запихаю в бойлерную. Бойлерная и постирочная - не обсуждается - будут вместе - я и так скрипя сердцем столько места им выделила. Котел у нас газовый будет без особой грязи. Унитаз в бойлерной - жестокая реальность большого количества гостей - пусть туда ходят чем заблудятся в коридоре или завалят по пьяни мои стеллажи с косметикой в ванной :D Закуток такой в общем скромный - вижу, он нервирует - так что что-то с ним придумаю. Хотя туда удобно легким непринужденным движением ноги задвинуть уличную обувку гггг По расположению на рабочей кухонной поверхности - конечно, вернее, хол-к, плита, мойка. По запахам - у нас стоит вытяжка какая то немецкая 30 метров вся площадь (кухня, гостиная, столовая) - нормально пока, как-то не звэрталы, может нам даже и нравятся запахи. Гостиная для меня и мужа имеет единственный функционал - акустика и отдаленность от места где спит мелкая. У нас музыкалки на прилично денег дома, но мы слушать нормально не можем, потому что соседи стонут да и нервировать их не хочется, по резалту мы слушаем музыку в наушниках и меня это нереально торбит уже 5 год. Посилання на коментар Поділитися на інших сайтах More sharing options...
красилсончик Опубліковано: 18 липня 2011 Поділитись Опубліковано: 18 липня 2011 у нас в доме кухня 7 м.п. - не помещается. по поводу туалета в котельной - а бельё ваше вам не жаль, когда гости будут к унитазу пробираться?:D Посилання на коментар Поділитися на інших сайтах More sharing options...
Vikki Опубліковано: 18 липня 2011 Автор Поділитись Опубліковано: 18 липня 2011 у нас в доме кухня 7 м.п. - не помещается. по поводу туалета в котельной - а бельё ваше вам не жаль, когда гости будут к унитазу пробираться?:D у нас гости интеллигентные - если где что поваляли по пьяни, на утро починят (погладят, постирают) :D Посилання на коментар Поділитися на інших сайтах More sharing options...
АрхиКет Опубліковано: 18 липня 2011 Поділитись Опубліковано: 18 липня 2011 1. я, как именно тот странный фанат тамбуров советую - не хотите гробика - сделайте эркерное остекленение Вашего крыльца- потому как в 20 градусный мороз каждый входящий в дом будет повергать в холодный шок и людей в гостинной и на кухне. или вы делаете тепловую завесу - может Вы просто не указали... тогда пункт отпадает. 2. собственно транзитность кухни и гостинной. как Вы предпалагаете слушать музыку на полную если она на прямую бьётся о двери детской? 3. проход из кухни в коридор - стол мешает - 80 см при сидящем человеке за столом превратяться почти в ноль. 4. Лично моё - мне бы было стыдно пускать приличный людей в бойлерную где сохнет нижнее бельё и детские колготочки... имхо - там можно выкроить квадрат для гостевого с/у 5. я люблю хоть маленькие - но окна в ванной комнате...как по мне чуть ли не главный кайф в своём доме... 6. если терасса будет иметь навес - с кухне будет темно -как-то оно не очень... 7. личное предпочтение - кабинет бы сделала по центру - с целью звуковой изоляции родительской спальни. а в идеале и небольшой с/у - дети ростут быстро - в один прекрасный момент у дочери появится свой стеллаж с косметикой)) Ну это так - на первый взгляд... 1 Посилання на коментар Поділитися на інших сайтах More sharing options...
plus Опубліковано: 19 липня 2011 Поділитись Опубліковано: 19 липня 2011 Отвечаю: Кухня в центре - по-моему скромному мнению - это как раз жир. Спасибо за комментарии! Точно жир. Темное, проходное, издающее запахи на на весь дом помещение. Точно жир, но не кухня. 1 Посилання на коментар Поділитися на інших сайтах More sharing options...
~UXO~ Опубліковано: 19 липня 2011 Поділитись Опубліковано: 19 липня 2011 Интересный вариант. А что было в прежних 19 ??? Обычно самый первый всегда самый удачный, а все последующие только хуже. Я бы сделал отдельный туалет с маленьким умывальником на входе, там где гардероб,(160х80), отрезал бы у гардероба сантиметров 80-90. А там где бойлерная была бы котёльня + постирочная. Или стиральных+сушильных машин у вас не будет? Ну как то так. Как по площади то там где гостинная должна быть кухня, 14м2 для неё оптимальный вариант, + окно бы сделал на фронт , чтоб был обзор входа в дом. Тамбура нет, то же не очень. Можно было бы сделать небольшой вынос, (эркер). А там где терраса как раз место гостинной, расширить её во внутрь метров так до 25. А вместо кухни был бы хол. Получилась бы более традиционная планировка. Если без террасы не жить то и так как у вас то же можно. 1 Посилання на коментар Поділитися на інших сайтах More sharing options...
voglya Опубліковано: 19 липня 2011 Поділитись Опубліковано: 19 липня 2011 Однозначно сделала бы тамбур! Выровнять стену, прилепить снаружи козыречек со ступенями, внутренние стены тамбура - любые светопрозрачные перегородки. По-моему, у вас стоимость террасы выйдет почти как стоимость полноценной комнаты! Нельзя на ее месте комнату сделать, а террасу - подумать где??? Посилання на коментар Поділитися на інших сайтах More sharing options...
Vikki Опубліковано: 19 липня 2011 Автор Поділитись Опубліковано: 19 липня 2011 Точно жир. Темное, проходное, издающее запахи на на весь дом помещение. Точно жир, но не кухня. У нас кухонная стена - эстетическая композиция и "сердце" дома без всяких навесных шкафов и остального кухонного уродства. Насчет темного, да, согласна. Спасет большая площадь остекления как вариант. Посилання на коментар Поділитися на інших сайтах More sharing options...
Ivirina Опубліковано: 19 липня 2011 Поділитись Опубліковано: 19 липня 2011 я бы поменяла местами кухню и гостиную. а чем навеяна идея сделать кухню проходной? кстати а вы о фигуре не подумали? :D это же кошмар каждый раз идя куда то проходить через кухню :D что то да ухватишь вкусненького. 1 Посилання на коментар Поділитися на інших сайтах More sharing options...
Artyomovets Опубліковано: 19 липня 2011 Поділитись Опубліковано: 19 липня 2011 тут однозначно кухня просится на место гостиной, а гостиная - помещение нынешней кухни+терраса. террасу выносить дальше на ширину кухни и гостиной. но тогда немного разнесется разводка воды, что, не критично. но, как мне показалось, ТС просто выложил картинку как на выставке. никакие советы ему не кажутся конструктивными... гостиная тут шириной 3 метра. ни к какой стене диван не придвинешь. получается - что по гостиной к выходу на террасу и не пройти толком. не знаю, как у ТС. да и вообще, много тут противников каминов. но у себя камин я буду делать обязательно! Посилання на коментар Поділитися на інших сайтах More sharing options...
Vikki Опубліковано: 19 липня 2011 Автор Поділитись Опубліковано: 19 липня 2011 Однозначно сделала бы тамбур! Выровнять стену, прилепить снаружи козыречек со ступенями, внутренние стены тамбура - любые светопрозрачные перегородки. По-моему, у вас стоимость террасы выйдет почти как стоимость полноценной комнаты! Нельзя на ее месте комнату сделать, а террасу - подумать где??? Козыречки и крылечки не люблю, сори. Террасу будем делать на более дешевом фундаменте. Вообще идея террасы утопленной в дом связана с чистым южным фасадом. Хотя меня уже и это смущает из-за свободного тока воздуха. Посилання на коментар Поділитися на інших сайтах More sharing options...
Artyomovets Опубліковано: 19 липня 2011 Поділитись Опубліковано: 19 липня 2011 Террасу будем делать на более дешевом фундаменте. а это как, извините? не боитесь трещин по фундаменту? Посилання на коментар Поділитися на інших сайтах More sharing options...
Vikki Опубліковано: 19 липня 2011 Автор Поділитись Опубліковано: 19 липня 2011 тут однозначно кухня просится на место гостиной, а гостиная - помещение нынешней кухни+терраса. террасу выносить дальше на ширину кухни и гостиной. но тогда немного разнесется разводка воды, что, не критично. но, как мне показалось, ТС просто выложил картинку как на выставке. никакие советы ему не кажутся конструктивными... Вы не правы, очень даже кажутся и очень даже внимательно сейчас читаю всех. Мне самой не нравится походу и этот вариант :D И больше всего не нравится то, что в нем нет изюминки кроме асимметрии фасадов. Кухня и правда темная, терраса скорее всего душная в жару. Посилання на коментар Поділитися на інших сайтах More sharing options...
wironna Опубліковано: 19 липня 2011 Поділитись Опубліковано: 19 липня 2011 Проходная кухня однозначно плохой вариант, - к детям в комнаты будут приходить друзья, и всем придется ходить через кухню, Вас это будет устраивать?;) Посилання на коментар Поділитися на інших сайтах More sharing options...
АрхиКет Опубліковано: 19 липня 2011 Поділитись Опубліковано: 19 липня 2011 Изюминка - это результат профессионализма и долгих поисков - и на компромиссы Вам таки надо идти - есть понятие - "не нравится" и понятие - "надо". берите архитектора за гланды и ищите золотую середину) Удачи Вам 1 Посилання на коментар Поділитися на інших сайтах More sharing options...
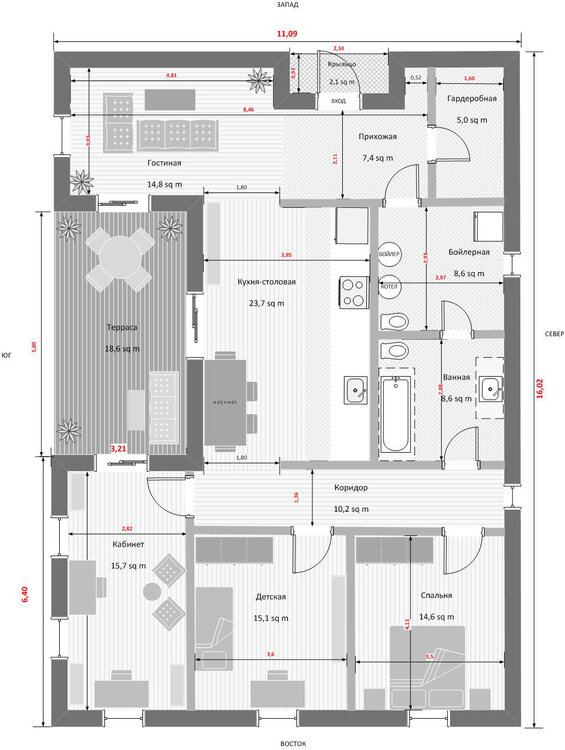
Vikki Опубліковано: 19 липня 2011 Автор Поділитись Опубліковано: 19 липня 2011 еще одна вариация на тему террасы внутри дома. тамбур-холл есть - двери не нарисованы. минус основной тот же как я понимаю - темная глубокая столовая - хотя глубина террасы меньше. и так же как то скучновастенька Посилання на коментар Поділитися на інших сайтах More sharing options...
Vikki Опубліковано: 19 липня 2011 Автор Поділитись Опубліковано: 19 липня 2011 Изюминка - это результат профессионализма и долгих поисков - и на компромиссы Вам таки надо идти - есть понятие - "не нравится" и понятие - "надо". берите архитектора за гланды и ищите золотую середину) Удачи Вам Я не могу нанять архитектора способного на серьезное крео к сожалению. Потому хочу идти к архитектору, скажем так, из среднего эшелона, со своим плюс-минус планировочным решением, базовой визуализацией, своим видением фасадов и стиля. Посилання на коментар Поділитися на інших сайтах More sharing options...
Artyomovets Опубліковано: 19 липня 2011 Поділитись Опубліковано: 19 липня 2011 может лучше сделать дом в 2 этажа или с мансардой, чтобы вынести наверх все спальни, при этом уменьшив пятно застройки и подвинув кухню к стене с окном? терраса действительно узкая. на ней комфортно не посидеть Посилання на коментар Поділитися на інших сайтах More sharing options...
Vikki Опубліковано: 19 липня 2011 Автор Поділитись Опубліковано: 19 липня 2011 может лучше сделать дом в 2 этажа или с мансардой, чтобы вынести наверх все спальни, при этом уменьшив пятно застройки и подвинув кухню к стене с окном? 2 этаж ни при каких раскладах не хотим. рисовала мансарду-полуэтаж с двумя кабинетами наверху соединенными галереей. спальни наверху - это ужоз, сори. Посилання на коментар Поділитися на інших сайтах More sharing options...
andriybog Опубліковано: 19 липня 2011 Поділитись Опубліковано: 19 липня 2011 Я не могу нанять архитектора способного на серьезное крео к сожалению. Потому хочу идти к архитектору, скажем так, из среднего эшелона, со своим плюс-минус планировочным решением, базовой визуализацией, своим видением фасадов и стиля. а смысл делать чужую работу? архитектору останется красиво начертить и все, и то наверняка какой то помошник или нанятый за меньшую сумму человек если чесно вы совсем не можете спланировать ничего, лучше подумайте какие помещения вам нужны и напрягите архитектора думать чем плохо спать на верху? у вас зато нужно приличный километраж мотать по дому Посилання на коментар Поділитися на інших сайтах More sharing options...
Vikki Опубліковано: 19 липня 2011 Автор Поділитись Опубліковано: 19 липня 2011 Раз у меня все так запущено, попробую зайти с другой стороны - прописать и систематизировать все требования к дому. Форму найти не могу, но она, насколько я понимаю, должна быть. Посилання на коментар Поділитися на інших сайтах More sharing options...
Рекомендовані повідомлення
Створіть акаунт або увійдіть у нього для коментування
Ви маєте бути користувачем, щоб залишити коментар
Створити акаунт
Зареєструйтеся для отримання акаунта. Це просто!
Зареєструвати акаунтУвійти
Вже зареєстровані? Увійдіть тут.
Увійти зараз