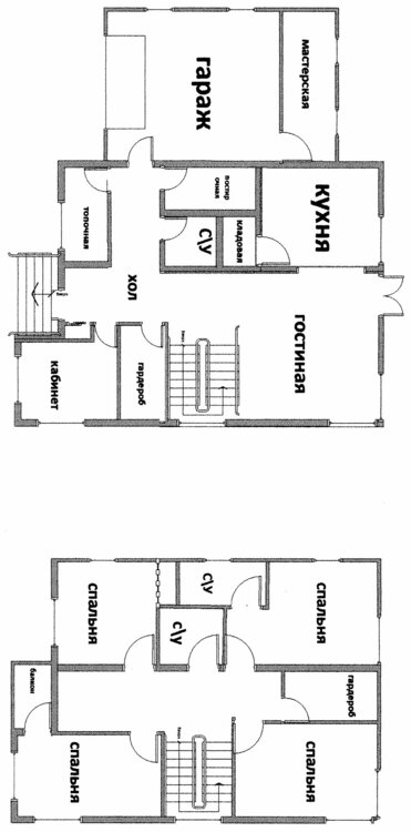
ольга2008 Опубліковано: 26 липня 2011 Поділитись Опубліковано: 26 липня 2011 понравился мне этот домик на картинке, смущает отсутствие дополнительной комнаты на 1 этаже (думали переделать из гардероба), и балкон не хочется делать. Думаю, может можно расширить комнаты вместо балкона. Подскажите, какие еще недостатки в проекте? www.buddom.com.ua/?m=177&o=3777 Посилання на коментар Поділитися на інших сайтах More sharing options...
Олег_ Опубліковано: 27 липня 2011 Поділитись Опубліковано: 27 липня 2011 с/в 3.9м. и хол 23 - както не совместимо, при общей площади жилой 124, с первого взгляда все норм, но только с первого, то что нада как обычно нет, сам подобрать не могу, приходится братся за карандаш( чтобы сделать наброски) 1 Посилання на коментар Поділитися на інших сайтах More sharing options...
Artyomovets Опубліковано: 27 липня 2011 Поділитись Опубліковано: 27 липня 2011 можно сделать комнату из гардероба на первом, топочно-постирочную совместить и сделать гардероб. но тут еще есть нюансы. камин по внешней стене тамбура нет зона отдыха на втором. считаю излишеством. гардероб на втором этаже я бы сделал общим, а не с выходом в одну спальню. Посилання на коментар Поділитися на інших сайтах More sharing options...
Интелсити Опубліковано: 27 липня 2011 Поділитись Опубліковано: 27 липня 2011 Вы не написали, как планируете использовать дом, площадь участка и в каком регионе предполагается строительство. Если для стандартных целей (постоянное проживание семьи из четырех человек в средней климатической зоне за пределами городской черты) то, на мой взгляд, из надостатков: слишком большая площадь гаража и маленькая площадь подсобный помещений (по нормативам - в частном доме на каждые 100м2 общей площади должно приходиться не менее 2м.кв подсобных помещений (читай - кладовых); не очень удачная планировка втрого этажа - слишком дробно и угловато по спальням и сан.узлам. По балконам сказать сложно - ничего особо сложного в их строительстве и гидроизоляции нет. Удачи! Посилання на коментар Поділитися на інших сайтах More sharing options...
Интелсити Опубліковано: 27 липня 2011 Поділитись Опубліковано: 27 липня 2011 можно сделать комнату из гардероба на первом, топочно-постирочную совместить и сделать гардероб. но тут еще есть нюансы. камин по внешней стене тамбура нет зона отдыха на втором. считаю излишеством. гардероб на втором этаже я бы сделал общим, а не с выходом в одну спальню. Присоединяюсь. 1 Посилання на коментар Поділитися на інших сайтах More sharing options...
ольга2008 Опубліковано: 27 липня 2011 Автор Поділитись Опубліковано: 27 липня 2011 участок 8 соток, дом для семьи из 4 человек (двое детей),регион - Севастополь. хочу оставить топочную, чтобы точно поместилось все оборудование. из гардероба делаем комнату, смещаем лестницу в сторону гостиной. на месте лестницы - небольшой гардероб. гостиная остается такого же размера за счет расширения в сторону террасы. от камина отказываемся.часть гаража планируем использовать как мастерскую.отсутствие тамбура не пугает, так как холодно у нас бывает не часто... 2 этаж: из зоны отдыха делаем комнату (лестницу также смещаем). гардероб действительно лучше сделать с общим доступом. гардероб и спальню расширяем за счет балкона.маленький балкон оставляем. Посилання на коментар Поділитися на інших сайтах More sharing options...
Artyomovets Опубліковано: 27 липня 2011 Поділитись Опубліковано: 27 липня 2011 участок 8 соток а сколько метров по фасаду? да и в общем, какой формы? исходя из размеров по проекту вам надо иметь около 25 метров фасад участка. Посилання на коментар Поділитися на інших сайтах More sharing options...
ольга2008 Опубліковано: 27 липня 2011 Автор Поділитись Опубліковано: 27 липня 2011 участок прямоугольный, 25х32 м. участок угловой, фасад может быть с любой стороны (заезд можно сделать с севера или запада) Посилання на коментар Поділитися на інших сайтах More sharing options...
ольга2008 Опубліковано: 27 липня 2011 Автор Поділитись Опубліковано: 27 липня 2011 что Вы думаете по поводу сейсмичности такого дома (все таки живем в Крыму), и можно ли заменить поротерм на ракушняк? и по поводу наружной отделки: практично и обшить такой дом вместо дерева сайдингом? Посилання на коментар Поділитися на інших сайтах More sharing options...
Artyomovets Опубліковано: 27 липня 2011 Поділитись Опубліковано: 27 липня 2011 что Вы думаете по поводу сейсмичности такого дома (все таки живем в Крыму), и можно ли заменить поротерм на ракушняк? и по поводу наружной отделки: практично и обшить такой дом вместо дерева сайдингом? сейсмичность - это надо к конструктору с вопросом. замена на ракушняк - к нему же. пусть фундамент просчитает. по сайдингу - у меня резкая антипатия к вагонке, сайдингу и т.п. я бы облицевал клинкером или клинкерной плиткой... 1 Посилання на коментар Поділитися на інших сайтах More sharing options...
ольга2008 Опубліковано: 27 липня 2011 Автор Поділитись Опубліковано: 27 липня 2011 оцените, пожалуйста, такой вариант планировки Посилання на коментар Поділитися на інших сайтах More sharing options...
Artyomovets Опубліковано: 27 липня 2011 Поділитись Опубліковано: 27 липня 2011 оцените, пожалуйста, такой вариант планировки вполне. единственное: не хотите уменьшить гараж до вместимости на 1 машину? тогда вся площадь дома помещается в 250 метров, что немаловажно в свете новых налоговых реформ а для второй машины сделать навес. 1 Посилання на коментар Поділитися на інших сайтах More sharing options...
ольга2008 Опубліковано: 27 липня 2011 Автор Поділитись Опубліковано: 27 липня 2011 спасибо за идею. как вариант можно вообще уменьшить дом на 1 метр со стороны гостиной, а то комнаты на 2 этаже слишком большие, да и кухня 20м... Посилання на коментар Поділитися на інших сайтах More sharing options...
vickov Опубліковано: 27 липня 2011 Поділитись Опубліковано: 27 липня 2011 ИМХО, для семьи из 4-х человек, 4 спальни - много, да и общая площадь черезчур более, чем достаточная. Хотя, если есть за что построить и содержать, то почему бы и нет? Обратите внимание на направление лестницы, мне кажется, что наоборот было бы уютнее и визуально увеличивало бы площадь гостинной. На втором этааже в коридоре можно сделать окно в сторону балкона или использовать этот закоулок как еще однин гардероб или кладовку. Но, наверное, будет темновато. А в общем, симпатичный домик. Но, опять же, ИМХО, ни сайдинг, ни дерево тут "не свистит". 1 Посилання на коментар Поділитися на інших сайтах More sharing options...
Artyomovets Опубліковано: 27 липня 2011 Поділитись Опубліковано: 27 липня 2011 регион - Севастополь. ИМХО, для семьи из 4-х человек, 4 спальни - много а курортники? :D Посилання на коментар Поділитися на інших сайтах More sharing options...
Интелсити Опубліковано: 27 липня 2011 Поділитись Опубліковано: 27 липня 2011 что Вы думаете по поводу сейсмичности такого дома (все таки живем в Крыму), и можно ли заменить поротерм на ракушняк? и по поводу наружной отделки: практично и обшить такой дом вместо дерева сайдингом? Вопрос с сейсмичностью может быть решен следующим образом - см.фото - при надлежащем конструктивном расчете. Я сайдинг тоже "не уважаю". Вопрос отделки фасада оставте до появления дома на участке. К тому времени (а это почти последний этап строительства) Ваши предпочтения могут сильно изменится. Посилання на коментар Поділитися на інших сайтах More sharing options...
Интелсити Опубліковано: 27 липня 2011 Поділитись Опубліковано: 27 липня 2011 спасибо за идею. как вариант можно вообще уменьшить дом на 1 метр со стороны гостиной, а то комнаты на 2 этаже слишком большие, да и кухня 20м... Ну, кухня 20 метров на семью из 4 человек - вполне нормально. Это Вы еще такого не пробовали! Когда под ногами у хозяйки не толкутся все домочадцы, включая кошек, собак, дальних и близких родственников - это очень удобно (проверено на себе!) Посилання на коментар Поділитися на інших сайтах More sharing options...
ольга2008 Опубліковано: 27 липня 2011 Автор Поділитись Опубліковано: 27 липня 2011 ИМХО, для семьи из 4-х человек, 4 спальни - много, да и общая площадь черезчур более, чем достаточная. Хотя, если есть за что построить и содержать, то почему бы и нет? Обратите внимание на направление лестницы, мне кажется, что наоборот было бы уютнее и визуально увеличивало бы площадь гостинной. На втором этааже в коридоре можно сделать окно в сторону балкона или использовать этот закоулок как еще однин гардероб или кладовку. Но, наверное, будет темновато. А в общем, симпатичный домик. Но, опять же, ИМХО, ни сайдинг, ни дерево тут "не свистит". будет слишком много окон на 2 этаже...может быть кладовку. Посилання на коментар Поділитися на інших сайтах More sharing options...
Archist Опубліковано: 29 липня 2011 Поділитись Опубліковано: 29 липня 2011 Второй вариант получше НО: - кухня слишком далеко от входа (торбы с продуктами тащить через весь дом); - выход из гаража прямо в дом без тамбура - нехорошо и опасно; - много окон в спальнях (кровать негде ставить). При замене на ракушняк нужно учесть увеличение толщины наружной стены (до 600 мм). А вообще еще нужо шлифовать! 1 Посилання на коментар Поділитися на інших сайтах More sharing options...
ольга2008 Опубліковано: 29 липня 2011 Автор Поділитись Опубліковано: 29 липня 2011 Второй вариант получше НО: - кухня слишком далеко от входа (торбы с продуктами тащить через весь дом); - выход из гаража прямо в дом без тамбура - нехорошо и опасно; - много окон в спальнях (кровать негде ставить). При замене на ракушняк нужно учесть увеличение толщины наружной стены (до 600 мм). А вообще еще нужо шлифовать! если везде делать тамбур - то дверей будет ну очень много.. по поводу окон - еще нужно подумать. мы сейчас ищем проектировщика, чтобы реализовать такой проект под нашу сейсмичность. а там видно будет - окна можно будет частично и убрать Посилання на коментар Поділитися на інших сайтах More sharing options...
ольга2008 Опубліковано: 10 серпня 2011 Автор Поділитись Опубліковано: 10 серпня 2011 подскажите, как по плану, где указана только площадь помещений, понять фактические размеры стен (длина, ширина). я имею в виду первоначальный проект по этой ссылке www.buddom.com.ua/?m=177&o=3777 Посилання на коментар Поділитися на інших сайтах More sharing options...
martin_al Опубліковано: 10 серпня 2011 Поділитись Опубліковано: 10 серпня 2011 Ольга, если Вы ищете проектировщика для адаптации этого проекта под свои требования, то почему бы Вам не обратиться к автору этого проекта? Кстати он сейчас проживает в Ялте, и Вы можете с ним встретиться и переговорить. Вот еще варианты отделки фасадов понравившегося Вам дома: Посилання на коментар Поділитися на інших сайтах More sharing options...
Рекомендовані повідомлення
Створіть акаунт або увійдіть у нього для коментування
Ви маєте бути користувачем, щоб залишити коментар
Створити акаунт
Зареєструйтеся для отримання акаунта. Це просто!
Зареєструвати акаунтУвійти
Вже зареєстровані? Увійдіть тут.
Увійти зараз