dimaaprodos Опубліковано: 19 серпня 2011 Поділитись Опубліковано: 19 серпня 2011 Добрый день всем. Стою на этапе подготовки фундамента фасадной части забора (кирпичные столбы в 1.5 кирпича и ковки). Планирую делать распашные ворота, так как нет места для распашных ворот. Подскажите на какую глубину нужно сделать фундамент, как заармировать, при ширине ворот 4 м и калитки в 1.2 м какие должны быть монтажные размеры. Поделитесь опытом обустройства своего забора. Оченб благодарен буду за схемы, фотографии и т.д. Посилання на коментар Поділитися на інших сайтах More sharing options...
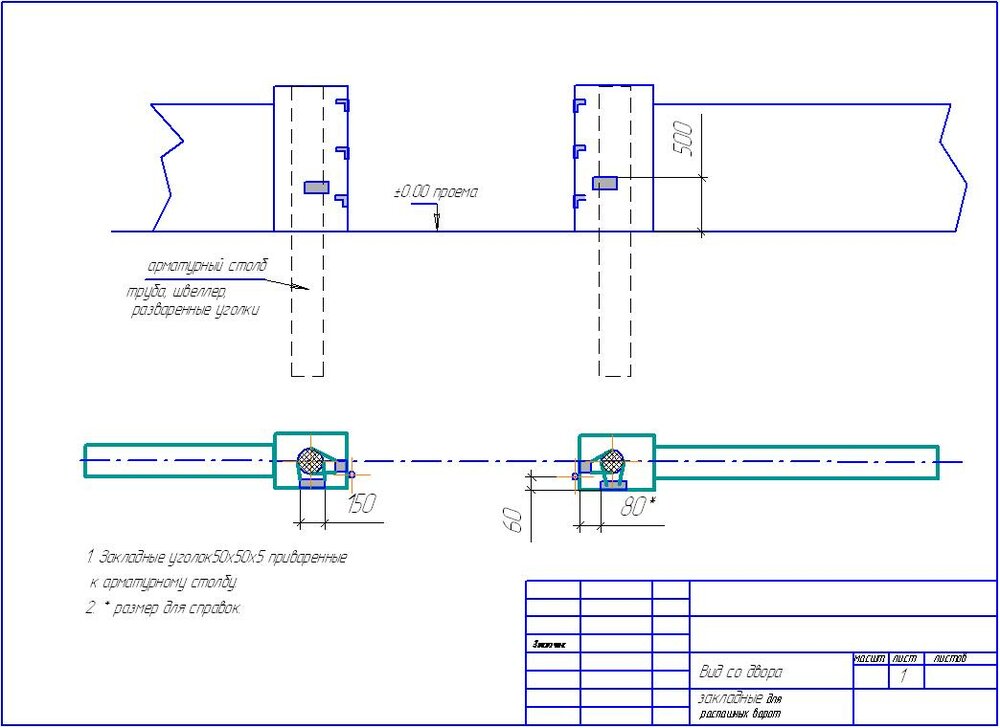
Вратарь Опубліковано: 20 серпня 2011 Поділитись Опубліковано: 20 серпня 2011 По телефону дам комментарии если необходимо. Закладные для открытия ворот и калитки во двор. 1 Посилання на коментар Поділитися на інших сайтах More sharing options...
wasyl Опубліковано: 20 серпня 2011 Поділитись Опубліковано: 20 серпня 2011 закладні для ковки потрібно узгодити з безпосередніми виконавцями, ковалями, бо кожна фірма має свій спосіб монтування, хтось приварює на об’єкті до існуючих закладних, хтось монтує на механічні з’єднання використовуючи свої кріплення. зверніть увагу на вагу брами, при проектуванні фундаменту. раджу як коваль, бо я не будівельник Посилання на коментар Поділитися на інших сайтах More sharing options...
alena babayeva Опубліковано: 20 серпня 2011 Поділитись Опубліковано: 20 серпня 2011 а структуру ворот надо согласовывать с установщиками автоматики. т.к. крепить автоматику к воротам тоже как-то надо, и не всегда имеющиеся горизонтальные перемычки на готовых воротах позволяют это сделать. мой Вам совет - разошлите в несколько фирм на просчет Ваши ворота, укажите перечень работ, а потом, когда определитесь с исполнителем, и вызывайте его к себе на участок, пусть показывает и рассказывает где что и как делать. это будет самый правильный вариант, полагаю. ну а на форум уже потом можно будет выложить рекомендации этого самого замерщика, чтобы коллективный разум выявил возможные просчеты. хотя, если обратитесь не к гаражникам-кустарям, проблем быть не должно Посилання на коментар Поділитися на інших сайтах More sharing options...
Hans Опубліковано: 22 серпня 2011 Поділитись Опубліковано: 22 серпня 2011 обнаружил в каталоге артеферро прикольную схему навешивания ворот. нижней петли нет вовсе, в ворота вваривается палец, который стоит в стальной площадке. смазка - графитовая. плюсы: + снижается нагрузка на закладные, армирование столба упрощается + ворота ставить/снимать на порядок (т.е. фдесятраз) легче + настройка верхней петли упрощается купил. сделал. всем рекомендую. Посилання на коментар Поділитися на інших сайтах More sharing options...
gnom_slava Опубліковано: 22 серпня 2011 Поділитись Опубліковано: 22 серпня 2011 обнаружил в каталоге артеферро прикольную схему навешивания ворот. нижней петли нет вовсе, в ворота вваривается палец, который стоит в стальной площадке. смазка - графитовая. плюсы: + снижается нагрузка на закладные, армирование столба упрощается + ворота ставить/снимать на порядок (т.е. фдесятраз) легче + настройка верхней петли упрощается купил. сделал. всем рекомендую. логично: нижняя петля несет только осевую нагрузку, поэтому такая замена вполне адекватна. к стати, примерно поэтому же когда ставят три петли средняя смещается существенно выше середины - там она парирует больше опрокидывающий момент от массы ворот, чем осевую нагрузку Посилання на коментар Поділитися на інших сайтах More sharing options...
Flanker Опубліковано: 22 серпня 2011 Поділитись Опубліковано: 22 серпня 2011 логично: нижняя петля несет только осевую нагрузку, поэтому такая замена вполне адекватна. к стати, примерно поэтому же когда ставят три петли средняя смещается существенно выше середины - там она парирует больше опрокидывающий момент от массы ворот, чем осевую нагрузку Вы хоть сами поняли что говорте? Петля несет только осевую нагрузку если центр тяжести створки проходит через ось вращения, т.е. если петля стоит не на краю створки, а ее центре. Вы много таких ворот-каруселей видели? 2 Посилання на коментар Поділитися на інших сайтах More sharing options...
gnom_slava Опубліковано: 24 серпня 2011 Поділитись Опубліковано: 24 серпня 2011 Вы хоть сами поняли что говорте? Петля несет только осевую нагрузку если центр тяжести створки проходит через ось вращения, т.е. если петля стоит не на краю створки, а ее центре. Вы много таких ворот-каруселей видели? ну что же, извините за офтоп, но маленький урок ТММ (теории машин и механизмов): на рис.1 приведена кинематическая схема неподвижно висящей (для простоты) створки ворот. задача: расставить и посчитать реакции опор. угол b считать прямым. если есть претензии к постановке задачи - предложите свою. если что-то непонятно - извините, но могу посоветовать только брать учебники и самостоятельно курить предмет (задачка то даже не ВУЗовская). Посилання на коментар Поділитися на інших сайтах More sharing options...
kulak43 Опубліковано: 26 серпня 2011 Поділитись Опубліковано: 26 серпня 2011 логично: нижняя петля несет только осевую нагрузку, поэтому такая замена вполне адекватна. к стати, примерно поэтому же когда ставят три петли средняя смещается существенно выше середины - там она парирует больше опрокидывающий момент от массы ворот, чем осевую нагрузку в данном варианте ( например установка приводов FROG) на нижнюю петлю действуют и радиальная и осевая нагрузки.А вот верхнюю петлю делают таким образом, чтобы она несла только радиальную нагрузку. Причем предусматривается возможность регулировки верхней петли. В случае двух традиционных петель радиальные нагрузки на обе петли равны ( при условии нахождения петель на равном расстоянии ,верхней от верхнего ,а нижней от нижнего края ворот) и противоположны по направлению. Посилання на коментар Поділитися на інших сайтах More sharing options...
gnom_slava Опубліковано: 26 серпня 2011 Поділитись Опубліковано: 26 серпня 2011 согласен, тупонул просто из жизненного опыта как то стереотип сложился, что так как отрывается верхняя петля всегда, то она и несет бОльшую нагрузку 2 Посилання на коментар Поділитися на інших сайтах More sharing options...
kulak43 Опубліковано: 26 серпня 2011 Поділитись Опубліковано: 26 серпня 2011 согласен, тупонул просто из жизненного опыта как то стереотип сложился, что так как отрывается верхняя петля всегда, то она и несет бОльшую нагрузку скорее всего верхняя отрывается из-за того что ее обычно варят первой и получается что на нее приходится вся осевая нагрузка , а нижнюю приваривают когда створка уже висит на верхней и в результате на нижнюю действует только радиальная нагрузка Посилання на коментар Поділитися на інших сайтах More sharing options...
Рекомендовані повідомлення
Створіть акаунт або увійдіть у нього для коментування
Ви маєте бути користувачем, щоб залишити коментар
Створити акаунт
Зареєструйтеся для отримання акаунта. Це просто!
Зареєструвати акаунтУвійти
Вже зареєстровані? Увійдіть тут.
Увійти зараз