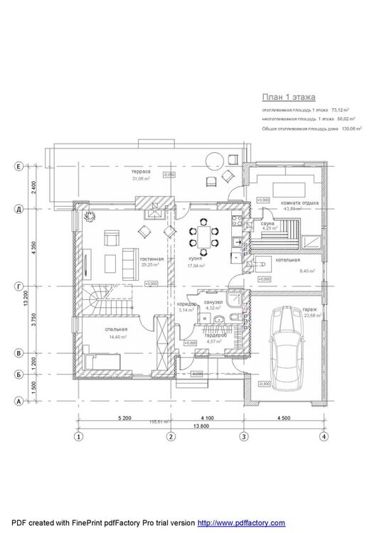
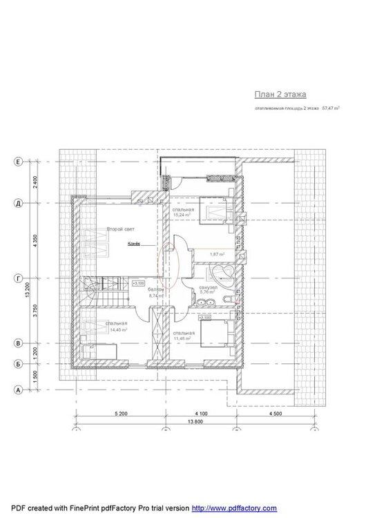
романн Опубліковано: 4 липня 2008 Поділитись Опубліковано: 4 липня 2008 Привет господа форумчане. Выкладываю планы своего дома. Меня он в принципе устраивает но есть сомнения Не маленький ли он? Все ли помещения предусмотрел ? Достаточен размер помещений? Семья три человека + бабушка наездами. Понимаю что все будут собираться возле телевизора (проецирую жизнь в кварите, как в доме не знаю может все на улице сидят ), потому хотел иметь там побольше места. Хочется свободного пространства. Но все это конечно относительно. Вот я и не могу понять, хол с лестницей в 30 метров это много или мало . Побывать у кого то в доме с подобной планировкой пока не пощастливилось. Забыл сказать, на почве сомнений сейчас выншиваю идею цокольного этажа но незнаю что там можно разместить чтоб разгрузить первый этаж. Возможно он мне не нужен. Прошу откликнуться на мои вопросы у кого есть опыт или свое мнение. Спасибо всем! Посилання на коментар Поділитися на інших сайтах More sharing options...
Ольга В Опубліковано: 4 липня 2008 Поділитись Опубліковано: 4 липня 2008 Где фасады? Второй свет-это обязательно? Жрет много тепла и есть мнение, что гостиная 29м и высотой в 6 м будет смотреться как шахта лифта. Комната 11м на 2-м этаже - мала. Мансарда или полноценный 2-ой этаж? По поводу цокольного этажа сломано куча копий-решайте сами. А вопрос маленький ли это дом, ответить сможете только вы сами после года проживания. Самое главное-где тамбур? По составу помещений спросите себя, мы же не знаем -нужен ли вам спа-салон, бильярдная, фотолаборатория, сауна и т.д и т.п. Посилання на коментар Поділитися на інших сайтах More sharing options...
Mia Опубліковано: 4 липня 2008 Поділитись Опубліковано: 4 липня 2008 Мое мнение- вполне удачный дом. Я бы и себе такие планировки делала, но мне гараж отдельно больше нравится и нужна спальня на 1 этаже. Еще важно продумать необходимое кол-во гардеробных. А комната 11м- если например под кабинет, или гостевую- то вполне достаточно.Балкончик на 2 этаже многие критикуют, но мне нравится. Посилання на коментар Поділитися на інших сайтах More sharing options...
HAD Опубліковано: 5 липня 2008 Поділитись Опубліковано: 5 липня 2008 тамбур и прихожая отсутствуют- это не есть правильно. Если участок с видом -то вместо 2го света -шикарная крытая виранда..., Посилання на коментар Поділитися на інших сайтах More sharing options...
романн Опубліковано: 5 липня 2008 Автор Поділитись Опубліковано: 5 липня 2008 Спаасибо всем за ответы! Где фасады? Второй свет-это обязательно? Жрет много тепла и есть мнение, что гостиная 29м и высотой в 6 м будет смотреться как шахта лифта. Комната 11м на 2-м этаже - мала. Мансарда или полноценный 2-ой этаж? По поводу цокольного этажа сломано куча копий-решайте сами. А вопрос маленький ли это дом, ответить сможете только вы сами после года проживания. Самое главное-где тамбур? По составу помещений спросите себя, мы же не знаем -нужен ли вам спа-салон, бильярдная, фотолаборатория, сауна и т.д и т.п. Фасады пока немогу показать. Второй свет для меня обязателен, так как хочу новых ощущений в доме, надоел ровный потолок Тепло конечно он всетаки будет жрать но хочу Надеюсь это будет не колодец так как дом мансардный и сверху идет скат крыши начало гдето на уровне 4.8м и до высоты около 6м. Сделаю еще какие то декоративны балки если что. Слишком дорогой и долгий эксперимент получится построить дом год в нем жить ) Согласен тамбур нужен буду пытаться его выкроить, возможно сделаю большой тамбур со шкфом вместе, одежда правда будет холодная зимой ;) Сауна уже предусмотрена, спасалон, бильярдных мне не нужно Мое мнение- вполне удачный дом. Я бы и себе такие планировки делала, но мне гараж отдельно больше нравится и нужна спальня на 1 этаже. Еще важно продумать необходимое кол-во гардеробных. А комната 11м- если например под кабинет, или гостевую- то вполне достаточно.Балкончик на 2 этаже многие критикуют, но мне нравится. Спасибо Согласен с вами, гараж я бы вообще не делал, только навес для машины. Но в это проекте он уже есть а уберать его то полностью изменится внешний вид. У меня даже была мысль, не делать ворота в гараж, и использовать как помещение для садового инвентаря и тд. Вот с гардеробными несложилось в этом проекте. есть большой встроеный шкаф глубиной до метра в спальной комнате и почти 5 кв м сразу при входе вдом. На первом там есть спальная комната 14м2, а комнатку на втором в 11м2 действительно планирую возможно под кабинет или гостевую. тамбур и прихожая отсутствуют- это не есть правильно. Если участок с видом -то вместо 2го света -шикарная крытая виранда..., К сожалению особых видов нет (( Может у кого есть фотки гостинных комнат обьединенных с кухней похожих а мой метраж ? Посилання на коментар Поділитися на інших сайтах More sharing options...
HAD Опубліковано: 6 липня 2008 Поділитись Опубліковано: 6 липня 2008 гардероб в тамбуре -это ошибка. ..зима этого не простит.! Посилання на коментар Поділитися на інших сайтах More sharing options...
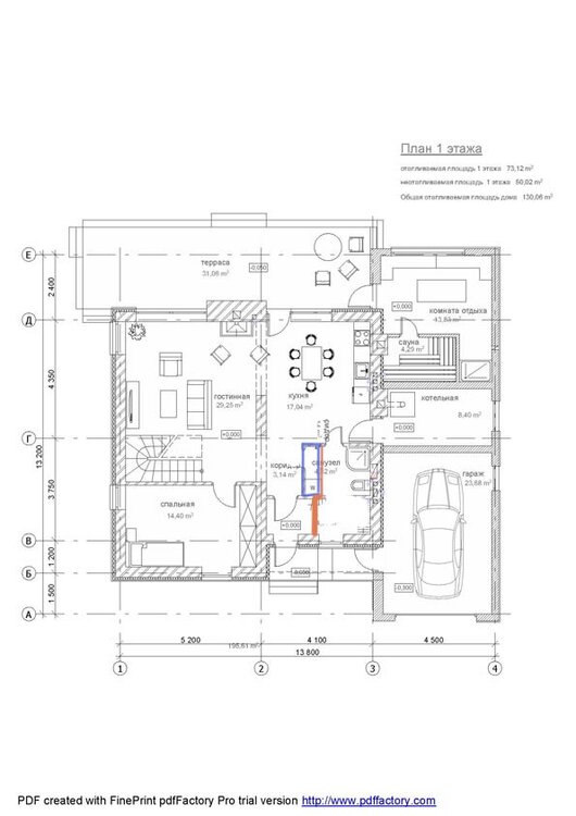
романн Опубліковано: 6 липня 2008 Автор Поділитись Опубліковано: 6 липня 2008 гардероб в тамбуре -это ошибка. ..зима этого не простит.! Думаю может на месте гардероба сделать санузел, а сразу за второй дверью большой стенной шкаф. Получается большой санузел. На схеме: синий - стенной шкаф, Посилання на коментар Поділитися на інших сайтах More sharing options...
HAD Опубліковано: 6 липня 2008 Поділитись Опубліковано: 6 липня 2008 (ссылка на изображение устарела) думаю вентиляцию сан.уз. можно согласовать со 2эт. ...да ..забыл нарисовать...из котельной-прачечной обязательно выход во двор !!! Посилання на коментар Поділитися на інших сайтах More sharing options...
романн Опубліковано: 7 липня 2008 Автор Поділитись Опубліковано: 7 липня 2008 (ссылка на изображение устарела) думаю вентиляцию сан.уз. можно согласовать со 2эт. ...да ..забыл нарисовать...из котельной-прачечной обязательно выход во двор !!! Спассибо за ответ! Выход во двор с котельной не обязателен , достаточно иметь окно правильного размера. Интиресная схема. Но мне не нравится что мы получаем совсем маленький санузел. И забираем у кухни полезную площадь перегородкой. Перегородку между кухней и прихожей не хочется ставить, хочется сохранить максимум пространства. Но тогда шкаф получается прямо в кухне )) И размер шкафа получится небольшой, на заменитель гардеробной комнаты не тянет)) Думаю нужно попробовать двигать входню дверь Посилання на коментар Поділитися на інших сайтах More sharing options...
HAD Опубліковано: 7 липня 2008 Поділитись Опубліковано: 7 липня 2008 Спассибо за ответ! Выход во двор с котельной не обязателен , достаточно иметь окно правильного размера. Интиресная схема. Но мне не нравится что мы получаем совсем маленький санузел. И забираем у кухни полезную площадь перегородкой. Перегородку между кухней и прихожей не хочется ставить, хочется сохранить максимум пространства. Но тогда шкаф получается прямо в кухне )) И размер шкафа получится небольшой, на заменитель гардеробной комнаты не тянет)) Думаю нужно попробовать двигать входню дверь Если котельная будет совмещена с прачечной ио выход во двор -это очень удобно!! Сан.узел на 1эт. в основном для гостей , там даже душ это лишнее. перегородку можна не ставить если не нравится, сделать арочный проем и будет вам пространство. С размерами шкафа можно поиграть, это не гардероб где хронят вещи, там только та одежда которая используетя в данное время. Можно сдвинуть входеую дверь в ровень со стеной дома, а вход в гараж сделать из котельной. Посилання на коментар Поділитися на інших сайтах More sharing options...
романн Опубліковано: 7 липня 2008 Автор Поділитись Опубліковано: 7 липня 2008 Пересматриваю польские проекты. Так там тамбуров практически нет . Они вроде и не на юге живут )) Посилання на коментар Поділитися на інших сайтах More sharing options...
Olesia Опубліковано: 7 липня 2008 Поділитись Опубліковано: 7 липня 2008 отличный домик - на мой похож )) только намного эффектнее лагодаря второму свету будет. делайте - не пожалеете! это потрясающее ощущение гостинной со вторым светом. какпо мне всего достаточно. правда гараж отдельно ... идея получше чем в маленьком домике его ютить. хотя. кому что как говорится. я вот достраиваю 198 квадратов и думаю следующий строить уже в 360. без второго света пока что правда но со всеми прибамбасами в виде терасс саун и гаража на 2 машины и куууучи неисчислимой мансардных окон (этот дом темноват получился так что оч даже найс. кстати кто вам проектировал не подскажете? так интересно нарисованно. я бы свой второй тоже прорисовала с вашим архитектором Посилання на коментар Поділитися на інших сайтах More sharing options...
романн Опубліковано: 7 липня 2008 Автор Поділитись Опубліковано: 7 липня 2008 отличный домик - на мой похож )) только намного эффектнее лагодаря второму свету будет. делайте - не пожалеете! это потрясающее ощущение гостинной со вторым светом. какпо мне всего достаточно. правда гараж отдельно ... идея получше чем в маленьком домике его ютить. хотя. кому что как говорится. я вот достраиваю 198 квадратов и думаю следующий строить уже в 360. без второго света пока что правда но со всеми прибамбасами в виде терасс саун и гаража на 2 машины и куууучи неисчислимой мансардных окон (этот дом темноват получился так что оч даже найс. кстати кто вам проектировал не подскажете? так интересно нарисованно. я бы свой второй тоже прорисовала с вашим архитектором Спасибо за хороший отзыв! Мне советуете строить, а сами считаете что 360 в самый раз ) Посоветовали бы что без саун, терас и всех пребамбасов строить не стоит Архитектора подскажу без проблем Посмотрел вашу ветку по стройке, мне кажется что ваше ощущение темного дома от того что стены еще неотделаны в ровные и светлые тона. Посилання на коментар Поділитися на інших сайтах More sharing options...
MaxS Опубліковано: 8 липня 2008 Поділитись Опубліковано: 8 липня 2008 Сан.узел на 1эт. в основном для гостей , там даже душ это лишнее. У меня два полноценных санузла на втором этаже и только горшок плюс умывальник на первом. Сейчас бы отказался от одного с/у на втором в пользу душа на первом. За целый день на второй этаж бывает подымаешся только когда спать ложишся. Если котельная будет совмещена с прачечной ио выход во двор -это очень удобно!! У романна уже три двери на улицу нарисовано. Зачем еще четвертую? Это и доп. затраты (фасад обыграть, козырек, дорожка к двери, может ступеньки) и по безопасности доп. вопрос. Я бы планировку не менял вовсе. Посилання на коментар Поділитися на інших сайтах More sharing options...
Татьяна5 Опубліковано: 8 липня 2008 Поділитись Опубліковано: 8 липня 2008 ИМХО владельца гостинной 60 м2 (студио с кухней, моя) - МАЛО :D. А если честно, мне кажется, что 29м2 - очень маленькая гостинная для дома, но это как кому, я люблю свет и пространство. Посилання на коментар Поділитися на інших сайтах More sharing options...
романн Опубліковано: 8 липня 2008 Автор Поділитись Опубліковано: 8 липня 2008 У меня два полноценных санузла на втором этаже и только горшок плюс умывальник на первом. Сейчас бы отказался от одного с/у на втором в пользу душа на первом. За целый день на второй этаж бывает подымаешся только когда спать ложишся. У романна уже три двери на улицу нарисовано. Зачем еще четвертую? Это и доп. затраты (фасад обыграть, козырек, дорожка к двери, может ступеньки) и по безопасности доп. вопрос. Я бы планировку не менял вовсе. Спасибо за ответ! Согласен с вами полностью. Я считаю что нужно все спланировать так что бы минимизировать подьем на втрой этаж днем и на первый ночью)). Но есть у меня вопросы: 1 Можно ли делать без тамбура. На сасмом деле он там есть, вопрос в том что тамбур получается ~5m2 я думал что там может быть большой шкаф для одежды. Зимой конечно там будет прохладней чам в доме но думаю что это не проблема так как батарея там стоять будет и температура будт в норме(если конечно не открыть двер навстеж на пол часа.) летом будет вообще отлично так как все врямя проходит на улице и не нужно будет бегать в какую то гардеробную на втопрой этаж. Верны ли мои предположения? 2 Гардеробная комната- у меня не получается сделать полноценную разве что вместо одной комнаты на втором этаже. или стенной шкаф в спальной. 3 И еще вопрос подвал, делать или нет? у меня грунтовые воды далеко 8 метров. Получается что гидроизоляцию делать не нужно и подвал будет достаточно дешовым. Только что там разместить непонятно. Есть у меня мечта комната для домашнего кинотеатра, но есть ли смысл ради комнаты подморачиваться или в реалной жизни помещения пригодятся? 4 Лестница - она у меня шириной 1.7 насколько это удобно? стоит ли в таком небольшом холе делать лестницу шире? Посилання на коментар Поділитися на інших сайтах More sharing options...
романн Опубліковано: 8 липня 2008 Автор Поділитись Опубліковано: 8 липня 2008 ИМХО владельца гостинной 60 м2 (студио с кухней, моя) - МАЛО :D. А если честно, мне кажется, что 29м2 - очень маленькая гостинная для дома, но это как кому, я люблю свет и пространство. У меня с кухней и прихожей которые обединены в общее пространство получается 50м2. У вас одной комнатой 60м2 получается? есть у вас фотки? дайте ссылочку, помотреть хочу Не могу понять что все о свете говорят (верне о его количестве), я люблю когда свет в комнате есть но шторы закрыты (может потому что я компьютерщик и лишние блики в мониторе не радуют ) Посилання на коментар Поділитися на інших сайтах More sharing options...
MaxS Опубліковано: 8 липня 2008 Поділитись Опубліковано: 8 липня 2008 Спасибо за ответ! 1 Можно ли делать без тамбура. На сасмом деле он там есть, вопрос в том что тамбур получается ~5m2 я думал что там может быть большой шкаф для одежды. Зимой конечно там будет прохладней чам в доме но думаю что это не проблема так как батарея там стоять будет и температура будт в норме(если конечно не открыть двер навстеж на пол часа.) Если батарея будет, или тепловая завеса, то зачем еще один тамбур городить? Ну будет там на 2 градуса ниже, чем в остальных помещениях. А так, по-моему, очень удобно получается. Посилання на коментар Поділитися на інших сайтах More sharing options...
MaxS Опубліковано: 8 липня 2008 Поділитись Опубліковано: 8 липня 2008 Может быть интереснее было бы скосить угол санузла на 1-м этаже. Не будет угла 90градусов - помещение больше будет казаться. И есть ли смысл в двери из гаража на крыльцо? Все-равно на открытый воздух выходить. Через ворота (или калитку в воротах) будет пройти аж на 2 м больше. Или через котельную сделать герметичную дверь, если предубеждений нет. Посилання на коментар Поділитися на інших сайтах More sharing options...
романн Опубліковано: 8 липня 2008 Автор Поділитись Опубліковано: 8 липня 2008 Может быть интереснее было бы скосить угол санузла на 1-м этаже. Не будет угла 90градусов - помещение больше будет казаться. И есть ли смысл в двери из гаража на крыльцо? Все-равно на открытый воздух выходить. Через ворота (или калитку в воротах) будет пройти аж на 2 м больше. Или через котельную сделать герметичную дверь, если предубеждений нет. Спаибо за ответ Да я думал над этим, только думал радиус сделать. Подойдет наверное вариант дверь в воротах, но не знаю может у меня будут подьемные ворота ролеты. Так каонечно лишьних дверей городить не хочу Посилання на коментар Поділитися на інших сайтах More sharing options...
MaxS Опубліковано: 8 липня 2008 Поділитись Опубліковано: 8 липня 2008 Подойдет наверное вариант дверь в воротах, но не знаю может у меня будут подьемные ворота ролеты. Есть секционные ворота с калитками. Вопрос насколько дороже такие ворота. Посилання на коментар Поділитися на інших сайтах More sharing options...
sevlad Опубліковано: 10 липня 2008 Поділитись Опубліковано: 10 липня 2008 Согласен тамбур нужен буду пытаться его выкроить Застекли крыльцо. Будет тебе тамбур. Посилання на коментар Поділитися на інших сайтах More sharing options...
izba Опубліковано: 10 липня 2008 Поділитись Опубліковано: 10 липня 2008 Слон-живописец написал пейзаж, Но раньше, чем послать его на вернисаж, Он пригласил друзей взглянуть на полотно: Что, если вдруг не удалось оно? Вниманием гостей художник наш польщен! Какую критику сейчас услышит он? Не будет ли жесток звериный суд? Низвергнут? Или вознесут? Ценители пришли. Картину Слон открыл, Кто дальше встал, кто подошел поближе. "Ну, что же,- начал Крокодил,- Пейзаж хорош! Но Нила я не вижу..." "Что Нила нет, в том нет большой беды!- Сказал Тюлень.- Но где снега? Где льды?" "Позвольте!- удивился Крот.- Есть кое-что важней, чем лед! Забыл художник огород". "Хрю-хрю,- заметила Свинья,- Картина удалась, друзья! Но с точки зренья нас, Свиней, Должны быть желуди на ней". Все пожеланья принял Слон. Опять за краски взялся он И всем друзьям по мере сил Слоновьей кистью угодил, Изобразив снега, и лед, И Нил, и дуб, и огород, И даже мед! (На случай, если вдруг Медведь Придет картину посмотреть...) Картина у Слона готова, Друзей созвал художник снова. Взглянули гости на пейзаж И прошептали: "Ералаш!" Мой друг! не будь таким слоном: Советам следуй, но с умом! На всех друзей не угодишь, Себе же только навредишь. Посилання на коментар Поділитися на інших сайтах More sharing options...
романн Опубліковано: 11 липня 2008 Автор Поділитись Опубліковано: 11 липня 2008 +1 Отличное стихотворение, спасибо !!! Смысл его абсолютно понятен. Но я теоретик, и хочу понять хотя бы с статистической стороны что будет хорошо что плохо. Переделывать потом не получится . По статистике, лидирует тамбур. Стоит задуматься ). как пример . Вы то точно практик с большой буквы!!! перечитал ваш сайт, большой респект. Ответьте на вопрос пожалуйста: Лестница - она у меня вся шириной 1.7(один марш получается 80см) насколько это удобно? стоит ли в таком небольшом холе(29м2) делать лестницу больше? Делать подвал? Немогу определиться так как одни пишут что цоколь это дешево, и глупо его не строить, другие наоборот. Вода у меня на 9ти метрах начинается. Нет кладовки в доме, нет прачечной, нет места для водоподготовки(возможно хватит котельной 8м2). Остаьное наверное не есть необходимость без которой жить нельзя, но еслиб был подвал то сделал бы еще домашний кинотеатр, кабинет мастерскую для себя. Спасибо за ответ! Посилання на коментар Поділитися на інших сайтах More sharing options...
Olesia Опубліковано: 11 липня 2008 Поділитись Опубліковано: 11 липня 2008 Спасибо за хороший отзыв! Мне советуете строить, а сами считаете что 360 в самый раз ) Посоветовали бы что без саун, терас и всех пребамбасов строить не стоит Архитектора подскажу без проблем Посмотрел вашу ветку по стройке, мне кажется что ваше ощущение темного дома от того что стены еще неотделаны в ровные и светлые тона. я планирую разжиться на таких экономных как у меня для того чтобы построить с саунами и террасами на 360 )) Посилання на коментар Поділитися на інших сайтах More sharing options...
Рекомендовані повідомлення
Створіть акаунт або увійдіть у нього для коментування
Ви маєте бути користувачем, щоб залишити коментар
Створити акаунт
Зареєструйтеся для отримання акаунта. Це просто!
Зареєструвати акаунтУвійти
Вже зареєстровані? Увійдіть тут.
Увійти зараз