Доброе_утро Опубліковано: 1 липня 2009 Поділитись Опубліковано: 1 липня 2009 Можно два. Но с однокамерными стеклопакетами (энергосберегающими, понятное дело), чтобы стекла не "слиплись". И металла внутрь(особенно в импост) не пожалеть. Посилання на коментар Поділитися на інших сайтах More sharing options...
Zulus Опубліковано: 1 липня 2009 Поділитись Опубліковано: 1 липня 2009 Можно два. Но с однокамерными стеклопакетами (энергосберегающими, понятное дело), чтобы стекла не "слиплись". И металла внутрь(особенно в импост) не пожалеть. металла в импост в два слоя пихать ? Посилання на коментар Поділитися на інших сайтах More sharing options...
Доброе_утро Опубліковано: 1 липня 2009 Поділитись Опубліковано: 1 липня 2009 металла в импост в два слоя пихать ? Зачем слои? Трудоемко...Металлическая болванка - самое то:D:D:beer: Посилання на коментар Поділитися на інших сайтах More sharing options...
Zulus Опубліковано: 1 липня 2009 Поділитись Опубліковано: 1 липня 2009 доступ есть оно на 1-м этаже я больше склоняюсь к минимуму секций и сделать глухим. для проветривания хватит других окон. Например только 3 оставить или может даже 2???? Меньше 3х секций с стеклом 4мм не рекомендуется (до 1,8 м2 можно делать остекление).Если хотите оставить только две секции прийдется ставить 6 мм. стекло. В этом случае если мне не изменяет память можно до 3.2 м2 стеклить. Посилання на коментар Поділитися на інших сайтах More sharing options...
Nvovan Опубліковано: 2 липня 2009 Поділитись Опубліковано: 2 липня 2009 Меньше 3х секций с стеклом 4мм не рекомендуется (до 1,8 м2 можно делать остекление).Если хотите оставить только две секции прийдется ставить 6 мм. стекло. В этом случае если мне не изменяет память можно до 3.2 м2 стеклить. насколько это удорожает конструкцию? То Доброе_утро И что значит "окна слиплись". Если без проф.терминов а для потребителя?поясните пожалуйста. вот фото стороны где большое окно Посилання на коментар Поділитися на інших сайтах More sharing options...
Zulus Опубліковано: 2 липня 2009 Поділитись Опубліковано: 2 липня 2009 насколько это удорожает конструкцию? То Доброе_утро И что значит "окна слиплись". Если без проф.терминов а для потребителя?поясните пожалуйста. вот фото стороны где большое окно Стоимость стекла 6мм почти в два раза дороже чем 4мм. А на фотке это то самое окно? Визуально оно меньше 3 метров, где то 2.6 на вид. Посилання на коментар Поділитися на інших сайтах More sharing options...
Nvovan Опубліковано: 2 липня 2009 Поділитись Опубліковано: 2 липня 2009 точно 3м Посилання на коментар Поділитися на інших сайтах More sharing options...
Vladdi Опубліковано: 2 липня 2009 Поділитись Опубліковано: 2 липня 2009 Странный вид будет у такой витрины - Вы порисуйте на досуге... А вообще TPS- пакеты способны вытянуть чуть поболее 2 кв метров, можно перемычкой поиграть. Посилання на коментар Поділитися на інших сайтах More sharing options...
Доброе_утро Опубліковано: 2 липня 2009 Поділитись Опубліковано: 2 липня 2009 насколько это удорожает конструкцию? ...вот фото стороны где большое окно Судя по визуальным размерам проемов первого и второго этажа, лучше, на мой взгляд будет смотреться деление большого окна на три части. Рядом ведь окно 1150*1460? Да и на втором этаже ширины окна/двери/окна более близки к третьей части витража (кстати, а где размеры этого проема?). Деление на три части будет дороже примерно на 115 грн (в белом цвете). Но как именно захотите в конечном итоге делить проем - решать Вам. Ведь жить Вы будете внутри дома, а не снаружи. По поводу возможного слипания/разлипания стекол в стеклопакете. Стекло только на небольших площадях производит впечатление жесткого материала. А вообще-то оно нежное и гибкое. И т.к. внутри стеклопакета находится пусть сухой, но постоянный обьем воздуха, а температура, понятное дело в течение года - меняется , то внутри стеклопакета то повышается, то понижается давление на эти самые стекла. И поскольку края стекол закреплены герметиком и, соответственно, неподвижны, то стеклопакет становится то выпуклым, то вогнутым. Причем, чем больше площадь стекла - тем больше возможный люфт. И прикол здесь в том, что "слипаются", понятное дело, очень большие стеклопакеты зимой, образуя четко посередине визуальное "жирное пятно" (блюм-эффект через преломление света). И чем морознее, тем "жирнее" пятно.:D И запотевание/промерзание в этом месте по сравнению с "жиром" перед глазами - уже мелочи. Правда, і-стекло несколько снижает этот эффект, своей температурой слегка повышая внутристекольное давление зимой, но жарким летом может случиться излишний "выгиб" и - бабах! і-стекло. Выход - не слишком вылезать за рекомендованные профессионалами размеры стеклопакетов конкретной формулы. Посилання на коментар Поділитися на інших сайтах More sharing options...
Доброе_утро Опубліковано: 3 липня 2009 Поділитись Опубліковано: 3 липня 2009 ...внутри стеклопакета то повышается, то понижается давление на эти самые стекла...Правда, і-стекло несколько снижает этот эффект, своей температурой слегка повышая внутристекольное давление зимой... Простите, кажется вчера я слегка устала и "смалограмотничала" в вопросе обьяснения некоторых физических процессов . Внутри стеклопакета - таки действительно постоянный обьем воздуха, а значит и постоянное давление (P*V=const). А вот снаружи (как со стороны помещения, так и с улицы) давление постоянно меняется (в основном из-за таки меняющейся температуры). И влияет на вогнутость/выпуклость стекол в стеклопакете как раз внешнее давление, а не внутренее (все еще краснею...) Хотя сути вопроса, вобщем-то, это не меняет. Посилання на коментар Поділитися на інших сайтах More sharing options...
Zulus Опубліковано: 3 липня 2009 Поділитись Опубліковано: 3 липня 2009 Простите, кажется вчера я слегка устала и "смалограмотничала" в вопросе обьяснения некоторых физических процессов . Внутри стеклопакета - таки действительно постоянный обьем воздуха, а значит и постоянное давление (P*V=const). А вот снаружи (как со стороны помещения, так и с улицы) давление постоянно меняется (в основном из-за таки меняющейся температуры). И влияет на вогнутость/выпуклость стекол в стеклопакете как раз внешнее давление, а не внутренее (все еще краснею...) Хотя сути вопроса, вобщем-то, это не меняет. Да в принципе все правильно написали для общего понимания. Внутри стеклопакета давление тоже меняется в зависимости от температуры. Посилання на коментар Поділитися на інших сайтах More sharing options...
ag_k Опубліковано: 3 липня 2009 Поділитись Опубліковано: 3 липня 2009 Всем привет! Я тут первый раз. Решили поменять с женой наши убитые окна на пвх. Размеры у нас снохшибательный 4 окна по 1800ммХ1400мм и балконная дверь: проем - 2650ммХ1280мм. Дом у нас под сносом, но нам надоело жить со старыми окнами, хотим поменять. И именно по этому хотим с-экономить. Посоветуйте компанию которая сможет за вполне разумные деньги изготовить окна. Сами мы из киева. Посилання на коментар Поділитися на інших сайтах More sharing options...
Zulus Опубліковано: 3 липня 2009 Поділитись Опубліковано: 3 липня 2009 Всем привет! Я тут первый раз. Решили поменять с женой наши убитые окна на пвх. Размеры у нас снохшибательный 4 окна по 1800ммХ1400мм и балконная дверь: проем - 2650ммХ1280мм. Дом у нас под сносом, но нам надоело жить со старыми окнами, хотим поменять. И именно по этому хотим с-экономить. Посоветуйте компанию которая сможет за вполне разумные деньги изготовить окна. Сами мы из киева. Мы уже 8 лет на рынке окон. Цены на пластиковые окна смотрите на сайте. Выбрать есть из чего. На вашем месте я бы заказал украинские окна. Не известно когда вас снесут, но так хоть не очень жалко будет, они не дорогие и приличного качества. Посилання на коментар Поділитися на інших сайтах More sharing options...
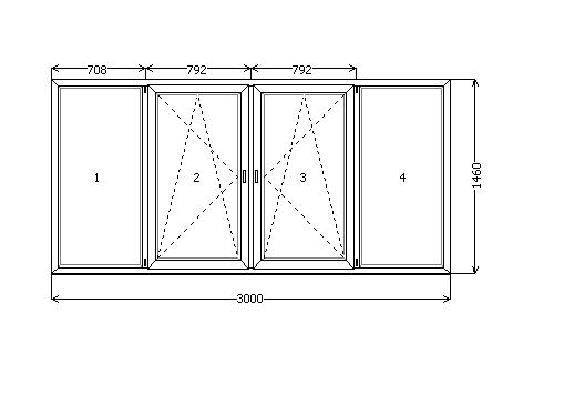
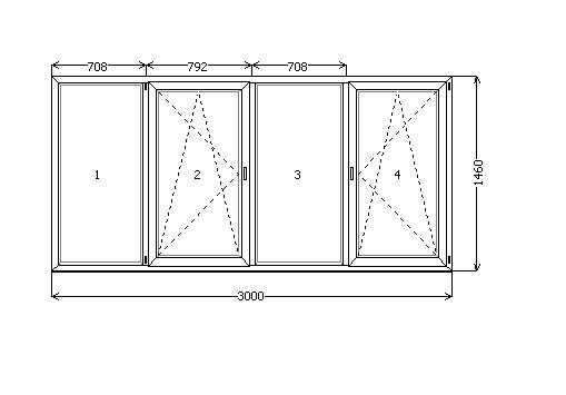
Sergei_ Опубліковано: 7 липня 2009 Поділитись Опубліковано: 7 липня 2009 Лучше всего конструкцию делить одним из следующих вариантов: А почему именно такие размеры створок? Вопрос не праздный. У меня окна на фронтонах именно 3000х1400, вот и думаю как они выглядеть должны. Только створки я думал по краям , в центре глухарь. Посилання на коментар Поділитися на інших сайтах More sharing options...
KROMIDO Line Опубліковано: 9 липня 2009 Поділитись Опубліковано: 9 липня 2009 Размеры створок больше, чем глухарей потому, что я выравняла стеклопакеты (выравнивание по световому проёму другими словами). Это делается для того, чтобы визуально все 4 части были равными. Поскольку, когда делишь на равные части, то створка визуально меньше, чем глухая часть, и стеклопакет в ней меньше (потому что на тот же рамный профиль накладывается частично ширина створочного профиля). Визуально конструкция с выравненными стеклопакетами смотрится эстетичнее. По поводу цельного среднего глухаря и створок по бокам. Такой вариант можно сделать, но тогда стеклопакет надо делать однокамерным сэнергосберегающим стеклом, поскольку 2-камерный тут уже технологически будет не правильно делать, существуют ограничения. Посилання на коментар Поділитися на інших сайтах More sharing options...
Одарочка Опубліковано: 9 липня 2009 Поділитись Опубліковано: 9 липня 2009 Скажите, а сильно ли влияют на теплоизоляцию количество камер в окнах Посилання на коментар Поділитися на інших сайтах More sharing options...
Zulus Опубліковано: 9 липня 2009 Поділитись Опубліковано: 9 липня 2009 Скажите, а сильно ли влияют на теплоизоляцию количество камер в окнах ИМХО примерно на 10% Посилання на коментар Поділитися на інших сайтах More sharing options...
Одарочка Опубліковано: 9 липня 2009 Поділитись Опубліковано: 9 липня 2009 То есть нет особого смысла ставить 3х камерные. 2хкамерных будет достаточно? Посилання на коментар Поділитися на інших сайтах More sharing options...
Nvovan Опубліковано: 9 липня 2009 Поділитись Опубліковано: 9 липня 2009 То есть нет особого смысла ставить 3х камерные. 2хкамерных будет достаточно? обратитесь в любую боле-менее приличную фирму и они вам дадут цифры по теплопроводности или теплосопротивлени при разном кол-ве камер. и решите для себя тогда что вам нужно. не стоит расссуждать категориями "особого смылса" и тд. есть же цифры Посилання на коментар Поділитися на інших сайтах More sharing options...
Одарочка Опубліковано: 9 липня 2009 Поділитись Опубліковано: 9 липня 2009 обратитесь в любую боле-менее приличную фирму и они вам дадут цифры по теплопроводности или теплосопротивлени при разном кол-ве камер. и решите для себя тогда что вам нужно. не стоит расссуждать категориями "особого смылса" и тд. есть же цифры обращались, сильно большая разница в цене, а на фирмах как обычно агитируют за большую сумму. поэтому и спрашиваю тут Посилання на коментар Поділитися на інших сайтах More sharing options...
Nvovan Опубліковано: 9 липня 2009 Поділитись Опубліковано: 9 липня 2009 обращались, сильно большая разница в цене, а на фирмах как обычно агитируют за большую сумму. поэтому и спрашиваю тут посомтрите насколько увеличлась цена и насколько увеличивается теплосопротивляемость. Посилання на коментар Поділитися на інших сайтах More sharing options...
Харлей Опубліковано: 9 липня 2009 Поділитись Опубліковано: 9 липня 2009 То есть нет особого смысла ставить 3х камерные. 2хкамерных будет достаточно? Здесь, как мне кажется многое будет зависить от внутреннего дизайна вашей квартиры. Посилання на коментар Поділитися на інших сайтах More sharing options...
Одарочка Опубліковано: 9 липня 2009 Поділитись Опубліковано: 9 липня 2009 Что вы имеете ввиду? Как это может быть связано с дизайном? Пока остановились на 2х камерных. Посилання на коментар Поділитися на інших сайтах More sharing options...
Харлей Опубліковано: 9 липня 2009 Поділитись Опубліковано: 9 липня 2009 Что вы имеете ввиду? Как это может быть связано с дизайном? Пока остановились на 2х камерных. Я возможно слегка некоректно выразился. Просто тройные стеклопакеты ухудшают инсоляцию света. Но при определенном дизайне помещение это может выглядеть гармонично. Посилання на коментар Поділитися на інших сайтах More sharing options...
Одарочка Опубліковано: 9 липня 2009 Поділитись Опубліковано: 9 липня 2009 Я возможно слегка некоректно выразился. Просто тройные стеклопакеты ухудшают инсоляцию света. Но при определенном дизайне помещение это может выглядеть гармонично. весьма и весьма. Тогда точно 2х камерные, т.к сторона северная-восточная и деревья перед окнами Посилання на коментар Поділитися на інших сайтах More sharing options...
Рекомендовані повідомлення
Створіть акаунт або увійдіть у нього для коментування
Ви маєте бути користувачем, щоб залишити коментар
Створити акаунт
Зареєструйтеся для отримання акаунта. Це просто!
Зареєструвати акаунтУвійти
Вже зареєстровані? Увійдіть тут.
Увійти зараз