Winder Опубліковано: 26 січня 2012 Поділитись Опубліковано: 26 січня 2012 Заливается так же как перекрытие?(со сплошной основной сеткой 100*100*5 и добавочной над балкой) Нижняя сетка должна идти по всей площади перекрытия сплошным ковром, с нахлёстом на стыках во всех направлениях, а верхняя тока вдоль балок по пролётам, не прерываясь на средней стене, тоже с нахлестом на стыках. Вдоль средней стены верхняя сетка не нужна. И еще: если несущую стенку(в центре) заменить на шлакоблок200*400*200 (марка 50) шириной 200мм достаточно ли ее для нагрузки перекрытием? Нужно считать, лучше из кирпича сделайте или из бетонных (просто бетонных, а не шлакобетонных) марки М100. 1 Посилання на коментар Поділитися на інших сайтах More sharing options...
silver8848 Опубліковано: 11 березня 2012 Поділитись Опубліковано: 11 березня 2012 Прошу прощения, можно вклиниться с небольшим вопросом? Под деревянные балки перекрытия 100*200 на кирпичные стены нужно делать монолитный пояс или можно балки опирать на кирпичную кладку (дом одноэтажный, через 700-800 мм будет монолитный пояс под мауэрлат)? Посилання на коментар Поділитися на інших сайтах More sharing options...
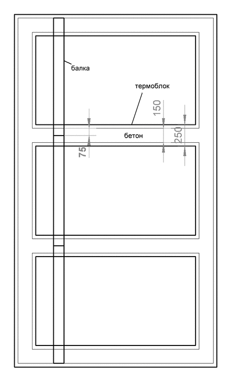
Lympo Опубліковано: 28 травня 2012 Поділитись Опубліковано: 28 травня 2012 дом, все стены из термоблока, положили балки перекрытия на средних стенах встык... тоесть опирается реально на 75мм... это есть нормальная практика? балка 150х200, между стенами 3,25м Посилання на коментар Поділитися на інших сайтах More sharing options...
Lympo Опубліковано: 30 травня 2012 Поділитись Опубліковано: 30 травня 2012 дом, все стены из термоблока, положили балки перекрытия на средних стенах встык... тоесть опирается реально на 75мм... это есть нормальная практика? балка 150х200, между стенами 3,25м сам себе отвечаю, - нет это не есть гуд... пределывают, заводят под место стыка балок куски швеллера... Посилання на коментар Поділитися на інших сайтах More sharing options...
Mentor Опубліковано: 30 травня 2012 Поділитись Опубліковано: 30 травня 2012 заводят под место стыка балок куски швеллера... Жесть...а в разбежку пустить никак нельзя? Посилання на коментар Поділитися на інших сайтах More sharing options...
avsumy Опубліковано: 7 липня 2012 Поділитись Опубліковано: 7 липня 2012 Ув форумчане, если отбросить финансово-экономический аспект вопроса, какое перекрытие лучше - монолит или плита (в частности по прочности) Посилання на коментар Поділитися на інших сайтах More sharing options...
1tsov77 Опубліковано: 8 липня 2012 Поділитись Опубліковано: 8 липня 2012 Ув форумчане, если отбросить финансово-экономический аспект вопроса, какое перекрытие лучше - монолит или плита (в частности по прочности) 100% - монолитное. 1 Посилання на коментар Поділитися на інших сайтах More sharing options...
mavriciy Опубліковано: 30 серпня 2012 Поділитись Опубліковано: 30 серпня 2012 Пасиба. Да, они самые. Буду их брать, как раз в Борисполе делают, филиал Консоли. Адресок не дадите? Посилання на коментар Поділитися на інших сайтах More sharing options...
crepko Lesya Опубліковано: 3 вересня 2012 Поділитись Опубліковано: 3 вересня 2012 Перекрытия Терива междуэтажное перекрытия, которое состоит из облегченных железобетонных балок и пустотных блоков заполнителей. Вес готово перекрытия вместе с верхним слоем бетона (3 см.) составляет 240кг на 1м2. Такой вид перекрытия - качественная альтернатива тяжелому и дорогому монолиту и стандартным, неудобным плитам перекрытия. Преимущества перекрытия Teriva: - Простой и быстрый монтаж; (без использования крана) - Превосходная адаптивность; - Высокая тепло и звукоизоляция; - Высокая адгезия штукатурки; - Легкий вес перекрытия. Цена перекрытия составляет 0т 180 грн. и выше за м2. Она вычисляется индивидуально для каждого проекта и зависит от ширины пролета. Для просчета проекта отправляйте план этажа на электронную почту belen-lesya@ya.ru что бы узнать конечную суму именно для Вашего проекта. 063 396 70 76; 044 221 87-99 Алеся Звоните, буду рада ответить на все ваши вопросы. crepko.com.ua/ru/catalog/material/perekrtieteriva/ Посилання на коментар Поділитися на інших сайтах More sharing options...
alyak Опубліковано: 3 вересня 2012 Поділитись Опубліковано: 3 вересня 2012 Цена перекрытия составляет 0т 180 грн. и выше за м2. Она вычисляется индивидуально для каждого проекта и зависит от ширины пролета. Для просчета проекта отправляйте план этажа на электронную почту belen-lesya@ya.ru что бы узнать конечную суму именно для Вашего проекта. 063 396 70 76; 044 221 87-99 Алеся Звоните, буду рада ответить на все ваши вопросы. crepko.com.ua/ru/catalog/material/perekrtieteriva/ Это же ответ !!! мы тут сидели и гадали , ждали вас , с вашим рекламным проспектом . Можно по центру поставить перестенок из кирпича высотой 3 м ???? а главное готовы ли вы сделать чудо перекрытие за 180 гривен под ключ ? Со всеми всеми расходами .... Посилання на коментар Поділитися на інших сайтах More sharing options...
crepko Lesya Опубліковано: 10 вересня 2012 Поділитись Опубліковано: 10 вересня 2012 Перестенок ставить можно в любом месте перпендикулярно балкам, а если паралельно балкам, то нужно ставить дополнительную балку. Цена 180 грн. это стартовая цена за элементы перекрытия (балки и блоки). Добавлено через 2 минуты Работа "под ключ" нашей компанией стоит 150 грн. /м2. Кроме этого, для всех наших клиентов мы предоставляем бесплатный шеф-монтаж. Посилання на коментар Поділитися на інших сайтах More sharing options...
alyak Опубліковано: 10 вересня 2012 Поділитись Опубліковано: 10 вересня 2012 Перестенок ставить можно в любом месте перпендикулярно балкам, а если паралельно балкам, то нужно ставить дополнительную балку. Цена 180 грн. это стартовая цена за элементы перекрытия (балки и блоки). Добавлено через 2 минуты Работа "под ключ" нашей компанией стоит 150 грн. /м2. Кроме этого, для всех наших клиентов мы предоставляем бесплатный шеф-монтаж. 1. подсказываю что вес такого перестенка будет более 500 кг . вы уверены ? А если нужно поставить туалет , т.е. конструкцию типа 1,5 тонны на 2 кв м ? 2. Т.е. ваша компания за 150 гривен делает под ключ 1 м2 перекрытия ? Или таки 180 грн за сам набор , гривен 100 на бетон и доп материалы , гривен 150 за вашу работу , итого равно 430 грн /м2 которое даже туалет не удержит на себе ? теперь для сравнения плиты перекрытия в пределах 250 гривен за 1 кв м и удержат и перестенки в любом направлении и туалет .... И идут в размерах до 9м ... как там с размерами ???? Почему я это затеял , не люблю наглой рекламы , хотите рекламы - есть другие разделы . Поэтому пока будет антиреклама . Дорого , непрочно , зависимо от перепланировок . И это правда . И проигрывает ВСЕМ видам перекрытия, самое убогое . Выгодное только тем кто его продает . 2 Посилання на коментар Поділитися на інших сайтах More sharing options...
wertexan Опубліковано: 11 вересня 2012 Поділитись Опубліковано: 11 вересня 2012 1. подсказываю что вес такого перестенка будет более 500 кг . вы уверены ? А если нужно поставить туалет , т.е. конструкцию типа 1,5 тонны на 2 кв м ? Собственную жёсткость перегородки вы пробовали учесть? А что это за туалет такой в 1,5тонны? Я не защищаю терриву. Отнюдь. Я за полноценное перекрытие из пустотных плит. Или монолитное плоское. Или монолитное балочное с заполнением из легких блоков. Рассчетное. Или монолитное кесонное. Посилання на коментар Поділитися на інших сайтах More sharing options...
alyak Опубліковано: 11 вересня 2012 Поділитись Опубліковано: 11 вересня 2012 Собственную жёсткость перегородки вы пробовали учесть? А что это за туалет такой в 1,5тонны? Я не защищаю терриву. Отнюдь. Я за полноценное перекрытие из пустотных плит. Или монолитное плоское. Или монолитное балочное с заполнением из легких блоков. Рассчетное. Или монолитное кесонное. А ты сам прикинь если у него 3 стены 1м + 1м + 1м и на вес стены , и 1* 1 будет маловат вообще-то . И нужно брать внешние размеры . Там еще 1,5 тонны мало будет . А насчет собственной жескости , если стену поставить поперек да по центру , просто проломит терриву по весу . Там у них есть усиленная , но веры в нее мало . Посилання на коментар Поділитися на інших сайтах More sharing options...
crepko Lesya Опубліковано: 18 вересня 2012 Поділитись Опубліковано: 18 вересня 2012 1. подсказываю что вес такого перестенка будет более 500 кг . вы уверены ? А если нужно поставить туалет , т.е. конструкцию типа 1,5 тонны на 2 кв м ? 2. Т.е. ваша компания за 150 гривен делает под ключ 1 м2 перекрытия ? Или таки 180 грн за сам набор , гривен 100 на бетон и доп материалы , гривен 150 за вашу работу , итого равно 430 грн /м2 которое даже туалет не удержит на себе ? теперь для сравнения плиты перекрытия в пределах 250 гривен за 1 кв м и удержат и перестенки в любом направлении и туалет .... И идут в размерах до 9м ... как там с размерами ???? Почему я это затеял , не люблю наглой рекламы , хотите рекламы - есть другие разделы . Поэтому пока будет антиреклама . Дорого , непрочно , зависимо от перепланировок . И это правда . И проигрывает ВСЕМ видам перекрытия, самое убогое . Выгодное только тем кто его продает . Вижу, что Вам очень тяжело думать, поэтому объясню еще раз: На 1м2 перекрытие Терива выдерживает 500 кг полезной нагрузки (это без усилений, при необходимости полезная нагрузка может увеличиться в разы за счет дополнительного армирования и доп. балок); Перестенок - если ставите паралельно балкам - нужно добавить дополнительную балку, и перестенок ставить сверху двух идущих вместе балок. Если перестенок перпендикулярно балкам - укреплений не требуется. Сказать честно - унитазов, весом в 1,5 тонн видеть не доводилось, но если предположить, что Вы имеете ввиду весь комплект (унитаз, джакузи, биде и т.п.), то на этом участке мы рекомендуем в зависимости от нагрузок положить двойные балки и уложить армирующую сетку сверху. Еще раз повторяю: стоимость материала - от 180грн./м2, стоимость монтажных работ под ключ - 150 грн./м2, шеф монтаж - бесплатно, дополнительные материалы (бетон и арматура) - приблизительно 60 грн./м2. Надеюсь, сейчас все понятно? Кстати, по плитам перекрытия Вы стяжку выравнивающую лить не собираетесь?))) Териву делаем длиной до 9,12м. Плиты мы тоже продаем, просто удивляет Ваша позиция. В каждом материале есть плюсы и минусы, в зависимости от конфигурации проекта, мы предлагаем своим Клиентам плиты или Териву. Не впариваем, а даем наиболее эффективное решение. Последнее: Вы говорите - дорого. Считайте: Терива теплая, с хорошей звукоизоляцией, ровная, дает сразу готовый черный пол. Что не скажешь про плиты, которые нужно выравнивать стяжкой, утеплять и т.п. Посчитайте все это!!!! И будьте вежливее, это форум, а не шабаш! Посилання на коментар Поділитися на інших сайтах More sharing options...
alyak Опубліковано: 18 вересня 2012 Поділитись Опубліковано: 18 вересня 2012 Вижу, что Вам очень тяжело думать, поэтому объясню еще раз: На 1м2 перекрытие Терива выдерживает 500 кг полезной нагрузки (это без усилений, при необходимости полезная нагрузка может увеличиться в разы за счет дополнительного армирования и доп. балок); оригинальная террива - 400 кг / м2 . Но даже с 500 кг/м2 перестенок посталенный по центру плиты уже вызывает сомнение - что будет если там кто-то еще поставит и диван со стенкой да сложит туда все книжки. Перестенок - если ставите паралельно балкам - нужно добавить дополнительную балку, и перестенок ставить сверху двух идущих вместе балок. Если перестенок перпендикулярно балкам - укреплений не требуется. Сказать честно - унитазов, весом в 1,5 тонн видеть не доводилось, но если предположить, что Вы имеете ввиду весь комплект (унитаз, джакузи, биде и т.п.), то на этом участке мы рекомендуем в зависимости от нагрузок положить двойные балки и уложить армирующую сетку сверху. чукча не читатель чукча писатель . туалет состоит из 3х кирпичных стен . даже если это 1м то это 1,5 тонны .... ( а 1*1 внешний размер - смешно мало ) . Или у вас туалет типа от чукчей - две палочки чтоб животных отгонять . Еще раз повторяю: стоимость материала - от 180грн./м2, стоимость монтажных работ под ключ - 150 грн./м2, шеф монтаж - бесплатно, дополнительные материалы (бетон и арматура) - приблизительно 60 грн./м2. вот так и пишите - стоимость перекрытия - 390 грн /м2 а не 180 . При том я так понимаю - все дополнительное оборудование у вас свое - и подпорки , и то чем вы собрались готовить и подавать бетон включая тачки и рабочие рукавицы. Териву делаем длиной до 9,12м. Плиты мы тоже продаем, просто удивляет Ваша позиция. В каждом материале есть плюсы и минусы, в зависимости от конфигурации проекта, мы предлагаем своим Клиентам плиты или Териву. Не впариваем, а даем наиболее эффективное решение. вот когда уже предложить неченго - предлагают терриву . Последнее: Вы говорите - дорого. Считайте: Терива теплая, с хорошей звукоизоляцией, ровная, дает сразу готовый черный пол. Что не скажешь про плиты, которые нужно выравнивать стяжкой, утеплять и т.п. Посчитайте все это!!!! И будьте вежливее, это форум, а не шабаш! Подождите , а кому нужно ваше утепление для межэтажных перекрытий ??? Оставьте его себе . Плиты выравнивать нужно , как правило . Но блин туалет же на терриву не поставишь и каждая реконструкция будет ставить в тупик . Нужно ж было 10 лет назад знать куда перестенки ставить . И вы правы форум не шабаш , на форуме есть правила , и одно из них гласит - реклама в отведенных для этого местах . Посилання на коментар Поділитися на інших сайтах More sharing options...
Mentor Опубліковано: 18 вересня 2012 Поділитись Опубліковано: 18 вересня 2012 На 1м2 перекрытие Терива выдерживает 500 кг полезной нагрузки При какой длине пролета?..... Сказать честно - унитазов, весом в 1,5 тонн видеть не доводилось Человек имел ввиду вес всего санузла с перестенками и техникой.... стоимость материала - от 180грн./м2, стоимость монтажных работ под ключ - 150 грн./м2, шеф монтаж - бесплатно, дополнительные материалы (бетон и арматура) - приблизительно 60 грн./м2. Итого, вчистую - 390 грн. Округлим до 400 (тем боле , что доп. затраты будут явно больше 60 грн....) О какой конкуренции ПК или ПБ может идти речь, если их стоимость - до 200 грн/м2 максимум...(говорим о "стандартном" пролете в 6м) Кстати, по плитам перекрытия Вы стяжку выравнивающую лить не собираетесь? Зависит от пирога пола. Можна и не лить. Поверхность современных ПК практически идеальная, а даже если и лить, то что? По терриве не нужно? Ведь: Терива ....дает сразу готовый черный пол Дальше: Терива теплая Ой, вы не забыли где это пишите? тут ведь инженеры попадаются, теплотехники, вентилянционщики....а вы о какой-то "теплой" терриве говорите... с хорошей звукоизоляцией Никакой такой улучшеной звукоизоляцией, по отношению к ПК она не обладает. Что не скажешь про плиты, которые нужно выравнивать стяжкой, утеплять Зачем утеплять межэтажное перекрытие - для меня загадко. Если же говорим о б утеплении чердачного перекрытия, то терриву утеплять нужно точно так же.... Посчитайте все это Хороший совет, только не в пользу Терривы. Да...и еще...ПК монтируется (на средний дом в 100м2) за час-два, а Террива?....(выставить опалубку, подпорки, смонтировать блоки, связать армокаркас, заказать бетон, бетононасос, залить, выждать 2 недели....) Вот как-то ТАК... Посилання на коментар Поділитися на інших сайтах More sharing options...
alyak Опубліковано: 18 вересня 2012 Поділитись Опубліковано: 18 вересня 2012 специально посчитал вес своего туалета который стоит на плитах , получилось 1800 кг . это три стены и кирпич проема при высоте 2,85 . без унитаза вес которого ничтожен . Посилання на коментар Поділитися на інших сайтах More sharing options...
ЕКОДОМ Опубліковано: 14 листопада 2012 Поділитись Опубліковано: 14 листопада 2012 (змінено) Здравствуйте дамы и господа, товагрищи, братия и сеэстры Добрый день!!!У меня знакомая недели 3 назад поставила териву (с.Гореничи Киево-Святошинский р-н).Очень довольна,ребята сделали под ключ.Вопросов небыло вообще.Правда сроки были 2 недели.Если Вас заинтиресуют подробности-пишите,найду контакты компании,у которой она заказывала. Змінено 13 грудня 2012 користувачем Валерий Валентинович 13 Посилання на коментар Поділитися на інших сайтах More sharing options...
Игореха Опубліковано: 14 листопада 2012 Поділитись Опубліковано: 14 листопада 2012 Добрый день!!!У меня знакомая недели 3 назад поставила териву (с.Гореничи Киево-Святошинский р-н).Очень довольна,ребята сделали под ключ.Вопросов небыло вообще.Правда сроки были 2 недели. Осмелюсь сделать предположение, что есди бы она смонтировала ПК, то была бы не менее довольна, особенно учитывая финальную цену, и сроки в полдня работы (с анкеровкой и зачеканиванием) Скорее всего и вопросов бы не было тоже 1 Посилання на коментар Поділитися на інших сайтах More sharing options...
majordon Опубліковано: 19 листопада 2012 Автор Поділитись Опубліковано: 19 листопада 2012 ЕКОДОМ, спасибо, выбрал монолит что б уже на века Посилання на коментар Поділитися на інших сайтах More sharing options...
mavriciy Опубліковано: 25 листопада 2012 Поділитись Опубліковано: 25 листопада 2012 Панелі перекриття екструдерні Переваги плит перекриття виготовлених по екструдерній технології: 1. Висока якість лицьової поверхні плити; 2. Економія коштів при проведенні декоративних та оздоблювальних робіт; 3. Точні геометричні розміри, високі міцнісні характеристики; 4. Продукція має сертефікат на вогнестійкість; 5. Продуція відповідає стандарту Євро-2. Производитель Ковальская beton.kovalska.com/ru/catalogs/31/ Панелі перекриття залізобетонні багатопустотні за технологією Elematic Призначені для застосування у житлових, громадських та промислових будівлях І ступеня вогнестійкості у неагресивному та слабоагресивному середовищі з несучими стінами з каменя або крупних блоків, а також каркасних будівлях. Приклад умовного позначення:www.hzb.com.ua/catalogue/8-%D0%9F%D0%B0%D0%BD%D0%B5%D0%BB%D1%96-%D0%BF%D0%B5%D1%80%D0%B5%D0%BA%D1%80%D0%B8%D1%82%D1%82%D1%8F-%D0%B7%D0%B0%D0%BB%D1%96%D0%B7%D0%BE%D0%B1%D0%B5%D1%82%D0%BE%D0%BD%D0%BD%D1%96-%D0%B1%D0%B0%D0%B3%D0%B0%D1%82%D0%BE%D0%BF%D1%83%D1%81%D1%82%D0%BE%D1%82%D0%BD%D1%96-%D0%B7%D0%B0-%D1%82%D0%B5%D1%85%D0%BD%D0%BE%D0%BB%D0%BE%D0%B3%D1%96%D1%94%D1%8E-Elematic/show_model/ ПБ – плита залізобетонна багатопустотна з круглими пустотами ; 60 – плита довжиною 5980 мм.; 12 – плита шириною 1200 мм.; 8 – під навантаження — 7,85 МПа (800кгс/кв.см.); 12К7 —армування нижньої зони плити попередньонапруженими канатами класу К7 діаметром 12 мм.; 9К7 — армування верхньої зони плити попередньонапруженими канатами класу К7 діаметром 9 мм.; Є можливість виготовлення плит будь-якої довжини в межах 2380-8980 мм. Производитель www.hzb.com.ua/ ТДВ «Хмельницькзалізобетон» есть представитель в Киеве Ну и далее самое мне интересное Многопустотные плиты перекрытий ПНО пониженной высотности - 160 мм - применяют для устройства сборных перекрытий коттеджей и других зданий в индивидуальном частном строительстве. Плиты перекрытий ПНО облегчённые предназначены для устройства перекрытий зданий и сооружений с ограничением по высотности (до 3-х этажей). ПНО4-63-12 1,650т. цена: 1396 грн/шт. ПНО4-60-12 1,600т. цена: 1330 грн/шт. ПНО4-57-12 1,550т. цена: 1267 грн/т. ПНО4-54-12 1,500т. цена:1205 грн/шт. ПНО4-51-12 1,450т. цена: 1144 грн/шт. ПНО4-48-12 1,400т. цена: 1082 грн/шт. ПНО4-42-12 1,350т. цена: 960 грн/шт. ПНО4-36-12 1,300т. цена: 836 грн/шт. ПНО4-30-12 1,250т. цена: 715 грн/шт. Производителя не нашел только дилер Компания «Укржелезобетон, ООО», Киев. Вопрос, кто их производит???КТО ЗНАЕТ??? Ну и далее террива (ссылка устарела) (ссылка устарела) Teriva - cборно-монолитные перекрытия Главная - БИК - Бетонные Изделия Коростеня По ценам не скажу.Вот сижу и не знаю что запроектировать???? p.s. И не забываем про вкладыши.... Посилання на коментар Поділитися на інших сайтах More sharing options...
ЕКОДОМ Опубліковано: 5 грудня 2012 Поділитись Опубліковано: 5 грудня 2012 спасибо, выбрал монолит что б уже на века Что на века-то на века)))Желаю хорошего окончания работ!))) Посилання на коментар Поділитися на інших сайтах More sharing options...
majordon Опубліковано: 10 грудня 2012 Автор Поділитись Опубліковано: 10 грудня 2012 Большое спасибо! Посилання на коментар Поділитися на інших сайтах More sharing options...
Рекомендовані повідомлення
Створіть акаунт або увійдіть у нього для коментування
Ви маєте бути користувачем, щоб залишити коментар
Створити акаунт
Зареєструйтеся для отримання акаунта. Це просто!
Зареєструвати акаунтУвійти
Вже зареєстровані? Увійдіть тут.
Увійти зараз