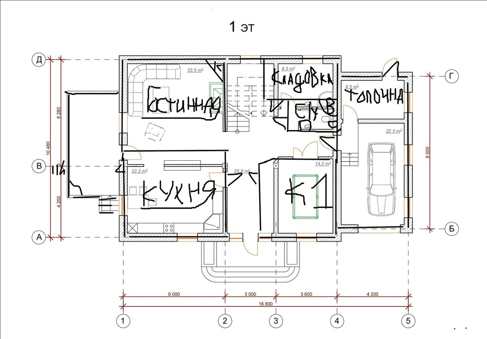
nasa Опубліковано: 20 листопада 2011 Поділитись Опубліковано: 20 листопада 2011 Здравствуйте! Прошу свежего взгляда на наш проект проекта, перерисовала как смогла) Участок 20х30, угловой, вход в дом планируется с запада, на участке предвидится еще баня и больше никаких построек, т.е. "беседка для летних посиделок" - выход из кухни, терраса над ней на втором этаже - для зимы. Выхода из котельной на улицу нету. Спасибо! Посилання на коментар Поділитися на інших сайтах More sharing options...
Artyomovets Опубліковано: 20 листопада 2011 Поділитись Опубліковано: 20 листопада 2011 если на первом этаже - это действительно бильярдная, то вы, видимо не играли на бильярде... Посилання на коментар Поділитися на інших сайтах More sharing options...
nasa Опубліковано: 20 листопада 2011 Автор Поділитись Опубліковано: 20 листопада 2011 Нет - не бильярдная, а комната 1 - предназначение которой будет понятно в будущем ( комната для родителей, гостей или игровая для детей) Посилання на коментар Поділитися на інших сайтах More sharing options...
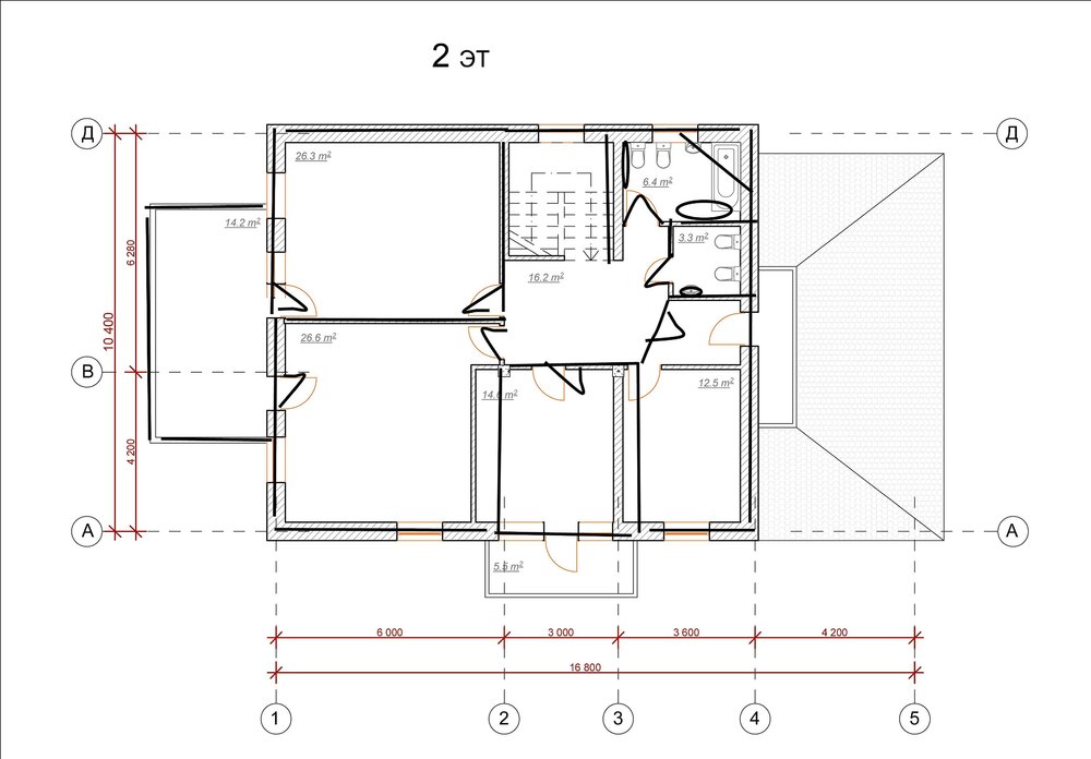
Archist Опубліковано: 20 листопада 2011 Поділитись Опубліковано: 20 листопада 2011 Во-первых: те толстенькие стены, которые вы так лихо посдвигали, судя по всему несущие и поэтому должны совпадать на 1 и на 2 этаже. Во-вторых, минусы планировки: - нет тамбура; - в прихожей нет места под шкаф для одежды; - площади спален слегка завышены, ИМХО; - нет гардеробной комнаты, а в спальнях нет ниш под шкафы; - зачем два с/у рядом, в каждом из которых унитаз и биде?; - две террасы на северной стороне - для любителей экстрима (особенно понравилось пояснение "для зимы") Вообще планировка напоминает не загородный дом, а большую и бестолковую квартиру . 2 Посилання на коментар Поділитися на інших сайтах More sharing options...
Рекомендовані повідомлення
Створіть акаунт або увійдіть у нього для коментування
Ви маєте бути користувачем, щоб залишити коментар
Створити акаунт
Зареєструйтеся для отримання акаунта. Це просто!
Зареєструвати акаунтУвійти
Вже зареєстровані? Увійдіть тут.
Увійти зараз