Tyxa Опубліковано: 24 грудня 2011 Поділитись Опубліковано: 24 грудня 2011 (змінено) Я б на насос (скорей всего) диф бы не ставил. Свет через реле не пускал бы (или хотя бы выделил какую то линию без реле -коридоры 1й и 2й этаж или типа того), и второй этаж рахделил бы на две группы.( что б в темноте на первый не идти если выбъет) Вообще обычно на 2м этаже свой щиток вешаем. По дифам обычно кухня 40А 0.03 - под ним Плита, 2 линии розеток, посудомойка. С\У 25А(40А) 0.01 - под ним Ст.машина, бойлер, розетки, освещение. Общий 50А 0.3 По комнатам как угодно Линии котла лутше через ибп без реле. Змінено 25 грудня 2011 користувачем Tyxa 1 Посилання на коментар Поділитися на інших сайтах More sharing options...
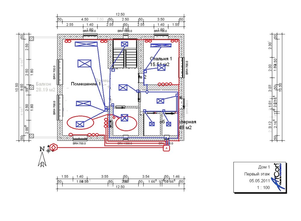
Plotnikovvv Опубліковано: 28 грудня 2011 Автор Поділитись Опубліковано: 28 грудня 2011 Переделал еще разок... я думаю так уже будет нормально... Посилання на коментар Поділитися на інших сайтах More sharing options...
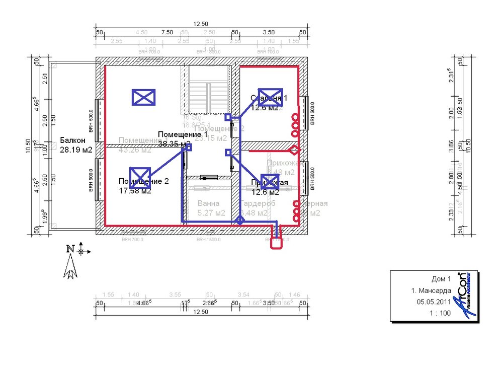
Plotnikovvv Опубліковано: 24 лютого 2012 Автор Поділитись Опубліковано: 24 лютого 2012 Развел проводку... вот что получилось... фото с телефона... Посилання на коментар Поділитися на інших сайтах More sharing options...
karapuz74 Опубліковано: 24 лютого 2012 Поділитись Опубліковано: 24 лютого 2012 На последней картинке розетки транзитом вроде подключены? А может провод ввести прям в коробки розеток? и не будет сверху распредкоробки.... Посилання на коментар Поділитися на інших сайтах More sharing options...
Plotnikovvv Опубліковано: 24 лютого 2012 Автор Поділитись Опубліковано: 24 лютого 2012 На последней картинке розетки транзитом вроде подключены? А может провод ввести прям в коробки розеток? и не будет сверху распредкоробки.... Можно и так... 1 но с коробок легче взять фазу и ноль...(ненадо ничего разбирать), 2 Меньше провода и гофры уходит... Посилання на коментар Поділитися на інших сайтах More sharing options...
Рекомендовані повідомлення
Створіть акаунт або увійдіть у нього для коментування
Ви маєте бути користувачем, щоб залишити коментар
Створити акаунт
Зареєструйтеся для отримання акаунта. Це просто!
Зареєструвати акаунтУвійти
Вже зареєстровані? Увійдіть тут.
Увійти зараз