sashkaa Опубліковано: 4 квітня 2015 Поділитись Опубліковано: 4 квітня 2015 Можно 2-й вариант, ничего страшного в этом нет. Но, если гильза на отметке -1300, то на какой отметке будет вход в септик, прикидывали? -1,300 это от чистого пола от земли на 300-400 меньше участок имеет уклон в сторону септика тут все в порядке будет. Вход в септик будет -0,8 -- -1,0м от земли, еще утеплять придется, эт если по нормам Посилання на коментар Поділитися на інших сайтах More sharing options...
naupv Опубліковано: 5 квітня 2015 Поділитись Опубліковано: 5 квітня 2015 еще утеплять придется, эт если по нормам Зачем7 В правильно смонтированной трубе, никогда вода не задерживается, ее попросту нет. Посилання на коментар Поділитися на інших сайтах More sharing options...
sashkaa Опубліковано: 5 квітня 2015 Поділитись Опубліковано: 5 квітня 2015 да знаю, потому и дописал если по нормам. Понятно что не буду Посилання на коментар Поділитися на інших сайтах More sharing options...
Polll Опубліковано: 6 квітня 2015 Поділитись Опубліковано: 6 квітня 2015 Усім вітання. Який прохід стіни на зовні є кращим? (вигляд зверху) Окрім того, вхід у вертикальний стояк треба робити двома колінам по 45° чи можна під 90°? Посилання на коментар Поділитися на інших сайтах More sharing options...
otark Опубліковано: 6 квітня 2015 Поділитись Опубліковано: 6 квітня 2015 Зачем7 В правильно смонтированной трубе, никогда вода не задерживается, ее попросту нет. Да ну как это ее там нет? Вы в автомобиле зимой ездите? Какой уклон у лобового стекла?Если его не обогревать и идет дождь в -1,2,3гр.Через час там будут наросты в 1-2см.Ну не все время в канализацию по 10л и более сливается залпом. Если труба зарыта на 1м это одно,а если на 0,2 это другое.Теплопроводность грунта в р-не 1, пенопласта 0,04 т.е. 5см пенопласта =1м грунта. Посилання на коментар Поділитися на інших сайтах More sharing options...
Владимир В. Опубліковано: 7 квітня 2015 Поділитись Опубліковано: 7 квітня 2015 Если труба зарыта на 1м это одно,а если на 0,2 это другое.... Та невже ... ?! У меня 0,2 (выход их дома и транзитных колодцев), но за пол века "другого" не видел ... ! 1 Посилання на коментар Поділитися на інших сайтах More sharing options...
otark Опубліковано: 7 квітня 2015 Поділитись Опубліковано: 7 квітня 2015 Та невже ... ?! У меня 0,2 (выход их дома и транзитных колодцев), но за пол века "другого" не видел ... ! А можно подробней? На 0,2 судя по годам зарыта чугунная труба и никаких проблем за все время не было?А куда сброс в септик или в городскую?Длинна ветки? Посилання на коментар Поділитися на інших сайтах More sharing options...
naupv Опубліковано: 7 квітня 2015 Поділитись Опубліковано: 7 квітня 2015 Да ну как это ее там нет? Вот таким как вы и нужно утеплять Добавлено через 50 минут Окрім того, вхід у вертикальний стояк треба робити двома колінам по 45° чи можна під 90°? Вариант 2 45+45 1 Посилання на коментар Поділитися на інших сайтах More sharing options...
otark Опубліковано: 7 квітня 2015 Поділитись Опубліковано: 7 квітня 2015 Вот таким как вы и нужно утеплять А какие нибудь аргументы кроме собственного мнения есть?Просто не понятно если обоснованно можно хоть по грунту, то нафига все перепечатывают друг у друга, что не выше 0,5м? Посилання на коментар Поділитися на інших сайтах More sharing options...
naupv Опубліковано: 7 квітня 2015 Поділитись Опубліковано: 7 квітня 2015 кроме собственного мнения есть? Да не только мнение, но и богатая практика. Конечно выше 40-ка не закладывали, но по наружке один раз делали. Только по наружке после нас немцы греющий кабель крепили. 1 Посилання на коментар Поділитися на інших сайтах More sharing options...
пух Опубліковано: 14 квітня 2015 Поділитись Опубліковано: 14 квітня 2015 Уважаемые профессионалы. Помогите в правильности создания септика. В части проезда к дому, это наш участок можно ли ставить такую конструкцию как на рисунке. Кольца диаметром 1 метр. Выход воздуха загазованного будет в фундаменте забора пластиковой сантех трубой. Длина и углы поворота соответствуют ли нормам. Спасибо.Отсканировано 14.04.2015 12-46.pdf Посилання на коментар Поділитися на інших сайтах More sharing options...
naupv Опубліковано: 14 квітня 2015 Поділитись Опубліковано: 14 квітня 2015 Конечно можно так сделать, ведь вы ездите по улицам городов, там тоже море колодцев и машины 30-ти тонные ездят. Желательно иметь фановую трубу. 1 Посилання на коментар Поділитися на інших сайтах More sharing options...
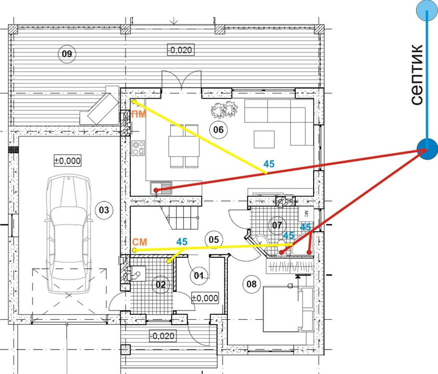
vadimka.litvinov Опубліковано: 31 березня 2016 Поділитись Опубліковано: 31 березня 2016 Товарищи, покритикуйте схему разводки канализации, плз. Стиралка под лестницей (СМ), на кухне - посудомоечная машина (ПМ), в котельной - слив на всякий случай. Красные лини - 100 мм, желтые - 50 мм. Забыл умывальник в ванной - ну то подключится также под 45 градусов к ближайшему каналу 50 мм. Мне кажется удачной схема с двумя входами в септик - вероятность засорения каналов вдвое ниже И второй вопрос: на мансардном этаже еще один санузел - точно над первым. Где лучше проложить стояк? Додумался до того, что может быть стену (примыкающую к унитазу и душевой) выложить в кирпич, а не полкирпича, и туда запрятать стояк... но идея скорее вынужденная, чем нравящяяся Несущую газобетонную стену тоже не очень хочется штробить под стояк - она с фундамента свисает на 7-8 см, + штроба с несвисающей стороны, итого стена чуть ли не разрезается стояком по вертикали. В общем, где бы стояк поставить? И третий вопрос: под фановую трубу, так уж вышло, я в крыше отверстий не предусмотрел. Делать сомнительную концовку с клапанами, или же сверлить весь пирог кровли (у меня битумка)? Всем заранее спасибо за советы Посилання на коментар Поділитися на інших сайтах More sharing options...
Рекомендовані повідомлення
Створіть акаунт або увійдіть у нього для коментування
Ви маєте бути користувачем, щоб залишити коментар
Створити акаунт
Зареєструйтеся для отримання акаунта. Це просто!
Зареєструвати акаунтУвійти
Вже зареєстровані? Увійдіть тут.
Увійти зараз