Natali1962 Опубліковано: 24 грудня 2011 Поділитись Опубліковано: 24 грудня 2011 Нужно сделать выбор плитки для пола : гостинная + кухня = одно помещение , общая площадь примерно 37 кв. метров. В помещении есть эркер и пять огромных окна, большая террасная дверь. Вопрос к знающим : стоит ли такую маленькую площадь " делить" разной плиткой на зоны? Для этого наверное нужно четко знать будущую границу ? Или весь пол сделать одинаковым? Может эркер как - то выделить? Был бы прямоугольник - меньше проблем! А тут еще декорчик хочется для затравки!! Какой размер плитки будет выиграшней смотреться?? Не отправляйте в гугл! Я со своим интернетом и отсутствием свободного времени туда не ходок!!! :D И подсмотреть не у кого! А так хочется с изюминкой!!!! пАмогите!!! Люди добрыЯ !! Посилання на коментар Поділитися на інших сайтах More sharing options...
S-STUDIO Опубліковано: 24 грудня 2011 Поділитись Опубліковано: 24 грудня 2011 планчик помещения Посилання на коментар Поділитися на інших сайтах More sharing options...
Natali1962 Опубліковано: 26 грудня 2011 Автор Поділитись Опубліковано: 26 грудня 2011 Увы, я не умею " рисовать" тутечки! Извините.Чайник во всем чайник. Если словами опишу смеяться наверное будут все??!!!:D А вдруг Вы меня поймете. Комната ввиде прямоугольника. В верхнем левом углу ( меньшая сторона прямоугольника ) расположен полукруглый эркер из пяти окон. В правом верхнем углу будет кухня Г - образная. А нижняя часть прямоугольника будет под комнату . Из мебели - минимум : кухня. столик по центру эркера из стекла, а комната - небольшой диван, камин, плазма. И цветы.:) Все. Мне , например, нравится вот такая плитка, вернее ее декор. Спасибо!! Посилання на коментар Поділитися на інших сайтах More sharing options...
DVIJOK Опубліковано: 27 грудня 2011 Поділитись Опубліковано: 27 грудня 2011 Возьмите карандаш и нарисуйте на листике в клеточку. Даже ребенок сможет. Или закажите у специалиста. Заплатите мизер, но не будет головной боли. 1 Посилання на коментар Поділитися на інших сайтах More sharing options...
tamasay Опубліковано: 27 грудня 2011 Поділитись Опубліковано: 27 грудня 2011 Нужно сделать выбор плитки для пола : гостинная + кухня = одно помещение , общая площадь примерно 37 кв. метров. В помещении есть эркер и пять огромных окна, большая террасная дверь. Вопрос к знающим : стоит ли такую маленькую площадь " делить" разной плиткой на зоны? Для этого наверное нужно четко знать будущую границу ? Или весь пол сделать одинаковым? Может эркер как - то выделить? Был бы прямоугольник - меньше проблем! А тут еще декорчик хочется для затравки!! Какой размер плитки будет выиграшней смотреться?? Не отправляйте в гугл! Я со своим интернетом и отсутствием свободного времени туда не ходок!!! :D И подсмотреть не у кого! А так хочется с изюминкой!!!! пАмогите!!! Люди добрыЯ !! Можно типа такого варианта (похожая ситуация гостиная +холл). Плитка одинаковая, выделили только зону камина и в холле тоже декор. plitka.ua/catalogs/52/2874/ очень по качеству хорошая плитка plitka.ua/catalogs/52/2873/ plitka.ua/catalogs/65/2596/ plitka.ua/catalogs/52/2603/ plitka.ua/catalogs/52/2873/ Посилання на коментар Поділитися на інших сайтах More sharing options...
D@redevil Опубліковано: 27 грудня 2011 Поділитись Опубліковано: 27 грудня 2011 Я не дизайнер, но поделюсь собственным опытом решения подобной задачи. Все сказанное ИМХО и не претендует на вершину дазаГнерской мысли Все одинаковой плиткой В гостинной теплый пол, ну или ковер, тк плитка все-таки холодная Размер плитки выбираю исходя из размеров помещения, т.е. таким образом, чтоб плитка смотрелась хорошо, а не была сплошная лапша нарезанная(так же и способ укладки выбираю: прямой, на угол и тд). Если еще более упростить, то маленьким помещениям-плитка небольшого формата (например,30*30 или 30*60) и наоборот. Чтобы посоветовать нечто конкретное,нужно иметь представление об общей стилистике дома. Если хочется декор, то пусть это будут небольшие вставки "фризы"("лапша" или "квадратики") или играть с сочетанием разных цветов плитки одной и той же коллекции, тк "панно" в маленьком помещении визуально еще сильнее его уменьшит и потеряется среди мебели и тд Надеюсь мой практический опыт чем-то будет Вам полезен Посилання на коментар Поділитися на інших сайтах More sharing options...
Ирис Опубліковано: 27 грудня 2011 Поділитись Опубліковано: 27 грудня 2011 Согласна 100%, помещение небольшое ,лучше делать одинаковой плиткой ,декор на полу это проблематично в плане расстановки мебели, если тем более нет точных ее размеров. Представьте себе, что часть вашего декора спрячется под диваном или будет выглядывать из-под стола. Если декор , то равномерно распределенный по всей площади пола. Посилання на коментар Поділитися на інших сайтах More sharing options...
Hopira Опубліковано: 27 грудня 2011 Поділитись Опубліковано: 27 грудня 2011 Постою послушаю... У меня таже ситуация, 1 в 1. Только общая площадь побольше...Плиз, фото разных побольше можно? Наглядность она ведь гораздо эффективнее;) Посилання на коментар Поділитися на інших сайтах More sharing options...
S-STUDIO Опубліковано: 27 грудня 2011 Поділитись Опубліковано: 27 грудня 2011 Вам раскладка нужна,а не подсказка Посилання на коментар Поділитися на інших сайтах More sharing options...
Natali1962 Опубліковано: 27 грудня 2011 Автор Поділитись Опубліковано: 27 грудня 2011 Ребята, спасибо за подсказки! Мне, например, раскладка не нужна, а нужна подсказка! Я сама склоняюсь к одинаковой плитке во всем помещении. И правда ,потом вылезет " бок". Ведь общей концепции у меня , увы , нет! Все очень простенько, без наворотов делаю. Я ведь дома практически не бываю! Только ночую!! В буквальном смысле: приползаю ночью , а утром пораньше уже на работу лечу! Мечтаю просто отоспаться!!:D Это так , ремарка. Просто захотелось " изюминки" - разделить на зоны. Теперь вижу что не нужно городить огород. Нужно брать плитку размером побольше , глянцевую, без рисунка, а декор уже по периметру разместить. Правильно? Посилання на коментар Поділитися на інших сайтах More sharing options...
valya_bes Опубліковано: 27 грудня 2011 Поділитись Опубліковано: 27 грудня 2011 Нужно брать плитку размером побольше , глянцевую, без рисунка, а декор уже по периметру разместить. Правильно? Как вариант, можно выделить каминную зону, другой цвет или раскладка. Какой смысл в декоре по периметру, если Вы мебелью заставите. Прежде чем покупать изюминку - посчитайте, во что все это может вылиться. Посилання на коментар Поділитися на інших сайтах More sharing options...
Natali1962 Опубліковано: 27 грудня 2011 Автор Поділитись Опубліковано: 27 грудня 2011 Уже второй день не могу со свом интернетом загрузить фото плитки которая мне понравилась. Там декор из 4 плиток можно разместить по центру комнаты . Посилання на коментар Поділитися на інших сайтах More sharing options...
Natali1962 Опубліковано: 27 грудня 2011 Автор Поділитись Опубліковано: 27 грудня 2011 Я прекрасно понимаю во сколько это обойдется ( декор) , но без него не так красиво!!. С ним уже и изюминка есть!:D Посилання на коментар Поділитися на інших сайтах More sharing options...
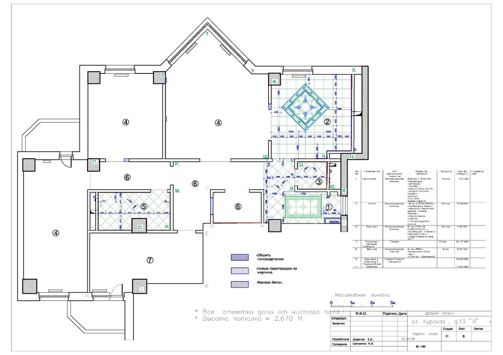
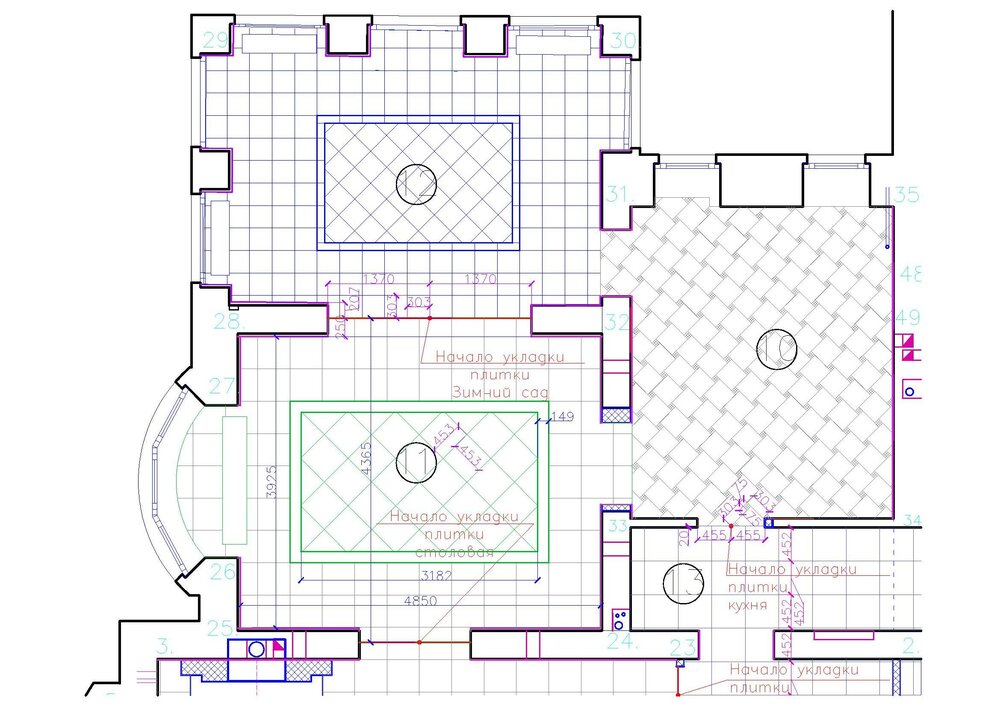
S-STUDIO Опубліковано: 28 грудня 2011 Поділитись Опубліковано: 28 грудня 2011 (змінено) Как дизайнеры подбирают плитку на свои объекты: 1) обмеряют помещение 2)расставляют в плане ВЫБРАННУЮ мебель 3)раскладывают конкретную (подходящую по дизайну и цене) плитку 4) указывают подрезки и НАЧАЛО УКЛАДКИ плитки, самая просматриваемая стена должна начинаться с ЦЕЛОЙ плитки. 5) подсчитывают необходимое количество плитки с запасами (составляется специальная таблица) Бывает, что плитка НЕ ПОДХОДИТ по формату для данного помещения, потому что идет много подрезок и некрасивых моментов. Стыковка разных покрытий разных помещений производится СОГЛАСНО УКАЗАНИЯМ ПРОИЗВОДИТЕЛЯ ДВЕРЕЙ(согласно их чертежу разреза ...), чтобы стык полов проходил точно под дверным полотном Плитка должна идеально вписаться в общую картину и "дружить" с полами соседних помещений по стилю и цвету. Декоры, "коврики" и розетки центруются по общепринятым правилам. В приложениях примеры раскладок плитки в жилых помещениях и табличка по плитке.КАРТА ПОЛА, 1_ ЭТАЖ.doc Змінено 28 грудня 2011 користувачем S-STUDIO 5 Посилання на коментар Поділитися на інших сайтах More sharing options...
D@redevil Опубліковано: 28 грудня 2011 Поділитись Опубліковано: 28 грудня 2011 Как дизайнеры подбирают плитку на свои объекты: 1) обмеряют помещение 2)расставляют в плане ВЫБРАННУЮ мебель 3)раскладывают конкретную (подходящую по дизайну и цене) плитку 4) указывают подрезки и НАЧАЛО УКЛАДКИ плитки, самая просматриваемая стена должна начинаться с ЦЕЛОЙ плитки. 5) подсчитывают необходимое количество плитки с запасами (составляется специальная таблица) Бывает, что плитка НЕ ПОДХОДИТ по формату для данного помещения, потому что идет много подрезок и некрасивых моментов. Стыковка разных покрытий разных помещений производится СОГЛАСНО УКАЗАНИЯМ ПРОИЗВОДИТЕЛЯ ДВЕРЕЙ(согласно их чертежу разреза ...), чтобы стык полов проходил точно под дверным полотном Плитка должна идеально вписаться в общую картину и "дружить" с полами соседних помещений по стилю и цвету. Декоры, "коврики" и розетки центруются по общепринятым правилам. В приложениях примеры раскладок плитки в жилых помещениях и табличка по плитке. Надежда, Вы будете смеятся, но мой дизайнер начал с того, что заставила меня выбрать плитку(кухня, су, холл и коридор). Я не видела ни одного рендера, не представляла че где и как. Все , что я знала-это вводные, которые ей дала "эко-дизайн, бежевые тона, максимум дерева". На мои протесты, что это бред, я получила ответ "это практика, выработанная годами работы с заказчиками"...зная тонкую душевную организацию творческих людей, я не стала спорить и пришлось самой обмерять помещение и представить что и где в теории мне нарисует дизайнер, выбрать плитку..Понятно, что если я сейчас увижу рендеры, в которых, выбранная мной плитка, будет "не пришей кобыле хвост", то я выбор поменяю, а дизайнер получит доп. работу..так что, я так понимаю, у всех своя "практика выработанная годами":) ПС. я вобще думала, что происходит это так: дизайнер рисует вариант интерьера, предварительно узнав у меня на какую стоимость плитки я расчитываю, предлагая несколько вариантов(в указанном ценовом диапазоне), а я тыкаю пальцем "отакой вариант мне нра". А мне сказали "я вам могу что угодно нарисовать , как я себе это вижу, а вы потом в реальности такой плитки не найдете"...кароче, я пока еще толком не понимаю зачем мы наняли дизайнера, но молчу. Жду результат работы, тк еще моя бабушка говорила "дурню недоробленого не показуй" Посилання на коментар Поділитися на інших сайтах More sharing options...
D@redevil Опубліковано: 28 грудня 2011 Поділитись Опубліковано: 28 грудня 2011 Ребята, спасибо за подсказки! Нужно брать плитку размером побольше , глянцевую, без рисунка, а декор уже по периметру разместить. Правильно? В случае маленького помещения плитку нужно брать размером поменьше) Посилання на коментар Поділитися на інших сайтах More sharing options...
valya_bes Опубліковано: 28 грудня 2011 Поділитись Опубліковано: 28 грудня 2011 Я тоже сейчас плитку выбираю в санузел. Первое что сделала - измерила все до мелочей: не только ширина-длина-высота, а расстояние между сантехприборами, где расположено зеркало, расстояние между окнами. После этого можно определиться с размерами плитки, потому что понравившаяся плитка банально не ляжет красиво на поверхность стены и будет какой-то кусочек в пару сантиметров выбиваться из общей картины. Есть еще программки для раскладки плитки, не только визуализацию сделает, но и сразу посчитает количество плитки как целой так и порезанной, расход клея и т.д www.tile3d.com/ru/ там и демоверсия есть. 1 Посилання на коментар Поділитися на інших сайтах More sharing options...
DVIJOK Опубліковано: 28 грудня 2011 Поділитись Опубліковано: 28 грудня 2011 Вы будете тоже смеяться, но можно было выбрать дизайнера тут. Слава богу тут сидят люди достаточно грамотные, по крайне мере те, кого мы видим в ветках постоянно, и которые дают советы. Ну или советоваться заранее, предвидя шаги вашего дизайнера. Это совет, а не сарказм. А сейчас все получается чисто умозрительно. Планов нет, вы вроде все решили, но опять остались вопросы, а когда будете плитку выбирать или дойдет до кладки всплывет еще масса вопросов. В практике иногда встречается когда плитка размером 30 не смотрится и не ложится, а вот 33,5 в самый раз. Посилання на коментар Поділитися на інших сайтах More sharing options...
Rex70 Опубліковано: 28 грудня 2011 Поділитись Опубліковано: 28 грудня 2011 Я тоже сейчас плитку выбираю в санузел. Первое что сделала - измерила все до мелочей: не только ширина-длина-высота, а расстояние между сантехприборами, где расположено зеркало, расстояние между окнами. После этого можно определиться с размерами плитки, потому что понравившаяся плитка банально не ляжет красиво на поверхность стены и будет какой-то кусочек в пару сантиметров выбиваться из общей картины. Есть еще программки для раскладки плитки, не только визуализацию сделает, но и сразу посчитает количество плитки как целой так и порезанной, расход клея и т.д www.tile3d.com/ru/ там и демоверсия есть. осталось создать программку, которая бы эту самую плитку и ложила бы... Посилання на коментар Поділитися на інших сайтах More sharing options...
D@redevil Опубліковано: 28 грудня 2011 Поділитись Опубліковано: 28 грудня 2011 Вы будете тоже смеяться, но можно было выбрать дизайнера тут. Слава богу тут сидят люди достаточно грамотные, по крайне мере те, кого мы видим в ветках постоянно, и которые дают советы. Ну или советоваться заранее, предвидя шаги вашего дизайнера. Это совет, а не сарказм. А сейчас все получается чисто умозрительно. Планов нет, вы вроде все решили, но опять остались вопросы, а когда будете плитку выбирать или дойдет до кладки всплывет еще масса вопросов. В практике иногда встречается когда плитка размером 30 не смотрится и не ложится, а вот 33,5 в самый раз. Я-таки буду смеяться, тк тут я это пыталась сделать безуспешно! :DТе, кто читают ветку постоянно, в курсе, что я пыталась "отдаться" в руки кого-то из форумских дизайнеров долго и безуспешно (мне в основном хамили и отправляли курить бамбук). Мне очень импонирует Надежда, как человек и собеседникно у нас с ней разные виденья прекрасного. Несколько других дизайнеров 1- не имели готовых работ показать (только 3Д картинки, ни одной реализации толковой) 2-обещали "все прислать" и пропали (и это несмотря на мои "напоминалки" о том, что я так ничего и не получила). Поэтому Ваш пост таки-да, вызывает у меня смех. И я не желаю это больше обсуждать, тк и данную тему опять превратят в "космические войны" на тему заказчики-кааазлы:D ПС до того как воспользоваться услугами дизайнера я построила 2 дома, сделала более 5 разных ремонтов и никто не упрекнул меня в отсутствие вкуса. Но вот решила провести эксперимент, тк наличие маленького ребенка и работа не оставляют времени на "креатив" вобще. Те побудительным мотивом было-избавить себя от головняка и получить лишние пару часов для сна ПС2 я НЕ жалуюсь на своего дизайнера и тд. Я просто проиллюстрировала разность подходов. Дизайнера выбрала сама, осознанно ПС3 я в курсе того, что плитка может не смотреться и не ложиться...думаю, что это дано понять любому человеку с чувством вкуса и даже без спец. образования...ну не выбираю я туалетной бумаги с декоратором) 2 Посилання на коментар Поділитися на інших сайтах More sharing options...
Max_designer Опубліковано: 28 грудня 2011 Поділитись Опубліковано: 28 грудня 2011 Надежда, Вы будете смеятся, но мой дизайнер начал с того, что заставила меня выбрать плитку(кухня, су, холл и коридор). Я не видела ни одного рендера, не представляла че где и как. Все , что я знала-это вводные, которые ей дала "эко-дизайн, бежевые тона, максимум дерева". На мои протесты, что это бред, я получила ответ "это практика, выработанная годами работы с заказчиками"...зная тонкую душевную организацию творческих людей, я не стала спорить и пришлось самой обмерять помещение и представить что и где в теории мне нарисует дизайнер, выбрать плитку..Понятно, что если я сейчас увижу рендеры, в которых, выбранная мной плитка, будет "не пришей кобыле хвост", то я выбор поменяю, а дизайнер получит доп. работу..так что, я так понимаю, у всех своя "практика выработанная годами":) ПС. я вобще думала, что происходит это так: дизайнер рисует вариант интерьера, предварительно узнав у меня на какую стоимость плитки я расчитываю, предлагая несколько вариантов(в указанном ценовом диапазоне), а я тыкаю пальцем "отакой вариант мне нра". У разных бюро разный подход и разный опыт, наработанный годами. Схема работы, предложенная вам, наиболее распространена среди дизайн бюро, я бы даже сказал рекомендованная бизнес модель в наших реалиях. При такой схеме минимизируется количество предлагаемых вариантов. Зачастую в архбюро нет визуализаторов на ставке, работа с ними построена удаленно и на сдельном принципе, и каждые "перламутровые пуговицы" считаются дополнительно. Поэтому вам сразу предлагают причастится к выбору пуговиц и разделить ответственность за общее художественное решение. Такой подход позволяет занизить себестоимость проектирования на 5- 10$ за квадрат. По сути проект выполняется в оду стадию - РП (рабочий проект) По сути, вы приходите к парикмахеру и рассказываете ему, как вас стричь. Дальнейшие изменения прически требуют дополнительной оплаты, так как форма и стиль ранее были выбраны и утверждены Вами и заранее Есть другой подход, когда вас не заставляют заполнять тонны опросных листов, выбирать мебель, плитку и унитазы до начала проектных работ. Подход давным давно применяется в архитектурной практике. Назввается "Эскизный проект" и "Предпроектные предложения". Небольшая вводная современный/традиционный, желательные/нежелательные материалы, не более получаса времени. Далее прорабатываются вариантные эскизные предложения с бюджетом по материалам и именно на основании конкретных картинок, привязанных к размерам и стилевым предпочтениям идет дальнейшая детальная работа по подбору конкретных материалов, корректировке планов, оттачиванию стилевых решений и правке бюджета. проект выполняется в две стадии ЭП + РП. ДБНы (по сути, сборник идентифицированных и документированных грабель) указывают, что стадийность проектирования напрямую зависит от сложности объекта. Т.е. если проектируем дежурный офис, то это одна сложность и все решения можно принять за несколько часов разговора, а если у вас интерьер музея, театра, телевизионной студии, банка, где речь идет о милионных бюджетах, то проектирование все таки надо вести начиная с предпроектных разработок, а не выбора унитазов. Такой подход дороже чем первый, по каждому помещению работа проходит как минимум дважды, в первый раз стилевое приближение - второй раз в привязке к конкретным материалам. После второго этапа результат может очень сильно отличаться от первоначального. По сути, вы приходите к парикмахеру, он смотрит на вас устало и так же устало спрашивает: "будете рассказывать как мне правильно работать?" 2 Посилання на коментар Поділитися на інших сайтах More sharing options...
S-STUDIO Опубліковано: 28 грудня 2011 Поділитись Опубліковано: 28 грудня 2011 Надежда, Вы будете смеятся, но мой дизайнер начал с того, что заставила меня выбрать плитку(кухня, су, холл и коридор).... ПС. я вобще думала, что происходит это так: дизайнер рисует вариант интерьера, предварительно узнав у меня на какую стоимость плитки я расчитываю, предлагая несколько вариантов(в указанном ценовом диапазоне), а я тыкаю пальцем "отакой вариант мне нра". А мне сказали "я вам могу что угодно нарисовать , как я себе это вижу, а вы потом в реальности такой плитки не найдете"...кароче, я пока еще толком не понимаю зачем мы наняли дизайнера, но молчу. Жду результат работы, тк еще моя бабушка говорила "дурню недоробленого не показуй" ВСЕГДА работа с заказчиком начинается с долгого и упорного поиска "а что все таки НРА заказчику" т.е. делается подборка (у меня огромная библиотека). Потом начинается эскизирование и поиски варианта планировки, расставляется мебель. Эскизирование может быть и 3-д и эскизы от руки(я предпочитаю последнее). Последний заказчик заказал мне эскизы в 3-д(мы это тоже делаем), но после 3-его моего рисунка отказался в пользу ручной подачи. Визуализация будет по финалу(рабочему проекту). Т.е. методы могут отличаться, но поэтапность у профессионалов одинаковая. Притом на эскизирование и поиск вариантов уходит намного больше времени чем на сам рабочий проект(10 дней на Вашу квартиру).Наши взгляды на ведение процесса совпадали (мы обе идем от ПРАКТИКИ) П,С. Я плитку выбираю после того как определились, как минимум. с мебелью Посилання на коментар Поділитися на інших сайтах More sharing options...
DVIJOK Опубліковано: 28 грудня 2011 Поділитись Опубліковано: 28 грудня 2011 Я-таки буду смеяться, тк тут я это пыталась сделать безуспешно! :DТе, кто читают ветку постоянно, в курсе, что я пыталась "отдаться" в руки кого-то из форумских дизайнеров долго и безуспешно (мне в основном хамили и отправляли курить бамбук). А. Ну. Значит вам не повезло. Посилання на коментар Поділитися на інших сайтах More sharing options...
Natali1962 Опубліковано: 28 грудня 2011 Автор Поділитись Опубліковано: 28 грудня 2011 Вопрос к Надежде. Надя, а как правильно " подружить " плитку в разных помещениях чтобы смотрелось все гармонично ? Значение имеет размер , цвет , структура ? Жаль не могу загрузить картинку. Если у меня в спальне плитка размером 18,5 на 44,4 , структура типа "под паркет", то тогда все комнаты первого этажа должны быть в этом же духе? И спасибо за конкретные советы, помощь Открытие, лично для меня, соединительный шов между разными плитками под дверью. Посилання на коментар Поділитися на інших сайтах More sharing options...
S-STUDIO Опубліковано: 28 грудня 2011 Поділитись Опубліковано: 28 грудня 2011 Вопрос к Надежде. Надя, а как правильно " подружить " плитку в разных помещениях чтобы смотрелось все гармонично ? Значение имеет размер , цвет , структура ? Жаль не могу загрузить картинку. Если у меня в спальне плитка размером 18,5 на 44,4 , структура типа "под паркет", то тогда все комнаты первого этажа должны быть в этом же духе? И спасибо за конкретные советы, помощь Открытие, лично для меня, соединительный шов между разными плитками под дверью. Не обязательно под дерево, но в комплексе должно смотреться органично. Я всегда вижу как будет в итоге, 7ое чувство, если хотите, и это нельзя вложить в чужую голову. Просто говорю- подходит или нет. Лично я никогда не выбираю материалы по интернету, каталогу, визуализации и еще непонятно чему.Материал - только вживую и трогаю руками, только тогда будет результат. 2 Посилання на коментар Поділитися на інших сайтах More sharing options...
Рекомендовані повідомлення
Створіть акаунт або увійдіть у нього для коментування
Ви маєте бути користувачем, щоб залишити коментар
Створити акаунт
Зареєструйтеся для отримання акаунта. Це просто!
Зареєструвати акаунтУвійти
Вже зареєстровані? Увійдіть тут.
Увійти зараз