Rack Опубліковано: 30 грудня 2011 Поділитись Опубліковано: 30 грудня 2011 Имеем 3-й мансардный этаж,на нем санузел,потолок(ГК), которым разделяем его(санузел) с утепленным(100мм минваты) чердаком.Строители рекомендуют утеплить потолок со стороны чердака,еще хотя-бы 50мм минваты,в связи с тем что помещение влажное и перепад температуры все таки будет присутствовать.Я логику просматриваю,и понимаю, что это необходимо сделать.Подскажите, какие пленки использовать для укладки ваты и имеет ли смысл положить 100мм а не 50? Посилання на коментар Поділитися на інших сайтах More sharing options...
мастерок Опубліковано: 30 грудня 2011 Поділитись Опубліковано: 30 грудня 2011 Вообще то 100 мм-это очень мало для нашей климатической зоны,нужно 200 мм,и не только над санузлом,но и над всем домом.Если есть возможность,то доутеплитесь со стороны чердака,если физически это сделать невозможно,то снимете существующий паробарьер,наростите балки брусом,далее стандартно-паробарьер и доски.www.stroimdom.com.ua/forum/member.php?u=6198 на фото я этим и занимаюсь.Правда пирог 100 мм +50 мм. 1 Посилання на коментар Поділитися на інших сайтах More sharing options...
Rack Опубліковано: 31 грудня 2011 Автор Поділитись Опубліковано: 31 грудня 2011 Насчет 100мм в курсе.Лаги позволяют,и со временем займемся этим вопросом,но сейчас вопрос не о чердаке а о потолке санузла-вот намалевал для понятности... И кстати,изза того что чердак есть,все равно нужно 200мм утеплителя? Один стритель сказал,что уже сам чердак является буферной зоной,и 100 мм может хватить.Так? Посилання на коментар Поділитися на інших сайтах More sharing options...
мастерок Опубліковано: 31 грудня 2011 Поділитись Опубліковано: 31 грудня 2011 На приведённой схеме показано утепление для жилого отапливаемого чердака,а если он не жилой и не отапливаемый,то Вы просто выбросили деньги на ветер и Вас ждут серьёзные проблемы.Вы должны были утеплять перекрытие между чердаком и жилым этажём.Распишите более подробно конструктив крыши и перекрытия,мало вводных данных. Кстати,я всего лишь отделочник,пора и спецам по крышам подтянутся,мне кажется что для них свежая работа намечается. Фото крыши и перекрытия изнутри,а также снаружи очень облегчат процесс постановки диагноза и назначения лечения. В Вашем случае утепление ванной вообще не нужно обсуждать,нужно разобраться со всем чердаком. Посилання на коментар Поділитися на інших сайтах More sharing options...
Rack Опубліковано: 31 грудня 2011 Автор Поділитись Опубліковано: 31 грудня 2011 Наверное я не совсем правильно нарисовал - ниже поправил.Весь этаж мансардный,только часть крыши отрезана потолком под чердак.Так вот вопрос-нужно ли отделить влажное помещение утеплителем от этого чердака,дабы избежать появления лишнего конденсата? ЗЫ то что увеличивать утепление крыши до 200мм желательно для наших широт,я уже знаю,спасибо,больше повторять не нужно Посилання на коментар Поділитися на інших сайтах More sharing options...
мастерок Опубліковано: 31 грудня 2011 Поділитись Опубліковано: 31 грудня 2011 Я Вас правильно понял,даже скажу больше-лично у меня дома точно такой же вариант,даже могу прямо сейчас фото сделать.А вот Вы меня абсолютно не поняли.И ещё начали путать грешное с праведным-для защиты от влаги служит паробарьер,а вата-для утепления. Ответте на поставленные мною выше вопросы о конструктиве всей крыши,как осуществляется вентиляция,а то наш разговор беспредметен. Посилання на коментар Поділитися на інших сайтах More sharing options...
Rack Опубліковано: 31 грудня 2011 Автор Поділитись Опубліковано: 31 грудня 2011 для защиты от влаги служит паробарьер,а вата-для утепления. Вот именно это я и пытался узнать - какими типами пленок правильно было бы отделить вату от влажного помещения,и нужна ли она вообще там. Посилання на коментар Поділитися на інших сайтах More sharing options...
Kioto-9 Опубліковано: 2 січня 2012 Поділитись Опубліковано: 2 січня 2012 Вот именно это я и пытался узнать - какими типами пленок правильно было бы отделить вату от влажного помещения,и нужна ли она вообще там. 1. Строителя который сказал, что чердак и сам по себе является буфером бла-бла-бал - исключить из процесса принятия решений. 2. Между финишным покрытием кровли и жилым помещением должно быть как мин. 150 мм ваты, а по правильному 200 мм. 3. Пароизоляцию необходимо использовать металлизированную, к примеру Паробарьер Р110 4. Но на паробарьере будет падать конденсат, так как недостаточно утепление крыши (конденсат падает на самой холодной поверхности). Вопросы: 1. Чертеж, плохо читаем. Так и не понял сколько мм теплоизоляции у Вас между потолком жилого помещения и финишным покрытием?? 2. Как организована вентиляция санузла?? 1 Посилання на коментар Поділитися на інших сайтах More sharing options...
Rack Опубліковано: 3 січня 2012 Автор Поділитись Опубліковано: 3 січня 2012 1. Строителя который сказал, что чердак и сам по себе является буфером бла-бла-бал - исключить из процесса принятия решений. 2. Между финишным покрытием кровли и жилым помещением должно быть как мин. 150 мм ваты, а по правильному 200 мм. 3. Пароизоляцию необходимо использовать металлизированную, к примеру Паробарьер Р110 4. Но на паробарьере будет падать конденсат, так как недостаточно утепление крыши (конденсат падает на самой холодной поверхности). Вопросы: 1. Чертеж, плохо читаем. Так и не понял сколько мм теплоизоляции у Вас между потолком жилого помещения и финишным покрытием?? 2. Как организована вентиляция санузла?? 1)Исключили 2)Уже понял 3)если не нужно утеплять потолок в санузле - к чему говорить про пароизоляцию? 4)И? далее 1)если не считать пару-тройку метров чердака,то 100мм,уже 3-й раз об этом пишу Что конкретно не ясно из чертежа-спрашивайте?-вроде ж все уже нарисовал-пирог такой - металлочерепица,гидробарьер-утеплитель(100мм)-паробарьер(+- могу путаться в последовательности-не я крышу крыл),потом чердак,и от чердака жилую комнату отделяет ГК потолок. 2)пока никак - только пытаюсь что-то там организовать.Планировал в вентканал установить осевой вентилятор вентс 125 с датчиком влажности. Посилання на коментар Поділитися на інших сайтах More sharing options...
Kioto-9 Опубліковано: 3 січня 2012 Поділитись Опубліковано: 3 січня 2012 1)если не считать пару-тройку метров чердака,то 100мм, 2)пока никак - только пытаюсь что-то там организовать.Планировал в вентканал установить осевой вентилятор вентс 125 с датчиком влажности. Теперь все ясно. 1. Теплопотери через потолок будут значительные. Был тут хороший топик про 300 кубов газа в месяц. Теплопроводность Ваших стен значительно меньше, чем потолка. Поднимающееся тепло не имея значительной преграды будет уходить из дому. Если не организуете хорошей теплоизоляции потолка, то будет такая же история как и у человека из вышеупомянутого топика. 1.1. Как я понял, утеплитель у Вас только под крышей и его толщина 100 мм - ИСКЛЮЧИТЬ ВСЕХ кто принимал участие в проектирование и строительстве. Почему: по факту вы построили легко утепленную мансарду которую называете чердаком, в этом нет нечего плохого, кроме: - расхода материала, утеплителя на перекрытие чердак-жилая комната пошло бы значительно меньше - Вы греете кучу пару тройку метров воздуха, который находится на чердаке - жжете кучу лишнего газа. 2. Над вопросом нужно подумать более серьезно, чем вентилятор от венс. Легко все можно просчитать. Сейчас лень. Мой совет: 1. Под ГК потолка всего этажа подшить пароизоляцию, сделать все герметично. 2. Под ГК потолка санузла подшить пароизоляцию с металлизацией. 3. По полу чердака разложить 100 мм мин/стекло ваты. 4. сделать в санузле толковую вентиляцию, не только вытяжку, но и приток. И все будет Гуд. Сухо и тепло как в подгузниках Хагис. 1 Посилання на коментар Поділитися на інших сайтах More sharing options...
Rack Опубліковано: 3 січня 2012 Автор Поділитись Опубліковано: 3 січня 2012 1. Теплопотери через потолок будут значительные. Был тут хороший топик про 300 кубов газа в месяц. Теплопроводность Ваших стен значительно меньше, чем потолка. Поднимающееся тепло не имея значительной преграды будет уходить из дому. Если не организуете хорошей теплоизоляции потолка, то будет такая же история как и у человека из вышеупомянутого топика. 1.1. Как я понял, утеплитель у Вас только под крышей и его толщина 100 мм - ИСКЛЮЧИТЬ ВСЕХ кто принимал участие в проектирование и строительстве. Почему: по факту вы построили легко утепленную мансарду которую называете чердаком, в этом нет нечего плохого, кроме: - расхода материала, утеплителя на перекрытие чердак-жилая комната пошло бы значительно меньше - Вы греете кучу пару тройку метров воздуха, который находится на чердаке - жжете кучу лишнего газа. 2. Над вопросом нужно подумать более серьезно, чем вентилятор от венс. Легко все можно просчитать. Сейчас лень. Мой совет: 1. Под ГК потолка всего этажа подшить пароизоляцию, сделать все герметично. 2. Под ГК потолка санузла подшить пароизоляцию с металлизацией. 3. По полу чердака разложить 100 мм мин/стекло ваты. 4. сделать в санузле толковую вентиляцию, не только вытяжку, но и приток. И все будет Гуд. Сухо и тепло как в подгузниках Хагис. Дом куплен "как есть",сейчас потихоньку устраняем недоработки предыдущих строителей. Вот именно подобного совета и ждал,хотелось подтверждения или опровержения моих догадок.В санузле приток возможен,разве что из соседнего помещения,то есть комнаты-через/под дверью - этого будет недостаточно? Комната достаточно большая ~ 30м кв. Проблемка еще в том,что потолок то утеплить не проблема,а вот стены зашиты наглухо вертикальными листами ГК,а ведь они часть мансардной конструкции-ломать не очень хочется. Посилання на коментар Поділитися на інших сайтах More sharing options...
Kioto-9 Опубліковано: 4 січня 2012 Поділитись Опубліковано: 4 січня 2012 В санузле приток возможен,разве что из соседнего помещения,то есть комнаты-через/под дверью - этого будет недостаточно? Комната достаточно большая ~ 30м кв. Проблемка еще в том,что потолок то утеплить не проблема,а вот стены зашиты наглухо вертикальными листами ГК,а ведь они часть мансардной конструкции-ломать не очень хочется. 1. С Вашего чертежа не видно, что есть часть наклонного потолка в санузле. Сделайте фото, будет легче Вам помочь. Как я понимаю, в наклонной части потолка в санузле и других помещениях только 100 мм утеплителя. 2. Можно организовать приток через вентрешетку в дверях. Такие пластиковые, продаются. Врезаются в дверь. Вытяжка принудительная с датчиком влажности - это гуд. Для более точного расчета укажите кубатуру санузла. 1 Посилання на коментар Поділитися на інших сайтах More sharing options...
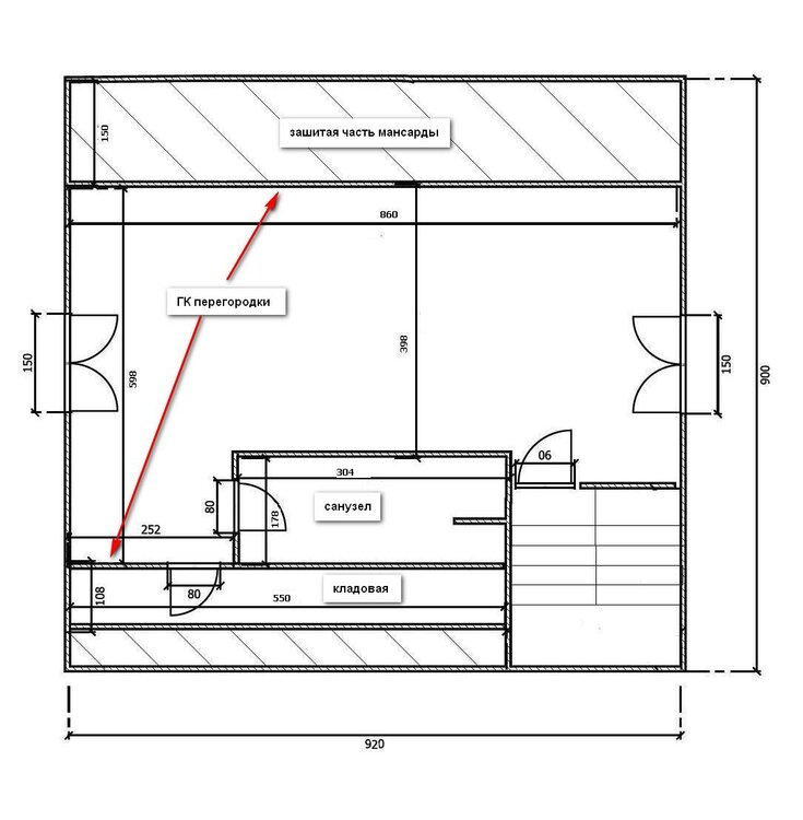
Rack Опубліковано: 4 січня 2012 Автор Поділитись Опубліковано: 4 січня 2012 1. С Вашего чертежа не видно, что есть часть наклонного потолка в санузле. Сделайте фото, будет легче Вам помочь. Как я понимаю, в наклонной части потолка в санузле и других помещениях только 100 мм утеплителя. 2. Можно организовать приток через вентрешетку в дверях. Такие пластиковые, продаются. Врезаются в дверь. Вытяжка принудительная с датчиком влажности - это гуд. Для более точного расчета укажите кубатуру санузла. 1.Потолок в с/у ровный и стены тоже чтобы было понятнее план этажа привожу ниже+ на фото примерно указал где єти перегородки(фото старое).Правый угол мансарды выделен под кладовку(может утеплить перегородку между с/у и этой кладовкой? там нет радиаторов,только в с/у и в комнате),левый глухо зашит ГКЛ (пока нет обоев,возможно стоит сделать ревизионную дверку? или даже утеплить и эту перегородку?) 2.Про решеточки думал,но ради сохранения красоты думал оставить щель в 1-1,5см под дверью -не хватит? Площадь 5,5кв.м.,потолки 2,2-2,3м. Посилання на коментар Поділитися на інших сайтах More sharing options...
мастерок Опубліковано: 4 січня 2012 Поділитись Опубліковано: 4 січня 2012 Ещё раз повторяю-у меня точно также,как и у Вас. Вы должны или отапливать всё пространство,включая кладовку и левый загашник,или сделать утепление перестенков и балок.Без доступа тепла всё Ваше утепление крыши абсолютно бессмысленно-просто чердак и боковые загашники промёрзнут на неделю позже,и прощай весь ремонт. У Вас проблема глобального характера,а Вы переживаете за решёточки под дверью!!! Посилання на коментар Поділитися на інших сайтах More sharing options...
Rack Опубліковано: 4 січня 2012 Автор Поділитись Опубліковано: 4 січня 2012 Сейчас и решается вопрос-как сделать правильно,и с наименьшими затратами.Ремонт я там до теплых дней делать не планировал,если спецы в один голос скажут,что единственный вариант - снять существующий паробарьер и добавить еще 100мм к уже уложенному утеплителю - то перезимую так(уже в таком состоянии 3-й год, правда газ дали только в этом,вот и озаботился его вылетом "в трубу"),а как потеплеет-займусь полной переделкой.Если же придем к выводу,что можно доутеплить потолок и простенки - то это я могу сделать и сейчас,и уже экономить на отоплении.Глобальной проблемы не вижу - лаги легко позволяют доутеплить до 200мм и непосредственно под металочерепицей-другой вопрос,что переделки всегда хуже сделанного 1 раз правильно.В любом случае,спасибо за участие-чем больше мнений,тем более близким к идеальному будет решение,ведь оно для каждого конкретного случая индивидуально. PS а решёточки в дверях тоже достойны переживания ;) Посилання на коментар Поділитися на інших сайтах More sharing options...
Kioto-9 Опубліковано: 4 січня 2012 Поділитись Опубліковано: 4 січня 2012 1. Вариант А: Снять паробарьер и между лаг по всей крыше добавить утеплитель до 170-200 мм. герметично закрыть пароизоляцией и вентиляция в санузле (про это ниже) Недостатки: будете греть все кладовки, а это кучу пару-троек кубов лишнего воздуха. Вариант Б: Утеплить перестенки и потолок комнаты, предварительно заизолировав пароизоляцией. Недостатки: в нежилых помещениях должна отсутствовать вентиляция, то есть исключение любых сквозняков, а это очень не просто сделать. Вариант В: Самый геморный, кучу переделок, но навсегда. Заметил на фото еще ошибки монтажа, которые меня склоняют именно к этому варианту. Я бы выбрал именно этот вариант. - Делаем герметичную пароизоляцию перекрытий в нежилых помещениях + перестенок + перекрытия чердак-мансарда. - Вытягивает теплоизоляцию из междустропилья. Просушиваем - Покупаем еще теплоизоляцию и укладываем по паробарьеру 170-200 мм теплоизоляции. 2. Щель под дверью это плохой вариант. Будет тянуть по ногам в санузле, а это ой как не приятно зимой после горячего душа. С чертежа невидно где вентканал. Можно решеточку вставить и не только в дверь, а можно и в стену над лестницей. З.Ы. А что у Вас снаружи дома. Меня смущают мостики холода над окнами нижних этажей. Вы их как-то утепляли?? З.З.Ы. А ГК прийдется частично демонтировать, без вариантов. Посилання на коментар Поділитися на інших сайтах More sharing options...
Rack Опубліковано: 4 січня 2012 Автор Поділитись Опубліковано: 4 січня 2012 З.Ы. А что у Вас снаружи дома. Меня смущают мостики холода над окнами нижних этажей. Вы их как-то утепляли?? З.З.Ы. А ГК прийдется частично демонтировать, без вариантов. Значит пока что ничего не трогаю,закрываю 3-й этаж ставлю батареи на поддержание гарадусов 10-15 тепла,а как потеплеет,снимаю весь утеплитель и перекладываю его на потолок и простенки(а вот тут проблема - простенки узкие - туда максиму 50мм войдет,а переделывать всю конструкцию...) Значит все таки доутеплять существующую стропильную систему? Снаружи утеплили пенопластом-сейчас вот так: Посилання на коментар Поділитися на інших сайтах More sharing options...
мастерок Опубліковано: 4 січня 2012 Поділитись Опубліковано: 4 січня 2012 Правильно!Но в перестенке гипсовом и не нужно утеплять.т.к. будет гаплык наружному гипсу.Утеплять нужно За перестенком,а если очень захочете В перестенке,то наружный ГК прийдётся заменить на магнезитовые плиты или Аквапанель. Посилання на коментар Поділитися на інших сайтах More sharing options...
Kioto-9 Опубліковано: 4 січня 2012 Поділитись Опубліковано: 4 січня 2012 Значит пока что ничего не трогаю,закрываю 3-й этаж ставлю батареи на поддержание гарадусов 10-15 тепла,а как потеплеет,снимаю весь утеплитель и перекладываю его на потолок и простенки(а вот тут проблема - простенки узкие - туда максиму 50мм войдет,а переделывать всю конструкцию...) Значит все таки доутеплять существующую стропильную систему? Снаружи утеплили пенопластом-сейчас вот так: Компромисс: Утеплять трапецией, то есть. По стропилам скат нежилого помещения до пола чердака, потом пол чердака и снова по стропилам второй скат. Экономно, реализуемо и главное рационально. Затраты: новая пароизоляция и частично утеплитель (демонтированный с крыши чердака утеплитель пойдет на пол чердака) В принципе можно эти работы проделывать сейчас, так как нечего нет более постоянного чем временное. 1 Посилання на коментар Поділитися на інших сайтах More sharing options...
Rack Опубліковано: 8 січня 2012 Автор Поділитись Опубліковано: 8 січня 2012 Как вариант: а если сделать так как по ссылке? www.stroimdom.com.ua/forum/showpost.php?p=1327891&postcount=1915 ЗЫ всячески хочется избежать "слома" уже построенного ) Посилання на коментар Поділитися на інших сайтах More sharing options...
Kioto-9 Опубліковано: 10 січня 2012 Поділитись Опубліковано: 10 січня 2012 Как вариант: а если сделать так как по ссылке? www.stroimdom.com.ua/forum/showpost.php?p=1327891&postcount=1915 ЗЫ всячески хочется избежать "слома" уже построенного ) Вариант хороший, но все равно нужно утеплять перестенки. 1 Посилання на коментар Поділитися на інших сайтах More sharing options...
Рекомендовані повідомлення
Створіть акаунт або увійдіть у нього для коментування
Ви маєте бути користувачем, щоб залишити коментар
Створити акаунт
Зареєструйтеся для отримання акаунта. Це просто!
Зареєструвати акаунтУвійти
Вже зареєстровані? Увійдіть тут.
Увійти зараз