vale3 Опубліковано: 31 грудня 2011 Поділитись Опубліковано: 31 грудня 2011 Интересует фундамент под ключ в с. Зазимье Броварского района, подьезд нормальный шириной 4 метра, участок с обеих сторон не застроен. Схемы и чертежы фундамента прикрепляю Интересует работа под ключ с составлением сметы и подробным описанием. Начало работ возможно сразу после праздников Посилання на коментар Поділитися на інших сайтах More sharing options...
master_yan Опубліковано: 31 грудня 2011 Поділитись Опубліковано: 31 грудня 2011 Сразу извиняюсь за офф-топ Но почитав твой пост - не могу молчать. Не спеши делать фундамент в зиму. Никто толком не знает погоды.... Недай бог резкое похолодание - получишь большой гемор при бетонных работах. Хорошо - если бригада будет толковая, и будет использовать противоморозные добавки и укрывать бетон... Потерпи до марта - 2 месяца тебе погоды не построят С наступающим! Посилання на коментар Поділитися на інших сайтах More sharing options...
vale3 Опубліковано: 31 грудня 2011 Автор Поділитись Опубліковано: 31 грудня 2011 Сразу извиняюсь за офф-топ Но почитав твой пост - не могу молчать. Не спеши делать фундамент в зиму. Никто толком не знает погоды.... Недай бог резкое похолодание - получишь большой гемор при бетонных работах. Хорошо - если бригада будет толковая, и будет использовать противоморозные добавки и укрывать бетон... Потерпи до марта - 2 месяца тебе погоды не построят С наступающим! Спасибо так наверное и сделаю Посилання на коментар Поділитися на інших сайтах More sharing options...
vale3 Опубліковано: 4 січня 2012 Автор Поділитись Опубліковано: 4 січня 2012 Не стесняемся пишем. до весны всего ничего. Посилання на коментар Поділитися на інших сайтах More sharing options...
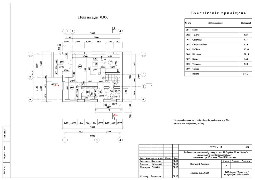
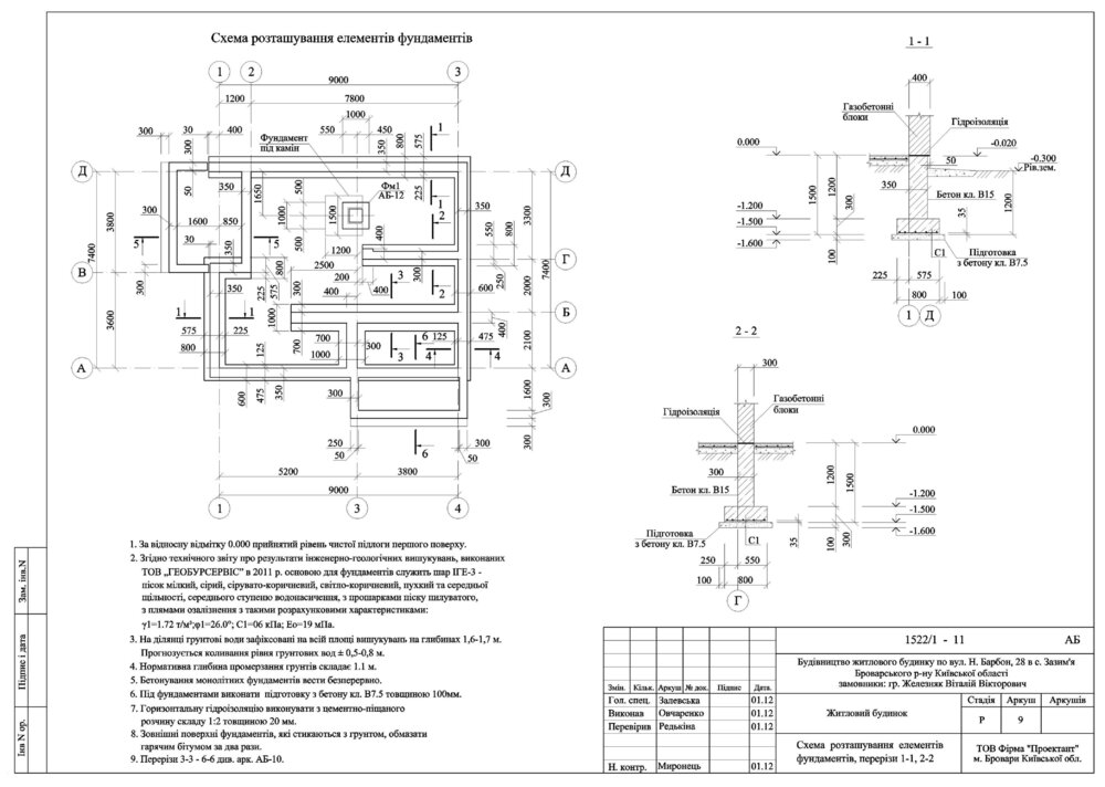
vale3 Опубліковано: 6 січня 2012 Автор Поділитись Опубліковано: 6 січня 2012 (змінено) Пишите подробно эти пункты - привязка участкак местности, разработка осей дома - снятие плодородного слоя - рытье котлована 26 кубов (из них подошва фундамента 3,3 куба) - устройство подбетонки от 550,800,100 мм под залитие бетона(без щебня и песка) - заложение труб коммуникаций, 3 шт - устройство опалубки - вязка арматуры (244 килограмма) + заливка в траншеи общего обьема сначала подбетонки 5,5 кубов, а после 38,6 кубов сам фундамент с подошвой с применением грубинного вибратора - снятие опалубки и обратная засыпка Змінено 6 січня 2012 користувачем vale3 Посилання на коментар Поділитися на інших сайтах More sharing options...
lastandr Опубліковано: 6 січня 2012 Поділитись Опубліковано: 6 січня 2012 (змінено) - вязка арматуры (244 килограмма) + заливка в траншеи общего обьема сначала подбетонки 5,5 кубов, а после 38,6 кубов сам фундамент с подошвой с применением грубинного вибратора... могу сказать лишь то,что расчет фундамента делал(или вообще не делал) явно не инженер-конструктор. Из опыта выполнения фундаментных работ на такой объем бетона обычно приходится 1.2-1.5т арматуры(при этом в качестве рабочей используется диаметры от 12мм и больше).А здесь стены фундамента вообще никак не заармированы,хотя,всем инженерам-строителям хорошо известно,что монолитные стены без арматуры (в отличии от стен из блоков ФБС) просто порвет при застывании бетона. Я бы такой фундамент не стал делать даже под забор или сарай... Змінено 6 січня 2012 користувачем lastandr Посилання на коментар Поділитися на інших сайтах More sharing options...
amagnetto Опубліковано: 6 січня 2012 Поділитись Опубліковано: 6 січня 2012 так там автоматом пойдет замена 6го диаметра на 8ой. шестерку если и найдут то только в бухтах Посилання на коментар Поділитися на інших сайтах More sharing options...
kostya_p Опубліковано: 8 січня 2012 Поділитись Опубліковано: 8 січня 2012 (змінено) могу сказать лишь то,что расчет фундамента делал(или вообще не делал) явно не инженер-конструктор. Из опыта выполнения фундаментных работ на такой объем бетона обычно приходится 1.2-1.5т арматуры(при этом в качестве рабочей используется диаметры от 12мм и больше).А здесь стены фундамента вообще никак не заармированы,хотя,всем инженерам-строителям хорошо известно,что монолитные стены без арматуры (в отличии от стен из блоков ФБС) просто порвет при застывании бетона. Я бы такой фундамент не стал делать даже под забор или сарай... Вполне нормальная схема армирования фундамента. При правильном уходе за бетоном ничего не порвет. Для "перестраховки" можно установить еще один каркас по верху стены фундамента (4ф10А400С+обвязка из ф6,5А240С). Змінено 8 січня 2012 користувачем kostya_p Посилання на коментар Поділитися на інших сайтах More sharing options...
vvkk Виктор Опубліковано: 8 січня 2012 Поділитись Опубліковано: 8 січня 2012 Начало работ возможно сразу после праздников------------------? НЕ СПЕШИТЕ!!!! Даже в летнюю погоду бетон застывает не один день я уже не говорю до полного схватывания,а зимой в результате резких перепадов температуры застивание ухудшается в разы (даже применение добавок не даёт 100%эффекта). Так что Вам решать на каком фундаменте дому стоять. С ув. Виктор. 1 Посилання на коментар Поділитися на інших сайтах More sharing options...
ekimstar Опубліковано: 8 січня 2012 Поділитись Опубліковано: 8 січня 2012 ответил в личку! Посилання на коментар Поділитися на інших сайтах More sharing options...
lastandr Опубліковано: 8 січня 2012 Поділитись Опубліковано: 8 січня 2012 (змінено) Вполне нормальная схема армирования фундамента. При правильном уходе за бетоном ничего не порвет. Для "перестраховки" можно установить еще один каркас по верху стены фундамента (4ф10А400С+обвязка из ф6,5А240С). Хотелось бы,чтобы именно вашу компанию выбрали на этот объект в качестве подрядчика,и чтобы выполнено было по всем правилам,согласно проекта(без "перестраховочных" дополнений)... И почитать потом отзыв заказчика... Также интересно узнать,на что вы собираетесь "установить еще один каркас по верху стены фундамента (4ф10А400С+обвязка из ф6,5А240С)" .если проектом не предусмотрена даже вертикальная арматура? Кините его просто в бетон сверху... Змінено 8 січня 2012 користувачем lastandr 1 Посилання на коментар Поділитися на інших сайтах More sharing options...
Роман293 Опубліковано: 8 січня 2012 Поділитись Опубліковано: 8 січня 2012 О мне тоже уже стало любопытно по этой теме- кто что напишет! Посилання на коментар Поділитися на інших сайтах More sharing options...
apxitektop.s Опубліковано: 8 січня 2012 Поділитись Опубліковано: 8 січня 2012 Вполне нормальная схема армирования фундамента. При правильном уходе за бетоном ничего не порвет. Для "перестраховки" можно установить еще один каркас по верху стены фундамента (4ф10А400С+обвязка из ф6,5А240С). там в чертежах, если вы не увидели, нет армирования стен фундамента, есть лишь армирование ленты, посему соглашусь с lastandr а также добавлю, что при горизонтальных нагрузках , даже например от обратной засыпки - стены местами затрещат. Заармирован кое-как лишь столбчатый ФМ-1... Вертикальной гидроизоляции на чертежах я не увидел, грунтовые воды у вас рядом... Кроме того, любому инженеру конструктору ПГС, хорошо известно понятие - "минимальный коэф. армирования" , так вот, он у вас вообще нулевой... Уважаемый застройщик, фундамент у вас более чем "левый", он сделан с грубейшими ошибками Посилання на коментар Поділитися на інших сайтах More sharing options...
kostya_p Опубліковано: 9 січня 2012 Поділитись Опубліковано: 9 січня 2012 Также интересно узнать,на что вы собираетесь "установить еще один каркас по верху стены фундамента (4ф10А400С+обвязка из ф6,5А240С)" .если проектом не предусмотрена даже вертикальная арматура? Кините его просто в бетон сверху... Имелся в виду монолитный пояс по верху фундаментной стены (удивительно, что пришлось объяснять строителю lastandr). Проекты таких фундаментов уже встрачал www.stroimdom.com.ua/forum/album.php?albumid=707&pictureid=33399 Для "легкого" здания считаю приемлемым вариантом. а также добавлю, что при горизонтальных нагрузках , даже например от обратной засыпки - стены местами затрещат. Заармирован кое-как лишь столбчатый ФМ-1... Вертикальной гидроизоляции на чертежах я не увидел, грунтовые воды у вас рядом... Кроме того, любому инженеру конструктору ПГС, хорошо известно понятие - "минимальный коэф. армирования" , так вот, он у вас вообще нулевой... Для того, чтобы избежать горизонтальных нагрузок, обратную засыпку нужно проводить одновременно с двух сторон фундаментных стен слоями по 20-30см. Не увидел-не значит, что ее нет (см. пп8 общих указаний). А в каком нормативе есть указания по минимальному коэффициенту армирования монолитных фундаментных стен? Посилання на коментар Поділитися на інших сайтах More sharing options...
apxitektop.s Опубліковано: 9 січня 2012 Поділитись Опубліковано: 9 січня 2012 Имелся в виду монолитный пояс по верху фундаментной стены (удивительно, что пришлось объяснять строителю lastandr). Проекты таких фундаментов уже встрачал www.stroimdom.com.ua/forum/album.php?albumid=707&pictureid=33399 Для "легкого" здания считаю приемлемым вариантом. Для того, чтобы избежать горизонтальных нагрузок, обратную засыпку нужно проводить одновременно с двух сторон фундаментных стен слоями по 20-30см. Не увидел-не значит, что ее нет (см. пп8 общих указаний). А в каком нормативе есть указания по минимальному коэффициенту армирования монолитных фундаментных стен? Уважаемый, дабы что-то считать, надо хоть как то "плавать в теме", вы извините даете ущербные советы застройщику, дабы получить доступ к заказу - любым способом. Ведь такими советами, вы подвергаете опасности - как самого застройщика - в плане будущей эксплуатации его дома, так и его карман. Вы либо идите в университет - снова, либо если там не учились, то поступайте. Ведь интересно спрашивать - детские вопросы для инженера - в каком документе есть мин. коэф. армирования. Вы заказчику советуете с грубейшими ошибками, сам при этом не зная о элементарных вещах в строймеханике и механике грунтов.... Зачем флудить, если тема для вас непонятна абсолютно ? Это из серии - "я не хирург, но такие операции уже делал" Вы даже не потрудились забить фразу "минимальный коэффициент армирования" в гуугл К сожалению у нас в стране - легко купить диплом, даже стать "проФХессором" , поэтому "lastandr" и ответил ВАМ, так как человек в "теме" , я его поддержал, аргументируя его и свои доводы. 1 Посилання на коментар Поділитися на інших сайтах More sharing options...
kostya_p Опубліковано: 9 січня 2012 Поділитись Опубліковано: 9 січня 2012 "Спасибо" за очень "конструктивный" ответ. Посилання на коментар Поділитися на інших сайтах More sharing options...
lastandr Опубліковано: 9 січня 2012 Поділитись Опубліковано: 9 січня 2012 Имелся в виду монолитный пояс по верху фундаментной стены (удивительно, что пришлось объяснять строителю lastandr). Да,я бы согласился с вами при устройстве стен из ФБС,а в данном случае,что прикажете забетонировать стену,подождать несколько дней,потом положить сверху каркас армопояса и еще разок линуть бетончика А в каком нормативе есть указания по минимальному коэффициенту армирования монолитных фундаментных стен? смотрите СНиП 52-01-2003 Да и на вашем сайте есть дельные статьи и ссылки Посилання на коментар Поділитися на інших сайтах More sharing options...
ssobi Опубліковано: 9 січня 2012 Поділитись Опубліковано: 9 січня 2012 нормальный фундамент...полтора метра грунта 350 стену даже без арматуры не сломают,и пр застывании ничего там не порвёт...неужели вы все забыли как лет 20 назад такие фундаменты из обычных блоков ложили??...и в помине там арматуры не было...тем более проектная организация свою подпись поставила...рискнула лицензией... Посилання на коментар Поділитися на інших сайтах More sharing options...
ssobi Опубліковано: 9 січня 2012 Поділитись Опубліковано: 9 січня 2012 ...а какая разница??..положенно из блоков или залито в опалубку??? Посилання на коментар Поділитися на інших сайтах More sharing options...
apxitektop.s Опубліковано: 9 січня 2012 Поділитись Опубліковано: 9 січня 2012 нормальный фундамент...полтора метра грунта 350 стену даже без арматуры не сломают,и пр застывании ничего там не порвёт...неужели вы все забыли как лет 20 назад такие фундаменты из обычных блоков ложили??...и в помине там арматуры не было...тем более проектная организация свою подпись поставила...рискнула лицензией... Фундаментные блоки и монолитный фундамент без минимального процента армирования - две ОгрОмные разницы, почему так, читайте линк на поисковик по запросу "минимальный коэф. армирования" приведенный мною выше. По поводу ложили 20 лет назад, их укладывают везде и постоянно, ведь в ряде случаев - это самый оптимальный вариант - ФБС. Фирма ничем не рискнула, проект конструктивной части не требует подписи, ни печати, ведь до определенной квадратуры - проект не проходит экспертизу, за сим никакого риска.... По каким вы критериям судите, что все ок с фундаментами? Вы не будучи например хирургом - можете вырезать апендикс, либо по шву сказать, что все ок ? =) Народ, автор темы пытается построить фундамент, специалисты нашли грубейшие ошибки, а форумные флудеры - развивают тему не в конструктивном русле :D ...а какая разница??..положенно из блоков или залито в опалубку??? Чтобы понять какая разница - нужно изучить раздел строительной механики, а также проштудировав книжку "армокаменные конструкции", "железобетонные конструкции" Поэтому что-бы что то заливать, надо произвести расчет необходимой плащади армирования в конструкции, а так на "обум" можно получить - пшик, вложив при этом кучу денег Посилання на коментар Поділитися на інших сайтах More sharing options...
ssobi Опубліковано: 9 січня 2012 Поділитись Опубліковано: 9 січня 2012 Ваши ответы ограничиваються только поищите в гугле... если Заказчику просчитали нагрузки на фундамент исходя из геологии его участка, и под этими чертежами стоит подпись конструктора...то он ничем абсолютно не рискует Посилання на коментар Поділитися на інших сайтах More sharing options...
ssobi Опубліковано: 9 січня 2012 Поділитись Опубліковано: 9 січня 2012 Вы в двух словах разницу между блоками и бетоном мне скажите..без ссылок на гугл....блесните познаниями... Посилання на коментар Поділитися на інших сайтах More sharing options...
apxitektop.s Опубліковано: 9 січня 2012 Поділитись Опубліковано: 9 січня 2012 Вы в двух словах разницу между блоками и бетоном мне скажите..без ссылок на гугл....блесните познаниями... Уважаемый, вам два специалиста ответили в теме, что фундаменты запроектированы неверно, я не собираюсь перед вами чем-то блестать и доказывать, таких как вы на форуме - полно, лишь бы язык почесать. А в гугле искать не стоит, я сам нашел для ВАС, вы лишь зайдите по линку, о котором я говорил ssobi - вы ведь ни коим образом не инженер,тогда как инженер ПГС , с 12 летним стажем могу вам доказать, вы автор темы ? А судя по большинству ваших месседжей на форуме, например тут Где вы спорите в таком же духе с тем же lastandr , мне кажется, вы себе просто пытаетесь заработать "форумный" вес Создайте свою тему и флудите Посилання на коментар Поділитися на інших сайтах More sharing options...
lastandr Опубліковано: 9 січня 2012 Поділитись Опубліковано: 9 січня 2012 ...а какая разница??..положенно из блоков или залито в опалубку??? Об этом уже шел разговор на форуме,посмотрите эту темку Посилання на коментар Поділитися на інших сайтах More sharing options...
tansss Опубліковано: 9 січня 2012 Поділитись Опубліковано: 9 січня 2012 Заранее sorry что своим тоненьким голоском новичка вмешиваюсь в беседу аксакалов но мне это напомнило анекдот про чу… т.е. жителя крайнего севера который усердно пилил ветку дерева на которой сидел, а проходивший мимо старый бородатый геолог … настоятельно рекомендовал, предупреждал … В результате: молодые туристы для которых пилились дрова вместо отдыха занимались лечением жителя крайнего севера, намудохались пополной, всем друзьям рассказали что верить никому нельзя… Житель крайнего севера до сих пор считает геолога колдуном!!! А старый бородатый геолог – зарабатывает на том что работает на серьезных понимающих, где пилить нельзя, людей, которых становится все меньше. Посилання на коментар Поділитися на інших сайтах More sharing options...
Рекомендовані повідомлення
Створіть акаунт або увійдіть у нього для коментування
Ви маєте бути користувачем, щоб залишити коментар
Створити акаунт
Зареєструйтеся для отримання акаунта. Це просто!
Зареєструвати акаунтУвійти
Вже зареєстровані? Увійдіть тут.
Увійти зараз