Перейти до публікації
Пошук в
  • Додатково...
Шукати результати, які містять...
Шукати результати в...

Хочу сделать лестницу на даче своими руками

LiVi

Рекомендовані повідомлення

Вот дошел черед до постройки лестницы в мансардный этаж в дачном домике.

История постройки домика здесь.

 

Лестницу буду делать своими руками, т.к. цены на их изготовление сильно кусаются. Если кто-то хочет опровергнуть мнение о дороговизне изготовления лестниц и предложить вменяемый вариант - милости прошу в личку или е-мыло. Ну это такое, вернемся к повествованию.

 

Поскольку размеры будущей лестницы ограничены существующей постройкой, вариантов ее постройки немного.

 

Крутил-вертел я все это дело в голове больше полугода.

Наконец-то посетило вдохновение взяться за проектирование.

 

Почитал мудреного опытом Йожефа Косо "Лестницы. Дизайн и технология".

Вник в тему.

 

И вот изваял такой эскиз (вид сверху):

 

%2525D0%25259B%2525D0%2525B5%2525D1%252581%2525D1%252582%2525D0%2525BD%2525D0%2525B8%2525D1%252586%2525D0%2525B0%2525202012_01_18%252520%2525D0%2525AD%2525D0%25259F.jpg

 

Это разрез по ходовой линии, для понимания, какая проступь, какой подступенок, какой забег.

 

%2525D0%2525A0%2525D0%2525B0%2525D0%2525B7%2525D1%252580%2525D0%2525B5%2525D0%2525B7%252520%2525D0%2525BF%2525D0%2525BE%252520%2525D1%252585%2525D0%2525BE%2525D0%2525B4%2525D0%2525BE%2525D0%2525B2%2525D0%2525BE%2525D0%2525B9%252520%2525D0%2525BF%2525D0%2525BE%2525D0%2525BB%2525D0%2525BE%2525D1%252581%2525D0%2525B5.jpg

 

Поскольку лестница снизу будет подшиваться, и делать я ее буду без применения специальных инструментов, типа фрезера, выбрал лестницу с тетивами и с вот таким креплением ступеней (спасибо Йожефу Косо):

 

%2525D0%2525A1%2525D0%2525BF%2525D0%2525BE%2525D1%252581%2525D0%2525BE%2525D0%2525B1%252520%2525D0%2525BF%2525D0%2525BE%2525D1%252581%2525D0%2525B0%2525D0%2525B4%2525D0%2525BA%2525D0%2525B8%252520%2525D1%252581%2525D1%252582%2525D1%252583%2525D0%2525BF%2525D0%2525B5%2525D0%2525BD%2525D0%2525B5%2525D0%2525B9.jpg

 

Еще картинка для наглядности:

 

%2525D0%2525A1%2525D0%2525BF%2525D0%2525BE%2525D1%252581%2525D0%2525BE%2525D0%2525B1%252520%2525D0%2525BF%2525D0%2525BE%2525D1%252581%2525D0%2525B0%2525D0%2525B4%2525D0%2525BA%2525D0%2525B8%252520%2525D1%252581%2525D1%252582%2525D1%252583%2525D0%2525BF%2525D0%2525B5%2525D0%2525BD%2525D0%2525B5%2525D0%2525B9%2525202.jpg

  • Лайк 2
Посилання на коментар
Поділитися на інших сайтах

Мне кажется, что глубина ступени в 200 мм будет маловата. Становиться на такую ступеньку очень некомфортно.

Если бы Вы нарисовали еще высоту между полом первого этажа и полом второго, то проще было бы прикинуть количество и высоту ступенек.

Есть ощущение, что забежных ступеней получается многовато. Это усложняет работу для самодельщика.

  • Лайк 1
Посилання на коментар
Поділитися на інших сайтах

Но что есть мой эскиз вида сверху?

На нем толком ничего не видно!

 

И запустил я невиданное творение Google - SketchUp!

 

И вот так просто за полдня (реально) смоделировал там свою лесенку.

Вот что у меня получилось (прошу не пинать - подлестничное пространство я не "доводил", так как оно все равно будет подшито):

 

%2525D0%25259B%2525D0%2525B5%2525D1%252581%2525D1%252582%2525D0%2525BD%2525D0%2525B8%2525D1%252586%2525D0%2525B0%252520%2525D0%2525BC%2525D0%2525BE%2525D0%2525B4%2525D0%2525B5%2525D0%2525BB%2525D1%25258C%2525202012_01_18_1%252520-%252520Top.jpg

 

%2525D0%25259B%2525D0%2525B5%2525D1%252581%2525D1%252582%2525D0%2525BD%2525D0%2525B8%2525D1%252586%2525D0%2525B0%252520%2525D0%2525BC%2525D0%2525BE%2525D0%2525B4%2525D0%2525B5%2525D0%2525BB%2525D1%25258C%2525202012_01_18_1%252520Persp1.jpg

 

%2525D0%25259B%2525D0%2525B5%2525D1%252581%2525D1%252582%2525D0%2525BD%2525D0%2525B8%2525D1%252586%2525D0%2525B0%252520%2525D0%2525BC%2525D0%2525BE%2525D0%2525B4%2525D0%2525B5%2525D0%2525BB%2525D1%25258C%2525202012_01_18_1%252520Persp3.jpg

 

%2525D0%25259B%2525D0%2525B5%2525D1%252581%2525D1%252582%2525D0%2525BD%2525D0%2525B8%2525D1%252586%2525D0%2525B0%252520%2525D0%2525BC%2525D0%2525BE%2525D0%2525B4%2525D0%2525B5%2525D0%2525BB%2525D1%25258C%2525202012_01_18_1%252520Persp2.jpg

 

%2525D0%25259B%2525D0%2525B5%2525D1%252581%2525D1%252582%2525D0%2525BD%2525D0%2525B8%2525D1%252586%2525D0%2525B0%252520%2525D0%2525BC%2525D0%2525BE%2525D0%2525B4%2525D0%2525B5%2525D0%2525BB%2525D1%25258C%2525202012_01_18_1%252520Persp4.jpg

 

%2525D0%25259B%2525D0%2525B5%2525D1%252581%2525D1%252582%2525D0%2525BD%2525D0%2525B8%2525D1%252586%2525D0%2525B0%252520%2525D0%2525BC%2525D0%2525BE%2525D0%2525B4%2525D0%2525B5%2525D0%2525BB%2525D1%25258C%2525202012_01_18_1%252520Persp5.jpg

 

%2525D0%25259B%2525D0%2525B5%2525D1%252581%2525D1%252582%2525D0%2525BD%2525D0%2525B8%2525D1%252586%2525D0%2525B0%252520%2525D0%2525BC%2525D0%2525BE%2525D0%2525B4%2525D0%2525B5%2525D0%2525BB%2525D1%25258C%2525202012_01_18_1%252520Right.jpg

 

%2525D0%25259B%2525D0%2525B5%2525D1%252581%2525D1%252582%2525D0%2525BD%2525D0%2525B8%2525D1%252586%2525D0%2525B0%252520%2525D0%2525BC%2525D0%2525BE%2525D0%2525B4%2525D0%2525B5%2525D0%2525BB%2525D1%25258C%2525202012_01_18_1%252520Back.jpg

 

И есть у меня еще несколько вопросов по моему будущему творению.

Буду признателен, если получу толковые советы, на базе предоставленной информации!

 

1. Геометрия, размеры, удобство.

Понимаю, что не фонтан в удобстве и размерах, но если кто-то сталкивался с подобными лестницами, как она будет в эксплуатации? Можно будет по ней нормально ходить без страха? Не опасно ли такое строить даже на даче?

 

2. Дерево.

Склоняюсь к буку (цена/качество), но беспокоит, что стоит она в кухонном помещении. Не будет ли буку плохо, если иногда будет влажновато? Еще беспокоит сезонность эксплуатации и зимние наезды с взрывной протопкой электрическими конвекторами по выходным/праздникам?

 

3. Общее мнение.

Просто хотелось бы услышать комментарии.

Посилання на коментар
Поділитися на інших сайтах

Мне кажется, что глубина ступени в 200 мм будет маловата. Становиться на такую ступеньку очень некомфортно.

Если бы Вы нарисовали еще высоту между полом первого этажа и полом второго, то проще было бы прикинуть количество и высоту ступенек.

Есть ощущение, что забежных ступеней получается многовато. Это усложняет работу для самодельщика.

 

Высота между черновыми полами 2,8 метра.

Самодельщик работы не боится, если она идет в угоду удобству и красоте. 8-)

Посилання на коментар
Поділитися на інших сайтах

1. как уже сказали 200 маловато. 250 хотя бы.

2.бук зимует вторую зиму. полет пока нормальный.

3. как по мне, то общее мнение как то не очень, если честно. по другому никак?

  • Лайк 1
Посилання на коментар
Поділитися на інших сайтах

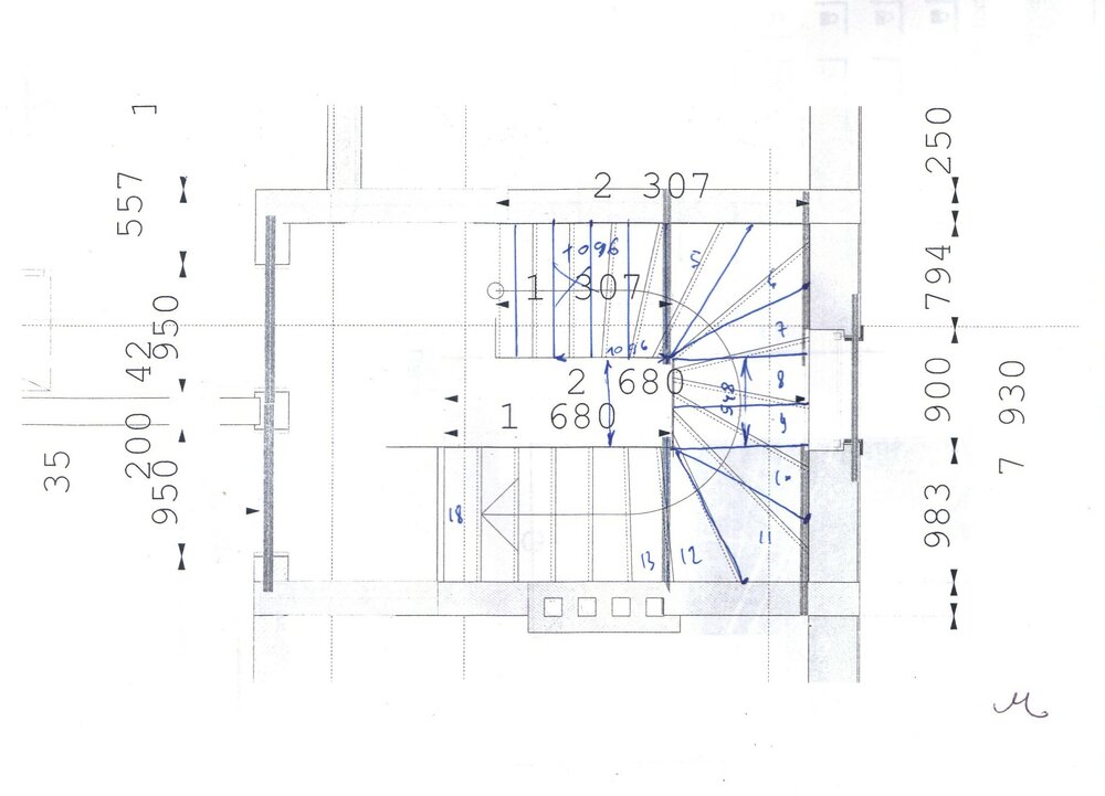
Недостаток программ в том что они "упрощенно", по формулам рисуют ступени. И вы получаете почти все ступени радиальными. Я себе лестницы (2 шт) рисовал и делал (1) в Архикаде. Было также - куча радиальных ступеней. Распечатайте свой чертеж , сделайте все ступени прямыми, кроме 3 поворотных, точки крепления наружные оставьте где есть, а внутренние сведите в одну точку ( в повороте лестницы).И делайте забежные ступени, так как 20 см ширины ступени - мало.

Для примера - мой эскиз. Синим цветом вручную исправленные линии ступенек после Архикада. Удачи.

floor2.thumb.jpg.ea6bcf30a29a30fdd01dc3aeb7013e96.jpg

Посилання на коментар
Поділитися на інших сайтах

1. как уже сказали 200 маловато. 250 хотя бы.

2.бук зимует вторую зиму. полет пока нормальный.

3. как по мне, то общее мнение как то не очень, если честно. по другому никак?

 

Да в том то и дело, что никак!

 

Размер в одном измерении (верх лестницы) подперт проемом в деревяном перекрытии из лаг, которое никак не расширить, так как на втором этаже дверь в комнату.

 

PB130002.JPG

 

И на первом этаже уже вплотную к коробке двери на веранду!

 

%2525D0%2525A4%2525D0%2525BE%2525D1%252582%2525D0%2525BE0505_%2525D0%2525BD%2525D0%2525BE%2525D0%2525B2%2525D1%25258B%2525D0%2525B9%252520%2525D1%252580%2525D0%2525B0%2525D0%2525B7%2525D0%2525BC%2525D0%2525B5%2525D1%252580.jpg

 

А что тут еще придумаешь?

Можно убрать одну ступеньку - сделать 13 вместо 14? Будет шире проступь (215 мм), но и увеличится высота ступени (215 мм)! Будет высоко шагать - хуже!

 

Хотя у меня проступь не совсем 200, а 230 с учетом забежки - ступени то перекрываются... это уже что-то...

Посилання на коментар
Поділитися на інших сайтах

Недостаток программ в том что они "упрощенно", по формулам рисуют ступени. И вы получаете почти все ступени радиальными. Я себе лестницы (2 шт) рисовал и делал (1) в Архикаде. Было также - куча радиальных ступеней. Распечатайте свой чертеж , сделайте все ступени прямыми, кроме 3 поворотных, точки крепления наружные оставьте где есть, а внутренние сведите в одну точку ( в повороте лестницы).И делайте забежные ступени, так как 20 см ширины ступени - мало.

 

:) Все было бы так просто! Но у меня на поворотных 4 получается! Вот в этом то и фокус! Поэтому, я по талмуду Косо нашел себе самый приемлемый вариант, а в нем именно и есть много косых ступеней.

И никакими программами я не пользовался, все сам считал и чертил, только что не в Архикаде, а в Визио, но это значения не имеет.

 

Господа, посмотрите эскиз (повторюсь)!

 

%2525D0%2525A0%2525D0%2525B0%2525D0%2525B7%2525D1%252580%2525D0%2525B5%2525D0%2525B7%252520%2525D0%2525BF%2525D0%2525BE%252520%2525D1%252585%2525D0%2525BE%2525D0%2525B4%2525D0%2525BE%2525D0%2525B2%2525D0%2525BE%2525D0%2525B9%252520%2525D0%2525BF%2525D0%2525BE%2525D0%2525BB%2525D0%2525BE%2525D1%252581%2525D0%2525B5.jpg

 

Все ступени забежные.

Забежка - 30 мм - что составляет 1/7 ширины проступи - оптимально по науке для удобства/безопаности.

 

Можно подступенек крепить за ступень, а не на ступень!

Тогда перекрытие ступеней увеличится до 50 мм.

И условная проступь будет 250 мм.

 

%2525D0%2525A0%2525D0%2525B0%2525D0%2525B7%2525D1%252580%2525D0%2525B5%2525D0%2525B7%252520%2525D0%2525BF%2525D0%2525BE%252520%2525D1%252585%2525D0%2525BE%2525D0%2525B4%2525D0%2525BE%2525D0%2525B2%2525D0%2525BE%2525D0%2525B9%252520%2525D0%2525BF%2525D0%2525BE%2525D0%2525BB%2525D0%2525BE%2525D1%252581%2525D0%2525B5%252520-%2525202%252520%2525D0%252592%2525D0%2525B0%2525D1%252580%2525D0%2525B8%2525D0%2525B0%2525D0%2525BD%2525D1%252582.jpg

 

Но можно ли делать такое большое перекрытие?

Посилання на коментар
Поділитися на інших сайтах

Лестница крутовата, 45 градусов.... опасна очень на спуске...

Увеличением свеса ступени - ничего не добьетесь, проступь все равно одинаковой остается. Нужно увеличивать линию хода, делать поворот на 180 градусов, или же "гусиный шаг".

Посилання на коментар
Поділитися на інших сайтах

Бук из всех пород дерева больше всего боится перепадов влажности и для сезонных дач не подходит. Возьмите сосновый щит в эпицентре 38 мм., закащите им порезку ступеней и тетивы по Вашим чертежам, а подступеньки готовые возьмите.
  • Лайк 3
Посилання на коментар
Поділитися на інших сайтах

Бук из всех пород дерева больше всего боится перепадов влажности и для сезонных дач не подходит. Возьмите сосновый щит в эпицентре 38 мм., закащите им порезку ступеней и тетивы по Вашим чертежам, а подступеньки готовые возьмите.

 

у меня есть лестница и сосна и бук, нормально себя чувствуют.

Посилання на коментар
Поділитися на інших сайтах

Наиболее комфортная глубина ступени 250 - 300 мм. Наиболее комфортная высота ступени 150 - 250 мм.

Ходить можно и по любым другим размерам. Но в этих диапазонах наиболее комфортно.

Далее. Чтобы сделать разворот на 180 градусов, надо 6 забежных. У Вас 90 градусов. Можно обойтись 3-мя забежными, остальное - прямые ступени. Так проще. И технологичнее.

Посилання на коментар
Поділитися на інших сайтах

у меня есть лестница и сосна и бук, нормально себя чувствуют.

 

Сейчас в продаже клееный бук, он для лестницы на сезонной даче, да еще на кухне, не подходит.

Посилання на коментар
Поділитися на інших сайтах

Бук из всех пород дерева больше всего боится перепадов влажности и для сезонных дач не подходит. Возьмите сосновый щит в эпицентре 38 мм., закащите им порезку ступеней и тетивы по Вашим чертежам, а подступеньки готовые возьмите.

 

Да сосна мягкая очень на ступени. Будут вмятины от твердого оставаться.

У меня в квартире на лоджиях пол из сосны (палуба) - есть нюансы с этим делом.

От каблуков так вообще вмятины получаются!

А на тетиву можно конечно! И обрабатывается проще!

Посилання на коментар
Поділитися на інших сайтах

Наиболее комфортной является лестница, где сумма двух высот подъема и ширины проступи лежит в пределах 610-650 мм
Посилання на коментар
Поділитися на інших сайтах

Сейчас в продаже клееный бук, он для лестницы на сезонной даче, да еще на кухне, не подходит.

 

Тетива только клеенная. Ступени есть цельные!

Посилання на коментар
Поділитися на інших сайтах

Сейчас в продаже клееный бук, он для лестницы на сезонной даче, да еще на кухне, не подходит.

 

 

Надежда, про сезонность я видел и в первом посте и все же повторюсь: две лестницы одна смерека, другая бук зимуют вторую зиму без отопления без последствий. пока.

Посилання на коментар
Поділитися на інших сайтах

Для крутой лестницы сделайте такое крепление ступеней, эта лестница удобней:

IMG_5521_40.thumb.jpg.420d1edefc7f8124f7afdde4aaf7eaa2.jpg

IMG_6504_40.thumb.jpg.78f240e666edba3c5ebe66dcb77c8295.jpg

Посилання на коментар
Поділитися на інших сайтах

Надежда, про сезонность я видел и в первом посте и все же повторюсь: две лестницы одна смерека, другая бук зимуют вторую зиму без отопления без последствий. пока.

 

У меня расслаивание клееного бука началось на третьем году ;)

  • Лайк 1
Посилання на коментар
Поділитися на інших сайтах

У меня расслаивание клееного бука началось на третьем году ;)

ну сосна/смерека от этого тоже не застрахована, ибо тоже клееная

Посилання на коментар
Поділитися на інших сайтах

Тетива только клеенная. Ступени есть цельные!

 

неззззя цельные ступени, 100% гарантия растрескивания на половине через 2-3 года

 

по самой лестнице - у Вас ОЧЕНЬ дорогой раскрой материала по таким размерам и параметрам, оч большие отходы

 

имхо, надо проектировать прямые ступени с парой забежных или думать о площадке

  • Лайк 1
Посилання на коментар
Поділитися на інших сайтах

Лестница крутовата, 45 градусов.... опасна очень на спуске...

Увеличением свеса ступени - ничего не добьетесь, проступь все равно одинаковой остается. Нужно увеличивать линию хода, делать поворот на 180 градусов, или же "гусиный шаг".

 

К сожалению, увеличивать линию хода некуда!

Как писал раньше, вверху и внизу упираемся в двери! :(

Это максимальная линия хода при варианте 1/4.

Если рассмотреть вариант 1/2 - поворот на 180 градусов, то есть другая проблема - перекрытие не вырезано - нет проема над головой - начиная с 4-ой ступени над головой меньше 2-ух метров, а на 6-ой ступени уже 1,6 метра! Вот так-то!

Вырезать его нельзя - там санузел! Да и пол на лагах! Их так просто не порезать!

 

Да и низ лестницы вылезет на середину помещения - вообще фигня.

 

Уж и не знаю, может вообще 2-ой этаж не пользовать... :)

 

По поводу дерева, обобщенно, возьму дуб и не буду париться! Скорее всего!

 

 

неззззя цельные ступени, 100% гарантия растрескивания на половине через 2-3 года

 

по самой лестнице - у Вас ОЧЕНЬ дорогой раскрой материала по таким размерам и параметрам, оч большие отходы

 

имхо, надо проектировать прямые ступени с парой забежных или думать о площадке

 

Нет места для площадки - напряг с ходовой линией! А площадка ее совсем съест!

Пара забежных не спасает!

Основная проблема - некуда удлинять ходовую линию!!!

 

Насчет раскроя - максимальные ступени с этого проекта умещаются в стандартную ступень 1200х300! Проверено электроникой!

А самые прямые даже в 800х300!

Пилить забежки по прямой я и сам могу - циркулярка имеется, более-менее прямые руки тоже :)

Тетивы тоже можно по прямой попилить!

 

Чем концепт отличается от реального изделия. Тем, что реальное изделие несколько проще с точки зрения изготовления и по внешнему виду. Но качество при этом остается на высоте. Мы обсуждаем концепт!

 

За инфу по цельним ступеням огромное спасибо! А то еще попался бы на это!

Посилання на коментар
Поділитися на інших сайтах

Просчитайте вариант "гусиный шаг". Если правильно рассчитать, то забежных ступеней можно избежать и получится 2 прямых марша с площадкой.
Посилання на коментар
Поділитися на інших сайтах

По поводу дерева, обобщенно, возьму дуб и не буду париться! Скорее всего!

 

А вот это по мужски!!! Правильное решение!!!

Посилання на коментар
Поділитися на інших сайтах

Просчитайте вариант "гусиный шаг". Если правильно рассчитать, то забежных ступеней можно избежать и получится 2 прямых марша с площадкой.

 

Ой... не люблю я этот гусиный шаг... приходилось ходить по нему несколько раз в жизни - одни выражения! А семейство меня за такое наверное ващще на горох в угол поставит! :)

А какой гемор с проектированием и изготовлением.... уууууу....

Подумаю я насчет гусиного шага еще 10 раз!

 

Как вариант смотрю на такое еще, не очень большой выигрыш, но есть!

 

Уменьшаем кол-во ступеней на 1.

Проступь будет 215 мм.

И высота ступени увеличиться до 215 мм.

 

Таким образом имеем шаг 215 * 2 + 215 = 645 мм (в текущем варианте шаг 600 мм).

 

Что-то это даст реально?

Или не стоит даже париться?

Не слишком ли высокая ступень будет 215 мм?

 

 

Шутку с дубом оценил! :)

Это просто, чтоб пока закрыть тему выбора дерева и не смешивать грешное с праведным. Выбор дерева - вопрос второй!

Хотя реально склоняюсь к дубу, тем более, что двери все под дубовым шпоном стоят уже.

Посилання на коментар
Поділитися на інших сайтах

Створіть акаунт або увійдіть у нього для коментування

Ви маєте бути користувачем, щоб залишити коментар

Створити акаунт

Зареєструйтеся для отримання акаунта. Це просто!

Зареєструвати акаунт

Увійти

Вже зареєстровані? Увійдіть тут.

Увійти зараз
×
×
  • Створити...