Acidius Опубліковано: 19 січня 2012 Поділитись Опубліковано: 19 січня 2012 Доброе время суток всем. Нужна помощь в планировке одноэтажника. Сам пытался, но как-то не лежит душа к тому, что сделал. Для начала, требования к дому 1. Один этаж 2. Три спальни от 14 до 20 кв.м. 3. Санузел и гардеробная при каждой спальни. 4. Кухня/столовая мин. 20 квадратов. Возможно предусмотреть лестницу в подвал (пока делают геологию, будет возможность - сделаю подвал.) В общем, пока это все. Во вложении, что сам напланировал))). Посилання на коментар Поділитися на інших сайтах More sharing options...
msmirnovma Опубліковано: 19 січня 2012 Поділитись Опубліковано: 19 січня 2012 Что сразу бросается в глаза: 1. Судя по размерам коридор занимает большую площадь дома 2. Много с/у по всему дому, т.е. придется тянуть коммуникации ко всем с/у. 3. 16 дверей)) - получается дом состоит из дверей+при маленьких площадях воруете у себя полезное пространство в спальнях 4. Крыша думаю будет сложная и дорогая Думаю нужно пересмотреть концепцию, посмотрите в этой ветке..есть много ссылок на интересные проекты Посилання на коментар Поділитися на інших сайтах More sharing options...
Alisa3 Опубліковано: 19 січня 2012 Поділитись Опубліковано: 19 січня 2012 А какая необходимость в санузлах в каждой спальне? Столько пространства "съедено". Какие приблизительно размеры дома собираетесь строить? Посилання на коментар Поділитися на інших сайтах More sharing options...
Acidius Опубліковано: 19 січня 2012 Автор Поділитись Опубліковано: 19 січня 2012 Спасибо за участие. Дом примерно 170 кв.м. Коридор по площади получился 17% от общей площади, не знаю может и много, но пока так напланировал. Ветку и проекты на разных сайтах смотрел - не вдохновило))) Санузлы при каждой спальни - 2-е разнополых детей (пока), сейчас живем в квартире - утром и вечером напрягает))) По дверям - в гардеробные и санузлы думал делать раздвижные. Окна и дымоходы еще и не смотрел - пока на стадии удачной планировки. Посилання на коментар Поділитися на інших сайтах More sharing options...
PanKotskiy Опубліковано: 19 січня 2012 Поділитись Опубліковано: 19 січня 2012 Спасибо за участие. Дом примерно 170 кв.м. Коридор по площади получился 17% от общей площади, не знаю может и много, но пока так напланировал. Ветку и проекты на разных сайтах смотрел - не вдохновило))) Санузлы при каждой спальни - 2-е разнополых детей (пока), сейчас живем в квартире - утром и вечером напрягает))) По дверям - в гардеробные и санузлы думал делать раздвижные. Окна и дымоходы еще и не смотрел - пока на стадии удачной планировки. на 4 человека - 2 санузла более чем достаточно. Смотрите чтобы потом не пожалеть, что место съедено, сантехника установлена ... а на толчках сидеть некому 2 Посилання на коментар Поділитися на інших сайтах More sharing options...
Alisa3 Опубліковано: 19 січня 2012 Поділитись Опубліковано: 19 січня 2012 Может хоть для детей сделать общий с/у с входом в него из обоих спален? Ну маленькие комнатки по 13 м однако. 1 Посилання на коментар Поділитися на інших сайтах More sharing options...
Artyomovets Опубліковано: 19 січня 2012 Поділитись Опубліковано: 19 січня 2012 а участок у вас какой? как там дом расположите? по санузлам - 2 на вашу семью хватит. и даже еще гости в очереди стоять не будут. Посилання на коментар Поділитися на інших сайтах More sharing options...
Acidius Опубліковано: 19 січня 2012 Автор Поділитись Опубліковано: 19 січня 2012 а участок у вас какой? как там дом расположите? по санузлам - 2 на вашу семью хватит. и даже еще гости в очереди стоять не будут. участок 24 м. Фасад, 102 в длину, фасад выходит на дорогу, с трех сторон соседи. Отступ от дороги планирую 10 метров. По санузлам - может два полноценных и хватит, плюс один просто туалет с рукомойником. Но выход из детских спален тогда нельзя делать - дети разнополые. Завтра попробую поиграть с планировкой, изменения выложу. Может кому-нибудь уже попадался проект с похожими требованиями, прошу ссылочку))) Посилання на коментар Поділитися на інших сайтах More sharing options...
Татьяна5 Опубліковано: 19 січня 2012 Поділитись Опубліковано: 19 січня 2012 Я насчитала 16 дверей 8-), дофига, как для такой площади разнополым детям можно без проблем делать один су, главное - две двери, и каждый изнутри может закрыть дверь второго 2 Посилання на коментар Поділитися на інших сайтах More sharing options...
Acidius Опубліковано: 19 січня 2012 Автор Поділитись Опубліковано: 19 січня 2012 Я насчитала 16 дверей 8-), дофига, как для такой площади разнополым детям можно без проблем делать один су, главное - две двери, и каждый изнутри может закрыть дверь второго По поводу закрыть изнутри- спасибо, сам как- то тормознул по этому варианту. К сожалению, кол-во дверей при таком варианте не изменится((( Надо наверно что- то более кардинально менять, но вот что???? Посилання на коментар Поділитися на інших сайтах More sharing options...
ionico Опубліковано: 19 січня 2012 Поділитись Опубліковано: 19 січня 2012 Гардеробные настораживают. Их ширина должна быть минимум 1500 мм. 600 мм. на шкаф с вешалками, 900 мм. на то, чтобы человек рядом с ними мог развернуться. Чердак будет? Или без него, сразу накрывать кровлей? Это я к тому, что настораживает конструкция перекрытий? Если чердак будет, то какие перекрытия? Посилання на коментар Поділитися на інших сайтах More sharing options...
Acidius Опубліковано: 19 січня 2012 Автор Поділитись Опубліковано: 19 січня 2012 Гардеробные настораживают. Их ширина должна быть минимум 1500 мм. 600 мм. на шкаф с вешалками, 900 мм. на то, чтобы человек рядом с ними мог развернуться. Чердак будет? Или без него, сразу накрывать кровлей? Это я к тому, что настораживает конструкция перекрытий? Если чердак будет, то какие перекрытия? Я наверно не в курсе настоящих гардеробных (без иронии), просто думаю, что в гардеробной шкаф не нужен - иначе смысл ее наличия. По перекрытию - наверно плиты - чердак холодный. Я прекрасно понимаю, что все здание надо рассматривать в комплексе ( учет стандартных размеров и т.д), но пока хочу прийти к устраиваемой планировке - может это будет вообще пляска вокруг круга, от него расходятся помещения. Поэтому и прошу помощи у содружества. Посилання на коментар Поділитися на інших сайтах More sharing options...
Acidius Опубліковано: 19 січня 2012 Автор Поділитись Опубліковано: 19 січня 2012 Кстати, по поводу дверей - посчитал двери в своей квартире : входная, из тамбура в прихожку, в ванную, туалет, кухня, в 4 комнаты, на две лоджии, на один балкон - итого 12!!!! Я в шоке Посилання на коментар Поділитися на інших сайтах More sharing options...
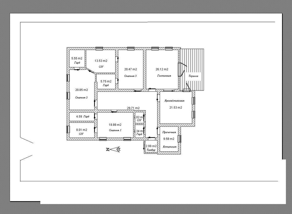
Acidius Опубліковано: 20 січня 2012 Автор Поділитись Опубліковано: 20 січня 2012 Поменял немного планировку с учетом замечаний. Вроде стало лучше. Но может кто-то предложит новую концепцию? Посилання на коментар Поділитися на інших сайтах More sharing options...
viksi_f Опубліковано: 20 січня 2012 Поділитись Опубліковано: 20 січня 2012 Поменял немного планировку с учетом замечаний. Вроде стало лучше. Но может кто-то предложит новую концепцию? Меня сейчас, наверное, архитекторы и любители с/у в спальнях закидают тапками... но выскажу свое мнение. Мне не нравится идея с выходами из с/у в спальни, т.к. с/у - это влажность, необходимость делать хорошую систему вентиляции - шум, или проветривать - опять же влажность в спальне. Если не сделать все правильно, может пойти грибок (плесень), что вообще не полезно. Мое имхо - сделать между двумя спальнями 1 большой с/у с ванной и 1 дополнительный туалет с рукомойником. Не вижу проблем выйти из комнаты и зайти в с/у. Если уж так сильно хочется сделать вход из спальни - предусмотреть что-то типа тамбура, в который выходят двери из спален, а уже из тамбура вход в с/у. В таком случае не придется изнутри закрывать чью-то дверь (можно ж и забыть закрыть, а потом открыть ). Второй блок с/у (тоже из двух с/у) я бы разместила между еще одной спальней и кухней/столовой/гостиной. В таком варианте меньше тянуть коммуникаций - всего 2 сантех.стояка получится. 3 Посилання на коментар Поділитися на інших сайтах More sharing options...
Artyomovets Опубліковано: 20 січня 2012 Поділитись Опубліковано: 20 січня 2012 трубы по всему дому - это некомильфо, как по мне... и тут даже не в стоимости материалов и работы. с другой стороны, проложив их под полом получим теплые полы 1 Посилання на коментар Поділитися на інших сайтах More sharing options...
viksi_f Опубліковано: 20 січня 2012 Поділитись Опубліковано: 20 січня 2012 Кстати, можно еще сделать таким образом - между двумя спальнями 2 с/у расположенных рядом и имеющих выходы в комнаты и коридор (если нужно). Т.е. смысл в том, чтобы опять таки делать как можно меньше стояков - не располагать с/у в каждой комнате отдельно, а делать их рядом, по 2 с/у вместе (полноценные, с душкабиной или ванной), но для каждого персональный. Дизайн можно сделать индивидуально для девочки и для мальчика. То же между родительской спальней и кухней/столовой/гостиной - при этом возле кухни с/у будет гостевым, в нем достаточно туалета и рукомойника. Еще, обратите внимание, что кухню нельзя располагать в центре (насколько я помню) - не феншуйно. Конечно, по количеству сантехники это будет капец. Посилання на коментар Поділитися на інших сайтах More sharing options...
vopros'nik Опубліковано: 20 січня 2012 Поділитись Опубліковано: 20 січня 2012 У нас семья 4 человека: я с мужем и двое взрослых детей разнополых 16 и 20 лет. В квартире 2 санузла, в очереди никто не стоит. Да и не фэйшуйно чтоб спальни граничили с с/у. Поверьте, вам 2 с/у с головой хватит. 1 Посилання на коментар Поділитися на інших сайтах More sharing options...
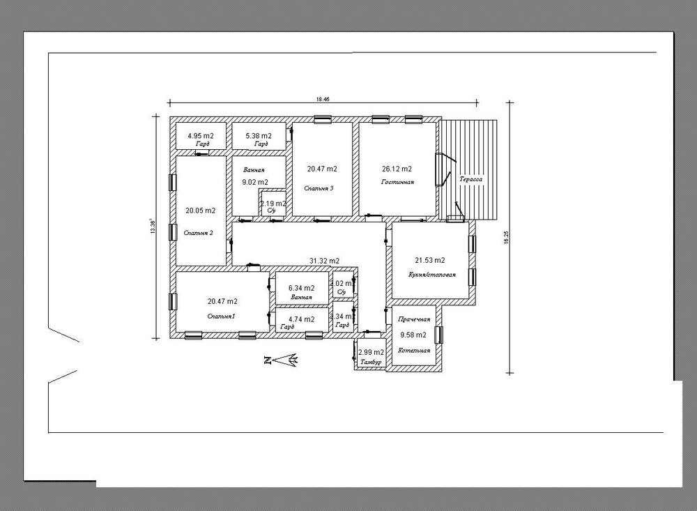
Acidius Опубліковано: 20 січня 2012 Автор Поділитись Опубліковано: 20 січня 2012 Поменял планировку. И еще вопрос - для лестницы 6 квадратов хватит? Посилання на коментар Поділитися на інших сайтах More sharing options...
viksi_f Опубліковано: 20 січня 2012 Поділитись Опубліковано: 20 січня 2012 У нас семья 4 человека: я с мужем и двое взрослых детей разнополых 16 и 20 лет. В квартире 2 санузла' date=' в очереди никто не стоит. Да и не фэйшуйно чтоб спальни граничили с с/у. Поверьте, вам 2 с/у с головой хватит.[/quote'] У нас тоже 4 чел., двое взрослых детей - нам не всегда хватает 2 с/у (один очень любит подолгу плескаться, мы его туалетным утенком зовем :D). 1 Посилання на коментар Поділитися на інших сайтах More sharing options...
Acidius Опубліковано: 20 січня 2012 Автор Поділитись Опубліковано: 20 січня 2012 У нас тоже 4 чел., двое взрослых детей - нам не всегда хватает 2 с/у (один очень любит подолгу плескаться, мы его туалетным утенком зовем :D). У меня жена с дочкой по 40 минут могут в ванне сидеть. Пусть каждая в своей ванне плескается 1 Посилання на коментар Поділитися на інших сайтах More sharing options...
viksi_f Опубліковано: 20 січня 2012 Поділитись Опубліковано: 20 січня 2012 Поменял планировку. Может еще в нижней спальне поменять местами гардеробную и ванную, чтобы окно в ванной было? Посилання на коментар Поділитися на інших сайтах More sharing options...
Acidius Опубліковано: 20 січня 2012 Автор Поділитись Опубліковано: 20 січня 2012 Может еще в нижней спальне поменять местами гардеробную и ванную, чтобы окно в ванной было? Точно, спасибо - протупил... 1 Посилання на коментар Поділитися на інших сайтах More sharing options...
ionico Опубліковано: 20 січня 2012 Поділитись Опубліковано: 20 січня 2012 Поменял планировку. И еще вопрос - для лестницы 6 квадратов хватит? Смотря, какая глубина подвала... и смотря какое его назначение. Если просто погреб, то можно вообще стремянку. 1 Посилання на коментар Поділитися на інших сайтах More sharing options...
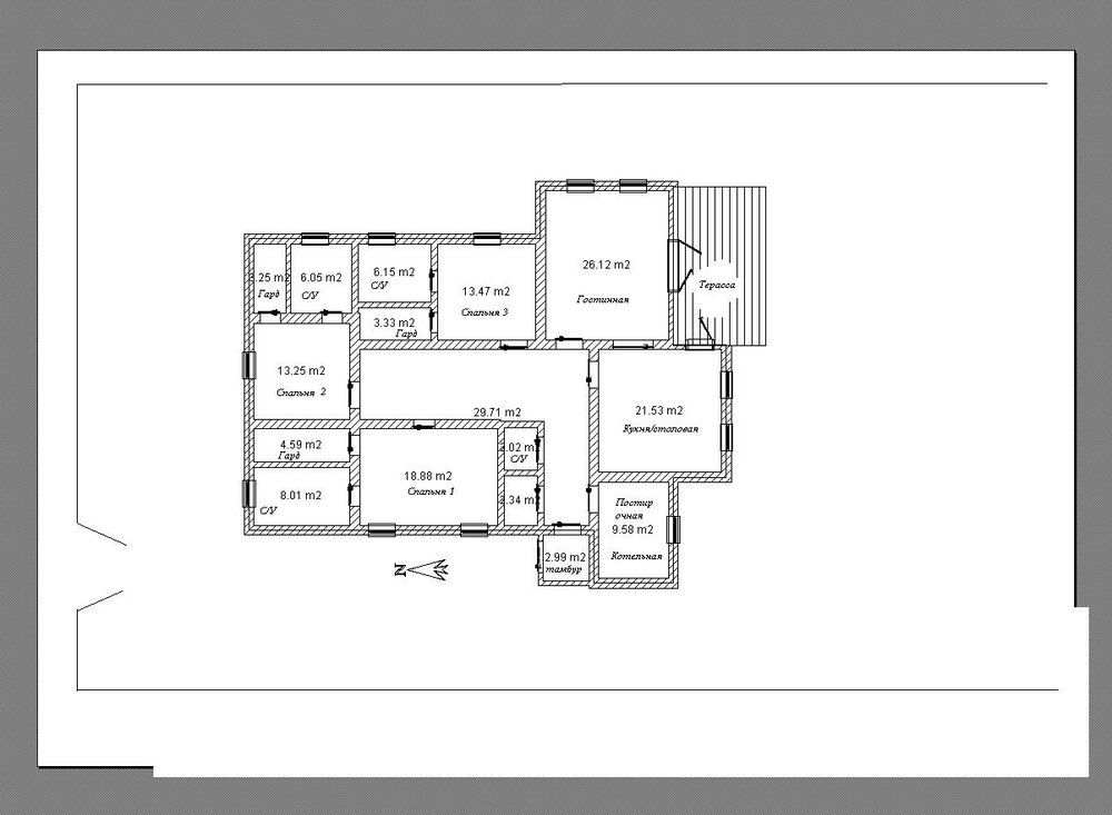
Acidius Опубліковано: 20 січня 2012 Автор Поділитись Опубліковано: 20 січня 2012 Смотря, какая глубина подвала... и смотря какое его назначение. Если просто погреб, то можно вообще стремянку. Глубина - 2,50. Планирую под 50-60 квадратов. Назначение - мастерская, плюс холодильная камера и для хранения овощей и вина Посилання на коментар Поділитися на інших сайтах More sharing options...
Рекомендовані повідомлення
Створіть акаунт або увійдіть у нього для коментування
Ви маєте бути користувачем, щоб залишити коментар
Створити акаунт
Зареєструйтеся для отримання акаунта. Це просто!
Зареєструвати акаунтУвійти
Вже зареєстровані? Увійдіть тут.
Увійти зараз