Vavilеn Опубліковано: 10 лютого 2012 Поділитись Опубліковано: 10 лютого 2012 Подскажите Такую вещь. Есть участок: (ссылка на изображение устарела) Стороны А и Б 25 метров, по ним соседи, точнее сосед Б есть (но 95% будет ещё продавать, но по факту - есть хозяин земли и госакт), соседа А ещё нет (нет госакта, но он скоро будет, достоверно знаю, что будет дальше нарезка). Стороны В и Г 40 метров, по ним дороги по 12 метров шириной (в смысле до соседа через дорогу - 12 метров, у меня получается два длинных фасада на дороги). Участок СЖД, в межах населённого пункта, ну т.е. обычный, не садоводство. На рисунке обозначен планируемый дом с отступом в 6 метров от дорог слева и справа, с этим мне понятно. Вопрос: если я хочу построить на участке строения типа гараж-мастерская и типа баня (и то и другое с фундаментом, в один этаж, возможно одной общей постройкой) - сколько мне надо будет отступить от стороны Б,В,Г ? И какое расстояние от дома должно быть, от моего ? У дома планируются большие (ну не меньше метра) свесы крыши (шале), это я к вопросу ещё - от какого места мерять, или от края крыши или от фундамента-стен ? Также интересует, могу ли я выпустить ворота гаража на межу (на сторону Г в частности). Наверное обсуждалось уже, прошу прощения, но от чтения ДБН у меня понимания вопроса не прибавляется, но появляются суициидальные настроения какие-то, ничего не могу понять, что там написано Посилання на коментар Поділитися на інших сайтах More sharing options...
tomtit Опубліковано: 1 березня 2012 Поділитись Опубліковано: 1 березня 2012 ТС, если Вы не против, добавлю в эту тему ещё свой вопрос. Почему нам в архитектуре сказали, что гараж нельзя ставить на одной линии с домом, как в эскизе (1 фото). В ДБН 360-92 написано: 3.24* У містах і селищах міського типу на присадибних ділянках при дотриманні санітарних протипожежних і будівельних норм можуть бути розміщені господарські будівлі та гаражі, вбудовані у житловий будинок, прибудовані до нього, або у вигляді окремої будівлі. ............... Розміщення господарських будівель по лінії забудови житловими будинками не допускається. Розміщення гаражів слід передбачати переважно вбудованими або прибудованими до житлових будинків по лінії забудови або в глибині ділянки. Неужели это вердикт? И гараж рядышком с домом ставить нельзя? А навес + маленькое помещение можно? (2 фото) Навес - это же не гараж. А хоз. помещение уже, получается, не на одной линии с домом. Не хочется выдвигать гараж вперёд и получать вместо него северную "мёртвую зону". Посилання на коментар Поділитися на інших сайтах More sharing options...
Koskos Опубліковано: 1 березня 2012 Поділитись Опубліковано: 1 березня 2012 (змінено) Подскажите Такую вещь. Есть участок: ... Стороны А и Б 25 метров, по ним соседи, точнее сосед Б есть (но 95% будет ещё продавать, но по факту - есть хозяин земли и госакт), соседа А ещё нет (нет госакта, но он скоро будет, достоверно знаю, что будет дальше нарезка). Стороны В и Г 40 метров, по ним дороги по 12 метров шириной (в смысле до соседа через дорогу - 12 метров, у меня получается два длинных фасада на дороги). Участок СЖД, в межах населённого пункта, ну т.е. обычный, не садоводство. На рисунке обозначен планируемый дом с отступом в 6 метров от дорог слева и справа, с этим мне понятно. Вопрос: если я хочу построить на участке строения типа гараж-мастерская и типа баня (и то и другое с фундаментом, в один этаж, возможно одной общей постройкой) - сколько мне надо будет отступить от стороны Б,В,Г ? И какое расстояние от дома должно быть, от моего ? У дома планируются большие (ну не меньше метра) свесы крыши (шале), это я к вопросу ещё - от какого места мерять, или от края крыши или от фундамента-стен ? Также интересует, могу ли я выпустить ворота гаража на межу (на сторону Г в частности)... Вы, скорее всего, один из тех застройщиков, которые, воодушевившись новыми правилами строительства, рисуете проект своего дома карандашом на коленке в школьной тетради...Я это к тому, что если бы вам проект делал нормальный специалист, то все бы ваши вопросы отпали сами по себе. Читайте нормы - там все написано. Стена хозпостройки (гаража) должна на 1 м (минимум) отступать от границы участка для того что-бы у вас была возможность обслуживать (ремонтировать) эту стену. Змінено 1 березня 2012 користувачем apxitektop П. 13 Правил Посилання на коментар Поділитися на інших сайтах More sharing options...
tomtit Опубліковано: 1 березня 2012 Поділитись Опубліковано: 1 березня 2012 Из того же ДБНа: 3.25*Для догляду за будівлями і здійснення їх поточного ремонту відстань до межі сусідньої ділянки від найбільш виступної конструкції стіни треба приймати не менше 1,0 м. При цьому повинно бути забезпечене влаштування необхідних інженерно-технічних заходів, що запобігатимуть стіканню атмосферних опадів з покрівель та карнизів будівель на територію суміжних ділянок. 3.25а* Відстань між житловими будинками та господарськими будівлями і спорудами слід приймати відповідно до санітарних норм за таблицею 3.2а, але не менше протипожежних норм згідно з таблицею 1 додатка 3.1. Таблиця 3.2а*......... Примітка 1. Господарські будівлі і гаражі сусідніх ділянок допускається об'єднувати. 3.30 Спорудження надвірних господарських будівель по лінії забудови вулиць і проїздів забороняється, їх треба зводити у глибині садиби з дотриманням санітарних і протипожежних вимог. Примітка. Допускається розміщення гаража по лінії забудови за умови погодження з місцевими органами архітектури і містобудування. У меня ещё такой глупый вопрос. Лінія забудови - это линия, строго по которой надо поставить фасад дома, и "засунуть" дом вглубь участка уже нельзя? Или главное не залезть вперёд, а вглубь участка можно? Посилання на коментар Поділитися на інших сайтах More sharing options...
NAVIN Опубліковано: 1 березня 2012 Поділитись Опубліковано: 1 березня 2012 У меня ещё такой глупый вопрос. Лінія забудови - это линия, строго по которой надо поставить фасад дома, и "засунуть" дом вглубь участка уже нельзя? Или главное не залезть вперёд, а вглубь участка можно? То-же интересно. Посилання на коментар Поділитися на інших сайтах More sharing options...
Vavilеn Опубліковано: 1 березня 2012 Автор Поділитись Опубліковано: 1 березня 2012 Вы, скорее всего, один из тех застройщиков, которые, воодушевившись новыми правилами строительства, рисуете проект своего дома карандашом на коленке в школьной тетради...Я это к тому, что если бы вам проект делал нормальный специалист, то все бы ваши вопросы отпали сами по себе. А вы, скорее всего, капитан Очевидность ? Я не считаю для себя возможным прийти к специалисту со словами "Я совершенно не представляю, чего я хочу - сделайте мне ...", именно с этим связаны мои вопросы. Я хочу хорошо подумать и понять, что мне надо, в процессе обдумывания вариантов возникают подобные вопросы - ну не удавиться же мне, и не нанимать штатного архитектора, чтоб он мне рядом сидел месяц, второй и на вопросы мои отвечал ... Специалист это увидит и оформит после моего вердикта "Вот, это то, что мне надо" - вот тогда специалист и проверит, и исправит, если надо будет. p.s. Уже ж и написал, что "прошу прощения, но от чтения ДБН у меня понимания вопроса не прибавляется" - но нет, всё равно нашелся кто-то, кто не в состоянии промолчать. Не учите жить - и вам не скажут, куда удти ... ну чего просто не промолчать, как сделали остальные 2 Посилання на коментар Поділитися на інших сайтах More sharing options...
tomtit Опубліковано: 1 березня 2012 Поділитись Опубліковано: 1 березня 2012 Уже ж и написал, что "прошу прощения, но от чтения ДБН у меня понимания вопроса не прибавляется" - но нет, всё равно нашелся кто-то, кто не в состоянии промолчать. Не учите жить - и вам не скажут, куда удти ... ну чего просто не промолчать, как сделали остальные Надеюсь, Вы это не обо мне.. Я тоже пытаюсь разобраться. ИМХО. Вам гараж, если хотите, наверное можно выпустить на сторону Г, на межу, но двери гаража не должны открываться наружу, а также никаких свесов крыши за пределы участка не должно быть. Вообще это и дома, и всех построек касается - расстояния меряются от стен, но проекция по свесам крыши не должна пересекать границу участка (если отступаете метр, то свесы крыши не более метра в проекции), так же водоотвод с крыши должен быть, чтобы соседям или на дорогу не лилась вода. Посилання на коментар Поділитися на інших сайтах More sharing options...
Vavilеn Опубліковано: 1 березня 2012 Автор Поділитись Опубліковано: 1 березня 2012 Надеюсь, Вы это не обо мне.. Я тоже пытаюсь разобраться. Да нет, я же процитировал, по какому поводу я С гаражом я разобрался давно, просто ... ну ладно ещё, когда спрашиваешь то, на что масса народу тут знает ответ, но молчат - ну и ладно, мне же никто не обязан ничего отвечать, я прекрасно это понимаю ... но когда начинаются всякие нравоучения и предположения про коленку, карандашик, посылания в поиск или к специалисту - это малость злит Посилання на коментар Поділитися на інших сайтах More sharing options...
apxitektop Опубліковано: 1 березня 2012 Поділитись Опубліковано: 1 березня 2012 Подскажите Такую вещь. Есть участок: ... Вопрос: если я хочу построить на участке строения типа гараж-мастерская и типа баня (и то и другое с фундаментом, в один этаж, возможно одной общей постройкой) - сколько мне надо будет отступить от стороны Б,В,Г ? И какое расстояние от дома должно быть, от моего ? У дома планируются большие (ну не меньше метра) свесы крыши (шале), это я к вопросу ещё - от какого места мерять, или от края крыши или от фундамента-стен ? Также интересует, могу ли я выпустить ворота гаража на межу (на сторону Г в частности). 1. Минимальный отступ от границ - 1 м (если нет поблизости соседских построек). 2. Расстояние между строениями на одном участке не нормируются, но все же пожарный разрыв не зря придуман (ИМХО). Мінімальні протипожежні розриви між житловими будинками і господарськими будівлями у межах однієї присадибної ділянки не нормуються. 3. Відстані між будинками і спорудами приймаються у світлі між зовнішніми стінами або іншими конструкціями. За наявності конструкцій будинків і споруд, що виступають більше, як на 1 м, виготовлених із спалимих матеріалів, приймається відстань між цими конструкціями. 4. Допускається розміщення гаража по лінії забудови за умови погодження з місцевими органами архітектури і містобудування. Т.е. надо смотреть, что у Вас с красными линиями и с линиями застройки. Тут одна дорога - в местную архитектуру. На деле, все очень сильно зависит от местной архитектуры. Учитывая, что у Вас с двух сторон проезды/дороги, у Вас может быть много ограничений по застройке... Все ИМХО. Добавлено через 7 минут ТС, если Вы не против, добавлю в эту тему ещё свой вопрос. Почему нам в архитектуре сказали, что гараж нельзя ставить на одной линии с домом, как в эскизе (1 фото). В ДБН 360-92 написано: 3.24* У містах і селищах міського типу на присадибних ділянках при дотриманні санітарних протипожежних і будівельних норм можуть бути розміщені господарські будівлі та гаражі, вбудовані у житловий будинок, прибудовані до нього, або у вигляді окремої будівлі. ............... Розміщення господарських будівель по лінії забудови житловими будинками не допускається. Розміщення гаражів слід передбачати переважно вбудованими або прибудованими до житлових будинків по лінії забудови або в глибині ділянки. Неужели это вердикт? И гараж рядышком с домом ставить нельзя? А навес + маленькое помещение можно? (2 фото) Навес - это же не гараж. А хоз. помещение уже, получается, не на одной линии с домом. Не хочется выдвигать гараж вперёд и получать вместо него северную "мёртвую зону". Не вердикт, ИМХО, но надо смотреть, где там красные линии (все ли у Вас и правильно ли нанесены) и где линии застройки "проходят". Буквально недавно в Бориспольском подписал стройпаспорт, где по одной линии с домом (линии застройки) стоит гостевой дом. Навес (если не капитальный) наносить на стройпаспорт не обязательно, и его возведение не является самостроем. Добавлено через 3 минуты У меня ещё такой глупый вопрос. Лінія забудови - это линия, строго по которой надо поставить фасад дома, и "засунуть" дом вглубь участка уже нельзя? Или главное не залезть вперёд, а вглубь участка можно? Лінії регулювання забудови - визначені в містобудівній документації межі розташування будинків і споруд відносно червоних ліній, меж окремих земельних ділянок, природних меж та інших територій; ИМХО, главное не "залезать вперед". Опять таки, подтверждается "свежим" стройпаспортом. 5 Посилання на коментар Поділитися на інших сайтах More sharing options...
tomtit Опубліковано: 2 березня 2012 Поділитись Опубліковано: 2 березня 2012 Навес (если не капитальный) наносить на стройпаспорт не обязательно, и его возведение не является самостроем. А есть какие-то критерии "капитальности" навеса? Какие-то стаканы под столбы, то бишь фундамент, ставить ведь всё равно надо. Получается, с места на место краном переставить нельзя - значит, капитальное сооружение.. Или нет? Кстати, есть у нас на участке такое вот недоразумение (во вложении), понятное дело, временное. Фундамента там нет, естественно, НО. Даже не спрашивайте, зачем муж это сделал, это одному ему известная тайна, но там внутри есть бетонная стяжка. Это хоть не будет считаться самостроем при оформлении стройпаспорта? Посилання на коментар Поділитися на інших сайтах More sharing options...
apxitektop Опубліковано: 2 березня 2012 Поділитись Опубліковано: 2 березня 2012 А есть какие-то критерии "капитальности" навеса? Какие-то стаканы под столбы, то бишь фундамент, ставить ведь всё равно надо. Получается, с места на место краном переставить нельзя - значит, капитальное сооружение.. Или нет? Кстати, есть у нас на участке такое вот недоразумение (во вложении), понятное дело, временное. Фундамента там нет, естественно, НО. Даже не спрашивайте, зачем муж это сделал, это одному ему известная тайна, но там внутри есть бетонная стяжка. Это хоть не будет считаться самостроем при оформлении стройпаспорта? Однозначного ответа нет. Важные критерии - неразрывная связь с землей; перемещение объекта невозможно или приводит к существенному обесцениванию объекта; временный характер. Грубо говоря, металлокаркас (забетонирован в землю) обшит профнастилом - навес, временное строение и не считается самостроем. Если возведе из кирпича на фундаменте с ограждающими конструкциями, то, скорее всего, признают объектом недвижимости. То, что у Вас на участке, могут назвать сараем Но, скорее всего, внимания не обратят. В связи с тем, что вопрос неоднозначный, один инспектор может прицепиться и говорить, что это самострой, а другой - скажет, что это временное сооружение (а значит нет капитальности). С подобной ситуацией уже сталкивался, поэтому рекомендую всем, кто уже знает, что будет на строить участке, наносить эти объекты сразу (чтобы избежать возможных споров). 3 Посилання на коментар Поділитися на інших сайтах More sharing options...
Vavilеn Опубліковано: 2 березня 2012 Автор Поділитись Опубліковано: 2 березня 2012 поэтому рекомендую всем, кто уже знает, что будет на строить участке, наносить эти объекты сразу (чтобы избежать возможных споров). Подскажите, пожалуйста, а как обстоит на практике такой момент: к примеру я хочу баню и гараж, отдельно, я представляю в каком месте и какого размера, но я не рвусь строить данные помещения сразу с домом (ну банально по деньгам не рвусь). Как быть в таком случае - вписывать ли их сразу в стройпаспорт, или если я их туда внесу - я буду должен их построить на момент ввода в эксплуатацию, не позже ? Посилання на коментар Поділитися на інших сайтах More sharing options...
apxitektop Опубліковано: 2 березня 2012 Поділитись Опубліковано: 2 березня 2012 Подскажите, пожалуйста, а как обстоит на практике такой момент: к примеру я хочу баню и гараж, отдельно, я представляю в каком месте и какого размера, но я не рвусь строить данные помещения сразу с домом (ну банально по деньгам не рвусь). Как быть в таком случае - вписывать ли их сразу в стройпаспорт, или если я их туда внесу - я буду должен их построить на момент ввода в эксплуатацию, не позже ? ИМХО, обязательно вписывать. А вот как быть с вводом в эксплуатацию: это таки вопрос... Т.е. ввести дом без этих построек Вы сможете, а вот как потом (достроив их) ввести все в эксплуатацию, я пока не знаю. В принципе, если учесть, что у Вас останутся стройпаспорт и уведомление, то можно сделать новый техпаспорт, где БТИ нанесет все строения, и Вы снова подадите документы Декларацию о готовности и на Свидетельство. Но это пока мысли вслух. 1 Посилання на коментар Поділитися на інших сайтах More sharing options...
Julla Опубліковано: 3 березня 2012 Поділитись Опубліковано: 3 березня 2012 apxitektop Спасибо Вам огромное!:roll: За Ваше терпение и работу ... ибо ...Наверное обсуждалось уже, прошу прощения, но от чтения ДБН у меня понимания вопроса не прибавляется, но появляются суициидальные настроения какие-то, ничего не могу понять, что там написано Это и обо мне тоже! Читаю эту тему... соседние... и возникает желание либо себе верёвку намылить, либо "АК з-під стріхи дістати" А всего-то хочется пристроить кухоньку к существующему дому, снеся при этом 50-ти летнюю трухлявую деревянную бытовку (не на фундаменте), которая сейчас играет роль кухни. Так и бытовку снести низзззя (в плане есть) и кухоньку пристроить к дому тоже низззя Можно! Но пройди сначала все круги ада! Посилання на коментар Поділитися на інших сайтах More sharing options...
valent75 Опубліковано: 4 березня 2012 Поділитись Опубліковано: 4 березня 2012 1. Минимальный отступ от границ - 1 м (если нет поблизости соседских построек). Читаю ветку по оформлению стройпаспорта, народ пишет что везде требуют минимум 4 метра от границы с соседями. Так где же истина, 1м или 4м минимально допустимо? Интересует в контексте стройпаспорта, примут 1м или нет (конечно, если у соседа нет строений рядом)? Посилання на коментар Поділитися на інших сайтах More sharing options...
Zak Опубліковано: 4 березня 2012 Поділитись Опубліковано: 4 березня 2012 Читаю ветку по оформлению стройпаспорта, народ пишет что везде требуют минимум 4 метра от границы с соседями. Так где же истина, 1м или 4м минимально допустимо? Интересует в контексте стройпаспорта, примут 1м или нет (конечно, если у соседа нет строений рядом)? Если сосед уже построился, то необходимо отступить противопожарный разрыв от его дома (6-8 м), но не менее 1м от забора. К примеру, если сосед построился в 8-ми метрах от забора, то можно строится в 1-м метре. Если, наоборот сосед построился в 1-м метре, то от забора нужно отступать 5-7 м. Если у соседа построек нет, то в основном требуют отступить 4 м, так сказать поделить противопожарный разрыв по братски. Посилання на коментар Поділитися на інших сайтах More sharing options...
apxitektop Опубліковано: 4 березня 2012 Поділитись Опубліковано: 4 березня 2012 Читаю ветку по оформлению стройпаспорта, народ пишет что везде требуют минимум 4 метра от границы с соседями. Так где же истина, 1м или 4м минимально допустимо? Интересует в контексте стройпаспорта, примут 1м или нет (конечно, если у соседа нет строений рядом)? Есть требования ДБН, а есть требования архитектуры, а есть красные линии + линии застройки - все это "влияет" на минимальное расстояние. ИМХО, если у соседа строений нет, то "Для догляду за будівлями і здійснення їх поточного ремонту відстань до межі сусідньої ділянки від найбільш виступної конструкції стіни треба приймати не менше 1,0 м. При цьому повинно бути забезпечене влаштування необхідних інженерно-технічних заходів, що запобігатимуть стіканню атмосферних опадів з покрівель та карнизів будівель на територію суміжних ділянок." А согласуют ли Вам 1 м, это зависит от перечисленного в первом предложении. Посилання на коментар Поділитися на інших сайтах More sharing options...
Ларушка Опубліковано: 11 березня 2012 Поділитись Опубліковано: 11 березня 2012 Если сосед уже построился, то необходимо отступить противопожарный разрыв от его дома (6-8 м), но не менее 1м от забора. К примеру, если сосед построился в 8-ми метрах от забора, то можно строится в 1-м метре. Если, наоборот сосед построился в 1-м метре, то от забора нужно отступать 5-7 м. Если у соседа построек нет, то в основном требуют отступить 4 м, так сказать поделить противопожарный разрыв по братски. У меня ширина участка 12 м., старый фонд, сосед слева построился по меже, сосед справа максимум 4 метра от забора. У нас всех узкие участки. У меня на участке стоит небольшой узаконенный дом 7,4м. ширина 1954г. постройки посредине, хочу сделать реконструкцию или снести и строить новый, но не знаю что с отступами делать. Строения соседей тоже старые. Дом планирую шириной 9м. По нормам на моем участке вообще строится нельзя:shock::shock:. Кто с таким сталкивался ПОМОГИТЕ, к архитектору пока не обращалась т.к. когда видят что пришел лох у нас на деньги раскрутят по полной программе. Может надо как то к старому дому строительство привязать, но не знаю на основании каких законов. Помогите пожалуйста. Посилання на коментар Поділитися на інших сайтах More sharing options...
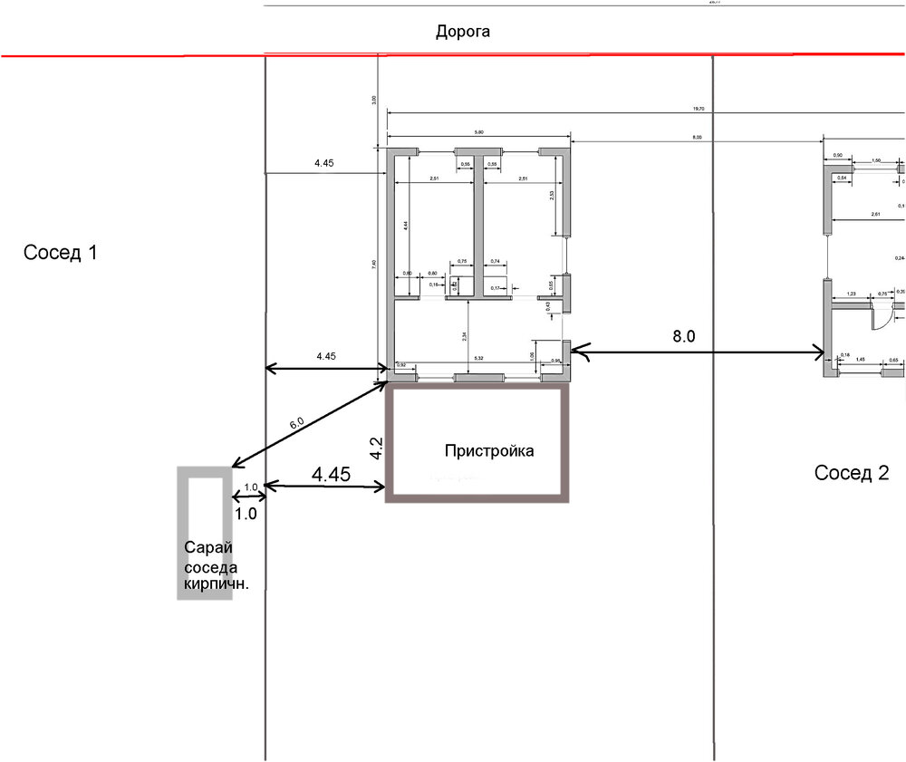
Julla Опубліковано: 11 березня 2012 Поділитись Опубліковано: 11 березня 2012 (змінено) Здравствуйте! Прошу вашей помощи! Есть дачка в старом садовом товариществе. Форма и наполнение - стандартные для последней четверти прошлого века. Хотелось бы к старости :D добавить себе немного комфорта в виде пристроенных к дому кухоньки и санузла. Но где-то там за забором маячит гацкий соседский сарай Можно ли ТАК пристроить? Обязательно ли изголяться с формой стен, чтобы между углами строений оставалось 6м? Не хочется, аднака!:D Угол пристройки срезать? :D Подниму вопрос Спасибо за ответ! Змінено 22 березня 2012 користувачем apxitektop 1 Посилання на коментар Поділитися на інших сайтах More sharing options...
vitalya_ Опубліковано: 19 березня 2012 Поділитись Опубліковано: 19 березня 2012 Планирую строить на частном участке гараж,интересует,нужен ли проект?В стройпаспорте кроме дома на участке больше ничего нет.Как поступить,начать самострой или побегать оформить проект, все разрешения и сколько это приблизительно стоит. Посилання на коментар Поділитися на інших сайтах More sharing options...
lagish Опубліковано: 19 березня 2012 Поділитись Опубліковано: 19 березня 2012 apxitektop Спасибо Вам огромное!:roll: За Ваше терпение и работу ... ибо Это и обо мне тоже! Читаю эту тему... соседние... и возникает желание либо себе верёвку намылить, либо "АК з-під стріхи дістати" А всего-то хочется пристроить кухоньку к существующему дому, снеся при этом 50-ти летнюю трухлявую деревянную бытовку (не на фундаменте), которая сейчас играет роль кухни. Так и бытовку снести низзззя (в плане есть) и кухоньку пристроить к дому тоже низззя Можно! Но пройди сначала все круги ада! Моя ситуация-один к одному!Начальник МБТИ,практически свой человек.С его слов:"хочешь головной боли иди законным путём через архитектуру и т.д.Хочешь пристройку-строй и узаканивай(готовую) через суд."Я уже наточил лопату рыть траншею под фундамент,как тут выступление гл.архитектора на местном ТВ:"с самостроем одни проблемы ни газ подлючить и т.д.Объвили месячник по легализации самостроя Занимаю очередь к архитектору... Посилання на коментар Поділитися на інших сайтах More sharing options...
apxitektop Опубліковано: 22 березня 2012 Поділитись Опубліковано: 22 березня 2012 У меня ширина участка 12 м., старый фонд, сосед слева построился по меже, сосед справа максимум 4 метра от забора. У нас всех узкие участки. У меня на участке стоит небольшой узаконенный дом 7,4м. ширина 1954г. постройки посредине, хочу сделать реконструкцию или снести и строить новый, но не знаю что с отступами делать. Строения соседей тоже старые. Дом планирую шириной 9м. По нормам на моем участке вообще строится нельзя:shock::shock:. Кто с таким сталкивался ПОМОГИТЕ, к архитектору пока не обращалась т.к. когда видят что пришел лох у нас на деньги раскрутят по полной программе. Может надо как то к старому дому строительство привязать, но не знаю на основании каких законов. Помогите пожалуйста. В Вашем случае как раз надо идти к местному архитектору (в архитектуру). 99%, что с реконструкцией в старых границах проблем не будет. Позволят ли расшириться - думаю да, но это только в архитектуре Вы узнаете. У Вас сложившаяся застройка, поэтому могут многое согласовать. Привязываться к старому, ИМХО, обязательно. Можете изучить ДБН 360-92**. Часткова реконструкція житлових будинків та господарських споруд на окремих садибних ділянках, які побудовані за раніше чинними нормативами, допускається за погодженням з місцевими органами архітектури і містобудування, державного пожежного та санітарного нагляду. В цьому випадку перебудова житлових будинків, їх господарських будівель та гаражів можлива за умови збереження існуючих відстаней між будівлями. ... 1 Посилання на коментар Поділитися на інших сайтах More sharing options...
apxitektop Опубліковано: 22 березня 2012 Поділитись Опубліковано: 22 березня 2012 Здравствуйте! Прошу вашей помощи! Есть дачка в старом садовом товариществе. Форма и наполнение - стандартные для последней четверти прошлого века. Хотелось бы к старости :D добавить себе немного комфорта в виде пристроенных к дому кухоньки и санузла. Но где-то там за забором маячит гацкий соседский сарай Можно ли ТАК пристроить? Обязательно ли изголяться с формой стен, чтобы между углами строений оставалось 6м? Не хочется, аднака!:D Угол пристройки срезать? :D Если это СТ, то думаю, что особых проблем быть не должно (это из практики). Но тут один совет – идти в архитектуру и показывать им свои чертежи. 1 Посилання на коментар Поділитися на інших сайтах More sharing options...
apxitektop Опубліковано: 22 березня 2012 Поділитись Опубліковано: 22 березня 2012 Планирую строить на частном участке гараж,интересует,нужен ли проект?В стройпаспорте кроме дома на участке больше ничего нет.Как поступить,начать самострой или побегать оформить проект, все разрешения и сколько это приблизительно стоит. Если есть стройпаспорт, то: или добавьте туда гараж (процедуру точную не подскажу; попробуйте в архитектуре пообщаться - пусть и неформально ), или - на свой страх и риск - стройте его, а потом в БТИ за техпаспортом и сдавайте вместе с домом (сейчас особо не сверяют со стройпаспортом, но как будет дальше я не знаю). 1 Посилання на коментар Поділитися на інших сайтах More sharing options...
malivan Опубліковано: 23 березня 2012 Поділитись Опубліковано: 23 березня 2012 Подскажите пожалуйста, а какие ограничения (сколько метров) на постройку дома от границы участка с дорогой ? Дорога - щебенка, с другой стороны построек нет, лесополоса. Посилання на коментар Поділитися на інших сайтах More sharing options...
Рекомендовані повідомлення
Створіть акаунт або увійдіть у нього для коментування
Ви маєте бути користувачем, щоб залишити коментар
Створити акаунт
Зареєструйтеся для отримання акаунта. Це просто!
Зареєструвати акаунтУвійти
Вже зареєстровані? Увійдіть тут.
Увійти зараз