Gopchik Опубліковано: 23 лютого 2012 Поділитись Опубліковано: 23 лютого 2012 Добрый день. Зовут меня Павел. 28 неполных лет. Состав семьи пока что 3 чел. Хочу с весны начать строить дом. По порядку: это дом в который мы семьей приезжаем на выходные т.е. дача. Участок 6 соток, скажу сразу - все на участке облагоустроено и готово к отдыху от городской суеты - газоны, автомат. полив, клумбы, мангальница, беседка (фото выложу, мож кто то захочет сделать такую). Есть существующий дом 6х8, но вокруг него я отлил фундамент 11.5х7.5. (глубина 1 метр х ширина 45 см + арматура ф12). Стены буду возводить из газобетона (производитель ЮДК днепропетровск) плотность Д400 размер 200х300х600 (уже куплен). Кладка на цемент + пенопласт 50 мм + облицовочный кирпич (наверно СБК). перекрытие брус 200х100 (также имеется в наличии). Второй этаж мансардный - высота 1,8м. кровля - металлочерепица. Планирую сделать так что бы в доме всегда было тепло и уютно. Первый этаж будет разделен на две зоны - комната отдыха с камином (который уже построен в доме 6х8) через барную стойку кухня, и ванная + предбанник + сауна. Г образная комната - предбанник переходящий в душ (можно так сказать: чтобы не бегать ополоснуться в ванную) + .....как правильно назвать - вообщем когда с парилки выходишь ведро дергаешь за веревочку... и вода на тебя холодная сверху.вот! Второй этаж будет состоять из бильярдной, двух спален и туалетом. Сразу хочу отметить почему ГБ на цемент: работаю на заводе ЖБИ, поэтому цемент, песок,щебень, арматура бесплатная. Также насчет пенопласта: 200 м. кв. досталось абсолютно бесплатно. Есть ряд вопросов: 1. Правильно будет ГБ на цемент? 2. Можно ли класть пенопласт между ГБ и облиц. кирпичом? 3. Во время заливки фундамента пришлось заливать в два этапа, т.е. в один год залил под две стены, через год еще под две. получилось как бы сначала Г и потом _|. При этом места где состыковывались два фундамента т.е. с прошлого года и с этого хорошо усилены арматурой. Не будет ли в этих двух местах состыковки трещины по стене по кладке? примерно насчет размеров: 1 этаж: - как и писал комната отдыха с камином через барную стойку кухня (примерно общим размером 50 м.кв); - топочная - 5 м.кв; - сауна - 8 м.кв; - ванная - 6 м.кв; - Г обр. комната - 2 м.кв - предбанник - 4-5 м.кв. 2 этаж: - бильярдная - 55 м.кв; - две спальни по 8-9 м.кв. - туалет - 1-2 м.кв. - балкон - 5 м.кв. Фото что есть на участке и свои труды в арконе как бы хотелось что бы получилось. Жду Ваших советов, коментариев. Посилання на коментар Поділитися на інших сайтах More sharing options...
Artyomovets Опубліковано: 23 лютого 2012 Поділитись Опубліковано: 23 лютого 2012 вам уже говорили, что газобетон на раствор - плохо. тоже самое и про пенопласт. вам уже отвечали на эти вопросы. по дому: дом ради бильярдной - это сильно. Посилання на коментар Поділитися на інших сайтах More sharing options...
VoevoDA Опубліковано: 23 лютого 2012 Поділитись Опубліковано: 23 лютого 2012 Есть ряд вопросов: 1. Правильно будет ГБ на цемент? Неправильно. 2. Можно ли класть пенопласт между ГБ и облиц. кирпичом?Можно, но см. ответ на п.1. Посилання на коментар Поділитися на інших сайтах More sharing options...
Gopchik Опубліковано: 23 лютого 2012 Автор Поділитись Опубліковано: 23 лютого 2012 вам уже говорили, что газобетон на раствор - плохо. тоже самое и про пенопласт. вам уже отвечали на эти вопросы. по дому: дом ради бильярдной - это сильно. почему ради бильярдной? Добавлено через 2 минуты Неправильно. Можно, но см. ответ на п.1. Можно при каких условиях? какие последствия? почему тогда на самом заводе УДК говорят их технологи что можно? тоже самое про цемент они говорят!!! Посилання на коментар Поділитися на інших сайтах More sharing options...
Artyomovets Опубліковано: 23 лютого 2012 Поділитись Опубліковано: 23 лютого 2012 почему ради бильярдной? потому что это самое большое помещение в доме. 2 спальни по 8 метров - для 3 человек - это очень мало. вам 28 лет. семья - вы, жена и ребенок? а пополняться не планируете? и что будет если к вам гости приедут? 1 Посилання на коментар Поділитися на інших сайтах More sharing options...
Gopchik Опубліковано: 23 лютого 2012 Автор Поділитись Опубліковано: 23 лютого 2012 потому что это самое большое помещение в доме. 2 спальни по 8 метров - для 3 человек - это очень мало. вам 28 лет. семья - вы, жена и ребенок? а пополняться не планируете? и что будет если к вам гости приедут? делаю акцент еще раз - это дача. живем в городе в 3-х комнатной квартире в 100 м.кв. Берем во внимание то, что на сегодняшний день продается очень много красивых и функциональных диванов. Насчет гостей куда можно положить спать: 1-й этаж - ляжет 2 чел 2-й этаж: спальня - 2 чел спальня - 2 чел бильярдная - 2 чел Итого 8 чел. Посилання на коментар Поділитися на інших сайтах More sharing options...
Janeva Опубліковано: 23 лютого 2012 Поділитись Опубліковано: 23 лютого 2012 Наш хозблок строился из ГБ на цементный раствор. Три строителя (из разных мест и организаций) сказали - можно. Может, не технологично, но достаточно практично и на порядок дешевле. В селах вообще из подручных материалов строят - теплые домишки получаются. Есть деньги и желание строиться правильно - стройте по технологиям. Перспективы на пополнение семейства таки учитывать надо. У моего мужа в детстве и юности была комнатка в 8 метров. В четырешке эта была самой маленькой, но самой уютной. Они с братом за нее воевали. И это при наличии двух других свободных комнат с бОльшей площадью. Так что если для детей, подростков - нормально будет, потом тесно. П.С. Пока писАла, Вы уже ответили. Как для дачи - все норм, уютно. Если перспектива жить - надо подумать. 1 Посилання на коментар Поділитися на інших сайтах More sharing options...
seyvalter Опубліковано: 23 лютого 2012 Поділитись Опубліковано: 23 лютого 2012 Уточніть будь ласка - данний будинок і надалі буде використовуватись виключно як дача? Посилання на коментар Поділитися на інших сайтах More sharing options...
Janeva Опубліковано: 23 лютого 2012 Поділитись Опубліковано: 23 лютого 2012 Уточніть будь ласка - данний будинок і надалі буде використовуватись виключно як дача? И я туда же. Личное мнение - если строить дом немаленьких габаритов, то рассчитывать там когда-нибудь жить. Посилання на коментар Поділитися на інших сайтах More sharing options...
Gopchik Опубліковано: 23 лютого 2012 Автор Поділитись Опубліковано: 23 лютого 2012 Уточніть будь ласка - данний будинок і надалі буде використовуватись виключно як дача? в основном как дача. живем в квартире. делаю так что бы можно было приехать и зимой и летом. насчет пополнения думаем. вообщем дом для отдыха. поэтому спальни по 20 м кв мне не нужны да и гостям хватить места переночевать. Посилання на коментар Поділитися на інших сайтах More sharing options...
Artyomovets Опубліковано: 23 лютого 2012 Поділитись Опубліковано: 23 лютого 2012 ну, если дача - то еще терпимо. но я все равно увеличил бы спальни... просто для большего объема воздуха на ночь... Посилання на коментар Поділитися на інших сайтах More sharing options...
Gopchik Опубліковано: 23 лютого 2012 Автор Поділитись Опубліковано: 23 лютого 2012 Наш хозблок строился из ГБ на цементный раствор. Три строителя (из разных мест и организаций) сказали - можно. Может, не технологично, но достаточно практично и на порядок дешевле. В селах вообще из подручных материалов строят - теплые домишки получаются. Есть деньги и желание строиться правильно - стройте по технологиям. Перспективы на пополнение семейства таки учитывать надо. У моего мужа в детстве и юности была комнатка в 8 метров. В четырешке эта была самой маленькой, но самой уютной. Они с братом за нее воевали. И это при наличии двух других свободных комнат с бОльшей площадью. Так что если для детей, подростков - нормально будет, потом тесно. П.С. Пока писАла, Вы уже ответили. Как для дачи - все норм, уютно. Если перспектива жить - надо подумать. спасибо. вот сейчас сижу на работе в кабинете размером 3.2х2,8 и сравниваю с размером моих спален на втором этаже - реально хватит!!! Добавлено через 1 минуту ну, если дача - то еще терпимо. но я все равно увеличил бы спальни... а как Вы видите их увиличить? дело в том, что стену я хотел опирать на нижнюю... или рассмотрю вариант планировки 2-го этажа Посилання на коментар Поділитися на інших сайтах More sharing options...
Artyomovets Опубліковано: 23 лютого 2012 Поділитись Опубліковано: 23 лютого 2012 а как Вы видите их увиличить? дело в том, что стену я хотел опирать на нижнюю... или рассмотрю вариант планировки 2-го этажа ну, гостиную на 1-м тоже можно чуток уменьшить. 50 метров или 45 - не критично. а сдвинув стену на 1-м можно топочную убрать к санузлу. в итоге - каминный зал останется тех же размеров Посилання на коментар Поділитися на інших сайтах More sharing options...
Gopchik Опубліковано: 23 лютого 2012 Автор Поділитись Опубліковано: 23 лютого 2012 ну, гостиную на 1-м тоже можно чуток уменьшить. 50 метров или 45 - не критично. а сдвинув стену на 1-м можно топочную убрать к санузлу. в итоге - каминный зал останется тех же размеров честно сказать не понял, вопрос еще в том что камин готовый в старом доме, и двигать его не получиться. поэтому и привязка к стене идет. можно конечно рассмотреть вариант перегородки на втором этаже легкой... из гипса например.... но тогда вопрос с крышей - как ее подвесят? так хоть одна будет точка опирания... Посилання на коментар Поділитися на інших сайтах More sharing options...
Artyomovets Опубліковано: 23 лютого 2012 Поділитись Опубліковано: 23 лютого 2012 ну откуда ж нам известно, что камин уже есть... Посилання на коментар Поділитися на інших сайтах More sharing options...
Gopchik Опубліковано: 23 лютого 2012 Автор Поділитись Опубліковано: 23 лютого 2012 ну откуда ж нам известно, что камин уже есть... в моем первом блоге все описано. Посилання на коментар Поділитися на інших сайтах More sharing options...
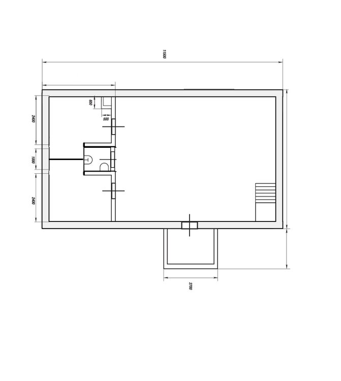
Alisa3 Опубліковано: 23 лютого 2012 Поділитись Опубліковано: 23 лютого 2012 Камин точно есть в первом посту. Неизвестно только какой формы и каких размеров. Мне в планировке непонятно в первую очередь наличие Г-образной комнаты 2кв.м. Если это коридор, то куда он ведёт? Дверь в топочную (если неправильной формы помещение - это топочная) с него отсутствует. Топочная тоже смущает своей неправильной формой: если для симметрии с камином, то там она не наблюдается. Крошечные спальни на втором я бы увеличила за счёт переноса туалета над топочной - бильярдная от этого сильно не пострадает. Кстати, в бильярдной вполне поместиться на ночёвку на 2, а 22 человека: www.1tv.ru/sprojects_edition/si5734/fi1538/pid7091/pr1 2 Посилання на коментар Поділитися на інших сайтах More sharing options...
Gopchik Опубліковано: 24 лютого 2012 Автор Поділитись Опубліковано: 24 лютого 2012 вообщем ладно, давайте комнаты обсуждать не будем. Буду думать что можно будет сделать по расширению... Осталось открытых три вопроса: 1. Правильно будет ГБ на цемент? 2. Можно ли класть пенопласт между ГБ и облиц. кирпичом? 3. Во время заливки фундамента пришлось заливать в два этапа, т.е. в один год залил под две стены, через год еще под две. получилось как бы сначала Г и потом _|. При этом места где состыковывались два фундамента т.е. с прошлого года и с этого хорошо усилены арматурой. Не будет ли в этих двух местах состыковки трещины по стене по кладке? Фото прилагаю Посилання на коментар Поділитися на інших сайтах More sharing options...
Gopchik Опубліковано: 24 лютого 2012 Автор Поділитись Опубліковано: 24 лютого 2012 Камин точно есть в первом посту. Неизвестно только какой формы и каких размеров. Мне в планировке непонятно в первую очередь наличие Г-образной комнаты 2кв.м. Если это коридор, то куда он ведёт? Дверь в топочную (если неправильной формы помещение - это топочная) с него отсутствует. Топочная тоже смущает своей неправильной формой: если для симметрии с камином, то там она не наблюдается. Крошечные спальни на втором я бы увеличила за счёт переноса туалета над топочной - бильярдная от этого сильно не пострадает. Кстати, в бильярдной вполне поместиться на ночёвку на 2, а 22 человека: www.1tv.ru/sprojects_edition/si5734/fi1538/pid7091/pr1 Кстати дверь в топочную есть, четко видно на рисунке. а Г обр комната - предбанник переходящий в душ (можно так сказать: чтобы не бегать ополоснуться в ванную) + .....как правильно назвать - вообщем когда с парилки выходишь ведро дергаешь за веревочку... и вода на тебя холодная сверху.вот! Посилання на коментар Поділитися на інших сайтах More sharing options...
Alisa3 Опубліковано: 24 лютого 2012 Поділитись Опубліковано: 24 лютого 2012 Кстати дверь в топочную есть, четко видно на рисунке. а Г обр комната - предбанник переходящий в душ (можно так сказать: чтобы не бегать ополоснуться в ванную) + .....как правильно назвать - вообщем когда с парилки выходишь ведро дергаешь за веревочку... и вода на тебя холодная сверху.вот! Душ шарко? :D Шучу. Дверь в топочную я вижу со стороны гостиной, я не увидела её из-"Г" обр. комнаты и потому не поняла, почему она Г -образная. Сейчас я поняла, что в её конце ведро? Так? Посилання на коментар Поділитися на інших сайтах More sharing options...
Gopchik Опубліковано: 24 лютого 2012 Автор Поділитись Опубліковано: 24 лютого 2012 Душ шарко? :D Шучу. Дверь в топочную я вижу со стороны гостиной, я не увидела её из-"Г" обр. комнаты и потому не поняла, почему она Г -образная. Сейчас я поняла, что в её конце ведро? Так? совершенно верно. а на левой стене будет просто душ, что бы просто ополоснуться после банных процедур. Посилання на коментар Поділитися на інших сайтах More sharing options...
sergeydnepr Опубліковано: 24 лютого 2012 Поділитись Опубліковано: 24 лютого 2012 Добрый день. У меня в планах похожее строение(рабочее название гостевой домик с баней).Проблема выбора сейчас та же, давайте попробуем решить вместе, тем более что мы в одном городе. Посилання на коментар Поділитися на інших сайтах More sharing options...
Майя К Опубліковано: 24 лютого 2012 Поділитись Опубліковано: 24 лютого 2012 .....как правильно назвать - вообщем когда с парилки выходишь ведро дергаешь за веревочку... и вода на тебя холодная сверху.вот! Такое? (ссылка на изображение устарела) Ведро-водопад называется.. 1 Посилання на коментар Поділитися на інших сайтах More sharing options...
Gopchik Опубліковано: 24 лютого 2012 Автор Поділитись Опубліковано: 24 лютого 2012 Такое? (ссылка на изображение устарела) Ведро-водопад называется.. да, именно такое! спасибо за фото Добавлено через 2 минуты Добрый день. У меня в планах похожее строение(рабочее название гостевой домик с баней).Проблема выбора сейчас та же, давайте попробуем решить вместе, тем более что мы в одном городе. я только ЗА! проблема выбора в чем заключается? Добавлено через 34 секунды sergeydnepr, я только ЗА! проблема выбора в чем заключается? Посилання на коментар Поділитися на інших сайтах More sharing options...
Gopchik Опубліковано: 29 лютого 2012 Автор Поділитись Опубліковано: 29 лютого 2012 Рассматриваю вариант перекрытия между первым и вторым этажом. 1-й вариант брус 100х200 (материал бесплатный) 2-й вариант монолитная плита. (арматура бесплатная) размер заливаемой площади 68 м кв. * на 20 см толщину = 13,6 м куб бетона. 13.6*600 грн/куб = 8160 грн. какой вариант выбрать? или же может достаточно будет перекрытия брус? Посилання на коментар Поділитися на інших сайтах More sharing options...
Рекомендовані повідомлення
Створіть акаунт або увійдіть у нього для коментування
Ви маєте бути користувачем, щоб залишити коментар
Створити акаунт
Зареєструйтеся для отримання акаунта. Це просто!
Зареєструвати акаунтУвійти
Вже зареєстровані? Увійдіть тут.
Увійти зараз