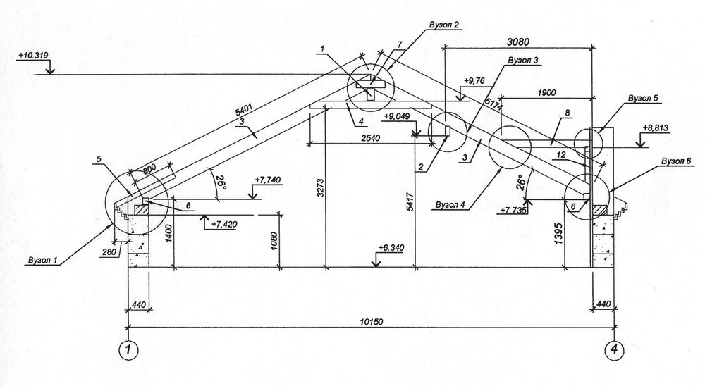
Cheh27 Опубліковано: 24 лютого 2012 Поділитись Опубліковано: 24 лютого 2012 (змінено) Делаю реконструкцию старого польского дома - поднимаю стены мезонина и + мансардный этаж. Новые стены из газобетона, с армопоясом под мауэрлат. Конек опирается на фронтоны и две внутренние несущие стены. Крыть буду металлочерепицей. Прошу совета - достаточны ли сечения мауэрлата (130х130), конька (250х150) и др.? И второй вопрос. Перед заказом материалов решил перемерять еще раз дом и оказалось что дом построили не совсем квадратный, одна стена (фронтон, что на рис. сверху справа) короче на 0,5м. Насколько это усложнит монтаж стропильной системы? Змінено 24 лютого 2012 користувачем Cheh27 Посилання на коментар Поділитися на інших сайтах More sharing options...
MWer Опубліковано: 24 лютого 2012 Поділитись Опубліковано: 24 лютого 2012 ... И второй вопрос. Перед заказом материалов решил перемерять еще раз дом и оказалось что дом построили не совсем квадратный, одна стена (фронтон, что на рис. сверху справа) короче на 0,5м. Насколько это усложнит монтаж стропильной системы? Монтаж стропильной системы - не усложнит, вот с металлочерепицей выйдет некрасиво, лучше профнастил примените. Посилання на коментар Поділитися на інших сайтах More sharing options...
Cheh27 Опубліковано: 24 лютого 2012 Автор Поділитись Опубліковано: 24 лютого 2012 О профнастиле подумаю, спасибо. А сечения мауэралата и конька достаточны? Посилання на коментар Поділитися на інших сайтах More sharing options...
trvld Опубліковано: 24 лютого 2012 Поділитись Опубліковано: 24 лютого 2012 Почему не усложнит? А разве не нужно будет каждую стропилу изготовлять индивидуально по месту? Посилання на коментар Поділитися на інших сайтах More sharing options...
MWer Опубліковано: 24 лютого 2012 Поділитись Опубліковано: 24 лютого 2012 В общем то стропила будут отличаться только местом расположения врубки. Я как то делал похожую крышу на старом доме. Я тогда сделал опорный брус под наклоном, с повышением того края, что на более короткой стороне. Перепад был немалый и опора получилась в виде трехугольной фермы. Скат при этом можно сделать как прямоугольным, тогда будут врубки на разных местах, так и параллельно карнизной стене, тогда отличаться будет длинна стропил. Все это усложняет работу теоретически только. 1 Посилання на коментар Поділитися на інших сайтах More sharing options...
Рекомендовані повідомлення
Створіть акаунт або увійдіть у нього для коментування
Ви маєте бути користувачем, щоб залишити коментар
Створити акаунт
Зареєструйтеся для отримання акаунта. Це просто!
Зареєструвати акаунтУвійти
Вже зареєстровані? Увійдіть тут.
Увійти зараз