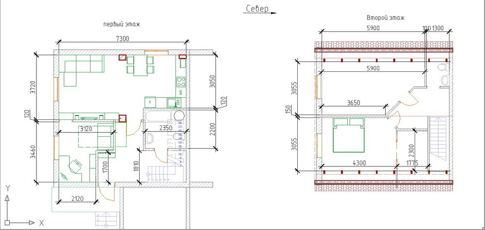
ann_pol Опубліковано: 29 лютого 2012 Поділитись Опубліковано: 29 лютого 2012 Два брата строят дом, каждому по полдома. Строительство бюджетное, проектировали сами, строят тоже сами. Уже готова коробка (см. рис 1). Теперь стоит вопрос планировки помещений. Я - жена одного из братьев, поэтому рассматриваем планировку нашей половины. Семья наша пока - я и муж, но в будущем надеюсь будут и дети. Вот что нам удалось распланировать (рис. 2). Хотелось бы услышать мнение и возможно какой-то совет. Просьба не писать "очень маленький, простой", повторяю строилось из оценки своих возможностей. Теперь надо вписать все нужное в то что есть. Итак, на первом этаже планируем гостинную-кухню, совмещенный санузел, прихожую-хол и кабинет, на втором этаже наша спальня с гардеробной, детская, туалет. также в планах пристроить гараж и веранду (возможно закрытую). Посилання на коментар Поділитися на інших сайтах More sharing options...
vopros'nik Опубліковано: 29 лютого 2012 Поділитись Опубліковано: 29 лютого 2012 Не увидела вход в кабинет на первом этаже. На втором поставила бы ванну, как то не кайф перед сном спускаться вниз. Посилання на коментар Поділитися на інших сайтах More sharing options...
ann_pol Опубліковано: 1 березня 2012 Автор Поділитись Опубліковано: 1 березня 2012 Вход в кабинет из гостинной, есть мысль задекорировать его дверью типа шкафа-купе, в стиле мебели под телевизором. Насчет ванной на втором вы правы, но не хочется еще больше воровать площадь у спален. По началу там и туалета не было, но решили что ночью бегать на первый этаж уж совсем будет плохо. Посилання на коментар Поділитися на інших сайтах More sharing options...
Artyomovets Опубліковано: 1 березня 2012 Поділитись Опубліковано: 1 березня 2012 какой ваш регион проживания? это я к отсутствию тамбура. санузел на втором все-таки нужно расширить для возможности установки ванной. гардероб на втором сделайте общедоступным кухню я бы отделял от гостиной. себе думаю делать большой проем, который можно закрыть раздвижными дверями. какое отопление дома планируется? топочной я не увидел. Посилання на коментар Поділитися на інших сайтах More sharing options...
ionico Опубліковано: 1 березня 2012 Поділитись Опубліковано: 1 березня 2012 Я присоединяюсь к вопросам от Artyomovets.Также хотел бы обратить внимание на следующее. Лестница может быть намного более компактной и не занимать высоту ванной комнаты. С/у на 2 этаже находится прямиком над кухней. Считаю, что в индивидуальном жилье это однозначный минус. Сделайте с/у над с/у. Ванная много места не займёт, думаю, всё же подумайте над её размещением на 2 этаже. Посилання на коментар Поділитися на інших сайтах More sharing options...
ann_pol Опубліковано: 1 березня 2012 Автор Поділитись Опубліковано: 1 березня 2012 (змінено) 1. Район проживания - Харьков. Про тамбур думали, где его делать? Отделить часть прихожей? Сделать неотапливаемым или туда тоже батарею выводить? Просто хотелось бы там оставлять обувь, значит надо делать его теплым. Думаем наверно пристроить веранду небольшую перед входом и ее застеклить ( может получится придумать съемные окна на лето). 2. Ванная на втором - хотелось бы, попробую вечером прорисовать, хотя думаю там максимум душевая кабинка влезет. И еще перекрытие - деревянное, немного переживаю, как следить, чтоб нигде ничего не подтекло и не погнило дерево. 3. Если отделить кухню от гостинной, то комнатки совсем маленькие будут. Но над большой раздвижной дверью подумаем. 4. Отопление планируем сначала конвекторы и частично электрический теплый пол (это если въедем в этом году). Потом собираемся подключать газ и будет двухконтурный котел на кухне в углу возле окна. 5. Насчет лестницы не поняла, компактная - это ее с более крутым уклоном? Перепад высот 3,1 м. Она и так достаточно крутая. 6. и еще. А что плохого в том что санузел над кухней? Думаете каналька протечет на кухню? Змінено 1 березня 2012 користувачем ann_pol Посилання на коментар Поділитися на інших сайтах More sharing options...
seyvalter Опубліковано: 1 березня 2012 Поділитись Опубліковано: 1 березня 2012 Гм, а мені подобається! не без недоліків звичайно - але нічого критичного. У всякому разі набагато краще від того що тут зазвичай виставляють. Поправкі: - простінок між ватальнью і кабінетом і кухнею і ванною прийдеться зробити несучою стіною - інакше перекриття не вирішується. - покажіть зразу вентканали, а то потім вони можуть вилізти в самому несподіваному місці! - я б попрбував сан.вузол і сходи поміняти місцями - з метою отримати у сан.вузол вікно - і тоді на другому поверсі зробити ванну над ванною (в тому кутку де зараз сходи) - а там де зараз сан.вузол другого поверху можна попробувати викроїти третю спальню або другий гардероб. Якось так. Посилання на коментар Поділитися на інших сайтах More sharing options...
ann_pol Опубліковано: 1 березня 2012 Автор Поділитись Опубліковано: 1 березня 2012 Гм, а мені подобається! не без недоліків звичайно - але нічого критичного. У всякому разі набагато краще від того що тут зазвичай виставляють. Поправкі: - простінок між ватальнью і кабінетом і кухнею і ванною прийдеться зробити несучою стіною - інакше перекриття не вирішується. - покажіть зразу вентканали, а то потім вони можуть вилізти в самому несподіваному місці! - я б попрбував сан.вузол і сходи поміняти місцями - з метою отримати у сан.вузол вікно - і тоді на другому поверсі зробити ванну над ванною (в тому кутку де зараз сходи) - а там де зараз сан.вузол другого поверху можна попробувати викроїти третю спальню або другий гардероб. Якось так. Коробка с крышей уже построены, никаких окон дополнительных уже не будет. Кстати, там, где Вы говорите поставить окно планируется гараж. Перекрытие решено с несущей центральной колонной и металлической главной балкой (см. рис 1), так что несущая стена там не нужна. По той же причине думаю и сдвинуть лестницу уже врядли куда-то можно, либо он с одной стороны от балки, либо с другой, посередине не получится. Вентканалы планируем только в санузлах и кухне, по-идее вдоль стены на кухне под потолком, далее на улицу, зашивается все гипсокартоном. Посилання на коментар Поділитися на інших сайтах More sharing options...
seyvalter Опубліковано: 1 березня 2012 Поділитись Опубліковано: 1 березня 2012 Пардон - недодивився. А яка колона і яка балка? (матеріал, січення)? Посилання на коментар Поділитися на інших сайтах More sharing options...
ann_pol Опубліковано: 1 березня 2012 Автор Поділитись Опубліковано: 1 березня 2012 колонна из кирпичей, получилось 380*380, балка - два швеллера 16 коробочкой Посилання на коментар Поділитися на інших сайтах More sharing options...
S_S_S Опубліковано: 1 березня 2012 Поділитись Опубліковано: 1 березня 2012 Вы заходите в дом... где оставлять вещи? Где будет шкаф, в который можно повесить пальто гостей, которые придут к Вам, например, на Новый Год? В перекрытии оставлены отверстия под трубы? Санузел над кухней плохо не потому, что протечет, а по санитарным нормам. Ну и потому, что нужно очень хорошо подумать о звукоизоляции. Сидя за столом слышать звук сливаемой воды не очень приятно. Посилання на коментар Поділитися на інших сайтах More sharing options...
ionico Опубліковано: 1 березня 2012 Поділитись Опубліковано: 1 березня 2012 6. и еще. А что плохого в том что санузел над кухней? Думаете каналька протечет на кухню? Дело ваше, дело нравов. Лично мне было бы не приятно чисто психологически-эстетически на такой кухне. Насчёт лестницы - я имел ввиду сделать её обычной П-образной и выделить её в отдельный блок. Так, чтобы она не занимала место с/у. Под лестницей можно сделать гардероб - его как раз не хватает. 1 Посилання на коментар Поділитися на інших сайтах More sharing options...
Рекомендовані повідомлення
Створіть акаунт або увійдіть у нього для коментування
Ви маєте бути користувачем, щоб залишити коментар
Створити акаунт
Зареєструйтеся для отримання акаунта. Це просто!
Зареєструвати акаунтУвійти
Вже зареєстровані? Увійдіть тут.
Увійти зараз