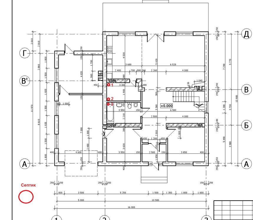
domikoff Опубліковано: 17 березня 2012 Поділитись Опубліковано: 17 березня 2012 Добрый день. Нуден совет гуде лучше разместить канализационный стояк. На данный момент проект только на бумаге. Но уже через месяц будем закладывать фундамент и канализационные коммуникации в черновом полу. И вот тут важно определится где будет кан.стояк. Я вижу три варианта (на рисунке) какой по вашему мнению более предпочтителен? Посилання на коментар Поділитися на інших сайтах More sharing options...
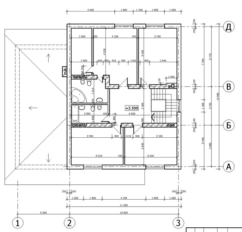
ts3 Опубліковано: 18 березня 2012 Поділитись Опубліковано: 18 березня 2012 Я вижу три варианта (на рисунке) какой по вашему мнению более предпочтителен? [ATTACH]172752[/ATTACH][ATTACH]172753[/ATTACH] Третий - расстояние к большинству унитазов короткое. Через стену проходить канализационной трубой только для с/у 2-го этажа Посилання на коментар Поділитися на інших сайтах More sharing options...
Gidra Опубліковано: 18 березня 2012 Поділитись Опубліковано: 18 березня 2012 Добрый день. Нуден совет гуде лучше разместить канализационный стояк. На данный момент проект только на бумаге. Но уже через месяц будем закладывать фундамент и канализационные коммуникации в черновом полу. И вот тут важно определится где будет кан.стояк. Я вижу три варианта (на рисунке) какой по вашему мнению более предпочтителен? [ATTACH]172752[/ATTACH][ATTACH]172753[/ATTACH] Дали бы экспликацию помещений....И потом- подвала не будет...??? Посилання на коментар Поділитися на інших сайтах More sharing options...
domikoff Опубліковано: 19 березня 2012 Автор Поділитись Опубліковано: 19 березня 2012 Третий - расстояние к большинству унитазов короткое. Через стену проходить канализационной трубой только для с/у 2-го этажа Тоже нравится этот вариант. ИМХО более экономичен. Но возник вопрос как через плиту перекрытия она пройдет на второй этаж? Плиту вообще можно долбить? Добавлено через 1 минуту Дали бы экспликацию помещений....И потом- подвала не будет...??? Думал, точки всброса воды и так видно на планах. Единственное что не уточнил - помещение на 1м. этаже между с/у и кухней это кухонная кладовка. Подвала нет. Посилання на коментар Поділитися на інших сайтах More sharing options...
Вадим (spb) Опубліковано: 19 березня 2012 Поділитись Опубліковано: 19 березня 2012 Плиту вообще можно долбить? Можно, но учитывая риск нарваться на арматуру это может сильно утомить долбящего. Закажите алмазное бурение. Быстрая безударная технология. Посилання на коментар Поділитися на інших сайтах More sharing options...
Gidra Опубліковано: 19 березня 2012 Поділитись Опубліковано: 19 березня 2012 Думал, точки всброса воды и так видно на планах. Единственное что не уточнил - помещение на 1м. этаже между с/у и кухней это кухонная кладовка. Подвала нет. Эф....господин хороший....При чем тут точки...?? Архитектор Вам что...планы-разрезы без экспликации давал..??? Вот хорошо, что Вы сказали, что эта кладовка- кухонная.... Значит, через нее стояк провести нельзя ( согласно нормам ) А у Вас получается два стояка- поскольку много приборов с залповым сбросом воды....И ванная комната на 2 этаже-как раз над этой самой кладовкой..... И как стояк вести...??? Через кухню..??? И надо этот стояк выводить ...на 0,5 выше кровли... А внизу- ваши сантехприборы так расположены, что для нормального расположения стояка места просто нет.... Оптимальный вариант- попросить архитектора перекомпоновать санузлы... Посилання на коментар Поділитися на інших сайтах More sharing options...
domikoff Опубліковано: 19 березня 2012 Автор Поділитись Опубліковано: 19 березня 2012 А у Вас получается два стояка- поскольку много приборов с залповым сбросом воды....И ванная комната на 2 этаже-как раз над этой самой кладовкой..... И как стояк вести...??? Через кухню..??? И надо этот стояк выводить ...на 0,5 выше кровли... А внизу- ваши сантехприборы так расположены, что для нормального расположения стояка места просто нет.... Оптимальный вариант- попросить архитектора перекомпоновать санузлы... Не понимаю зачем два стояка? Например в 16ти этажке на один стояк приходится минимум 16 ванных. И ничего... На данном этапе приборы в сан узлах можно компоновать как душе угодно... Посилання на коментар Поділитися на інших сайтах More sharing options...
Рекомендовані повідомлення
Створіть акаунт або увійдіть у нього для коментування
Ви маєте бути користувачем, щоб залишити коментар
Створити акаунт
Зареєструйтеся для отримання акаунта. Це просто!
Зареєструвати акаунтУвійти
Вже зареєстровані? Увійдіть тут.
Увійти зараз