cisa Опубліковано: 30 березня 2012 Поділитись Опубліковано: 30 березня 2012 Добрый день! Покритикуйте пожалуйста мой проект. Планируется постройка дома с мансардой и подвалом для проживания 4+ человек (2Взр + 2Дет). Изначально подвал не хотели, но участок приобрели с котлованом, поэтому решили добавить и подвал. Выбор материалов не окончательный, но на данный момент такой: подвал и перекрытия - монолит, стены - поротерм, крыша - битумная черепица. Возможно что подвал будет из блоков, перекрытия - плиты, стены из (?) старался проект рисовать с учётом возможных изменений материалов. Буду благодарен за любые дополнения и замечания. Посилання на коментар Поділитися на інших сайтах More sharing options...
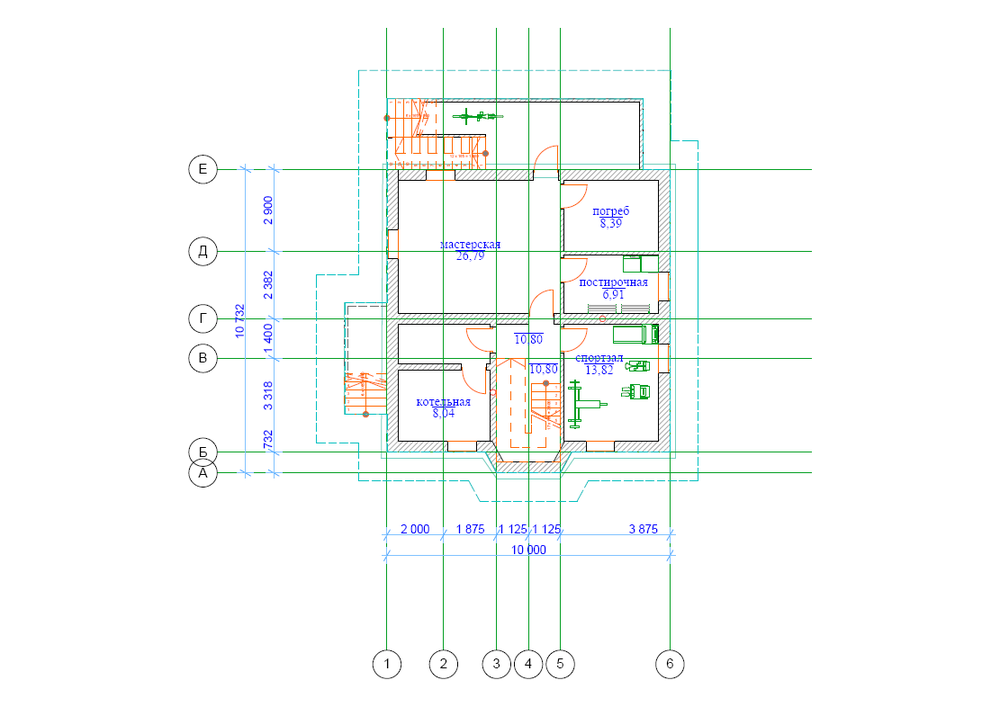
Artyomovets Опубліковано: 31 березня 2012 Поділитись Опубліковано: 31 березня 2012 есть спортзал, но нет ни одной кладовки и гардеробной. подвал если не хотели - так и не стройте. его засыпать дешевле чем строить. Посилання на коментар Поділитися на інших сайтах More sharing options...
Archist Опубліковано: 31 березня 2012 Поділитись Опубліковано: 31 березня 2012 есть спортзал, но нет ни одной кладовки и гардеробной. подвал если не хотели - так и не стройте. его засыпать дешевле чем строить. С кладовками и гардеробными согласен, а с подвалом нет. Стоимость засыпки и послойного трамбования для обеспечения нормативной несущей способности может превысить затраты по устройству подвала в готовом котловане. По планировке: увеличьте ширину коридора перед лестницей, перенесите окно гостевой на западный фасад, подумайте над вентиляцией санузлов. Ну и фасады - полное г...но. Посилання на коментар Поділитися на інших сайтах More sharing options...
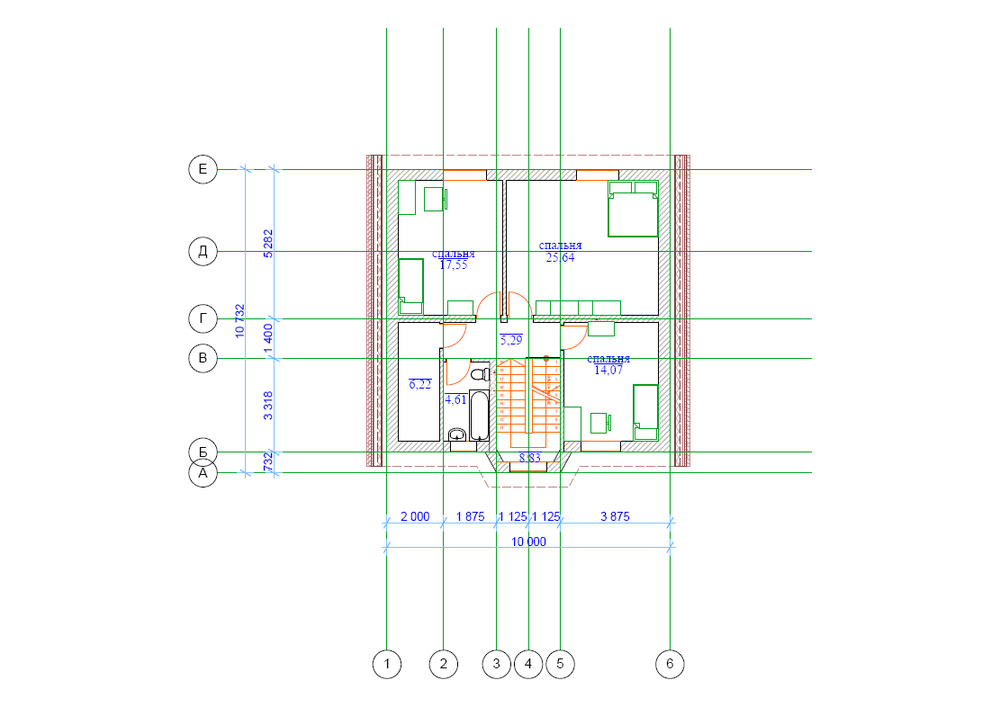
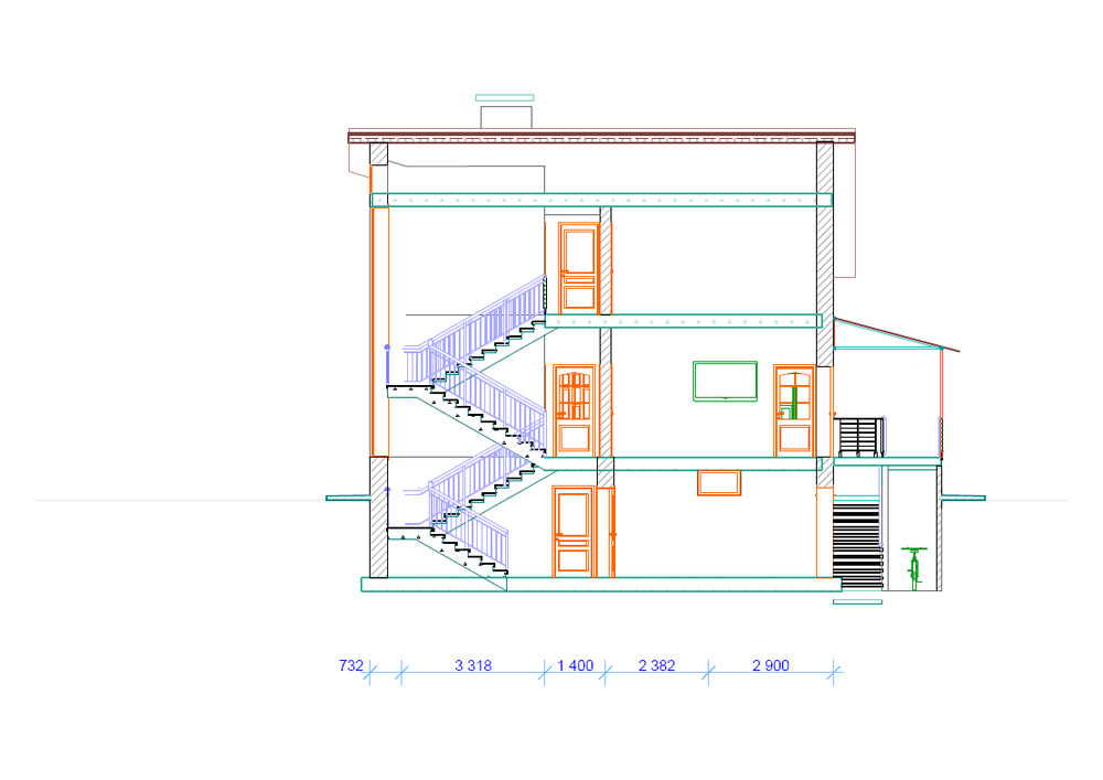
ionico Опубліковано: 31 березня 2012 Поділитись Опубліковано: 31 березня 2012 Возможно, я что-то не правильно понял, но всё же обращу внимание. В этой картинке мы видим, что направление подъёма лестницы главного входа в дом параллельно коньку крыши. Получается, что на плане 1 этажа и на плане 2 этажа мы видим, что конёк перпендикулярен внутренней несущей стене. На 2 этаже стойки, удерживающие конёк, установлены на лестнице и поперёк спальни [25.64 кв. м.]. Я так понимаю, что крышу надо развернуть, чтобы конёк опирался на стену. Посилання на коментар Поділитися на інших сайтах More sharing options...
pr@ktik Опубліковано: 31 березня 2012 Поділитись Опубліковано: 31 березня 2012 Добрый день! Покритикуйте пожалуйста мой проект.. я бы объеденил бы кухню и гостевую, обязательно уберите забежные ступени, у Вас ведь есть дети. 1 Посилання на коментар Поділитися на інших сайтах More sharing options...
ionico Опубліковано: 31 березня 2012 Поділитись Опубліковано: 31 березня 2012 А фасады действительно не очень. Это же дом, в котором вы будете жить, неужели не хочется жить в шедевре архитектуры? Пускай без коринфских ордеров и сложных конструкций, но всё же. Посилання на коментар Поділитися на інших сайтах More sharing options...
cisa Опубліковано: 31 березня 2012 Автор Поділитись Опубліковано: 31 березня 2012 есть спортзал, но нет ни одной кладовки и гардеробной. подвал если не хотели - так и не стройте. его засыпать дешевле чем строить. Спортзал это скорее громкое название этому помещению... пока непонятно что именно там будет Одна кладовка есть на втором этаже (помещение 1.56 м2), в каждой спальне есть шкаф для вещей, для совсем ненужных вещей есть подвал и чердак (хотя не факт). Для верхней одежды в тамбуре есть вешалка. На многих проектах кладовки/гардеробные отсутствуют - так ли они необходимы? Если таки да - наверное можно попробовать добавить на первом этаже в ущерб гостевой. Что касается подвала - я несколько раз на форумах натыкался как людей отговаривали и отговорили от засыпки ямы в пользу подвала и ни разу не видел чтоб кто-то таки засыпал яму и построил на ней дом. По планировке: увеличьте ширину коридора перед лестницей, перенесите окно гостевой на западный фасад, подумайте над вентиляцией санузлов. Ну и фасады - полное г...но. А какая оптимальная ширина коридора в данном случай? Мне показалось 1 метра (даже чуть больше) достаточно для того чтоб разминуться двум людям, будет там людей больше - можно на лестницу отойти... Просто не хочется убавлять "полезную" площадь кухни/гостиной в пользу "бесполезного" коридора. С окнами долго думали с супругой... Дело в том что если окно гостевой перенести на другую сторону то со стороны дома которая выходит на улицу окна будут не симметрично... Кроме того если думать что в этой комнате через какое-то время буду ночевать сам - мне бы хотелось именно такое расположение (чтоб на улицу окна выходили)... С чем связана данная рекомендация? Может имеет смысл дополнительное окно а не перенос? Про вентиляцию санузлов - пропустил... Спасибо! Ну а фасады... тут как-бы скорее да... просто я ещё не думал над этим... Добавлено через 16 минут я бы объеденил бы кухню и гостевую, обязательно уберите забежные ступени, у Вас ведь есть дети. Объединять запретила супруга -запахи с кухни должны там и оставаться... про супер-вытяжки знаю. Кроме того когда например в доме гости зачем им видеть что происходит на кухне? Ступеньки изначально не хотел забежные, но так получилось что места на другие не нашлось... Надо или потолки опускать - чего не хотелось бы или другие помещения уменьшать... Может как вариант попробую уменьшить гостевую и сделать два поворота... Посилання на коментар Поділитися на інших сайтах More sharing options...
Archist Опубліковано: 31 березня 2012 Поділитись Опубліковано: 31 березня 2012 А какая оптимальная ширина коридора в данном случай? Мне показалось 1 метра (даже чуть больше) достаточно для того чтоб разминуться двум людям, будет там людей больше - можно на лестницу отойти... Разминуться можно и на 0,5 м, тока зачем такой экстрим? Нормативная ширина прихожей 1,4 м. А у вас это еще и перекресток всех направлений движения... С окнами долго думали с супругой... Дело в том что если окно гостевой перенести на другую сторону то со стороны дома которая выходит на улицу окна будут не симметрично... Кроме того если думать что в этой комнате через какое-то время буду ночевать сам - мне бы хотелось именно такое расположение (чтоб на улицу окна выходили)... С чем связана данная рекомендация? Может имеет смысл дополнительное окно а не перенос? При таком фасаде говорить о симметрии несколько кощунственно А рекомендация вызвана тем, что в окна на главном фасаде солнце не попадает никогда. 1 Посилання на коментар Поділитися на інших сайтах More sharing options...
cisa Опубліковано: 31 березня 2012 Автор Поділитись Опубліковано: 31 березня 2012 Возможно, я что-то не правильно понял, но всё же обращу внимание. В этой картинке мы видим, что направление подъёма лестницы главного входа в дом параллельно коньку крыши. Получается, что на плане 1 этажа и на плане 2 этажа мы видим, что конёк перпендикулярен внутренней несущей стене. На 2 этаже стойки, удерживающие конёк, установлены на лестнице и поперёк спальни [25.64 кв. м.]. Я так понимаю, что крышу надо развернуть, чтобы конёк опирался на стену. Если я правильно понимаю то проблема в том что конёк не опирается на внутреннюю несущую стену, а перпендикулярен ей? Чем это плохо? Я понимаю что лучше конечно если б конёк лёг на стену, но это ведь не обязательно? Дело в том что повернуть крышу на 90 градусов не получится по многим причинам. Посилання на коментар Поділитися на інших сайтах More sharing options...
ionico Опубліковано: 1 квітня 2012 Поділитись Опубліковано: 1 квітня 2012 Если я правильно понимаю то проблема в том что конёк не опирается на внутреннюю несущую стену, а перпендикулярен ей? Чем это плохо? Я понимаю что лучше конечно если б конёк лёг на стену, но это ведь не обязательно? Дело в том что повернуть крышу на 90 градусов не получится по многим причинам. Это же самое нелогичное решение! Вот смотрите: штаны можно одеть по-нормальному, а можно задом наперёд. Ваша крыша - штаны, одетые задом наперёд. Стойки поставить не получится, ведь конёк над лестничным проёмом. Остаётся вариант стропильной системы с затяжками. Но ведь они будут съедать пространство помещений мансардного этажа. Не понимаю, зачем усложнять, когда самое логичное, чёткое решение так рядом. 1 Посилання на коментар Поділитися на інших сайтах More sharing options...
cisa Опубліковано: 1 квітня 2012 Автор Поділитись Опубліковано: 1 квітня 2012 Это же самое нелогичное решение! Вот смотрите: штаны можно одеть по-нормальному, а можно задом наперёд. Ваша крыша - штаны, одетые задом наперёд. Стойки поставить не получится, ведь конёк над лестничным проёмом. Остаётся вариант стропильной системы с затяжками. Но ведь они будут съедать пространство помещений мансардного этажа. Не понимаю, зачем усложнять, когда самое логичное, чёткое решение так рядом. я наконец-таки понял о чем Вы говорите - буду думать если что получится... повернуть крышу на 90 градусов-не вариант, как я уже писал, кстати даже если так и сделать - несущая стена всё-равно не по середине и не попадёт на конёк... Посилання на коментар Поділитися на інших сайтах More sharing options...
ionico Опубліковано: 2 квітня 2012 Поділитись Опубліковано: 2 квітня 2012 повернуть крышу на 90 градусов-не вариант Почему именно не вариант? кстати даже если так и сделать - несущая стена всё-равно не по середине и не попадёт на конёк Даже если не по середине, то пусть уклоны скатов крыши будут разные. Но визуально несущая стена почти по середине, я считаю, что если её подвинуть точно в центр, то планировка не пострадает. В любом случае, не вижу сложности её корректировки. Посилання на коментар Поділитися на інших сайтах More sharing options...
Artyomovets Опубліковано: 2 квітня 2012 Поділитись Опубліковано: 2 квітня 2012 насколько я понимаю - ТС хочет юго-восточный фасад сделать максимально открытым. Посилання на коментар Поділитися на інших сайтах More sharing options...
cisa Опубліковано: 2 квітня 2012 Автор Поділитись Опубліковано: 2 квітня 2012 Почему именно не вариант? Все дома по улице стоят коньком перпендикулярно улице.. Ни разу не видел чтоб конёк ставили параллельно улице хотя не сильно обращал внимание... И куда в этом случае окна мансарды будут выходить? - на участки соседей а хотелось бы чтоб на улицу и в сад... речь конечно о двускатной крыше, если как вариант делать четырёхскатную и полноценный второй этаж, то конечно этой проблемы не будет... С лестницей однозначно что-то буду делать... возможно будет стенка или какая-то подпорка по середине лестницы, попробую посмотреть как получится если сделать её с двумя поворотами... Посилання на коментар Поділитися на інших сайтах More sharing options...
ionico Опубліковано: 2 квітня 2012 Поділитись Опубліковано: 2 квітня 2012 Может, лучше повернуть несущую стену на 90 градусов? Конечно, придётся перелопатить планировку, но в этом случае и крыша будет как вам нравится и конструктивно всё логично. Посилання на коментар Поділитися на інших сайтах More sharing options...
seyvalter Опубліковано: 2 квітня 2012 Поділитись Опубліковано: 2 квітня 2012 Все дома по улице стоят коньком перпендикулярно улице.. Ни разу не видел чтоб конёк ставили параллельно улице хотя не сильно обращал внимание... И куда в этом случае окна мансарды будут выходить? - на участки соседей Не факт. У мене наприклад орієнтація даху якраз паралельна вулиці - вікна дійсно виходять до сусідів - йшов на це свідомо по одній простій причині - вулиця крайня від залізниці, Краще споглядати сусідські дахи ніж слухати звукі товарняка лежачи в ліжку. так що варто враховувати не лише пейзажі - а й шумове навантаження. Посилання на коментар Поділитися на інших сайтах More sharing options...
cisa Опубліковано: 2 квітня 2012 Автор Поділитись Опубліковано: 2 квітня 2012 я вот попытался вернуться к тому из-за чего начался весь сыр-бор с крышей... а может всё-таки можно оставить как сейчас? конёк-то лежит концами на внешних стенах и примерно по середине попадёт на внутреннюю несущую - разве этого совсем мало? кроме того над мансардой же будет ещё перекрытие на чердак, оно скорее всего будет не железобетонное, но будет... вот сейчас посмотрел на рисунки - его нигде не видно но оно таки есть.... сори если говорю глупости - я в крышах не сильно понимаю... Посилання на коментар Поділитися на інших сайтах More sharing options...
Archist Опубліковано: 2 квітня 2012 Поділитись Опубліковано: 2 квітня 2012 я вот попытался вернуться к тому из-за чего начался весь сыр-бор с крышей... а может всё-таки можно оставить как сейчас? конёк-то лежит концами на внешних стенах и примерно по середине попадёт на внутреннюю несущую - разве этого совсем мало? кроме того над мансардой же будет ещё перекрытие на чердак, оно скорее всего будет не железобетонное, но будет... вот сейчас посмотрел на рисунки - его нигде не видно но оно таки есть.... сори если говорю глупости - я в крышах не сильно понимаю... Не вижу такой уж проблемы с опиранием крыши по вашему варианту. 1 Посилання на коментар Поділитися на інших сайтах More sharing options...
cisa Опубліковано: 2 квітня 2012 Автор Поділитись Опубліковано: 2 квітня 2012 Не вижу такой уж проблемы с опиранием крыши по вашему варианту. ну вот - хоть кто-то обнадёжил :D в параллельной ветке Проект дома ARCHON+Дом в рододендронах 6 (П) похожая крыша и вроде нормально... Посилання на коментар Поділитися на інших сайтах More sharing options...
seyvalter Опубліковано: 2 квітня 2012 Поділитись Опубліковано: 2 квітня 2012 Не вижу такой уж проблемы с опиранием крыши по вашему варианту. Підтримую, в габаритах 10*10м це спокійно вирішується і без несучих стін (за рахунок бантин). Поганий той коньок що на фронтони спирається. Чисто практично - при будівництві таких невеличких мансардочок як ваша - як правило домуровують стіни до мурлату, тоді зводять стропилку що збивається на землі по шаблону - і лише тоді домуровують фронтони (інакше дуже незручно стропила виставляти - без крану не обійдешся, їх просто небуде як крутити (їх спочатку затягують і ложать - тоді дотягують до місця монтажу і лише тоді зводять). 1 Посилання на коментар Поділитися на інших сайтах More sharing options...
cisa Опубліковано: 25 квітня 2012 Автор Поділитись Опубліковано: 25 квітня 2012 Немного доделал/переделал проект. Постарался учесть максимум замечаний. Критика приветствуется. PS. Неспешно подыскиваю конструктора, умеющего считать монолит (подвал, перекрытия) и крышу, предложения в личку. Посилання на коментар Поділитися на інших сайтах More sharing options...
вторик Опубліковано: 25 квітня 2012 Поділитись Опубліковано: 25 квітня 2012 не будет крыша так держатся. опоры нужны под коньком, опоры держащие коньок должны стоять на чемто. изменится проект похоже. Посилання на коментар Поділитися на інших сайтах More sharing options...
cisa Опубліковано: 25 квітня 2012 Автор Поділитись Опубліковано: 25 квітня 2012 Я не конструктор и не профи в строительстве, поэтому могу что-то не понимать (собственно поэтому и на форуме). Некоторые говорят что так крышу построить нельзя, некоторые говорят что можно (видел проекты где конёк не ложится на стену под длинне, но ложится по краям). По моим сегодняшним планам конёк опирается на несущую стену по краям и дополнительно по середине (через 5 метров из 10). Собственно думаю последнее слово будет за конструктором.... В принципе рассматриваю и другие варианты если конструктор скажет твёрдое нет. Ниже нарисовал варианты - они чем-то лучше чем то что было до этого? Или ничего по сути не меняют (над лестницей нет стены вдоль конька)? Планировка второго этажа позволяет разместить стену ровно по середине чтоб как раз под конёк попало, но тогда эта стена не будет над стеной первого этажа, а будет смещщена примерно на метр вправо по сравнению со стеной первогоэтажа, т.е. по сути висеть в воздухе что не есть хорошо и чревато большими проблемами. Соотношение размеров гостинной и кухни нравится и менять (делать стену чтоб делила пополам) не хочется... Над лестницей стену сделать врядли получится - разве что поставить её между маршами (кстати вариант, но ни разу не видел чтоб так делали) Посилання на коментар Поділитися на інших сайтах More sharing options...
apxitektop.s Опубліковано: 26 квітня 2012 Поділитись Опубліковано: 26 квітня 2012 Я не конструктор и не профи в строительстве, поэтому могу что-то не понимать (собственно поэтому и на форуме). Некоторые говорят что так крышу построить нельзя, некоторые говорят что можно (видел проекты где конёк не ложится на стену под длинне, но ложится по краям). По моим сегодняшним планам конёк опирается на несущую стену по краям и дополнительно по середине (через 5 метров из 10). Собственно думаю последнее слово будет за конструктором.... В принципе рассматриваю и другие варианты если конструктор скажет твёрдое нет. Ниже нарисовал варианты - они чем-то лучше чем то что было до этого? Или ничего по сути не меняют (над лестницей нет стены вдоль конька)? Планировка второго этажа позволяет разместить стену ровно по середине чтоб как раз под конёк попало, но тогда эта стена не будет над стеной первого этажа, а будет смещщена примерно на метр вправо по сравнению со стеной первогоэтажа, т.е. по сути висеть в воздухе что не есть хорошо и чревато большими проблемами. Соотношение размеров гостинной и кухни нравится и менять (делать стену чтоб делила пополам) не хочется... Над лестницей стену сделать врядли получится - разве что поставить её между маршами (кстати вариант, но ни разу не видел чтоб так делали) Да, проект полон неувязок и проблем, только почему вы не отдадите это все в проработку изначально опытному архитектору, не стоит выступать самому в роли архитектора, замыкая внимание на конструкторе, ведь изначально надо сделать правильным архитектурный раздел, перед тем как начинать делать конструктивный. Критиковать и советовать - тут не о чем, так как фасады просто угнетают, а планировка похожа на фасады и также требует значительной доработки архитектором. Из плюсов - у вас есть понятие какие помещения вам нужны, то есть архитектору с зонированием будет проще, соответственно по фасадам стоит погуглить и поискать экстерьеры на польских сайтах : муратора, архона, z500 Посилання на коментар Поділитися на інших сайтах More sharing options...
cisa Опубліковано: 26 квітня 2012 Автор Поділитись Опубліковано: 26 квітня 2012 Да, проект полон неувязок и проблем, только почему вы не отдадите это все в проработку вашему конструктору если он есть, ведь опыта у него побольше должно быть или как ? А Вы не могли бы написать какие именно неувязки и проблемы? Конструктора пока нет - сейчас как раз только начинаю его искать ;) Хотел сначала определиться как примерно должен выглядеть проект, а потом отдавать его конструктору. На данный момент вроде-бы всё нравится, но не всё представляю как делать, например, сопряжение подвала под верандой с остальным домом, многие на крышу ругаются - это всё решать конечно конструктору... Посилання на коментар Поділитися на інших сайтах More sharing options...
Рекомендовані повідомлення
Створіть акаунт або увійдіть у нього для коментування
Ви маєте бути користувачем, щоб залишити коментар
Створити акаунт
Зареєструйтеся для отримання акаунта. Це просто!
Зареєструвати акаунтУвійти
Вже зареєстровані? Увійдіть тут.
Увійти зараз