irina70 Опубліковано: 9 квітня 2012 Поділитись Опубліковано: 9 квітня 2012 (змінено) Есть узкий, прямоугольный участок 16х60. Фасад строго на север. Вооружившись всеми нормами размещения дома на участке и перелопатив кучу готовых проектов, слепили из двух понравившихся домов один. За основу был взят архоновский проект Юлия 2, к нему был прилеплен гараж из проекта Zх6 (с него же срисован внешний вид). Все вроде нормально, но смущает, что гостевая спальня на первом этаже получилась прямо возле входа в дом. Не очень нравится образовавшийся балкон над гаражом с северной стороны (нужен ли он там, или стоит сделать гаражу скатную крышу и оставить в спальне второго этажа окно). Так как дом расположен на участке узкой стороной к фасаду (там же север) возникает проблема с окнами спальни на втором этаже. Вроде, советуют северную стену оставлять чуть ли не совсем без окон (тепло экономить), но тогда с улицы будет видна только глухая стена, а это не очень красиво. Змінено 9 квітня 2012 користувачем irina70 Посилання на коментар Поділитися на інших сайтах More sharing options...
seyvalter Опубліковано: 9 квітня 2012 Поділитись Опубліковано: 9 квітня 2012 Гм, щось я не зовсім зрозумів - ви витавили два окремих плана? І що з них коментувати? Посилання на коментар Поділитися на інших сайтах More sharing options...
irina70 Опубліковано: 9 квітня 2012 Автор Поділитись Опубліковано: 9 квітня 2012 Гм, щось я не зовсім зрозумів - ви витавили два окремих плана? І що з них коментувати? это план первого и второго этажа. просто один получился вверх ногами Добавлено через 2 минуты перевернула Посилання на коментар Поділитися на інших сайтах More sharing options...
Artyomovets Опубліковано: 9 квітня 2012 Поділитись Опубліковано: 9 квітня 2012 у вас санузлы над кухней и столовой и камин на внешней стене. мне такие решения не нравятся. 1 Посилання на коментар Поділитися на інших сайтах More sharing options...
seyvalter Опубліковано: 9 квітня 2012 Поділитись Опубліковано: 9 квітня 2012 Чесно кажучи - так собі. не сподобалось: необхідність влаштування колони і ригелів на першому поверсі, розміщення ванн на другому (те що вони над кухнею і залом першого - це геть недобре), житлова кімната при вході ну і т.д. Якщо вам цікаво - розробляю зараз щось дуже схоже (той же набір приміщень - але краще планування як на мене - хоча це - справа смаку) - напишіть мені на почту - скину - подиветесь - може пригодиться. seyvalter@yandex.ru Посилання на коментар Поділитися на інших сайтах More sharing options...
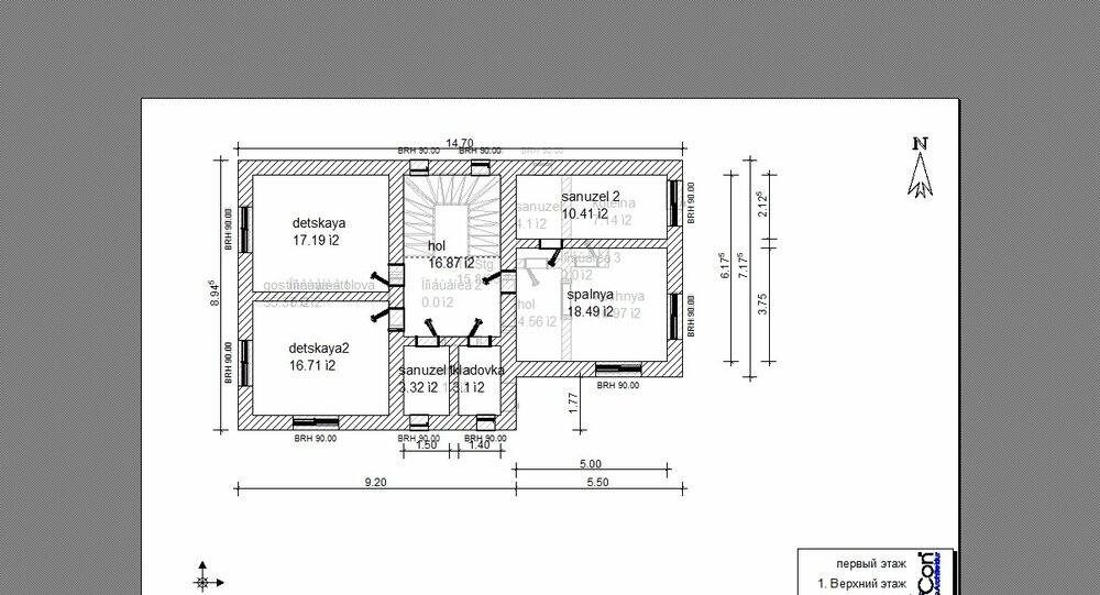
irina70 Опубліковано: 9 квітня 2012 Автор Поділитись Опубліковано: 9 квітня 2012 расположение дома на участке. план первого этажа. соеденив котельную 9 и кладовку 8, получили гостевую комнату Посилання на коментар Поділитися на інших сайтах More sharing options...
Filina Опубліковано: 11 квітня 2012 Поділитись Опубліковано: 11 квітня 2012 у вас санузлы над кухней и столовой и камин на внешней стене. мне такие решения не нравятся. Почему такие решения не нравятся? Посилання на коментар Поділитися на інших сайтах More sharing options...
irina70 Опубліковано: 12 квітня 2012 Автор Поділитись Опубліковано: 12 квітня 2012 у вас санузлы над кухней и столовой и камин на внешней стене. мне такие решения не нравятся. после вашего замечания начала придирчиво изучать проекты для узких участков - в 90% с/у второго этажа или над кухней, или над прохожей Посилання на коментар Поділитися на інших сайтах More sharing options...
Artyomovets Опубліковано: 12 квітня 2012 Поділитись Опубліковано: 12 квітня 2012 Почему такие решения не нравятся? санузлы не нравятся, поскольку надо изгибать стояки, чтоб они не светились в нижних помещениях. по камину - получится, что греем внешнюю стену и улицу. лучше, когда камин по внутренней стене и греет несколько помещений после вашего замечания начала придирчиво изучать проекты для узких участков - в 90% с/у второго этажа или над кухней, или над прохожей я вам больше скажу: у поляков еще часто напрочь отсутствуют гардеробные и кладовки 2 Посилання на коментар Поділитися на інших сайтах More sharing options...
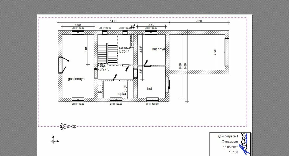
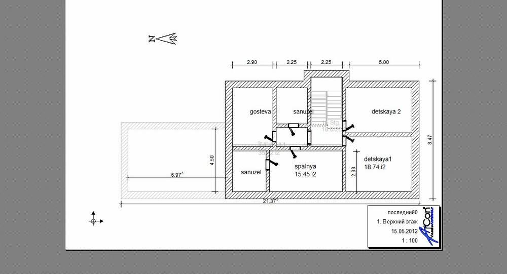
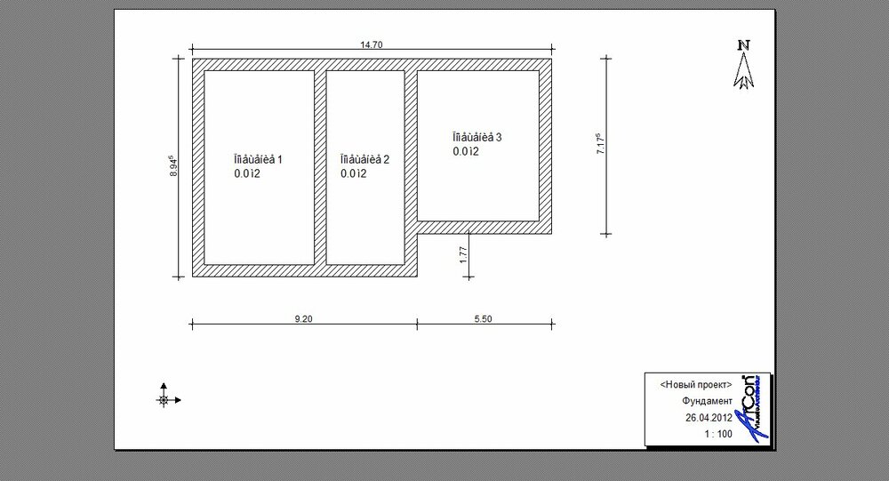
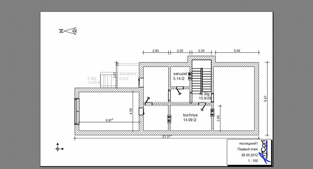
irina70 Опубліковано: 27 квітня 2012 Автор Поділитись Опубліковано: 27 квітня 2012 покритикуйте, пожалуйста, уже пора делать стройпаспорт, а мы никак с домом определиться не можем. указание северной стороны не верно на плане, фасад участка и север - справа. лестница будет с двумя промежуточными площадками, чтобы не делать кривые ступени. Посилання на коментар Поділитися на інших сайтах More sharing options...
Artyomovets Опубліковано: 27 квітня 2012 Поділитись Опубліковано: 27 квітня 2012 абсолютно не понимаю санузлы на втором этаже. детям меньше, чем в совковой квартире, а себе - как спальня в той же совковой квартире. из кухни в столовую путь неблизкий. гардеробные вы решили шкафами заменить? мне такое решение не нравится Посилання на коментар Поділитися на інших сайтах More sharing options...
irina70 Опубліковано: 27 квітня 2012 Автор Поділитись Опубліковано: 27 квітня 2012 абсолютно не понимаю санузлы на втором этаже. детям меньше, чем в совковой квартире, а себе - как спальня в той же совковой квартире. из кухни в столовую путь неблизкий. гардеробные вы решили шкафами заменить? мне такое решение не нравится кухню отделили от гостинной сознательно, думаю, что кухню еще увеличим за счет уменьшения котельной. а вот с с\у на втором этаже - проблема. но у нас участок узкий, а растягивать дом на 20 м не хочется. вот и мучаемся с выбором Посилання на коментар Поділитися на інших сайтах More sharing options...
ПЛАСТИК Опубліковано: 27 квітня 2012 Поділитись Опубліковано: 27 квітня 2012 Кухню можно увеличить за счет тамбура, который сейчас между ней и холом. А вход в санузел тогда сделать уже из хола под лестницей 1 Посилання на коментар Поділитися на інших сайтах More sharing options...
ionico Опубліковано: 27 квітня 2012 Поділитись Опубліковано: 27 квітня 2012 Кухню можно увеличить за счет тамбура, который сейчас между ней и холом. А вход в санузел тогда сделать уже из хола под лестницей Поддерживаю! С/у на 2 этаже (10,41 кв. м.) можно разделить на 2 помещения: гардеробную и собственно с/у. Вход в с/у сделать из гардеробной. Я считаю, что будет более комфортно, т. к. такое помещение как с/у будет спрятано поглубже. Посилання на коментар Поділитися на інших сайтах More sharing options...
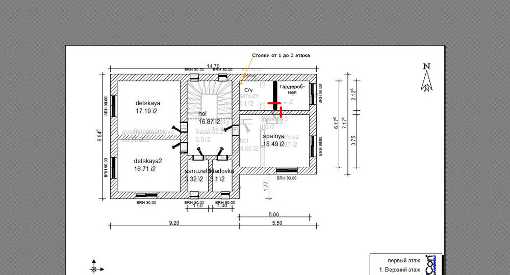
irina70 Опубліковано: 27 квітня 2012 Автор Поділитись Опубліковано: 27 квітня 2012 Поддерживаю! С/у на 2 этаже (10,41 кв. м.) можно разделить на 2 помещения: гардеробную и собственно с/у. Вход в с/у сделать из гардеробной. Я считаю, что будет более комфортно, т. к. такое помещение как с/у будет спрятано поглубже. а как тогда быть со стояком с/у первого этажа? он находится прямо под с/у спальни. и как расширить детский с/у? соеденить его с кладовкой? но тогда не будет ни одного подсобного помещения в доме, кроме котельной Посилання на коментар Поділитися на інших сайтах More sharing options...
ionico Опубліковано: 27 квітня 2012 Поділитись Опубліковано: 27 квітня 2012 а как тогда быть со стояком с/у первого этажа? он находится прямо под с/у спальни. Не вижу никакой проблемы! Протягиваете стояки водопровода и канализации от первого до второго этажа. На втором этаже получаем с/у, который расположен над с/у первого этажа. Гардеробная "справа". В общем, так: Красными линиями обозначил положение дверных проёмов. Посилання на коментар Поділитися на інших сайтах More sharing options...
irina70 Опубліковано: 27 квітня 2012 Автор Поділитись Опубліковано: 27 квітня 2012 Не вижу никакой проблемы! Протягиваете стояки водопровода и канализации от первого до второго этажа. На втором этаже получаем с/у, который расположен над с/у первого этажа. Гардеробная "справа". В общем, так: [ATTACH]182663[/ATTACH] Красными линиями обозначил положение дверных проёмов. ясно! я просто думала, что вы предлагаете переместить с/у в глубь, а возле входа сделать гардероб. теперь понятно Посилання на коментар Поділитися на інших сайтах More sharing options...
lud_mila Опубліковано: 27 квітня 2012 Поділитись Опубліковано: 27 квітня 2012 Ирина, а вы не хотите разместить с/у на 1 этаже под лестницей, мне кажется там должно хватить места. А то у вас сейчас получается, перед кухней ненужный хол, который съедает кв.м. На 2 этаже соединить с/у и кладовку однозначно - а то как-то совсем у детей убого получается.... 1 Посилання на коментар Поділитися на інших сайтах More sharing options...
irina70 Опубліковано: 27 квітня 2012 Автор Поділитись Опубліковано: 27 квітня 2012 Ирина, а вы не хотите разместить с/у на 1 этаже под лестницей, мне кажется там должно хватить места. А то у вас сейчас получается, перед кухней ненужный хол, который съедает кв.м. На 2 этаже соединить с/у и кладовку однозначно - а то как-то совсем у детей убого получается.... дело в том, что я еще вообще не придумала, как обыграть лестницу. когда лестница двумаршевая - все просто. а вот, что делать с трехмаршевой? если ее зашить, то будет похоже на норку, а не зашивать - площадь под ней гуляет... Посилання на коментар Поділитися на інших сайтах More sharing options...
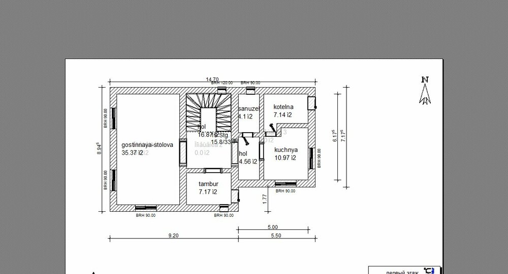
irina70 Опубліковано: 28 квітня 2012 Автор Поділитись Опубліковано: 28 квітня 2012 добавили комнату на первом этаже Посилання на коментар Поділитися на інших сайтах More sharing options...
ionico Опубліковано: 28 квітня 2012 Поділитись Опубліковано: 28 квітня 2012 добавили комнату на первом этаже А куда делся вход в дом? Посилання на коментар Поділитися на інших сайтах More sharing options...
irina70 Опубліковано: 28 квітня 2012 Автор Поділитись Опубліковано: 28 квітня 2012 А куда делся вход в дом? место входа не менялось Посилання на коментар Поділитися на інших сайтах More sharing options...
ionico Опубліковано: 28 квітня 2012 Поділитись Опубліковано: 28 квітня 2012 А, это вы развернули лист. То-то я и думаю, что ничего не понятно было. В прихожей будет очень тесно! По сути, негде даже поставить шкаф для верхней одежды. Если не будет подвала, то можно под лестницей использовать пространство, но всё равно маловато места будет. 1 Посилання на коментар Поділитися на інших сайтах More sharing options...
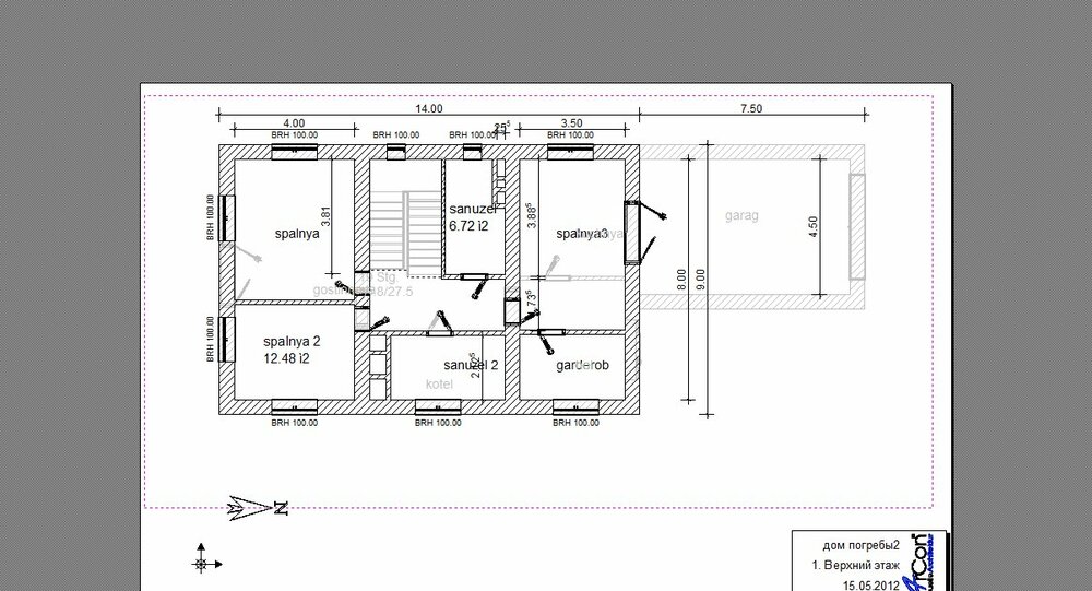
irina70 Опубліковано: 15 травня 2012 Автор Поділитись Опубліковано: 15 травня 2012 а уже пора топать к архитектору. придумала еще два варианта. первый Посилання на коментар Поділитися на інших сайтах More sharing options...
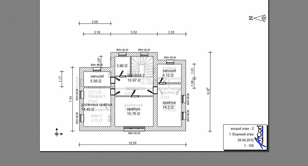
irina70 Опубліковано: 15 травня 2012 Автор Поділитись Опубліковано: 15 травня 2012 и второй вариант Посилання на коментар Поділитися на інших сайтах More sharing options...
Рекомендовані повідомлення
Створіть акаунт або увійдіть у нього для коментування
Ви маєте бути користувачем, щоб залишити коментар
Створити акаунт
Зареєструйтеся для отримання акаунта. Це просто!
Зареєструвати акаунтУвійти
Вже зареєстровані? Увійдіть тут.
Увійти зараз